Maßgeschneidertes Eigenheim in sonniger Aussichtslage in Koglbuch
€ 579.270
€ 5.346 / m²
8302 Kogelbuch
-
Erstbezug
-
2026
Beschreibung
Sie wünschen sich ein Eigenheim, das genau zu Ihnen passt? Dieses Projekt bietet Ihnen die Möglichkeit, Ihr zukünftiges Zuhause maßgeschneidert nach Ihren Vorstellungen zu gestalten – in hochwertiger, ziegelmassiver Bauweise mit modernem Pultdach und in schlüsselfertiger Ausführung. Aktuell ist ein Haus mit ca. 108,35m² Wohnfläche als Beispiel geplant – gerne können jedoch Größe, Raumaufteilung und Materialien individuell angepasst werden. Ihre persönlichen Wünsche fließen direkt in die Planung ein – so entsteht ein Zuhause, das exakt Ihren Vorstellungen entspricht. Das Angebot umfasst: - Die gesamte Einreichplanung inklusive Energieausweis - Den Grundstückskaufpreis inklusive aller Kaufnebenkosten - Eine Fixpreisgarantie bis zur Fertigstellung des...
Sie wünschen sich ein Eigenheim, das genau zu Ihnen passt? Dieses Projekt bietet Ihnen die Möglichkeit, Ihr zukünftiges Zuhause maßgeschneidert nach Ihren Vorstellungen zu gestalten – in hochwertiger, ziegelmassiver Bauweise mit modernem Pultdach und in schlüsselfertiger Ausführung.
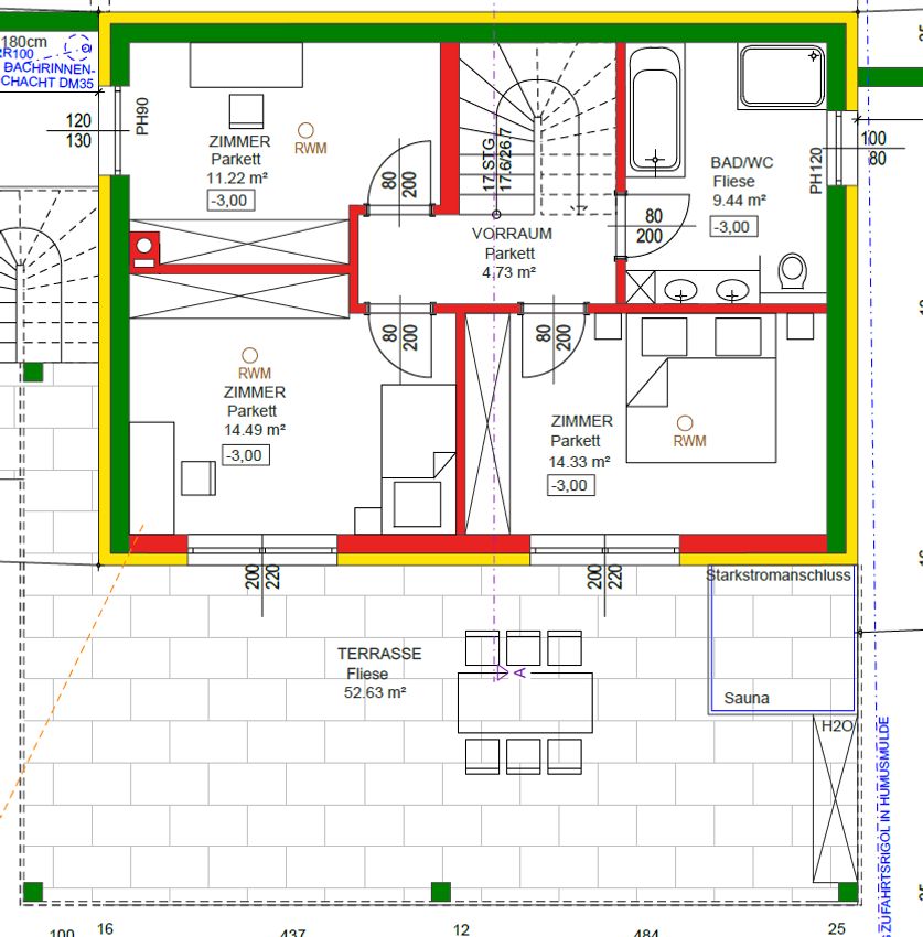
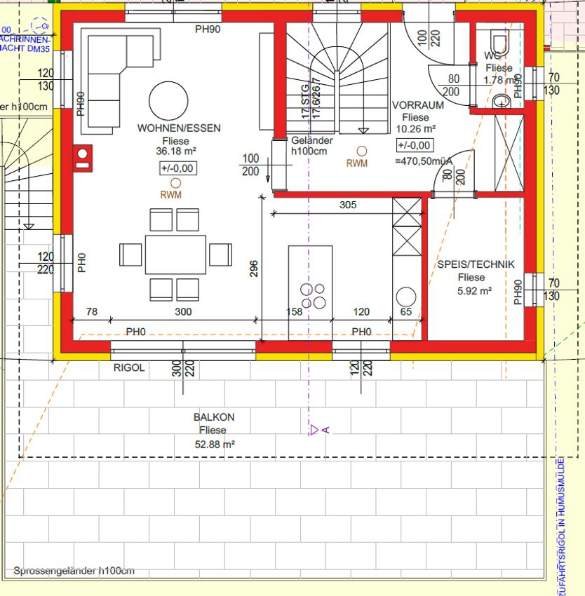
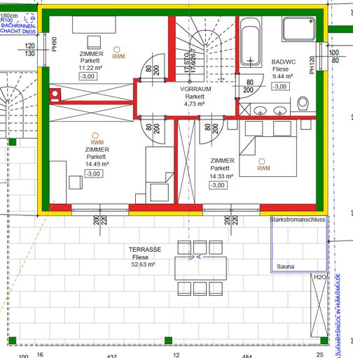
Aktuell ist ein Haus mit ca. 108,35m² Wohnfläche als Beispiel geplant – gerne können jedoch Größe, Raumaufteilung und Materialien individuell angepasst werden. Ihre persönlichen Wünsche fließen direkt in die Planung ein – so entsteht ein Zuhause, das exakt Ihren Vorstellungen entspricht.
Das Angebot umfasst:
- Die gesamte Einreichplanung inklusive Energieausweis
- Den Grundstückskaufpreis inklusive aller Kaufnebenkosten
- Eine Fixpreisgarantie bis zur Fertigstellung des Rohbaus
- Schlüsselfertig inklusive Luftwärmepumpe
Das Grundstück befindet sich in sonniger Aussichtslage, mit einer geregelten Zufahrt über Eigentum – eine ruhige, naturnahe Umgebung mit viel Lebensqualität.
Sie möchten mehr erfahren?
Gerne sende ich Ihnen eine detaillierte Leistungsbeschreibung zu oder berate Sie persönlich – lassen Sie uns gemeinsam den ersten Schritt zu Ihrem Traumhaus machen!
Aktuell ist ein Haus mit ca. 108,35m² Wohnfläche als Beispiel geplant – gerne können jedoch Größe, Raumaufteilung und Materialien individuell angepasst werden. Ihre persönlichen Wünsche fließen direkt in die Planung ein – so entsteht ein Zuhause, das exakt Ihren Vorstellungen entspricht.
Das Angebot umfasst:
- Die gesamte Einreichplanung inklusive Energieausweis
- Den Grundstückskaufpreis inklusive aller Kaufnebenkosten
- Eine Fixpreisgarantie bis zur Fertigstellung des Rohbaus
- Schlüsselfertig inklusive Luftwärmepumpe
Das Grundstück befindet sich in sonniger Aussichtslage, mit einer geregelten Zufahrt über Eigentum – eine ruhige, naturnahe Umgebung mit viel Lebensqualität.
Sie möchten mehr erfahren?
Gerne sende ich Ihnen eine detaillierte Leistungsbeschreibung zu oder berate Sie persönlich – lassen Sie uns gemeinsam den ersten Schritt zu Ihrem Traumhaus machen!
| Angaben gemäß gesetzlichem Erfordernis: | |||
| Heizwärmebedarf: | 38.0 kWh/(m²a) | ||
| Klasse Heizwärmebedarf: | A | ||
Objektdaten
Ausstattung
- Zentralheizung
- Erdwärme
- Aussichtslage
- Aussichtslage Unverbaubar
- Bus
- Grüne Lage
- Ländliche Lage
- Sonnige Lage
- Zentralheizung mit Wärmepumpe
Zustand
- Zustand
- ERSTBEZUG
- Baujahr
- 2026
Flächen
- Anzahl der Zimmer
- 4
- Anzahl der Badezimmer
- 1
- Anzahl der sep. WCs
- 2
- Anzahl der Balkone
- 1
- Anzahl der Terrassen
- 1
- Wohnfläche
- 108m²
- Grundstücksfläche
- 906m²
- Terrassenfläche
- 1m²
Kosten
- Kaufpreis
- € 579.270,00
Verwaltung
- Verfügbar ab
- nach Vereinbarung
Häuser zum Kaufen im Umkreis von Eichkögl
Häuser zum Kaufen im Umkreis von Eichkögl
Häuser zum Kaufen in Österreich
Andere Besucher suchen nach...
- Grundstücke kaufen in 3400 Weidlingbach
- Wohnungen kaufen in 4663 Laakirchen
- Häuser in 7471 Rechnitz
- Wohnungen in 2410 Hainburg an der Donau
- Häuser kaufen in 2432 Schwadorf
- Wohnungen kaufen in 3002 Purkersdorf
- Häuser in 3150 Wilhelmsburg
- Wohnungen kaufen in 3470 Engelmannsbrunn
- Grundstücke kaufen im Bezirk Mattersburg
- Grundstücke kaufen im Bezirk Gmunden