Stadthaus in Waizenkirchen!
Beschreibung
Stadthaus in Waizenkirchen
Objektbeschreibung
Zum Verkauf steht ein älteres Stadthaus im Zentrum von Waizenkirchen, das sich aufgrund seiner aktuellen Bausubstanz sowohl für eine umfassende Sanierung als auch für einen Abbruch mit anschließendem Neubau eignet.
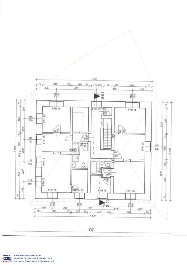
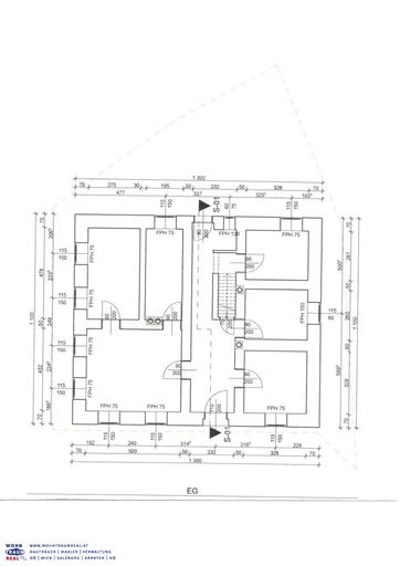
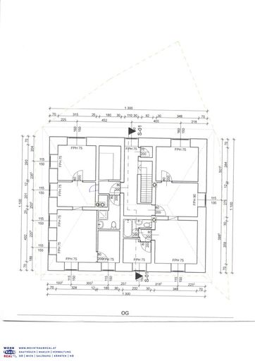
Das Gebäude verfügt über eine gesamte Wohnnutzfläche von rund 260 m², verteilt über mehrere Etagen. Der Innenzustand entspricht einem deutlich sanierungsbedürftigen Objekt – Installationen, Haustechnik, Dach und Innenausbau müssten vollständig erneuert werden. Die wertvolle Substanz liegt primär in der zentralen Lage und dem Entwicklungspotenzial des Grundstücks.
Das Grundstück umfasst ebenfalls ca. 260 m² und bietet damit eine kompakte, aber bestens nutzbare Größe für Wohn–...
Stadthaus in Waizenkirchen
Objektbeschreibung
Zum Verkauf steht ein älteres Stadthaus im Zentrum von Waizenkirchen, das sich aufgrund seiner aktuellen Bausubstanz sowohl für eine umfassende Sanierung als auch für einen Abbruch mit anschließendem Neubau eignet.
Das Gebäude verfügt über eine gesamte Wohnnutzfläche von rund 260 m², verteilt über mehrere Etagen. Der Innenzustand entspricht einem deutlich sanierungsbedürftigen Objekt – Installationen, Haustechnik, Dach und Innenausbau müssten vollständig erneuert werden. Die wertvolle Substanz liegt primär in der zentralen Lage und dem Entwicklungspotenzial des Grundstücks.
Das Grundstück umfasst ebenfalls ca. 260 m² und bietet damit eine kompakte, aber bestens nutzbare Größe für Wohn– oder Mischnutzungskonzepte.
Besonderheiten / Potenzial
Interessante Projektliegenschaft im Ortskern
Ideal für Bauträger, Investoren oder handwerklich versierte Käufer
Aufgrund der Struktur Umbau zu mehreren Wohneinheiten möglich
Alternative: Abbruch und Neubau eines modernen Wohnhauses (z. B. 2–4 Wohnungen, je nach Planung und behördlicher Genehmigung)
Zentrale Lage mit guter Infrastruktur und fußläufiger Erreichbarkeit von Geschäften, Ärzten, Schulen und öffentlichem Verkehr
Das Grundstück ist erschlossen
Anschlüsse
Gas: vorhanden
Kanal: vorhanden
Wasser: vorhanden
Strom: vorhanden
Starkstrom: vorhanden
Nutzungskonzepte
1. Komplettsanierung und Umgestaltung
Erhalt der bestehenden Gebäudestruktur
Ausbau zu großzügigem Einfamilienhaus oder
Schaffung von 2–3 Wohneinheiten durch Grundrissanpassung
Erhalt des historischen Charakters möglich
2. Abriss und Neubebauung
Nutzung der gesamten Grundstücksfläche für ein modernes Mehrfamilienhaus
Potenzial für 3–4 kompakte Wohneinheiten, abhängig von Bauvorschriften
Energieeffiziente Neubauweise möglich (z. B. Holzbau, Ziegelmassiv, barrierefreie Konzepte)
Abbruchsreif oder sanierungsbedürftig – vielseitige Entwicklungsmöglichkeiten
Wohnfläche: ca. 260 m²
Grundstücksgröße: ca. 260 m²
Kaufpreis: € 110.000,- (Verhandelbar)
Ort: Waizenkirchen,
Lage
Waizenkirchen ist eine beliebte Marktgemeinde im Bezirk Grieskirchen und bietet eine ausgewogene Mischung aus ländlicher Ruhe und guter örtlicher Versorgungsstruktur. Die umliegenden Städte Grieskirchen, Eferding und Wels sind gut erreichbar.
Die zentrale Lage des Objekts bietet kurze Wege zu:
Nahversorgern
Schulen und Kindergarten
Banken und Ärzten
Öffentlichen Verkehrsanbindungen
Freizeitmöglichkeiten und Naturraum
Kosten / Konditionen
Kaufpreis: € 110.000,- (Verhandelbar)
Keine Renovierungen enthalten
Übergabe nach Vereinbarung
Fazit
Dieses Stadthaus in Waizenkirchen ist ein klassisches Projektobjekt mit vielfältigen Entwicklungsmöglichkeiten. Ob als Sanierungsprojekt zur Erhaltung bestehender Substanz oder als Ausgangspunkt für einen attraktiven Neubau – die Lage und das Potenzial machen diese Liegenschaft zu einer interessanten Investition für Bauträger, Entwickler oder private Käufer mit Vision.
Infrastruktur / Entfernungen
Gesundheit
Arzt <500m
Apotheke <500m
Kinder & Schulen
Schule <500m
Kindergarten <5.500m
Nahversorgung
Supermarkt <1.000m
Bäckerei <6.500m
Einkaufszentrum <6.500m
Sonstige
Bank <500m
Geldautomat <500m
Post <500m
Polizei <4.000m
Verkehr
Bus <500m
Bahnhof <500m
Flughafen <10.000m
Angaben Entfernung Luftlinie / Quelle: OpenStreetMap
Objektdaten
Zustand
- HWB
- 296 kWh/m² pro Jahr
- Klasse HWB
- G
Flächen
- Wohnfläche
- 260m²
- Grundstücksfläche
- 250m²
Kosten
- Kaufpreis Brutto
- € 110.000,00
Häuser zum Kaufen im Umkreis von Waizenkirchen
Häuser zum Kaufen im Umkreis von Waizenkirchen
Häuser zum Kaufen in Österreich
Andere Besucher suchen nach...
- Grundstücke kaufen in 3400 Weidlingbach
- Wohnungen kaufen in 4663 Laakirchen
- Häuser in 7471 Rechnitz
- Wohnungen in 2410 Hainburg an der Donau
- Häuser kaufen in 2432 Schwadorf
- Wohnungen kaufen in 3002 Purkersdorf
- Häuser in 3150 Wilhelmsburg
- Wohnungen kaufen in 3470 Engelmannsbrunn
- Grundstücke kaufen im Bezirk Mattersburg
- Grundstücke kaufen im Bezirk Gmunden