NIEDRIGENERGIEHAUS: Geräumiges Einfamilienhaus mit hochwertiger Ausstattung - ERSTBEZUG
-
Erstbezug
-
2022
Beschreibung
Exklusiver Wohnkomfort trifft Energieeffizienz – Erstbezug in traumhafter Ruhelage bei Empersdorf
Inmitten der idyllischen Hügellandschaft rund um Empersdorf erwartet Sie dieses neu errichtete Einfamilienhaus, das in puncto Ausstattung, Technik und Wohnqualität neue Maßstäbe setzt. Dieses Objekt ist ein wahres Highlight für alle, die modernes, nachhaltiges Wohnen schätzen – und dabei besonderen Wert auf niedrige laufende Kosten legen.
Dank der innovativen Kombination aus energieeffizienter Luftwärmepumpe und Photovoltaikanlage profitieren Sie hier von einem nahezu energieautarken Betrieb. Heizkosten? Minimal. Komfort? Maximal.
Trotz der ruhigen, naturnahen Lage ist die Anbindung an Infrastruktur hervorragend: Einkaufsmöglichkeiten, Schulen und Verkehrsanbindungen sind bequem in wenigen Minuten...
Exklusiver Wohnkomfort trifft Energieeffizienz – Erstbezug in traumhafter Ruhelage bei Empersdorf
Inmitten der idyllischen Hügellandschaft rund um Empersdorf erwartet Sie dieses neu errichtete Einfamilienhaus, das in puncto Ausstattung, Technik und Wohnqualität neue Maßstäbe setzt. Dieses Objekt ist ein wahres Highlight für alle, die modernes, nachhaltiges Wohnen schätzen – und dabei besonderen Wert auf niedrige laufende Kosten legen.
Dank der innovativen Kombination aus energieeffizienter Luftwärmepumpe und Photovoltaikanlage profitieren Sie hier von einem nahezu energieautarken Betrieb. Heizkosten? Minimal. Komfort? Maximal.
Trotz der ruhigen, naturnahen Lage ist die Anbindung an Infrastruktur hervorragend: Einkaufsmöglichkeiten, Schulen und Verkehrsanbindungen sind bequem in wenigen Minuten erreichbar. Die umgebende Natur lädt zu Spaziergängen, Radtouren oder einfach zum Abschalten ein – direkt vor Ihrer Haustür.
Ca. 123 m² Wohnfläche – Stilvoll. Durchdacht. Hochwertig.
Errichtet in Massivbauweise überzeugt dieses Haus durch moderne Architektur, klare Linien und eine offene Raumgestaltung, die viel Licht und ein großzügiges Wohngefühl schafft. Die hochwertigen Materialien und die erstklassige Verarbeitung ziehen sich durch jedes Detail.
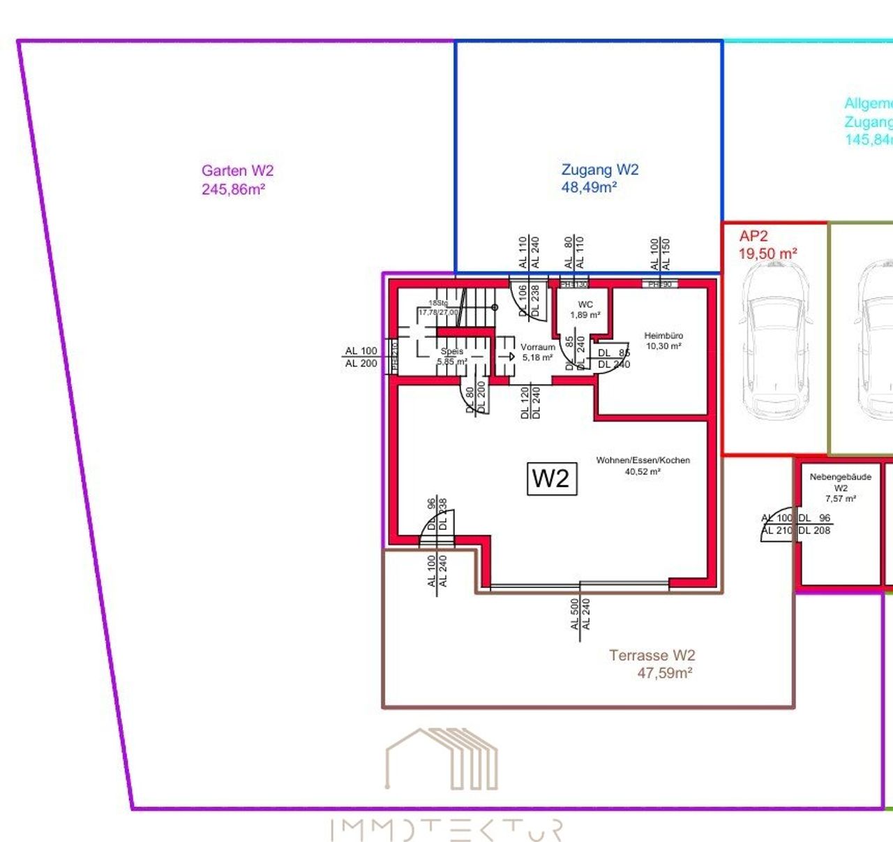
Raumaufteilung im Überblick:
Offener Wohn-, Ess- und Kochbereich mit Zugang zur Südterrasse und Eigengarten
3 geräumige Schlafzimmer im Obergeschoß
Zusätzliches Zimmer im Erdgeschoß – ideal als Büro oder Gästezimmer
2 hochwertiges Badezimmer mit Fenster inkl. WC
Praktische Speis im Küchenbereich
Die im Kaufpreis enthaltene maßgefertigte Tischlerküche ist mit Marken-E-Geräten ausgestattet und rundet den modernen Wohnbereich perfekt ab.
Enorme Ausstattung – Minimale Kosten
Dieses Haus steht für zukunftssicheres Wohnen auf höchstem Niveau:
SMART-HOME-System - für die bequeme Steuerung der Haustechnik
Luftwärmepumpe in Kombination mit angenehmer Fußbodenheizung – effizient, klimafreundlich und unabhängig von fossilen Brennstoffen
Photovoltaikanlage – senkt dauerhaft Ihre Energiekosten und erhöht Ihre Unabhängigkeit
Modernste Elektrik mit schwarzen Steckdosen & Schaltern
Edle Bodenbeläge und stilvolle Sanitärkeramik – Qualität und Ästhetik perfekt vereint
Großzügige Fensterflächen – lichtdurchflutete Räume zu jeder Tageszeit (hochwertige Kunststoff-Alu-Fenster, dreifach verglast)
elektrisch betriebene Raffstores und Rollos - per Smart-Home-System auch zentral steuerbar
Klimaanlage
Anschluss für E-Lade-Station
EDV- sowie SAT-Anschlüsse vorbereitet (in allen Räumen)
Der Außenbereich bietet einen sonnigen Eigengarten mit perfekter Süd-Ausrichtung – ein Ort zum Entspannen, Spielen oder Gärtnern, ganz nach Ihrem Lebensstil.
Ein überdachter Stellplatz sowie ein Technikraum direkt beim Haus sorgen für zusätzlichen Komfort im Alltag.
Fazit:
Ein Haus, das weit mehr ist als nur ein Zuhause – es ist ein Ort für Menschen mit Anspruch. Ideal für Familien, Paare oder Einzelpersonen, die hohe Wohnqualität, moderne Technik, und niedrige Betriebskosten in ruhiger, naturnaher Lage zu schätzen wissen.
Hinweis: Alle Angaben ohne Gewähr. Irrtümer, Tippfehler und Zwischenverkauf vorbehalten.
Noch nichts gefunden? Wir informieren Sie über geeignete Immobilienangebote noch vor allen anderen.
Legen Sie jetzt Ihren individuellen Suchagenten unter folgendem Link an. Wir schicken Ihnen passende Immobilien exklusiv vorab zu.
Suchagent anlegen - https://nuic-immobilien.service.immo/registrieren/de
Der Vermittler ist als Doppelmakler tätig.
Infrastruktur / Entfernungen
Gesundheit
Arzt <1.500m
Apotheke <3.000m
Kinder & Schulen
Schule <2.500m
Kindergarten <6.000m
Nahversorgung
Supermarkt <2.000m
Bäckerei <3.000m
Sonstige
Geldautomat <2.000m
Bank <3.000m
Post <2.500m
Polizei <6.500m
Verkehr
Bus <500m
Autobahnanschluss <9.000m
Bahnhof <9.000m
Angaben Entfernung Luftlinie / Quelle: OpenStreetMap
Objektdaten
Ausstattung
- Klimatisiert
- Gartennutzung
- Gäste-WC
- Bad mit Dusche
- Bad mit Fenster
- Offene Küche
- Fliesenboden
- Parkettboden
- Fußbodenheizung
- Solar
- Luftwärmepumpe
- Ausrichtung Balkon/Terrasse - Süd
- Flachdach
- Massiv Bauweise
Zustand
- Zustand
- ERSTBEZUG
- Baujahr
- 2022
- Alter
- NEUBAU
- HWB
- 48.7 kWh/m² pro Jahr
- Klasse HWB
- B
- fGEE
- 0.61
- Klasse fGEE
- A+
Flächen
- Anzahl der Zimmer
- 5
- Anzahl der Badezimmer
- 2
- Anzahl der sep. WCs
- 2
- Anzahl der Terrassen
- 1
- Stellplätze
- 1
- Wohnfläche
- 124m²
- Gartenfläche
- 253m²
- Terrassenfläche
- 1m²
Kosten
- Kaufpreis Brutto
- € 569.000,00
Häuser zum Kaufen im Umkreis von Empersdorf
Häuser zum Kaufen im Umkreis von Empersdorf
Häuser zum Kaufen in Österreich
Andere Besucher suchen nach...
- Grundstücke kaufen in 3400 Weidlingbach
- Wohnungen kaufen in 4663 Laakirchen
- Häuser in 7471 Rechnitz
- Wohnungen in 2410 Hainburg an der Donau
- Häuser kaufen in 2432 Schwadorf
- Wohnungen kaufen in 3002 Purkersdorf
- Häuser in 3150 Wilhelmsburg
- Wohnungen kaufen in 3470 Engelmannsbrunn
- Grundstücke kaufen im Bezirk Mattersburg
- Grundstücke kaufen im Bezirk Gmunden