✨ Neubau-Einfamilienhaus mit Smart-Home & minimalen Energiekosten – Wohnen in der Natur von Empersdorf
-
Erstbezug
-
2022
Beschreibung
Einziehen, ankommen und jeden Tag Lebensqualität genießen.
In herrlich ruhiger Lage, eingebettet in die sanfte Naturlandschaft rund um Empersdorf, erwartet Sie dieses neu errichtete Einfamilienhaus im Erstbezug. Moderne Architektur, hochwertige Ausstattung und ein durchdachtes Energiekonzept schaffen ein Zuhause, das Komfort, Nachhaltigkeit und Wohnqualität perfekt vereint.
Ein idealer Rückzugsort für Familien, Paare oder alle, die naturnah leben möchten, ohne auf zeitgemäßen Wohnkomfort zu verzichten.
Besonders attraktiv: Das energieeffiziente Zusammenspiel aus Luftwärmepumpe, Photovoltaikanlage und Stromspeicher sorgt für angenehm niedrige laufende Kosten und macht Sie ein großes Stück unabhängiger von steigenden Energiepreisen.
🌿 Naturnah wohnen –...
Einziehen, ankommen und jeden Tag Lebensqualität genießen.
In herrlich ruhiger Lage, eingebettet in die sanfte Naturlandschaft rund um Empersdorf, erwartet Sie dieses neu errichtete Einfamilienhaus im Erstbezug. Moderne Architektur, hochwertige Ausstattung und ein durchdachtes Energiekonzept schaffen ein Zuhause, das Komfort, Nachhaltigkeit und Wohnqualität perfekt vereint.
Ein idealer Rückzugsort für Familien, Paare oder alle, die naturnah leben möchten, ohne auf zeitgemäßen Wohnkomfort zu verzichten.
Besonders attraktiv: Das energieeffiziente Zusammenspiel aus Luftwärmepumpe, Photovoltaikanlage und Stromspeicher sorgt für angenehm niedrige laufende Kosten und macht Sie ein großes Stück unabhängiger von steigenden Energiepreisen.
🌿 Naturnah wohnen – und dennoch bestens angebunden
Hier genießen Sie Ruhe, Natur und Weitblick – fernab vom hektischen Alltag.
Die Umgebung lädt zu Spaziergängen, Radtouren und erholsamen Stunden im Grünen ein. Natur beginnt hier praktisch direkt vor der Haustür.
Gleichzeitig profitieren Sie von einer guten Infrastruktur: Einkaufsmöglichkeiten, Schulen und Verkehrsanbindungen sind in wenigen Minuten erreichbar.
Eine seltene Kombination aus ländlicher Ruhe und alltagstauglicher Nähe zur Stadt.
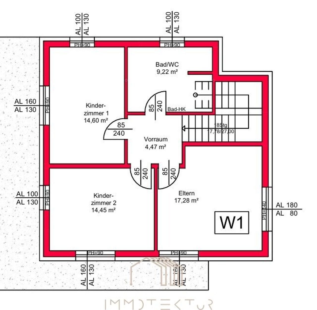
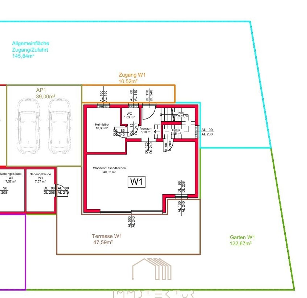
🏡 Großzügiges Wohnen auf rund 123 m² – modern und lichtdurchflutet
Das Haus wurde in solider Massivbauweise errichtet und überzeugt mit klarer Architektur, hochwertigen Materialien und einer durchdachten Raumgestaltung.
Große Fensterflächen lassen viel Tageslicht in die Räume und schaffen eine freundliche, offene Wohnatmosphäre.
Das Herzstück bildet der großzügige Wohn-, Ess- und Kochbereich, der fließend in die sonnige Südterrasse und den privaten Garten übergeht – der perfekte Ort für gemeinsame Zeit mit Familie und Freunden.
Die hochwertige Tischlerküche mit modernen Elektrogeräten ist bereits im Kaufpreis enthalten. Eine praktische Speis sorgt für zusätzlichen Stauraum.
Insgesamt stehen neben dem geräumigen Wohnkochessbereich 4 Zimmer zur Verfügung:
- 3 großzügige Schlafzimmer im Obergeschoss
- ein weiteres Zimmer im Erdgeschoss – ideal als Büro, Gästezimmer oder Spielzimmer
Zwei moderne Badezimmer mit Fenster sowie insgesamt zwei WCs sorgen für zusätzlichen Komfort im Alltag.
⚡ Nachhaltige Technik & höchste Energieeffizienz
Bei der Ausstattung wurde besonderer Wert auf Qualität, Effizienz und Zukunftssicherheit gelegt.
Die moderne Luftwärmepumpe in Kombination mit Fußbodenheizung sorgt ganzjährig für ein angenehmes Raumklima – effizient, nachhaltig und ohne fossile Energieträger.
Ergänzt wird das Energiekonzept durch eine Photovoltaikanlage mit Speicher, die eigenen Strom produziert und langfristig Energiekosten reduziert.
Das Ergebnis: höchster Wohnkomfort bei minimalen laufenden Kosten.
🛋 Hochwertige Ausstattung bis ins Detail
Auch im Innenbereich überzeugt das Haus mit einer modernen und stilvollen Ausstattung:
- hochwertige Bodenbeläge
- moderne Beleuchtungskonzepte
- elegante schwarze Steckdosen und Schalter
- stilvolle Sanitärausstattung
Alle Details wurden sorgfältig ausgewählt und verbinden Funktionalität mit zeitgemäßem Design.
🌞 Sonniger Garten – Ihr privater Rückzugsort
Der sonnige Eigengarten mit Süd-Ausrichtung bietet viel Platz für Erholung, Spiel und gemeinsame Stunden im Freien.
Ob Frühstück auf der Terrasse, Gartenarbeit oder entspannte Sommerabende mit Freunden – hier entsteht ein echtes Zuhausegefühl.
⭐ Weitere Ausstattungshighlights
- Kunststoff-Alu-Fenster (3-fach verglast)
- Elektrische Raffstores und Rollos
- Steuerung über Smart-Home-System
- Klimaanlage
- Anschluss für E-Ladestation
- EDV- und SAT-Anschlüsse in allen Räumen vorbereitet
🚗 Komfort im Alltag
Ein Doppelstellplatz direkt beim Haus sorgt für bequemes Parken und rundet das Gesamtpaket perfekt ab.
🌟 Fazit
Ein modernes Zuhause für Menschen, die Ruhe, Natur und zeitgemäßen Wohnkomfort miteinander verbinden möchten.
Dank hochwertiger Ausstattung, modernster Energietechnik und durchdachter Raumaufteilung bietet dieses Haus nicht nur hohe Lebensqualität, sondern auch langfristige Wertbeständigkeit.
👉 Jetzt besichtigen und diese seltene Gelegenheit im Erstbezug sichern.
Hinweis:
Alle Angaben ohne Gewähr. Irrtümer, Tippfehler und Zwischenverkauf vorbehalten.
Noch nichts gefunden? Wir informieren Sie über geeignete Immobilienangebote noch vor allen anderen.
Legen Sie jetzt Ihren individuellen Suchagenten unter folgendem Link an. Wir schicken Ihnen passende Immobilien exklusiv vorab zu.
Suchagent anlegen - https://nuic-immobilien.service.immo/registrieren/de
Der Vermittler ist als Doppelmakler tätig.
Infrastruktur / Entfernungen
Gesundheit
Arzt <1.500m
Apotheke <3.000m
Kinder & Schulen
Schule <2.500m
Kindergarten <6.000m
Nahversorgung
Supermarkt <2.000m
Bäckerei <3.000m
Sonstige
Geldautomat <2.000m
Bank <2.500m
Post <2.500m
Polizei <6.500m
Verkehr
Bus <500m
Autobahnanschluss <9.000m
Bahnhof <9.000m
Angaben Entfernung Luftlinie / Quelle: OpenStreetMap
Objektdaten
Ausstattung
- Klimatisiert
- Gartennutzung
- Gäste-WC
- Bad mit Dusche
- Bad mit Fenster
- Offene Küche
- Fliesenboden
- Parkettboden
- Fußbodenheizung
- Solar
- Luftwärmepumpe
- Ausrichtung Balkon/Terrasse - Süd
- Flachdach
- Massiv Bauweise
Zustand
- Zustand
- ERSTBEZUG
- Baujahr
- 2022
- Alter
- NEUBAU
- HWB
- 49.1 kWh/m² pro Jahr
- Klasse HWB
- B
- fGEE
- 0.62
- Klasse fGEE
- A+
Flächen
- Anzahl der Zimmer
- 5
- Anzahl der Badezimmer
- 2
- Anzahl der sep. WCs
- 2
- Anzahl der Terrassen
- 1
- Stellplätze
- 2
- Wohnfläche
- 124m²
- Gartenfläche
- 123m²
- Terrassenfläche
- 1m²
Kosten
- Kaufpreis Brutto
- € 549.000,00
Häuser zum Kaufen im Umkreis von Empersdorf
Häuser zum Kaufen im Umkreis von Empersdorf
Häuser zum Kaufen in Österreich
Andere Besucher suchen nach...
- Grundstücke kaufen in 3400 Weidlingbach
- Wohnungen kaufen in 4663 Laakirchen
- Häuser in 7471 Rechnitz
- Wohnungen in 2410 Hainburg an der Donau
- Häuser kaufen in 2432 Schwadorf
- Wohnungen kaufen in 3002 Purkersdorf
- Häuser in 3150 Wilhelmsburg
- Wohnungen kaufen in 3470 Engelmannsbrunn
- Grundstücke kaufen im Bezirk Mattersburg
- Grundstücke kaufen im Bezirk Gmunden