gepflegtes Jahrhundertwendehaus im Villenviertel – Waldrandlage, zentrumsnah, mit Sauna, Pool, Garagen und bester Anbindung - Wohnen und Arbeiten im Kurort
Beschreibung
GRUNDSTÜCKSGRÖSSE: ca. 1.292 m²
WOHNFLÄCHE: ca. 295 m²
NUTZFLÄCHE: ca. 425 m²
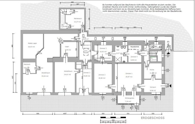
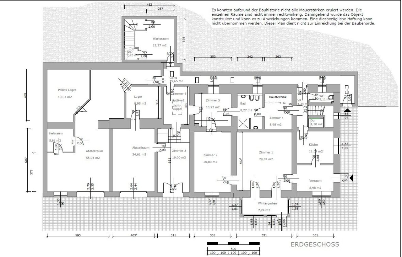
ERDGESCHOSS ca. 160 m²: Vorraum, Küche, Wohnzimmer mit Veranda, Schlafzimmer, 2 Garderoben, Badezimmer mit Dusche und WC, Gäste WC, Büro; ca. 15 m² großer Praxisraum mit separatem Eingang
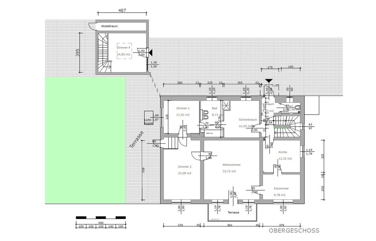
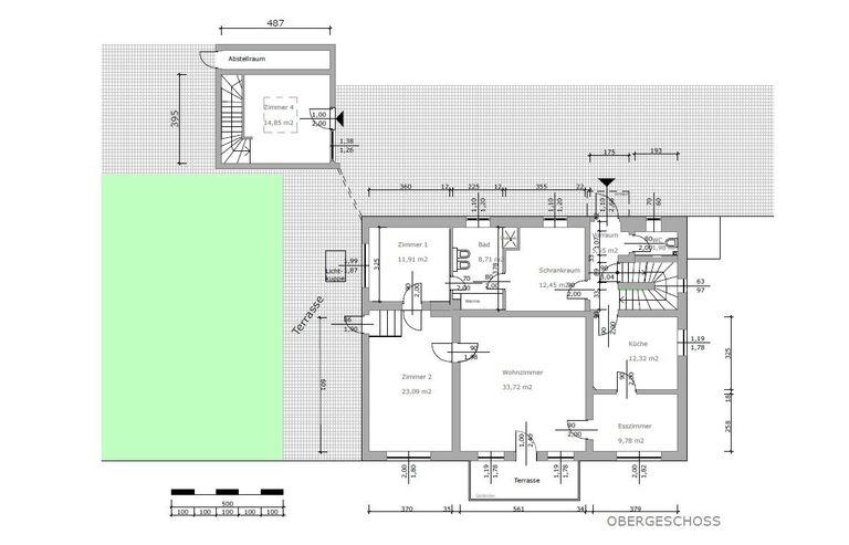
OBERGESCHOSS ca. 135 m²: Vorraum, Küche, Esszimmer, Wohnzimmer mit Balkon, Schlafzimmer mit Ausgang auf die ca. 190 m² große Terrasse, Kinderzimmer, Badezimmer mit WC, Dusche und Ankleideraum, Gäste WC;
TERRASSE: begrünte Terrasse ca. 190 m² mit kleinem Swimmingpool, Sauna, Pergola mit Sommerküche und Grillplatz
HEIZUNG: neuwertige Gasbrennwertheizung (2018), Warmwasser über Solaranlage
HWB: 184,4 kwh/m²a fGEE: 2,27
...GRUNDSTÜCKSGRÖSSE: ca. 1.292 m²
WOHNFLÄCHE: ca. 295 m²
NUTZFLÄCHE: ca. 425 m²
ERDGESCHOSS ca. 160 m²: Vorraum, Küche, Wohnzimmer mit Veranda, Schlafzimmer, 2 Garderoben, Badezimmer mit Dusche und WC, Gäste WC, Büro; ca. 15 m² großer Praxisraum mit separatem Eingang
OBERGESCHOSS ca. 135 m²: Vorraum, Küche, Esszimmer, Wohnzimmer mit Balkon, Schlafzimmer mit Ausgang auf die ca. 190 m² große Terrasse, Kinderzimmer, Badezimmer mit WC, Dusche und Ankleideraum, Gäste WC;
TERRASSE: begrünte Terrasse ca. 190 m² mit kleinem Swimmingpool, Sauna, Pergola mit Sommerküche und Grillplatz
HEIZUNG: neuwertige Gasbrennwertheizung (2018), Warmwasser über Solaranlage
HWB: 184,4 kwh/m²a fGEE: 2,27
NEBENGEBÄUDE: 2 Garagenplätze, Werkstätte, Heizraum;
Diese gepflegte Liegenschaft besticht durch ihre großzügige Raumaufteilung sowie eine hochwertige und durchdachte Ausstattung. Sie gliedert sich in einen weitläufigen Wohnbereich und mehrere separat angeordnete Büroräumlichkeiten. Dank getrennter Eingänge eignen sich die Bereiche ideal für die Nutzung durch zwei Familien oder für Freiberufler wie Anwälte, Steuerberater, Architekten oder Therapeuten, die Wohnen und Arbeiten unter einem Dach vereinen möchten.
Ein besonderes Highlight ist die oberhalb der Garagen gelegene, begrünte Terrasse auf Ebene des Obergeschosses. Diese exklusive Rückzugsoase bietet einen Swimmingpool, einen Grillplatz, eine Pergola mit Sommerküche sowie eine Sauna und lädt zu entspannten Stunden und geselligem Beisammensein ein.
Das Dachgeschoss bietet zusätzliches Ausbaupotenzial und eröffnet vielfältige Möglichkeiten zur individuellen Gestaltung und Erweiterung des Wohnraums.
Die südlich ausgerichtete Liegenschaft befindet sich in ruhiger und äußerst gefragter Wohnlage am Waldrand von Bad Sauerbrunn, nur wenige Gehminuten vom Zentrum entfernt. Die Kombination aus naturnaher Umgebung, Zentrumsnähe und ausgezeichneter Wohnqualität macht diese Immobilie besonders attraktiv.
KAUFPREIS: € 795.000,--
Infrastruktur / Entfernungen
Gesundheit
Arzt <750m
Apotheke <500m
Klinik <250m
Krankenhaus <7.000m
Kinder & Schulen
Schule <500m
Kindergarten <500m
Universität <8.500m
Höhere Schule <7.000m
Nahversorgung
Supermarkt <750m
Bäckerei <500m
Einkaufszentrum <4.000m
Sonstige
Bank <750m
Geldautomat <500m
Post <3.750m
Polizei <3.250m
Verkehr
Bus <500m
Autobahnanschluss <1.250m
Bahnhof <500m
Flughafen <9.000m
Angaben Entfernung Luftlinie / Quelle: OpenStreetMap
Objektdaten
Ausstattung
- Zentralheizung
- Befeuerung mit Gas
- Solar
- Massiv Bauweise
Zustand
- HWB
- 184.4 kWh/m² pro Jahr
- Klasse HWB
- D
- fGEE
- 2.27
- Klasse fGEE
- E
Flächen
- Wohnfläche
- 295m²
- Nutzfläche
- 425m²
- Grundstücksfläche
- 1.292m²
Kosten
- Kaufpreis Brutto
- € 795.000,00
Häuser zum Kaufen im Umkreis von Bad Sauerbrunn
Häuser zum Kaufen im Umkreis von Bad Sauerbrunn
Häuser zum Kaufen in Österreich
Andere Besucher suchen nach...
- Grundstücke kaufen in 3400 Weidlingbach
- Wohnungen kaufen in 4663 Laakirchen
- Häuser in 7471 Rechnitz
- Wohnungen in 2410 Hainburg an der Donau
- Häuser kaufen in 2432 Schwadorf
- Wohnungen kaufen in 3002 Purkersdorf
- Häuser in 3150 Wilhelmsburg
- Wohnungen kaufen in 3470 Engelmannsbrunn
- Grundstücke kaufen im Bezirk Mattersburg
- Grundstücke kaufen im Bezirk Gmunden