renoviertes Einfamilienhaus mit Vollkeller am Waldrand zu verkaufen
Beschreibung
GRUNDSTÜCKSGRÖSSE: 360 m²
WOHNFLÄCHE: ca. 120 m²
RENOVIERT: 2021 + 2024
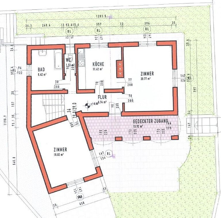
ERDGESCHOSS: Diele, neue möblierte Küche mit Essplatz, Wohnzimmer mit Kachelofen, Schlafzimmer, Bad, WC;
OBERGESCHOSS: großer Vorraum, 2 Zimmer, großer Schrankraum
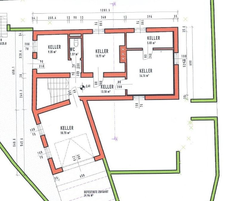
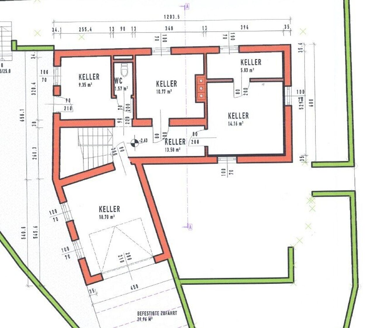
KELLER: Autoabstellplatz, Kellerstüberl, Heizraum bzw. Wirtschaftsraum, WC, Lagerraum, und Ausgang in den Garten
HEIZUNG: Gaszentralheizung und feste Brennstoffe + Kachelofen
HWB: 54,8 kWh/m²a fGEE: 1,02
Dieses kürzlich sanierte Wohnhaus liegt in absoluter Ruhelage, direkt am Waldrand.
KAUFPREIS: € 470.000,--
Der Vermittler ist als Doppelmakler tätig.
Infrastruktur / Entfernungen
Gesundheit Arzt <1.750m Apotheke <1.750m Klinik <2.000m Krankenhaus <9.000m Kinder & Schulen Schule <2.000m Kindergarten <2.000m Höhere...
GRUNDSTÜCKSGRÖSSE: 360 m²
WOHNFLÄCHE: ca. 120 m²
RENOVIERT: 2021 + 2024
ERDGESCHOSS: Diele, neue möblierte Küche mit Essplatz, Wohnzimmer mit Kachelofen, Schlafzimmer, Bad, WC;
OBERGESCHOSS: großer Vorraum, 2 Zimmer, großer Schrankraum
KELLER: Autoabstellplatz, Kellerstüberl, Heizraum bzw. Wirtschaftsraum, WC, Lagerraum, und Ausgang in den Garten
HEIZUNG: Gaszentralheizung und feste Brennstoffe + Kachelofen
HWB: 54,8 kWh/m²a fGEE: 1,02
Dieses kürzlich sanierte Wohnhaus liegt in absoluter Ruhelage, direkt am Waldrand.
KAUFPREIS: € 470.000,--
Der Vermittler ist als Doppelmakler tätig.
Infrastruktur / Entfernungen
Gesundheit
Arzt <1.750m
Apotheke <1.750m
Klinik <2.000m
Krankenhaus <9.000m
Kinder & Schulen
Schule <2.000m
Kindergarten <2.000m
Höhere Schule <9.000m
Universität <9.000m
Nahversorgung
Supermarkt <1.750m
Bäckerei <2.000m
Einkaufszentrum <6.000m
Sonstige
Bank <1.750m
Geldautomat <2.000m
Post <3.500m
Polizei <5.000m
Verkehr
Bus <1.500m
Autobahnanschluss <2.500m
Bahnhof <2.000m
Angaben Entfernung Luftlinie / Quelle: OpenStreetMap
Objektdaten
Ausstattung
- Kamin
- Zentralheizung
- Befeuerung mit Gas
- Befeuerung mit Holz
Zustand
- HWB
- 54.8 kWh/m² pro Jahr
- Klasse HWB
- C
- fGEE
- 1.02
- Klasse fGEE
- C
Flächen
- Wohnfläche
- 120m²
- Grundstücksfläche
- 360m²
Kosten
- Kaufpreis Brutto
- € 470.000,00
Häuser zum Kaufen im Umkreis von Pöttsching
Häuser zum Kaufen im Umkreis von Pöttsching
Häuser zum Kaufen in Österreich
Andere Besucher suchen nach...
- Grundstücke kaufen in 3400 Weidlingbach
- Wohnungen kaufen in 4663 Laakirchen
- Häuser in 7471 Rechnitz
- Wohnungen in 2410 Hainburg an der Donau
- Häuser kaufen in 2432 Schwadorf
- Wohnungen kaufen in 3002 Purkersdorf
- Häuser in 3150 Wilhelmsburg
- Wohnungen kaufen in 3470 Engelmannsbrunn
- Grundstücke kaufen im Bezirk Mattersburg
- Grundstücke kaufen im Bezirk Gmunden