Gepflegtes Stadthaus mit viel Platz auf zwei Ebenen. - Inkl. Wellnessbereich und großer Terrasse.
Beschreibung
In zentraler Lage von Judenburg präsentiert sich dieses Einfamilienhaus mit rund 165 m² Wohnfläche als durchdachtes Zuhause für vielfältige Lebenssituationen. Die Liegenschaft vereint gepflegten Zustand mit attraktiver Ausstattung. Besonders hervorzuheben ist der hauseigene Wellnessbereich mit Indoor-Pool und Sauna. Die Immobilie punktet mit guter Erreichbarkeit, einer großzügigen Terrasse sowie einer integrierten Doppelgarage.
DIE VORTEILE DIESES HAUSES AUF EINEN BLICK:
- Zentrale Lage in Judenburg mit sehr guter Infrastruktur.
- Alle Nahversorger, Schule, Kindergarten und Ärzte fußläufig erreichbar.
- Gesamt ca. 165 m² Wohnfläche auf einer Etage.
- Ca. 65 m² große Terrasse mit Zugang vom Wintergarten.
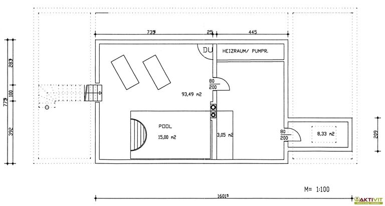
- Wellnessbereich mit Indoor-Pool und Sauna im Untergeschoß.
- Baujahr...
In zentraler Lage von Judenburg präsentiert sich dieses Einfamilienhaus mit rund 165 m² Wohnfläche als durchdachtes Zuhause für vielfältige Lebenssituationen. Die Liegenschaft vereint gepflegten Zustand mit attraktiver Ausstattung. Besonders hervorzuheben ist der hauseigene Wellnessbereich mit Indoor-Pool und Sauna. Die Immobilie punktet mit guter Erreichbarkeit, einer großzügigen Terrasse sowie einer integrierten Doppelgarage.
DIE VORTEILE DIESES HAUSES AUF EINEN BLICK:
- Zentrale Lage in Judenburg mit sehr guter Infrastruktur.
- Alle Nahversorger, Schule, Kindergarten und Ärzte fußläufig erreichbar.
- Gesamt ca. 165 m² Wohnfläche auf einer Etage.
- Ca. 65 m² große Terrasse mit Zugang vom Wintergarten.
- Wellnessbereich mit Indoor-Pool und Sauna im Untergeschoß.
- Baujahr 2001, gepflegter Zustand.
- Fußbodenheizung mit Gas und Solarunterstützung.
- Ca. 100 m² großer Keller mit vielseitiger Nutzbarkeit.
DAS HAUS.
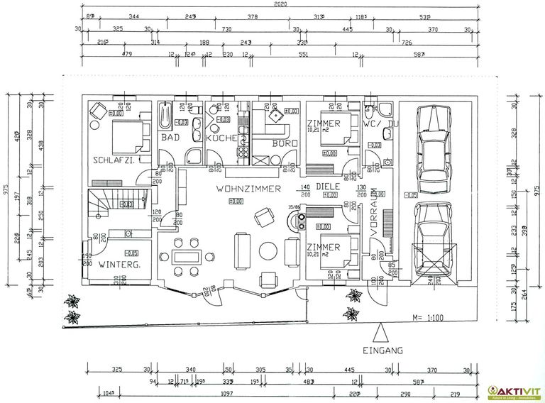
Das Haus erstreckt sich über zwei Ebenen (Erdgeschoss und Kellergeschoss) mit einer gesamten Wohnnutzfläche von ca. 165 m² und weiteren ca. 100 m² im Untergeschoß.
Im Erdgeschoss befinden sich vier Zimmer, ein großzügiges Wohnzimmer, eine separate Küche, ein Badezimmer, ein Gäste-Bad mit WC und Dusche sowie ein Wintergarten.
Ergänzt wird das Raumangebot durch einen zentralen Eingangsbereich mit Vorraum und ein Stiegenhaus, das beide Ebenen verbindet. Die Räume sind funktional angeordnet und weitgehend zentral vom Flur oder dem Wohnzimmer aus erschlossen.
Im Untergeschoss ist der exklusive Wellnessbereich mit Indoor-Swimmingpool, Sauna und weiteren Aufenthaltsbereichen untergebracht.
Direkt an das Haus angrenzend befindet sich die Garage mit Platz für zwei Fahrzeuge und Zugang ins Hausinnere.
ZUSTAND UND AUSSTATTUNG.
Das im Jahr 2001 in Massivbauweise errichtete Einfamilienhaus befindet sich in einem gepflegten Zustand. Es wurde laufend instand gehalten und bietet mit seiner gehobenen Ausstattung zeitgemäßen Wohnkomfort.
Die Böden sind mit Fliesen belegt, die Beheizung erfolgt über eine Kombination aus Gas-Zentralheizung und Solarenergie, ergänzt durch eine Fußbodenheizung.
Die Einbauküche sowie die Badezimmereinrichtungen sind im Kaufpreis inkludiert. Zur weiteren Ausstattung zählen der großzügige Wellnessbereich mit Pool und Sauna, sowie eine Garage mit ca. 35 m² Fläche.
DIE LIEGENSCHAFT.
Die Liegenschaft umfasst ein Grundstück mit ca. 267 m² Fläche und ist zur Gänze als Bauland mit der Widmung „WA – Wohnen Allgemein“ (Dichte 0,2–0,6) ausgewiesen. Die Aufschließung ist vollständig gegeben; eine befestigte Straßenzufahrt ist vorhanden.
Der Grund ist überwiegend bebaut, ein Garten ist nicht vorhanden.
Zur Beantwortung weiterer Fragen sowie für Besichtigungstermine stehe ich Ihnen gerne täglich - auch am Wochenende - von 08:00 bis 22:00 Uhr zur Verfügung.
Ich freue mich über Ihre Kontaktaufnahme,
Wilhelm Rossmair
+43 664 54 24 481
w.rossmair@aktivit.org
Der Vermittler ist als Doppelmakler tätig.
Erteilen Sie uns ihren Suchauftrag und profitieren Sie von vielen Vorteilen und exklusiven Angeboten!
Ganz einfach und kostenlos unter: Jetzt Suchauftrag eingeben.
Infrastruktur / Entfernungen
Gesundheit
Arzt <500m
Apotheke <500m
Krankenhaus <500m
Kinder & Schulen
Schule <1.000m
Kindergarten <500m
Nahversorgung
Supermarkt <500m
Bäckerei <500m
Einkaufszentrum <8.000m
Sonstige
Bank <500m
Geldautomat <500m
Post <500m
Polizei <1.000m
Verkehr
Bus <500m
Autobahnanschluss <1.500m
Bahnhof <1.500m
Flughafen <8.000m
Angaben Entfernung Luftlinie / Quelle: OpenStreetMap
Objektdaten
Ausstattung
- Sauna
- Swimmingpool
- Wellnessbereich
- Bad mit Dusche
- Bad mit Badewanne
- Bad mit Fenster
- Einbauküche
- Fliesenboden
- Zentralheizung
- Fußbodenheizung
- Befeuerung mit Gas
- Solar
- Satteldach
- Massiv Bauweise
Zustand
- Zustand
- GEPFLEGT
- Baujahr
- 2001
- Alter
- NEUBAU
Flächen
- Anzahl der Zimmer
- 4
- Anzahl der Badezimmer
- 3
- Anzahl der sep. WCs
- 3
- Anzahl der Terrassen
- 1
- Wohnfläche
- 165m²
- Nutzfläche
- 165m²
- Grundstücksfläche
- 267m²
- Kellerfläche
- 100m²
- Terrassenfläche
- 1m²
Kosten
- Kaufpreis Brutto
- € 365.000,00
Verwaltung
- Verfügbar ab
- Nach Vereinbarung
Häuser zum Kaufen im Umkreis von Judenburg
Häuser zum Kaufen im Umkreis von Judenburg
Häuser zum Kaufen in Österreich
Andere Besucher suchen nach...
- Grundstücke kaufen in 3400 Weidlingbach
- Wohnungen kaufen in 4663 Laakirchen
- Häuser in 7471 Rechnitz
- Wohnungen in 2410 Hainburg an der Donau
- Häuser kaufen in 2432 Schwadorf
- Wohnungen kaufen in 3002 Purkersdorf
- Häuser in 3150 Wilhelmsburg
- Wohnungen kaufen in 3470 Engelmannsbrunn
- Grundstücke kaufen im Bezirk Mattersburg
- Grundstücke kaufen im Bezirk Gmunden