Sanierungsbedürftiges Haus auf großem Grundstück! Erwecken Sie es aus dem Dornröschenschlaf!
€ 180.000
€ 947 / m²
7341 Landsee
-
sofort
Beschreibung
Sanierungsbedürftiges Einfamilienhaus auf sehr großem Grundstück von ca. 3.305 m² in Landsee zu kaufen! In ruhiger Lage, im charmanten Ort Landsee, ein Ortsteil von Markt St. Martin, präsentiert sich dieses sanierungsbedürftige Einfamilienhaus und wartet auf seine Wiederbelebung. Landsee liegt im Naturpark Landseer Berge. Das zweigeschossige Haus mit großzügiger Wohnfläche bietet Ihnen die Möglichkeit, Ihre eigenen Wohnträume durch eine umfassende Sanierung zu verwirklichen. Mit ca. 3.305 m² Grundstücksfläche, einem weitläufigen Garten und der attraktiven Ruhelage eignet sich dieses Objekt ideal für Familien, die Wert auf viel Platz, Ruhe und Natur schätzen. HIERZU EINIGE DETAILS UND HIGHLIGHTS: > Grundstücksfläche - ca. 3.305...
Sanierungsbedürftiges Einfamilienhaus auf sehr großem Grundstück von ca. 3.305 m² in Landsee zu kaufen!
In ruhiger Lage, im charmanten Ort Landsee, ein Ortsteil von Markt St. Martin, präsentiert sich dieses sanierungsbedürftige Einfamilienhaus und wartet auf seine Wiederbelebung.
Landsee liegt im Naturpark Landseer Berge.
Das zweigeschossige Haus mit großzügiger Wohnfläche bietet Ihnen die Möglichkeit, Ihre eigenen Wohnträume durch eine umfassende Sanierung zu verwirklichen.
Mit ca. 3.305 m² Grundstücksfläche, einem weitläufigen Garten und der attraktiven Ruhelage eignet sich dieses Objekt ideal für Familien, die Wert auf viel Platz, Ruhe und Natur schätzen.
HIERZU EINIGE DETAILS UND HIGHLIGHTS:
> Grundstücksfläche - ca. 3.305 m²
> Bauland-Wohnen - ca. 910 m²
> landwirtschaftliche Fläche - ca. 2.395 m²
> gesamte Wohnfläche - ca. 190 m²
> Erdgeschoss - 101 m²
> Obergeschoss - 89 m²
> 7 Zimmer
> 2 großzügige Terrassen
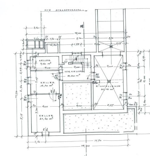
> großer Keller
> Dachboden
> Einzelöfen
> stark sanierungsbedürftig
RAUMAUFTEILUNG:
Erdgeschoss:
> Vorraum
> großzügiger Bereich für Küche, Wohn- und Essbereich
> Zimmer
> Badezimmer
> WC
> Stiegenaufgang
> Terrasse
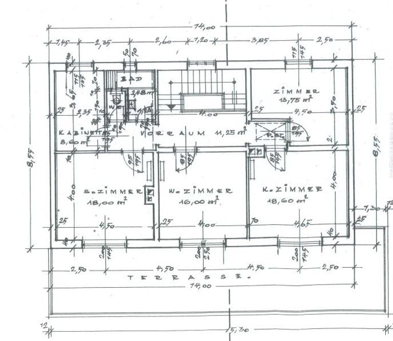
Obergeschoss:
> Vorraum
> 3 Zimmer jeweils mit einem eigenen Zugang zur Terrasse
> 2 weitere Zimmer
> Badezimmer
> WC
> Terrasse
Die wunderschöne Natur in der Umgebung ist ideal zum Entspannen, für Naturliebhaber und Sportbegeisterte, die Möglichkeiten sind vielfältig.
Bekannt ist Ort Landsee durch die Burgruine Landsee, eine der größten Burgruinen Mitteleuropas.
Viele Möglichkeiten für Aktivitäten in der Natur machen Landsee zu einem lebenswerten Ort.
Ob ausgedehnte Spaziergänge, Radtouren oder entspannte Stunden im Grünen - hier beginnt die Erholung direkt vor der Haustür.
Die ruhige Umgebung bietet ideale Bedingungen für Familien, Ruhesuchende und alle, die das Leben im Einklang mit der Natur schätzen.
In und in der Umgebung von Landsee finden Sie Lebensmittelgeschäfte, Volksschule, Kindergarten, Arzt, ....
Die Auffahrt zur Schnellstraße - S31 ist nur wenige Kilometer entfernt.
Die Bezirkshauptstadt Oberpullendorf, mit vielen Einkaufsmöglichkeiten, gastronomischer Vielfalt, verschiedenen Schultypen, Krankenhaus uvm. erreicht man in ca. 20 Minuten.
Die Landeshauptstadt Eisenstadt erreicht man in ca. 35 Minuten und die Stadtgrenze von Wien in ca. 1 Stunde.
Überzeugen Sie sich bei einer Besichtigung von diesem Objekt, ich freue mich auf Sie!
Die Angaben zum Objekt basieren auf uns zur Verfügung gestellten Informationen.
Eine Haftung unsererseits ist hierfür ausgeschlossen. Detailfragen werden im Zuge von Besichtigungen besprochen, geklärt oder nachgereicht.
Wir bitten um Verständnis, dass wir aufgrund der Nachweispflicht gegenüber dem Eigentümer, nur Anfragen mit vollständigen Kontaktdaten (Name, Anschrift, Tel.-Nr., E-Mail) beantworten können.
Wir informieren Sie darüber, dass wir bei diesem Objekt eine Doppelmaklertätigkeit ausüben. (§ 5 Abs. 3 MaklerG)
Dieses Angebot ist unverbindlich und einer Zwischenverwertung vorbehalten.
Nebenkosten Kaufvertrag:
3,5 % Grunderwerbsteuer
3 % Provision vom Kaufpreis zzgl. Mwst.
1,1 % Grundbuchseintragungsgebühr
Kaufvertragserrichtung und Treuhandschaft lt. Tarifordnung des Vertragserrichters
In ruhiger Lage, im charmanten Ort Landsee, ein Ortsteil von Markt St. Martin, präsentiert sich dieses sanierungsbedürftige Einfamilienhaus und wartet auf seine Wiederbelebung.
Landsee liegt im Naturpark Landseer Berge.
Das zweigeschossige Haus mit großzügiger Wohnfläche bietet Ihnen die Möglichkeit, Ihre eigenen Wohnträume durch eine umfassende Sanierung zu verwirklichen.
Mit ca. 3.305 m² Grundstücksfläche, einem weitläufigen Garten und der attraktiven Ruhelage eignet sich dieses Objekt ideal für Familien, die Wert auf viel Platz, Ruhe und Natur schätzen.
HIERZU EINIGE DETAILS UND HIGHLIGHTS:
> Grundstücksfläche - ca. 3.305 m²
> Bauland-Wohnen - ca. 910 m²
> landwirtschaftliche Fläche - ca. 2.395 m²
> gesamte Wohnfläche - ca. 190 m²
> Erdgeschoss - 101 m²
> Obergeschoss - 89 m²
> 7 Zimmer
> 2 großzügige Terrassen
> großer Keller
> Dachboden
> Einzelöfen
> stark sanierungsbedürftig
RAUMAUFTEILUNG:
Erdgeschoss:
> Vorraum
> großzügiger Bereich für Küche, Wohn- und Essbereich
> Zimmer
> Badezimmer
> WC
> Stiegenaufgang
> Terrasse
Obergeschoss:
> Vorraum
> 3 Zimmer jeweils mit einem eigenen Zugang zur Terrasse
> 2 weitere Zimmer
> Badezimmer
> WC
> Terrasse
Die wunderschöne Natur in der Umgebung ist ideal zum Entspannen, für Naturliebhaber und Sportbegeisterte, die Möglichkeiten sind vielfältig.
Bekannt ist Ort Landsee durch die Burgruine Landsee, eine der größten Burgruinen Mitteleuropas.
Viele Möglichkeiten für Aktivitäten in der Natur machen Landsee zu einem lebenswerten Ort.
Ob ausgedehnte Spaziergänge, Radtouren oder entspannte Stunden im Grünen - hier beginnt die Erholung direkt vor der Haustür.
Die ruhige Umgebung bietet ideale Bedingungen für Familien, Ruhesuchende und alle, die das Leben im Einklang mit der Natur schätzen.
In und in der Umgebung von Landsee finden Sie Lebensmittelgeschäfte, Volksschule, Kindergarten, Arzt, ....
Die Auffahrt zur Schnellstraße - S31 ist nur wenige Kilometer entfernt.
Die Bezirkshauptstadt Oberpullendorf, mit vielen Einkaufsmöglichkeiten, gastronomischer Vielfalt, verschiedenen Schultypen, Krankenhaus uvm. erreicht man in ca. 20 Minuten.
Die Landeshauptstadt Eisenstadt erreicht man in ca. 35 Minuten und die Stadtgrenze von Wien in ca. 1 Stunde.
Überzeugen Sie sich bei einer Besichtigung von diesem Objekt, ich freue mich auf Sie!
Die Angaben zum Objekt basieren auf uns zur Verfügung gestellten Informationen.
Eine Haftung unsererseits ist hierfür ausgeschlossen. Detailfragen werden im Zuge von Besichtigungen besprochen, geklärt oder nachgereicht.
Wir bitten um Verständnis, dass wir aufgrund der Nachweispflicht gegenüber dem Eigentümer, nur Anfragen mit vollständigen Kontaktdaten (Name, Anschrift, Tel.-Nr., E-Mail) beantworten können.
Wir informieren Sie darüber, dass wir bei diesem Objekt eine Doppelmaklertätigkeit ausüben. (§ 5 Abs. 3 MaklerG)
Dieses Angebot ist unverbindlich und einer Zwischenverwertung vorbehalten.
Nebenkosten Kaufvertrag:
3,5 % Grunderwerbsteuer
3 % Provision vom Kaufpreis zzgl. Mwst.
1,1 % Grundbuchseintragungsgebühr
Kaufvertragserrichtung und Treuhandschaft lt. Tarifordnung des Vertragserrichters
| Angaben gemäß gesetzlichem Erfordernis: | |||
| Heizwärmebedarf: | 206.7 kWh/(m²a) | ||
| Klasse Heizwärmebedarf: | F | ||
| Faktor Gesamtenergieeffizienz: | 3.24 | ||
| Klasse Faktor Gesamtenergieeffizienz: | E | ||
Objektdaten
Zustand
- Baujahr
- ca. 1963
Flächen
- Anzahl der Zimmer
- 7
- Anzahl der Terrassen
- 2
- Wohnfläche
- 190m²
- Grundstücksfläche
- 3.305m²
- Terrassenfläche
- 2m²
Kosten
- Kaufpreis
- € 180.000,00
Verwaltung
- Verfügbar ab
- sofort
Häuser zum Kaufen in Österreich
Häuser zum Kaufen in Österreich
Häuser zum Kaufen in Österreich
Andere Besucher suchen nach...
- Grundstücke kaufen in 3400 Weidlingbach
- Wohnungen kaufen in 4663 Laakirchen
- Häuser in 7471 Rechnitz
- Wohnungen in 2410 Hainburg an der Donau
- Häuser kaufen in 2432 Schwadorf
- Wohnungen kaufen in 3002 Purkersdorf
- Häuser in 3150 Wilhelmsburg
- Wohnungen kaufen in 3470 Engelmannsbrunn
- Grundstücke kaufen im Bezirk Mattersburg
- Grundstücke kaufen im Bezirk Gmunden