+ + + GEKÜHLTES ALTBAUBÜRO MIT BALKON + + + MAHÜ + + + U3 VOR DEM HAUS + + + (RESERVIERT)
Beschreibung
Objekt und Lage:
Nahezu Mitten auf Wiens bekanntester Einkaufsstraße, unmittelbar an der U-Bahn Station "Zieglergasse".
Eine hervorragende Infrastruktur mit Lokalen und Geschäften jeglichen Bedarfs zeichnen die Büroadresse aus.
Aufgrund der unmittelbaren Nähe zum Westbahnhof und der perfekten Erreichbarkeit der Wiener City, ist dieser Standort besonders beliebt.
Hinweis:
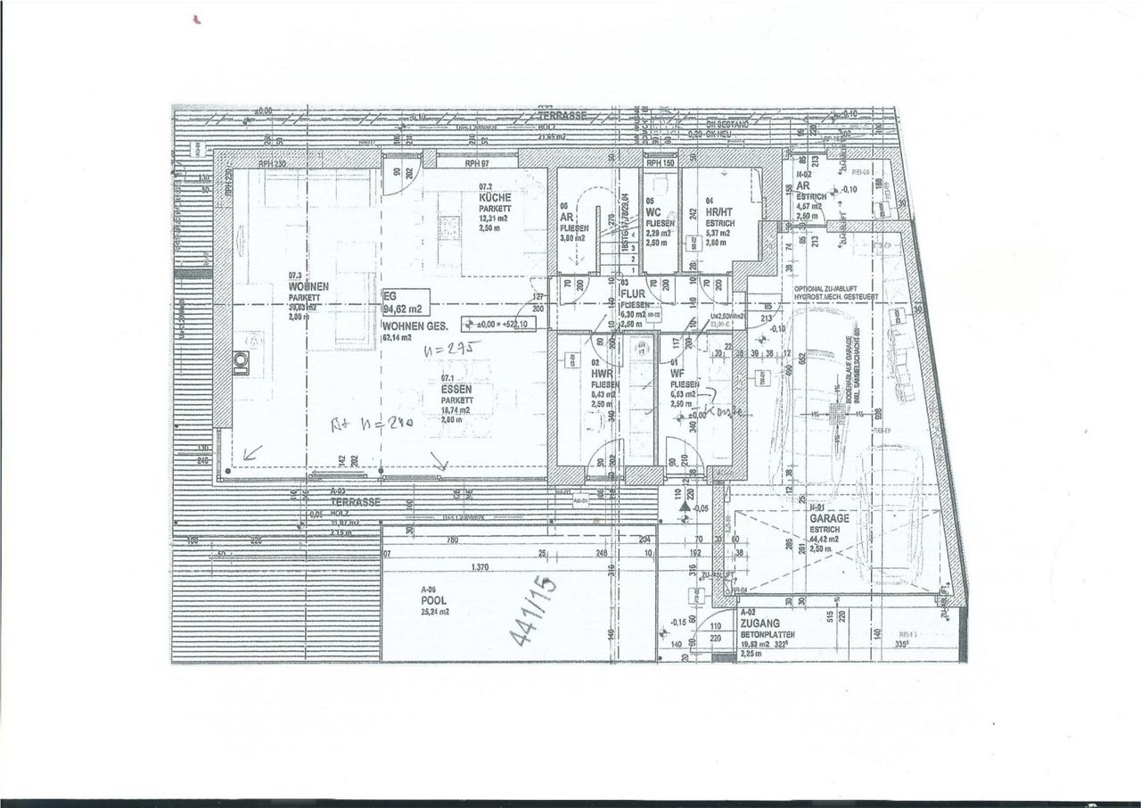
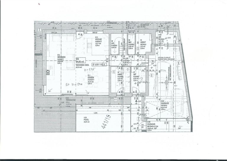
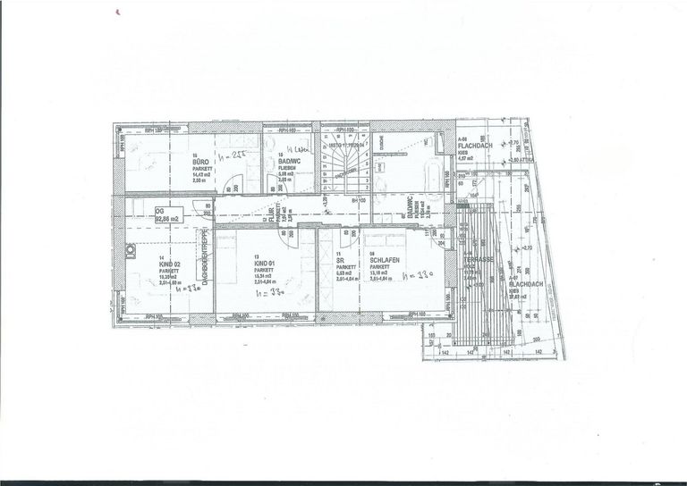
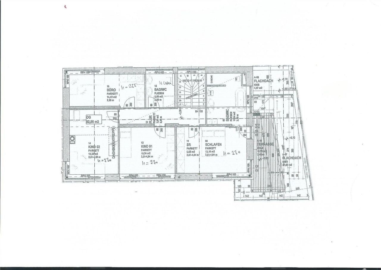
Der Plan zeigt mögliche Wandeinzüge, einen Belegungs- und Möblierungsvorschlag und ist nicht im Mietpreis enthalten.
Aktuell handelt es sich um OPEN-SPACE.
Die Fläche kann je nach Bedarf in Einzelbüros, Großraumbüros, Besprechungsräume, Gemeinschaftsbereiche oder Empfangszonen unterteilt werden.
Es kann ein angenehmes Arbeitsklima geschaffen werden und eignet...
Objekt und Lage:
Nahezu Mitten auf Wiens bekanntester Einkaufsstraße, unmittelbar an der U-Bahn Station "Zieglergasse".
Eine hervorragende Infrastruktur mit Lokalen und Geschäften jeglichen Bedarfs zeichnen die Büroadresse aus.
Aufgrund der unmittelbaren Nähe zum Westbahnhof und der perfekten Erreichbarkeit der Wiener City, ist dieser Standort besonders beliebt.
Hinweis:
Der Plan zeigt mögliche Wandeinzüge, einen Belegungs- und Möblierungsvorschlag und ist nicht im Mietpreis enthalten.
Aktuell handelt es sich um OPEN-SPACE.
Die Fläche kann je nach Bedarf in Einzelbüros, Großraumbüros, Besprechungsräume, Gemeinschaftsbereiche oder Empfangszonen unterteilt werden.
Es kann ein angenehmes Arbeitsklima geschaffen werden und eignet sich für Unternehmen, die Wert auf Flexibilität und Individualität legen.
Die Betriebskosten sind als zirka Angaben zu verstehen.
Mietvertrag: 10 Jahre befristet, 3 Jahre Kündigungsverzicht
Hinweis: beste Bonität ist für den Eigentümer Voraussetzung
Kaution: 6 Bruttomonatsmieten (€ 109.976,16)
Provision: 3 Bruttomonatsmieten (€ 54.988,08)
Monatsmiete: € 18.329,36 inkl. BK und Ust., exkl. Strom
+++ RESERVIERT
Ausstattung:
- open-Space derzeit
- öffenbare Fenster
- abgehängte Decke
- Kühlung
- Teeküchenanschlüsse
- getrennte Sanitäreinheiten
- Server-/Abstellraum
- ca. 13 m² Balkon
- Personenlift
- Fernwärme
- nicht barrierefrei
- Pläne: einerseits Bestand, andererseits Vorschlag
- Innenfotos werden nachgereicht
Energieausweis liegt vor:
Heizwärmebedarf: 191,5kWh/m².a
Verkehrsanbindung:
U-Bahn: U3, Autobus: 13A, 14A, individuell - Straßenanbindung B1, B221 Flughafen Wien Schwechat in ca. 25 Minuten erreichbar, Wien Zentrum in ca. 5 Minuten erreichbar
Alle Preisangaben verstehen sich zzgl. der gesetzl. Ust.
Alle Angaben ohne Gewähr, Irrtümer und Änderungen vorbehalten.
Wir weisen darauf hin, dass zwischen dem Vermittler und dem zu vermittelnden Dritten ein familiäres oder wirtschaftliches Naheverhältnis besteht.
Der Vermittler ist als Doppelmakler tätig.
DECUS Immobilien GmbH – Wir beleben Räume
Für weitere Informationen und Besichtigungen steht Ihnen gerne Frau Sonja Macho unter der Mobilnummer +43 664 44 53 56 1 und per E-Mail unter macho@decus.at persönlich zur Verfügung.
www.decus.at | office@decus.at
Wichtige Informationen
Bitte beachten Sie, dass per 13.06.2014 eine neue Richtlinie für Fernabsatz- und Auswärtsgeschäfte in Kraft getreten ist.
Ab 1.4.2024 entfallen die Grundbuchs- und Pfandrechtseintragungsgebühren vorübergehend für Eigenheime bis zu einer Bemessungsgrundlage von EUR 500.000,-. Voraussetzung ist das dringende Wohnbedürfnis, ausgenommen davon sind vererbte oder geschenkte Immobilien. Die Befreiung ist jedoch für den Einzelfall zu prüfen, DECUS Immobilien übernimmt hierzu keine Haftung.
Ab 01.07.2023 gilt das Erstauftraggeber-Prinzip bei Wohnungsmietverträgen, ausgenommen davon sind Dienst-/Natural-/Werkswohnungen. Wir dürfen gem. § 17 Maklergesetz darauf hinweisen, dass wir auf die Doppelmaklertätigkeit gem. § 5 Maklergesetz bei Wohnungsmietverträgen verzichten und nur noch einseitig tätig sind (bei den restlichen Vermittlungsarten nicht) und ein wirtschaftliches Naheverhältnis zu unseren Auftraggebern besteht.
Im Falle eines Abschlusses mit Ihnen oder einem von Ihnen namhaft gemachten Dritten bzw. bei beidseitiger Willensübereinstimmung beträgt unser Honorar (lt. Honorarverordnung für Immobilienmakler) 2 Bruttomonatsmieten (BMM) bei Dienst-/Natural-/Werkwohnungen sowie Suchaufträgen, 3 BMM bei Gewerbe-, PKW-, Keller- und Lagermietverträgen sowie bei Kaufobjekten 3 % des Kaufpreises, zuzüglich der gesetzlichen Umsatzsteuer.
Dieses Objekt wird Ihnen unverbindlich und freibleibend angeboten. Oben angeführte Angaben basieren auf Informationen und Unterlagen des Eigentümers und sind unsererseits ohne Gewähr.
Nähere Informationen sowie unsere AGBs und die Nebenkostenübersichtsblatt finden Sie auf unserer Homepage www.decus.at unter "Service" - "Rechtliches zum FAGG" sowie im Anhang der zugesendeten Objekt-Exposés!
Infrastruktur / Entfernungen
Gesundheit
Arzt <500m
Apotheke <500m
Klinik <500m
Krankenhaus <1.000m
Kinder & Schulen
Schule <500m
Kindergarten <500m
Universität <1.000m
Höhere Schule <1.000m
Nahversorgung
Supermarkt <500m
Bäckerei <500m
Einkaufszentrum <500m
Sonstige
Geldautomat <500m
Bank <500m
Post <500m
Polizei <500m
Verkehr
Bus <500m
U-Bahn <500m
Straßenbahn <500m
Bahnhof <500m
Autobahnanschluss <4.500m
Angaben Entfernung Luftlinie / Quelle: OpenStreetMap
Objektdaten
Zustand
- Alter
- ALTBAU
- HWB
- 191.5 kWh/m² pro Jahr
Flächen
- Nutzfläche
- 676m²
Kosten
- Miete
- € 13.190,97
- Betriebskosten
- € 1.481,45
- Heizkosten
- € 602,05
Büros zum Mieten in Österreich
- Bezirk Gemeindebezirk Neubau
- Bezirk Gemeindebezirk Neubau
- Bezirk Gemeindebezirk Neubau
- Bezirk Gemeindebezirk Mariahilf
- Bezirk Gemeindebezirk Mariahilf
- Bezirk Gemeindebezirk Mariahilf
- Bezirk Gemeindebezirk Rudolfsheim-Fünfhaus
- Bezirk Gemeindebezirk Rudolfsheim-Fünfhaus
- Bezirk Gemeindebezirk Rudolfsheim-Fünfhaus
- Bezirk Gemeindebezirk Innere Stadt
Büros zum Mieten in Österreich
Büros zum Mieten in Österreich
Andere Besucher suchen nach...
- Grundstücke kaufen in 3400 Weidlingbach
- Wohnungen kaufen in 4663 Laakirchen
- Häuser in 7471 Rechnitz
- Wohnungen in 2410 Hainburg an der Donau
- Häuser kaufen in 2432 Schwadorf
- Wohnungen kaufen in 3002 Purkersdorf
- Häuser in 3150 Wilhelmsburg
- Wohnungen kaufen in 3470 Engelmannsbrunn
- Grundstücke kaufen im Bezirk Mattersburg
- Grundstücke kaufen im Bezirk Gmunden