Grundstück mit Altbestand - Rarität am Wolfgangsee
Beschreibung
Zum Verkauf steht ein Grundstück mit bestehendem Altgebäude in attraktiver Wohnlage von St. Gilgen am Wolfgangsee. Das Bestandsobjekt befindet sich in generalsanierungsbedürftigem Zustand.
Gemäß den geltenden Bebauungsbestimmungen ist die Errichtung eines Einfamilienhauses vorgesehen. Bei Neuerrichtung eröffnet sich die Möglichkeit, die Liegenschaft auch als Zweitwohnsitz zu nutzen – ein besonders wertvoller Aspekt in dieser begehrten Region des Salzkammergutes.
Dank der Südwest-Ausrichtung genießt das Grundstück eine hervorragende Sonneneinstrahlung bis in die Abendstunden – perfekte Voraussetzungen für Terrassen, Gartenflächen und großzügige Wohnkonzepte mit viel Tageslicht.
Diese Rahmenbedingungen bieten ausreichend Spielraum für die Planung eines hochwertigen Wohnhauses, das sich harmonisch in die Umgebung...
Zum Verkauf steht ein Grundstück mit bestehendem Altgebäude in attraktiver Wohnlage von St. Gilgen am Wolfgangsee. Das Bestandsobjekt befindet sich in generalsanierungsbedürftigem Zustand.
Gemäß den geltenden Bebauungsbestimmungen ist die Errichtung eines Einfamilienhauses vorgesehen. Bei Neuerrichtung eröffnet sich die Möglichkeit, die Liegenschaft auch als Zweitwohnsitz zu nutzen – ein besonders wertvoller Aspekt in dieser begehrten Region des Salzkammergutes.
Dank der Südwest-Ausrichtung genießt das Grundstück eine hervorragende Sonneneinstrahlung bis in die Abendstunden – perfekte Voraussetzungen für Terrassen, Gartenflächen und großzügige Wohnkonzepte mit viel Tageslicht.
Diese Rahmenbedingungen bieten ausreichend Spielraum für die Planung eines hochwertigen Wohnhauses, das sich harmonisch in die Umgebung einfügt.
Fakten:
Bebauungsgrundlage: GRZ 0,25
Traufenhöhe: 3/4
Zweitwohnsitzmöglichkeit: ist gegeben
Gerne zeige ich Ihnen die Immobilie bei einem persönlichen Besichtigungstermin.
Die Ausrichtung des Grundstücks nach Südwesten sorgt für optimale Sonnenverhältnisse bis in die Abendstunden.
In einer der begehrtesten Regionen des Salzkammerguts bietet sich hier die seltene Gelegenheit, einen hochwertigen
Wohnsitz in unmittelbarer Seenähe zu realisieren. Das Grundstück verbindet Ruhe, Natur und Exklusivität mit der
Möglichkeit, ein neues Einfamilienhaus nach individuellen Vorstellungen zu errichten.
Das Bestandsobjekt befindet sich in generalsanierungsbedürftigem Zustand.
Gemäß den geltenden Bebauungsbestimmungen ist die Errichtung eines Einfamilienhauses vorgesehen.
Bei Neuerrichtung besteht die Möglichkeit, die Liegenschaft als Zweitwohnsitz zu nutzen – ein besonders wertvoller
Aspekt für Käufer, die einen privaten Rückzugsort am Wolfgangsee suchen.
harmonisch in die Umgebung einfügt.
Der Vermittler ist als Doppelmakler tätig.
Infrastruktur / Entfernungen
Gesundheit
Arzt <500m
Apotheke <500m
Kinder & Schulen
Schule <500m
Kindergarten <5.500m
Universität <9.000m
Nahversorgung
Supermarkt <500m
Bäckerei <500m
Sonstige
Bank <500m
Geldautomat <500m
Post <5.500m
Polizei <500m
Verkehr
Bus <500m
Bahnhof <4.000m
Autobahnanschluss <8.000m
Angaben Entfernung Luftlinie / Quelle: OpenStreetMap
Objektdaten
Ausstattung
- Kamin
- Bad mit Badewanne
- Bad mit Fenster
- Elektrische Befeuerung
- Satteldach
Zustand
- Zustand
- SANIERUNGSBEDUERFTIG
- Baujahr
- 1972
- Alter
- NEUBAU
Flächen
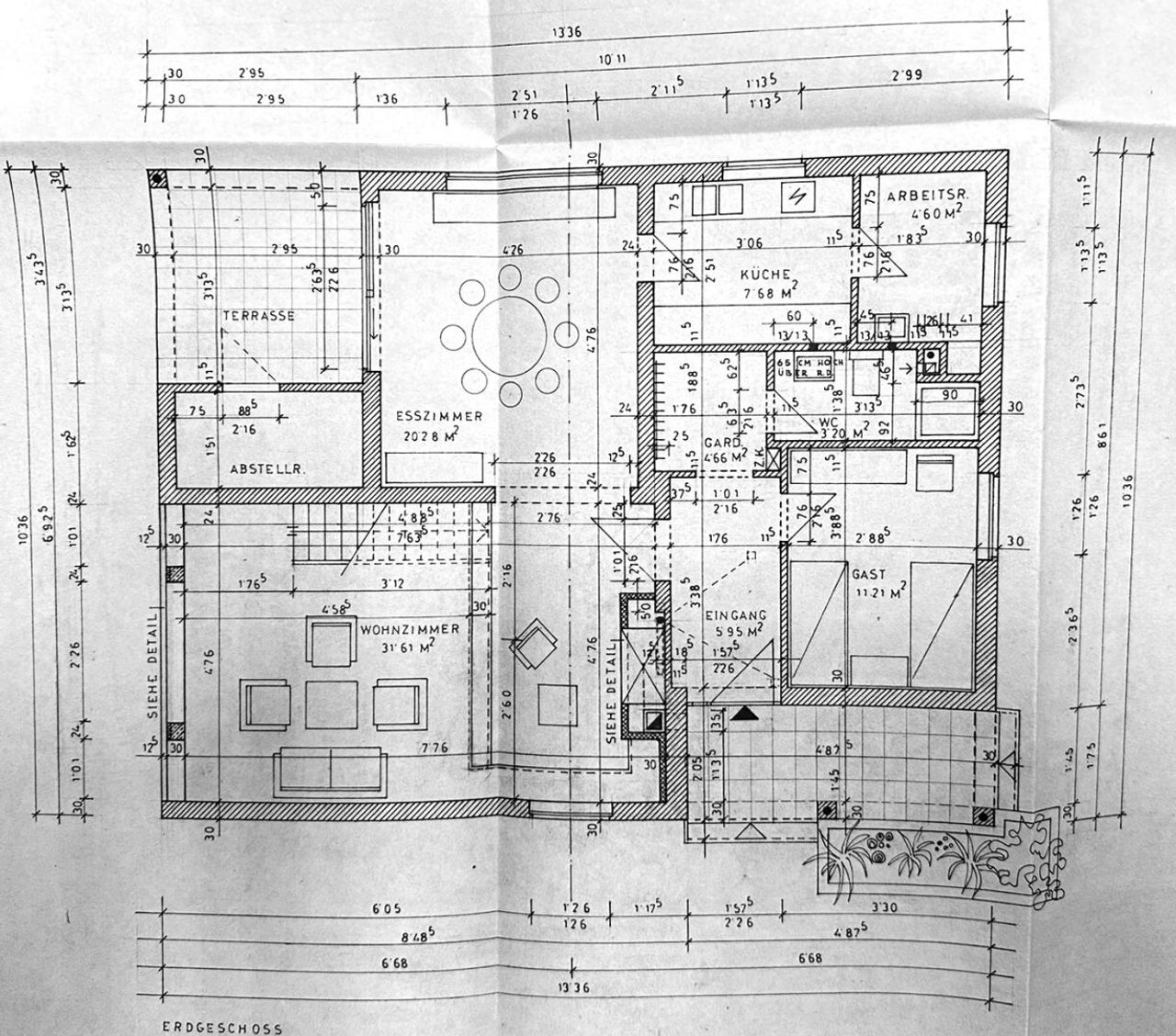
- Anzahl der Zimmer
- 5
- Anzahl der Terrassen
- 1
- Stellplätze
- 2
- Wohnfläche
- 138m²
- Grundstücksfläche
- 680m²
- Gartenfläche
- 516m²
- Terrassenfläche
- 1m²
Kosten
- Kaufpreis Brutto
- € 1.750.000,00
- Betriebskosten
- € 78,42
- Heizkosten
- € 200,00
Verwaltung
- Ferienimmobilie
- Ja
Häuser zum Kaufen im Umkreis von Sankt Gilgen
Häuser zum Kaufen im Umkreis von Sankt Gilgen
Häuser zum Kaufen in Österreich
Andere Besucher suchen nach...
- Grundstücke kaufen in 3400 Weidlingbach
- Wohnungen kaufen in 4663 Laakirchen
- Häuser in 7471 Rechnitz
- Wohnungen in 2410 Hainburg an der Donau
- Häuser kaufen in 2432 Schwadorf
- Wohnungen kaufen in 3002 Purkersdorf
- Häuser in 3150 Wilhelmsburg
- Wohnungen kaufen in 3470 Engelmannsbrunn
- Grundstücke kaufen im Bezirk Mattersburg
- Grundstücke kaufen im Bezirk Gmunden