HAMMER PREIS! 130M²-FAMILIENHIT! NEUWERTIG! BJ 2021
€ 398.000
€ 3.062 / m²
9330 Althofen
-
ca. 2021
-
Sep. 2024
Beschreibung
NICHT MEHR VERFÜGBAR!! HEISER IMMOBILIEN TREUHAND bietet Ihnen auch mit diesem absolut fairen Exklusivangebot die perfekte, fast neue Familienoase in sonnigster und ruhiger Lage im entzückenden Ferien-, Erholungs- und Kurort Treibach - Althofen. Dieses Reihenhaus am Ende einer äußerst gepflegten und erst 2021 fertig gestellten, modernen und optisch ansprechenden Reihenhausanlage überzeugt durch beste bauliche Substanz, durchdachte Raumaufteilung und moderner Ausstattung mit fast verschwenderisch viel Sonneneinstrahlung in das Gebäude und auf das gesamte Grundstück. Fußläufig oder in wenigen Fahrminuten erreichen Sie das Ortszentrum und somit sämtliche wichtigen Infrastruktur- Einrichtungen. In unmittelbarer Nähe kommen Wasserfans am Längsee und fast daneben die Golf-...
NICHT MEHR VERFÜGBAR!! HEISER IMMOBILIEN TREUHAND bietet Ihnen auch mit diesem absolut fairen Exklusivangebot die perfekte, fast neue Familienoase in sonnigster und ruhiger Lage im entzückenden Ferien-, Erholungs- und Kurort Treibach - Althofen. Dieses Reihenhaus am Ende einer äußerst gepflegten und erst 2021 fertig gestellten, modernen und optisch ansprechenden Reihenhausanlage überzeugt durch beste bauliche Substanz, durchdachte Raumaufteilung und moderner Ausstattung mit fast verschwenderisch viel Sonneneinstrahlung in das Gebäude und auf das gesamte Grundstück. Fußläufig oder in wenigen Fahrminuten erreichen Sie das Ortszentrum und somit sämtliche wichtigen Infrastruktur- Einrichtungen. In unmittelbarer Nähe kommen Wasserfans am Längsee und fast daneben die Golf- Fans am 18- Loch Golf Champion Course "Jacques Lemans" auf Ihre Kosten. Die derzeitigen monatlichen Gesamtkosten für die Immobilie (Strom, Wasser/Kanal/Müllentsorgung, Gebäudeversicherung samt Rücklagen) belaufen sich aktuell auf unglaubliche EURO 230, --! Für eine unverbindliche Besichtigung steht Ihnen Herr Wolfgang Heiser, telefonisch erreichbar unter 0650 2249824, gerne zur Verfügung.
| Angaben gemäß gesetzlichem Erfordernis: | |||
| Heizwärmebedarf: | 45.8 kWh/(m²a) | ||
| Klasse Heizwärmebedarf: | B | ||
| Faktor Gesamtenergieeffizienz: | 0.69 | ||
| Klasse Faktor Gesamtenergieeffizienz: | A+ | ||
Objektdaten
Ausstattung
- WG geeignet
- Räume veränderbar
- Gartennutzung
- Kabel/SAT-TV
- Nicht unterkellert
- Zentralheizung
- Erdwärme
- Neubaustandard
- Bad
- Boden
- Bus
- Eisenbahn
- Geschirrspüler
- Glaskeramikfeld
- Grüne Lage
- Küche Möbliert
- Küche
- Ländliche Lage
- Sonstiges
- Räume veränderbar
- Kabel/SAT-TV
- Schnellbahn
- Sonnenschutz
- Sonnige Lage
- Stadtrand
- Zentralheizung mit Wärmepumpe
Zustand
- Zustand
- GEPFLEGT
- Baujahr
- ca. 2021
- Alter
- NEUBAU
Flächen
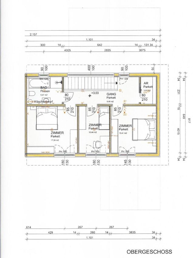
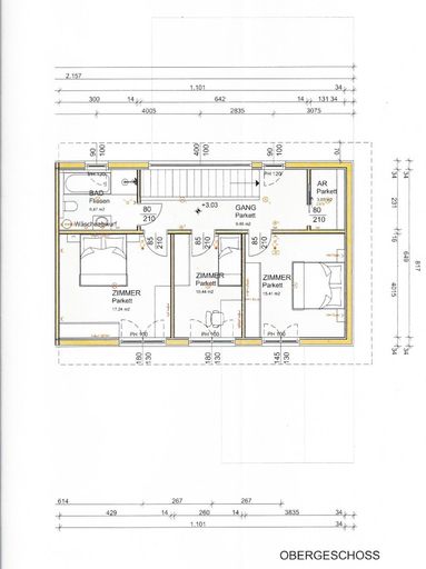
- Anzahl der Zimmer
- 4.5
- Anzahl der Schlafzimmer
- 3
- Anzahl der Badezimmer
- 1
- Anzahl der sep. WCs
- 2
- Anzahl der Terrassen
- 1
- Stellplätze
- 4
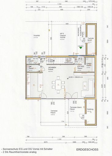
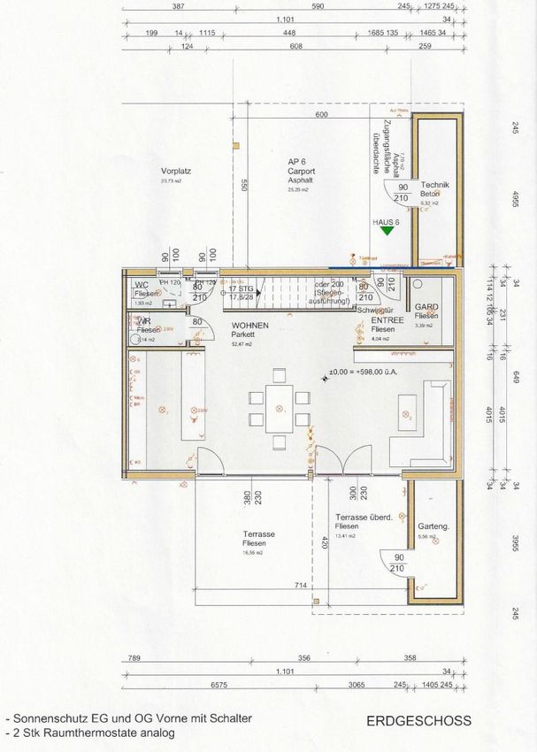
- Wohnfläche
- 130m²
- Grundstücksfläche
- 330m²
- Terrassenfläche
- 1m²
Kosten
- Kaufpreis
- € 398.000,00
Verwaltung
- Verfügbar ab
- Sep. 2024
Häuser zum Kaufen im Umkreis von Althofen
Häuser zum Kaufen im Umkreis von Althofen
Häuser zum Kaufen in Österreich
Andere Besucher suchen nach...
- Grundstücke kaufen in 3400 Weidlingbach
- Wohnungen kaufen in 4663 Laakirchen
- Häuser in 7471 Rechnitz
- Wohnungen in 2410 Hainburg an der Donau
- Häuser kaufen in 2432 Schwadorf
- Wohnungen kaufen in 3002 Purkersdorf
- Häuser in 3150 Wilhelmsburg
- Wohnungen kaufen in 3470 Engelmannsbrunn
- Grundstücke kaufen im Bezirk Mattersburg
- Grundstücke kaufen im Bezirk Gmunden