Preisreduktion! Haus in ruhiger Lage mit Erweiterungsmöglichkeit und großem Nebengebäude!
€ 224.000
€ 2.265 / m²
8345 Straden
-
sofort
Beschreibung
Sonnige Ruhelage trifft Freizeitparadies! Das Einfamilienhaus hat momentan 98,98 m² barrierefreie Wohnfläche im Erdgeschoss. Es besteht die Möglichkeit die Wohnfläche durch Ausbau des Dachbodens bzw. durch einen Zubau zu verdoppeln. Das Gebäude wurde 1985 in Ziegelmassiv Bauweise errichtet. Ein großes Nebengebäude kann als Abstellplatz für 2 PKW und zusätzlich als Hobbywerkstätte und Lagerraum etc. genutzt werden. Das Gebäude ist voll unterkellert und wird mittel einer Öl- und Feststoffheizung zentral beheizt. Altersgemäß hat das Haus einen gewissen Modernisierungsbedarf. Die Liegenschaft überzeugt durch ihre einzigartige Lage: • Osten: direkt am Waldrand – ideal für Spaziergänge und Naturfreunde • Süden & Westen: Freiland...
Sonnige Ruhelage trifft Freizeitparadies!
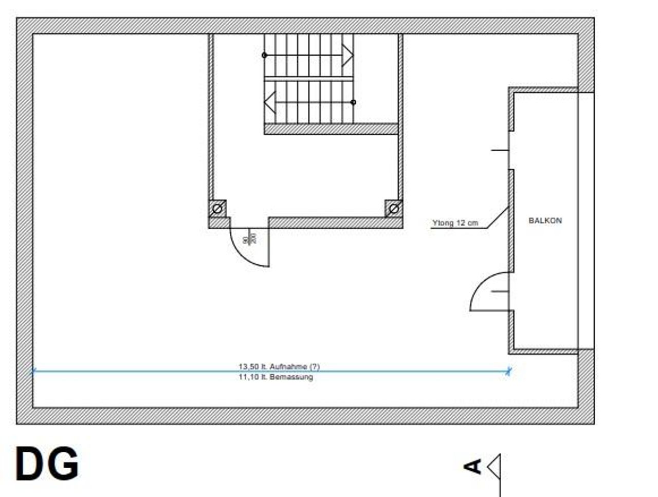
Das Einfamilienhaus hat momentan 98,98 m² barrierefreie Wohnfläche im Erdgeschoss. Es besteht die Möglichkeit die Wohnfläche durch Ausbau des Dachbodens bzw. durch einen Zubau zu verdoppeln. Das Gebäude wurde 1985 in Ziegelmassiv Bauweise errichtet.
Ein großes Nebengebäude kann als Abstellplatz für 2 PKW und zusätzlich als Hobbywerkstätte und Lagerraum etc. genutzt werden.
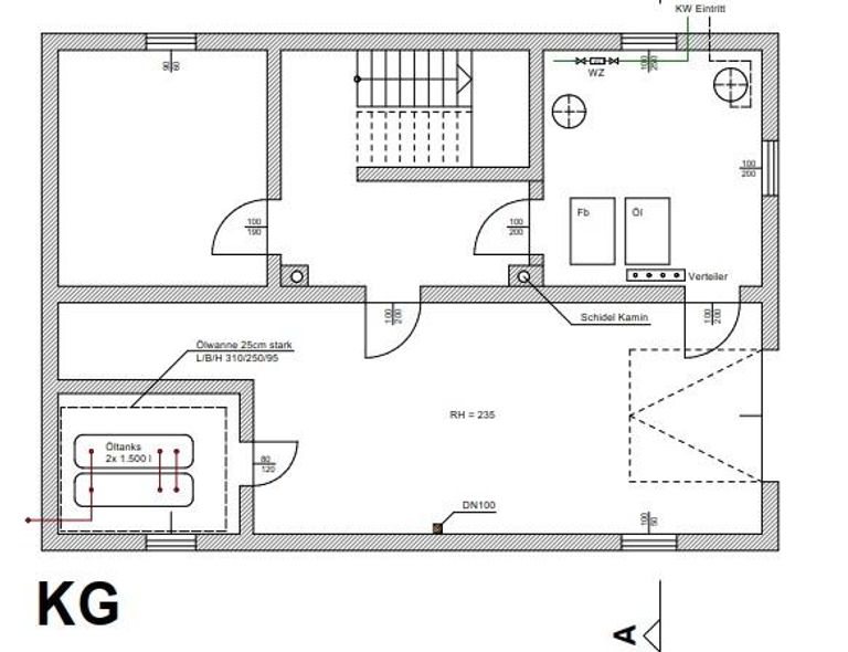
Das Gebäude ist voll unterkellert und wird mittel einer Öl- und Feststoffheizung zentral beheizt. Altersgemäß hat das Haus einen gewissen Modernisierungsbedarf.
Die Liegenschaft überzeugt durch ihre einzigartige Lage:
• Osten: direkt am Waldrand – ideal für Spaziergänge und Naturfreunde
• Süden & Westen: Freiland – unverbaubarer Ausblick und ganztägige Sonne
• Nachbarschaft: nur zwei Häuser in der Nähe, dennoch volle Privatsphäre
• Freizeitangebot: Nähe zu Thermenanlagen, Golfplätzen Klöch und Bad Gleichenberg, direkter Anschluss an das Radwegnetz sowie
zahlreiche Wander- und Ausflugsmöglichkeiten inmitten der sanften Hügellandschaft der Südoststeiermark; u.v.mehr.
Eckdaten:
• Wohnfläche Bestand: ca. 98,98 m²
• Grundstücksgröße: ca. 989 m²
• Voll unterkellert mit eigener Garage für Rasentraktor und Kleingeräte
• Dachgeschoß mit Loggia zum Ausbau vorbereitet
• Nebenhaus mit Platz für 2 PKW-Stellplätze, ideal auch als Atelier nutzbar
• Erweiterungs- und Ausbaumöglichkeit um 100 % gegeben
Ausstattung:
• Heizung mit Öl und festen Brennstoffen
• 200-Liter-Warmwasserboiler
• Möblierte, voll ausgestattete Küche mit E-Herd und zusätzlichem Holz-Lohberger-Herd
• Eigenwasserversorgung über Grundstücksbrunnen möglich
• Holzvorrat für autarke Beheizung vorhanden
Zukunftssicher & autark:
• Möglichkeit für eine Photovoltaikanlage mit Wärmepumpen-Kombination
• Autarke Energieversorgung auch unabhängig von Heizöl realisierbar
Diese Immobilie bietet die seltene Gelegenheit, in ruhiger, sonniger Lage zu wohnen und gleichzeitig großzügige Ausbaumöglichkeiten zu nutzen. Perfekt für Naturliebhaber, Familien oder Individualisten, die Unabhängigkeit und Gestaltungsfreiheit schätzen – und zugleich die Vorzüge von sportlichen Aktivitäten, wie Radfahren und Wanderwege, Golfplätze, Thermenanlagen u.v.mehr, direkt vor der Haustüre genießen möchten.
Für weitere Informationen bzw. für die Vereinbarung eines Besichtigungstermins stehe ich Ihnen gerne zur Verfügung.
Bitte beachten Sie, dass wir aufgrund unserer Nachweispflicht dem Abgeber gegenüber nur Anfragen beantworten können, die Ihren Namen, die vollständige Anschrift und eine Telefonnummer enthalten.
Das Einfamilienhaus hat momentan 98,98 m² barrierefreie Wohnfläche im Erdgeschoss. Es besteht die Möglichkeit die Wohnfläche durch Ausbau des Dachbodens bzw. durch einen Zubau zu verdoppeln. Das Gebäude wurde 1985 in Ziegelmassiv Bauweise errichtet.
Ein großes Nebengebäude kann als Abstellplatz für 2 PKW und zusätzlich als Hobbywerkstätte und Lagerraum etc. genutzt werden.
Das Gebäude ist voll unterkellert und wird mittel einer Öl- und Feststoffheizung zentral beheizt. Altersgemäß hat das Haus einen gewissen Modernisierungsbedarf.
Die Liegenschaft überzeugt durch ihre einzigartige Lage:
• Osten: direkt am Waldrand – ideal für Spaziergänge und Naturfreunde
• Süden & Westen: Freiland – unverbaubarer Ausblick und ganztägige Sonne
• Nachbarschaft: nur zwei Häuser in der Nähe, dennoch volle Privatsphäre
• Freizeitangebot: Nähe zu Thermenanlagen, Golfplätzen Klöch und Bad Gleichenberg, direkter Anschluss an das Radwegnetz sowie
zahlreiche Wander- und Ausflugsmöglichkeiten inmitten der sanften Hügellandschaft der Südoststeiermark; u.v.mehr.
Eckdaten:
• Wohnfläche Bestand: ca. 98,98 m²
• Grundstücksgröße: ca. 989 m²
• Voll unterkellert mit eigener Garage für Rasentraktor und Kleingeräte
• Dachgeschoß mit Loggia zum Ausbau vorbereitet
• Nebenhaus mit Platz für 2 PKW-Stellplätze, ideal auch als Atelier nutzbar
• Erweiterungs- und Ausbaumöglichkeit um 100 % gegeben
Ausstattung:
• Heizung mit Öl und festen Brennstoffen
• 200-Liter-Warmwasserboiler
• Möblierte, voll ausgestattete Küche mit E-Herd und zusätzlichem Holz-Lohberger-Herd
• Eigenwasserversorgung über Grundstücksbrunnen möglich
• Holzvorrat für autarke Beheizung vorhanden
Zukunftssicher & autark:
• Möglichkeit für eine Photovoltaikanlage mit Wärmepumpen-Kombination
• Autarke Energieversorgung auch unabhängig von Heizöl realisierbar
Diese Immobilie bietet die seltene Gelegenheit, in ruhiger, sonniger Lage zu wohnen und gleichzeitig großzügige Ausbaumöglichkeiten zu nutzen. Perfekt für Naturliebhaber, Familien oder Individualisten, die Unabhängigkeit und Gestaltungsfreiheit schätzen – und zugleich die Vorzüge von sportlichen Aktivitäten, wie Radfahren und Wanderwege, Golfplätze, Thermenanlagen u.v.mehr, direkt vor der Haustüre genießen möchten.
Für weitere Informationen bzw. für die Vereinbarung eines Besichtigungstermins stehe ich Ihnen gerne zur Verfügung.
Bitte beachten Sie, dass wir aufgrund unserer Nachweispflicht dem Abgeber gegenüber nur Anfragen beantworten können, die Ihren Namen, die vollständige Anschrift und eine Telefonnummer enthalten.
| Angaben gemäß gesetzlichem Erfordernis: | |||
| Heizwärmebedarf: | 230.0 kWh/(m²a) | ||
| Klasse Heizwärmebedarf: | F | ||
| Faktor Gesamtenergieeffizienz: | 2.52 | ||
| Klasse Faktor Gesamtenergieeffizienz: | E | ||
Objektdaten
Ausstattung
- Teilmöbliert
- Rollstuhlgerecht
- Kabel/SAT-TV
- Unterkellert
- Zentralheizung
- Befeuerung mit Öl
- Massiv Bauweise
- Zeigelmassiv
- Behindertengerecht
- Grüne Lage
- Ländliche Lage
- Kabel/SAT-TV
- Sonnige Lage
- Teilmöbliert
- Zentralheizung mit Öl
Dokumente / Links
Zustand
- Baujahr
- ca. 1985
Flächen
- Anzahl der Zimmer
- 4
- Anzahl der Schlafzimmer
- 2
- Anzahl der Badezimmer
- 1
- Anzahl der sep. WCs
- 1
- Anzahl der Balkone
- 1
- Stellplätze
- 3
- Wohnfläche
- 99m²
- Grundstücksfläche
- 989m²
Kosten
- Kaufpreis
- € 224.000,00
Verwaltung
- Verfügbar ab
- sofort
Häuser zum Kaufen im Umkreis von Straden
Häuser zum Kaufen im Umkreis von Straden
Häuser zum Kaufen in Österreich
Andere Besucher suchen nach...
- Grundstücke kaufen in 3400 Weidlingbach
- Wohnungen kaufen in 4663 Laakirchen
- Häuser in 7471 Rechnitz
- Wohnungen in 2410 Hainburg an der Donau
- Häuser kaufen in 2432 Schwadorf
- Wohnungen kaufen in 3002 Purkersdorf
- Häuser in 3150 Wilhelmsburg
- Wohnungen kaufen in 3470 Engelmannsbrunn
- Grundstücke kaufen im Bezirk Mattersburg
- Grundstücke kaufen im Bezirk Gmunden