Traumhaus auf Traumgrund mitten in Tulln
€ 1.185.000
€ 7.500 / m²
3430 Tulln an der Donau
Beschreibung
Zum Verkauf kommt ein Architekten-Traumhaus in bester Tullner Stadtlage! Der renommierte Tullnerfelder Baumeister THOMES-HAUS, Spezialist für Einfamilienhäuser, hat für SIE ein maßgeschneidertes Traumhaus entworfen, welches wir hier anbieten dürfen, und zwar auf einem herrlichen Grundstück mitten in Tulln, nur wenige hundert Meter vom Tullner Hauptbahnhof entfernt, umgeben von bester Infrastruktur! Das knapp 160m² große Architektenhaus in bewährter THOMES-Qualität mit umfangreicher Grundausstattung wie JOSKO-Fenster (je nach Wunsch mit Rollläden oder Raffstores), einer Deckenkühlung, Photovoltaik-Anlage, Wärmepumpe, Fußbodenheizung, kontrollierter Wohnraumlüftung und überdachter Terrasse wird in 2 Varianten angeboten, nämlich ausbau- oder schlüsselfertig, und kann von Ihnen noch mitgeplant und mitgestaltet werden! Selbst die...
Zum Verkauf kommt ein Architekten-Traumhaus in bester Tullner Stadtlage!
Der renommierte Tullnerfelder Baumeister THOMES-HAUS, Spezialist für Einfamilienhäuser, hat für SIE ein maßgeschneidertes Traumhaus entworfen, welches wir hier anbieten dürfen, und zwar auf einem herrlichen Grundstück mitten in Tulln, nur wenige hundert Meter vom Tullner Hauptbahnhof entfernt, umgeben von bester Infrastruktur!
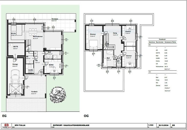
Das knapp 160m² große Architektenhaus in bewährter THOMES-Qualität mit umfangreicher Grundausstattung wie JOSKO-Fenster (je nach Wunsch mit Rollläden oder Raffstores), einer Deckenkühlung, Photovoltaik-Anlage, Wärmepumpe, Fußbodenheizung, kontrollierter Wohnraumlüftung und überdachter Terrasse wird in 2 Varianten angeboten, nämlich ausbau- oder schlüsselfertig, und kann von Ihnen noch mitgeplant und mitgestaltet werden! Selbst die Größe kann gegen einen kleinen Aufpreis noch erweitert werden.
Je nach Ausbau- und Ausstattungsvariante ist dieses Traumhaus, inklusive Fundamentplatte, kompletter Kanalverlegung und der bereits erwähnten umfassenden im Basispaket enthaltenen Komponenten ab ca. € 636.000,- erhältlich. Eine umfangreiche Leistungs- bzw. Ausstattungsbeschreibung sowie den Grundriss des Hauses erhalten Sie nach Ihrer Anfrage unter Angabe Ihres Namens und Ihrer Telefonnummer.
THOMES-gemäß ist der Sickerschacht ebenso im Preis inkludiert wie der Estrich, Außen- und Innenfensterbretter, einer Vollwärmeschutzfassade (20cm inkl. Edelputz), der Leerverrohrung für ein Internetkabel schon ab Grundstücksgrenze sowie das Einziehen des vom Internetanbieters beigestellten Kabels (!).
Natürlich können Sie das Haus auch komplett schlüsselfertig übernehmen, inkl. Garage, fertiger Terrasse und gepflasterter Einfahrt.
Das ca. 700m² große, ebene Grundstück befindet sich in zentraler Tullner Lage und ist bereits eingezäunt bzw. mit einer Mauer umgeben. 2 umliegende Geschäftsgebäude schirmen die Liegenschaft von der Straße ab und sorgen nicht nur für angenehme Ruhe, sondern auch für herrliche Intimsphäre.
Der Preis für das Grundstück alleine beträgt € 549.000,-.
Die Infrastruktur könnte besser nicht sein, Einkaufsmöglichkeiten sind im wahrsten Sinne des Wortes vor der Tür und der Tullner Hauptbahnhof mit unzähligen Verbindungen nach Wien ist in wenigen Gehminuten erreichbar, da dieser nur ein paar hundert Meter entfernt liegt. Apotheke, Trafik und Ärztezentrum sind im Umkreis von ca. 100 Metern erreichbar und wer auf Fitness steht, kann diese im fußläufig erreichbaren Studio verbessern. Ein Bäcker ist ebenso vor der Haustür wie ein Café und ein Bankomat.
Wer in den Westen Wiens muss, kann den vom nur ca. 10 Minuten entfernten Tullnerfelder Bahnhof (Pixendorf) nutzen, wo die Züge in nur ca. 14 Minuten nach Meidling fahren.
Sie haben weiteres Interesse an dieser Immobilie? Das sind die weiteren Schritte:
- Bitte fragen Sie die gewünschte Immobilie über die folgende Anfragemaske an und geben Sie unbedingt Ihre Mailadresse, Ihren Namen und Ihre Telefonnummer an, nur dann können wir Ihre Anfrage bearbeiten und Sie kontaktieren!
- Sie bekommen dann unverbindlich und automatisiert per Mail ein Immobilienangebot (Exposé und zusätzliche Unterlagen) zugesendet.
- Bitte öffnen Sie dieses Angebot, indem Sie zuerst auf „ZUM IMMOBILIEN-ANGEBOT", danach auf "Angebot sofort erhalten" und letztlich auf „Angebot herunterladen“ klicken.
- Danach kontaktieren wir Sie gerne telefonisch betreffend einer Besichtigung.
- Ihnen entstehen bei dieser Vorgangsweise keinerlei Kosten!
Der renommierte Tullnerfelder Baumeister THOMES-HAUS, Spezialist für Einfamilienhäuser, hat für SIE ein maßgeschneidertes Traumhaus entworfen, welches wir hier anbieten dürfen, und zwar auf einem herrlichen Grundstück mitten in Tulln, nur wenige hundert Meter vom Tullner Hauptbahnhof entfernt, umgeben von bester Infrastruktur!
Das knapp 160m² große Architektenhaus in bewährter THOMES-Qualität mit umfangreicher Grundausstattung wie JOSKO-Fenster (je nach Wunsch mit Rollläden oder Raffstores), einer Deckenkühlung, Photovoltaik-Anlage, Wärmepumpe, Fußbodenheizung, kontrollierter Wohnraumlüftung und überdachter Terrasse wird in 2 Varianten angeboten, nämlich ausbau- oder schlüsselfertig, und kann von Ihnen noch mitgeplant und mitgestaltet werden! Selbst die Größe kann gegen einen kleinen Aufpreis noch erweitert werden.
Je nach Ausbau- und Ausstattungsvariante ist dieses Traumhaus, inklusive Fundamentplatte, kompletter Kanalverlegung und der bereits erwähnten umfassenden im Basispaket enthaltenen Komponenten ab ca. € 636.000,- erhältlich. Eine umfangreiche Leistungs- bzw. Ausstattungsbeschreibung sowie den Grundriss des Hauses erhalten Sie nach Ihrer Anfrage unter Angabe Ihres Namens und Ihrer Telefonnummer.
THOMES-gemäß ist der Sickerschacht ebenso im Preis inkludiert wie der Estrich, Außen- und Innenfensterbretter, einer Vollwärmeschutzfassade (20cm inkl. Edelputz), der Leerverrohrung für ein Internetkabel schon ab Grundstücksgrenze sowie das Einziehen des vom Internetanbieters beigestellten Kabels (!).
Natürlich können Sie das Haus auch komplett schlüsselfertig übernehmen, inkl. Garage, fertiger Terrasse und gepflasterter Einfahrt.
Das ca. 700m² große, ebene Grundstück befindet sich in zentraler Tullner Lage und ist bereits eingezäunt bzw. mit einer Mauer umgeben. 2 umliegende Geschäftsgebäude schirmen die Liegenschaft von der Straße ab und sorgen nicht nur für angenehme Ruhe, sondern auch für herrliche Intimsphäre.
Der Preis für das Grundstück alleine beträgt € 549.000,-.
Die Infrastruktur könnte besser nicht sein, Einkaufsmöglichkeiten sind im wahrsten Sinne des Wortes vor der Tür und der Tullner Hauptbahnhof mit unzähligen Verbindungen nach Wien ist in wenigen Gehminuten erreichbar, da dieser nur ein paar hundert Meter entfernt liegt. Apotheke, Trafik und Ärztezentrum sind im Umkreis von ca. 100 Metern erreichbar und wer auf Fitness steht, kann diese im fußläufig erreichbaren Studio verbessern. Ein Bäcker ist ebenso vor der Haustür wie ein Café und ein Bankomat.
Wer in den Westen Wiens muss, kann den vom nur ca. 10 Minuten entfernten Tullnerfelder Bahnhof (Pixendorf) nutzen, wo die Züge in nur ca. 14 Minuten nach Meidling fahren.
Sie haben weiteres Interesse an dieser Immobilie? Das sind die weiteren Schritte:
- Bitte fragen Sie die gewünschte Immobilie über die folgende Anfragemaske an und geben Sie unbedingt Ihre Mailadresse, Ihren Namen und Ihre Telefonnummer an, nur dann können wir Ihre Anfrage bearbeiten und Sie kontaktieren!
- Sie bekommen dann unverbindlich und automatisiert per Mail ein Immobilienangebot (Exposé und zusätzliche Unterlagen) zugesendet.
- Bitte öffnen Sie dieses Angebot, indem Sie zuerst auf „ZUM IMMOBILIEN-ANGEBOT", danach auf "Angebot sofort erhalten" und letztlich auf „Angebot herunterladen“ klicken.
- Danach kontaktieren wir Sie gerne telefonisch betreffend einer Besichtigung.
- Ihnen entstehen bei dieser Vorgangsweise keinerlei Kosten!
Objektdaten
Dokumente / Links
Flächen
- Wohnfläche
- 158m²
- Grundstücksfläche
- 699m²
Kosten
- Kaufpreis
- € 1.185.000,00
Häuser zum Kaufen in Österreich
Häuser zum Kaufen in Österreich
Häuser zum Kaufen in Österreich
Andere Besucher suchen nach...
- Grundstücke kaufen in 3400 Weidlingbach
- Wohnungen kaufen in 4663 Laakirchen
- Häuser in 7471 Rechnitz
- Wohnungen in 2410 Hainburg an der Donau
- Häuser kaufen in 2432 Schwadorf
- Wohnungen kaufen in 3002 Purkersdorf
- Häuser in 3150 Wilhelmsburg
- Wohnungen kaufen in 3470 Engelmannsbrunn
- Grundstücke kaufen im Bezirk Mattersburg
- Grundstücke kaufen im Bezirk Gmunden