Tradition trifft Natur – Blockbau-Landhaus mit Sanierungsbedarf
€ 179.900
€ 1.278 / m²
8323 Goggitsch
-
Sofort nach Kaufabw.
Beschreibung
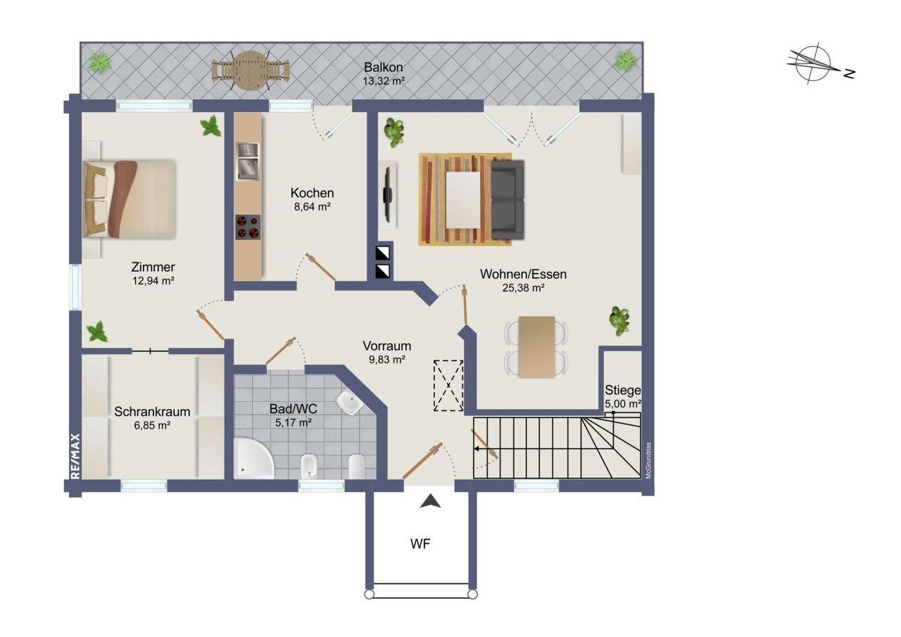
Dieses ca. 1993 erbaute Landhaus liegt idyllisch in der Gemeinde Nestelbach bei Graz, im Ortsteil Langegg, und wartet darauf, mit Ihnen neu durchzustarten. Eingebettet in eine grüne Umgebung bietet das zweistöckige Wohnhaus auf beiden Ebenen großzügigen Platz zum Wohnen und Wohlfühlen. Im Erdgeschoss, in robuster Blockbauweise errichtet, finden Sie einen einladenden Vorraum, eine separate Küche mit Küchenzeile, ein Badezimmer mit WC, ein Schlafzimmer mit angeschlossenem Schrankraum sowie einen großzügigen Wohnraum – perfekt für gemütliche Gemeinschaftszeiten und flexible Raumaufteilung. Das Kellergeschoss, über eine Verbindungstreppe vom Erdgeschoss oder den davorliegenden Garten erreichbar, gliedert sich in einen weiteren Vorraum, zwei Schlafzimmer, eine Küche,...
Dieses ca. 1993 erbaute Landhaus liegt idyllisch in der Gemeinde Nestelbach bei Graz, im Ortsteil Langegg, und wartet darauf, mit Ihnen neu durchzustarten.
Eingebettet in eine grüne Umgebung bietet das zweistöckige Wohnhaus auf beiden Ebenen großzügigen Platz zum Wohnen und Wohlfühlen.
Im Erdgeschoss, in robuster Blockbauweise errichtet, finden Sie einen einladenden Vorraum, eine separate Küche mit Küchenzeile, ein Badezimmer mit WC, ein Schlafzimmer mit angeschlossenem Schrankraum sowie einen großzügigen Wohnraum – perfekt für gemütliche Gemeinschaftszeiten und flexible Raumaufteilung.
Das Kellergeschoss, über eine Verbindungstreppe vom Erdgeschoss oder den davorliegenden Garten erreichbar, gliedert sich in einen weiteren Vorraum, zwei Schlafzimmer, eine Küche, ein Badezimmer mit WC sowie einen praktischen Abstell- bzw. Arbeitsraum. An der Westseite des Gebäudes eröffnen sich auf beiden Etagen jeweils großzügige Balkone - diese sind stark sanierungsbedürftig und derzeit nicht begehbar, wurden bei der Bewertung der Immobilie berücksichtigt und der Kaufpreis entsprechend angepasst.
Überzeugen Sie sich und genießen Sie die 360° PANORAMA TOUR vorab.
Panorama TOUR - gleich ansehen, hier klicken
Beheizt wird das Haus durch eine zentrale Elektroheizung im Keller. Die Hauptwohnzentrale im Erdgeschoss wird durch einen gemütlichen Kachelofen ergänzt, der an kalten Tagen für behagliche Wärme sorgt.
Unmittelbar vor dem Haus befindet sich ein praktischer Vorplatz, an dem bequem zwei PKW parken können. Zusätzlich stehen ein Carport für einen weiteren PKW sowie eine Abstellfläche zur Verfügung. Der Hof ist durch ein elektrisches Tor sicher abgeschlossen, sodass Sie Privatsphäre und Sicherheit genießen.
Hinweis:
Bei dem angegebenen Preis handelt es sich um einen Richtpreis, der sich aufgrund der aktuellen Nachfragesituation nach oben oder unten verändern kann. Die Preisannahme erfolgt vorbehaltlich der Zustimmung des Abgebers.
Ein Haus zu viel, eine Wohnung zu wenig?
Wir helfen gerne!
Wir sind Ihre Immobilienexperten für Graz und Umgebung und suchen für vorgemerkte Interessenten Häuser, Wohnungen und Baugrundstücke! Ebenso bieten wir Ihnen eine kostenlose, seriöse Beratung und eine Bewertung Ihrer Immobilie an.
RE/MAX for all, Conrad-von-Hötzendorf-Straße 37a, 8010 Graz, Tel.: 0316 815 915, Mail: office@remax-for-all.at
Eingebettet in eine grüne Umgebung bietet das zweistöckige Wohnhaus auf beiden Ebenen großzügigen Platz zum Wohnen und Wohlfühlen.
Im Erdgeschoss, in robuster Blockbauweise errichtet, finden Sie einen einladenden Vorraum, eine separate Küche mit Küchenzeile, ein Badezimmer mit WC, ein Schlafzimmer mit angeschlossenem Schrankraum sowie einen großzügigen Wohnraum – perfekt für gemütliche Gemeinschaftszeiten und flexible Raumaufteilung.
Das Kellergeschoss, über eine Verbindungstreppe vom Erdgeschoss oder den davorliegenden Garten erreichbar, gliedert sich in einen weiteren Vorraum, zwei Schlafzimmer, eine Küche, ein Badezimmer mit WC sowie einen praktischen Abstell- bzw. Arbeitsraum. An der Westseite des Gebäudes eröffnen sich auf beiden Etagen jeweils großzügige Balkone - diese sind stark sanierungsbedürftig und derzeit nicht begehbar, wurden bei der Bewertung der Immobilie berücksichtigt und der Kaufpreis entsprechend angepasst.
Überzeugen Sie sich und genießen Sie die 360° PANORAMA TOUR vorab.
Panorama TOUR - gleich ansehen, hier klicken
Beheizt wird das Haus durch eine zentrale Elektroheizung im Keller. Die Hauptwohnzentrale im Erdgeschoss wird durch einen gemütlichen Kachelofen ergänzt, der an kalten Tagen für behagliche Wärme sorgt.
Unmittelbar vor dem Haus befindet sich ein praktischer Vorplatz, an dem bequem zwei PKW parken können. Zusätzlich stehen ein Carport für einen weiteren PKW sowie eine Abstellfläche zur Verfügung. Der Hof ist durch ein elektrisches Tor sicher abgeschlossen, sodass Sie Privatsphäre und Sicherheit genießen.
Hinweis:
Bei dem angegebenen Preis handelt es sich um einen Richtpreis, der sich aufgrund der aktuellen Nachfragesituation nach oben oder unten verändern kann. Die Preisannahme erfolgt vorbehaltlich der Zustimmung des Abgebers.
| Angaben gemäß gesetzlichem Erfordernis: | |||
| Heizwärmebedarf: | 62.2 kWh/(m²a) | ||
| Klasse Heizwärmebedarf: | C | ||
| Faktor Gesamtenergieeffizienz: | 1.96 | ||
| Klasse Faktor Gesamtenergieeffizienz: | D | ||
Ein Haus zu viel, eine Wohnung zu wenig?
Wir helfen gerne!
Wir sind Ihre Immobilienexperten für Graz und Umgebung und suchen für vorgemerkte Interessenten Häuser, Wohnungen und Baugrundstücke! Ebenso bieten wir Ihnen eine kostenlose, seriöse Beratung und eine Bewertung Ihrer Immobilie an.
RE/MAX for all, Conrad-von-Hötzendorf-Straße 37a, 8010 Graz, Tel.: 0316 815 915, Mail: office@remax-for-all.at
Objektdaten
Ausstattung
- Gartennutzung
- Teilmöbliert
- Kabel/SAT-TV
- Unterkellert
- Etage Heizung
- Elektrische Befeuerung
- Elektroheizung
- Ländliche Lage
- Kabel/SAT-TV
- Teilmöbliert
Dokumente / Links
Zustand
- Baujahr
- ca. 1993
Flächen
- Anzahl der Zimmer
- 5.5
- Anzahl der Schlafzimmer
- 3
- Anzahl der Badezimmer
- 2
- Anzahl der sep. WCs
- 2
- Anzahl der Terrassen
- 1
- Stellplätze
- 3
- Wohnfläche
- 141m²
- Grundstücksfläche
- 1.066m²
- Kellerfläche
- 8m²
- Terrassenfläche
- 1m²
Kosten
- Kaufpreis
- € 179.900,00
- Nebenkosten
- € 140,00
- Betriebskosten Brutto
- € 140,00
Verwaltung
- Verfügbar ab
- Sofort nach Kaufabw.
Häuser zum Kaufen in Österreich
Häuser zum Kaufen in Österreich
Häuser zum Kaufen in Österreich
Andere Besucher suchen nach...
- Grundstücke kaufen in 3400 Weidlingbach
- Wohnungen kaufen in 4663 Laakirchen
- Häuser in 7471 Rechnitz
- Wohnungen in 2410 Hainburg an der Donau
- Häuser kaufen in 2432 Schwadorf
- Wohnungen kaufen in 3002 Purkersdorf
- Häuser in 3150 Wilhelmsburg
- Wohnungen kaufen in 3470 Engelmannsbrunn
- Grundstücke kaufen im Bezirk Mattersburg
- Grundstücke kaufen im Bezirk Gmunden