ehrlich jetzt – glaubst du wirklich, es wird billiger?
-
Erstbezug
Beschreibung
andere schreiben dir vom „traumhaus“. wir sagen dir, warum du wahrscheinlich zu lange wartest.
bei hammahäusern gibt’s koa blabla.
👉 ganz ehrlich: glaubst du wirklich, dass bauen wieder billiger wird? oder wartest du nur darauf, um später mehr zu zahlen?
👉 letztes jahr haben käufer für dasselbe haus € 25.000 mehr bezahlt – nur weil sie 2 monate gezögert haben. warten kostet dich geld.
👉 und noch was: glaubst du wirklich, dass du zu diesem preis ein haus inkl. grundstück bekommst?
nein. bekommst du nicht.
unser angebot betrifft ausschließlich das haus. grundstücke werden separat erworben.
andere schreiben dir vom „traumhaus“.
wir sagen dir, warum du wahrscheinlich zu lange wartest.
bei hammahäusern gibt’s koa blabla.
👉 ganz ehrlich: glaubst du wirklich, dass bauen wieder billiger wird?
oder wartest du nur darauf, um später mehr zu zahlen?
👉 letztes jahr haben käufer für dasselbe haus € 25.000 mehr bezahlt –
nur weil sie 2 monate gezögert haben.
warten kostet dich geld.
👉 und noch was:
glaubst du wirklich, dass du zu diesem preis ein haus inkl. grundstück bekommst?
nein. bekommst du nicht.
unser angebot betrifft ausschließlich das haus.
grundstücke werden separat erworben.
und nein – das hier ist auch kein fertiges haus, das du morgen besichtigen kannst.
wir bauen neu. auf bestellung. für menschen, die sich entscheiden.
die bilder zeigen echte häuser aus unseren projekten –
aber nicht „dein fertiges haus von der stange“.
wer nur schauen will, ist hier falsch.
wer bauen will, ist hier richtig.
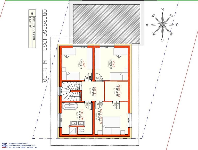
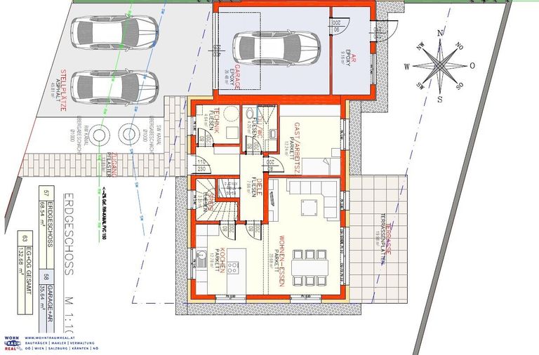
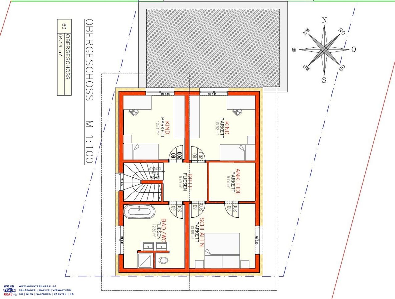
leitmodell 2026
basis dieser aktion ist unser einfamilienhaus mit ca. 133 m² wohnfläche.
funktionaler, familiengerechter grundriss
wirtschaftlich gebaut
individuelle planung möglich
grundrisse dienen als basis – geplant wird individuell.
hammahaus – was das konkret heißt
✅ massiv gebautes baumeister-haus
✅ belagsfertige ausführung mit klar definiertem leistungsumfang
✅ fixpreis bei kaufanbot – was wir sagen, gilt
✅ unabhängige baubegleitung
✅ individuelle einreichplanung möglich
✅ überschaubare projektanzahl – persönliche betreuung statt massenabwicklung
technik & standardausstattung
standardmäßig kalkuliert als flachdach.
technisch setzen wir auf bewährte lösungen:
luftwärmepumpe
fußbodenheizung
elektrische rollläden
großzügige hebeschiebetüren (ca. 3 m)
fenster in kunststoff–alu-ausführung
kein schnickschnack –
sondern das, was im alltag wirklich zählt.
preis & kalkulation
das inserat zeigt den preis für das haus belagsfertig – ohne grundstück.
alle genannten preise sind:
👉 fixpreise
👉 ohne indexanpassung
👉 ohne nachverrechnung
was im kaufanbot steht, gilt.
finanzierung
viele glauben, ein hausbau scheitert am eigenkapital.
tatsächlich sind – je nach persönlicher situation – finanzierungen bereits ab rund 10 % eigenmittel möglich,
teilweise aktuell mit fixzinssätzen unter 3 %.
bei interesse stellen wir gerne den kontakt zu einem unabhängigen finanzierungspartner her.
limitierte baukapazität 2026
maximal 5 belagsfertige einfamilienhäuser
baubeginn verbindlich 2026
preisfixierung bei unterzeichnung des kaufanbots
so geht’s weiter
schick uns kurz die eckdaten zu deinem grundstück –
dann sagen wir dir rasch und verbindlich,
was dein hammahaus kostet.
Infrastruktur / Entfernungen
Gesundheit
Arzt <4.500m
Apotheke <5.000m
Klinik <5.500m
Kinder & Schulen
Schule <500m
Kindergarten <500m
Nahversorgung
Supermarkt <500m
Bäckerei <1.000m
Einkaufszentrum <4.500m
Sonstige
Bank <500m
Geldautomat <500m
Post <5.000m
Polizei <4.500m
Verkehr
Bus <500m
Bahnhof <500m
Autobahnanschluss <9.500m
Angaben Entfernung Luftlinie / Quelle: OpenStreetMap
andere schreiben dir vom „traumhaus“.
wir sagen dir, warum du wahrscheinlich zu lange wartest.
bei hammahäusern gibt’s koa blabla.
👉 ganz ehrlich: glaubst du wirklich, dass bauen wieder billiger wird?
oder wartest du nur darauf, um später mehr zu zahlen?
👉 letztes jahr haben käufer für dasselbe haus € 25.000 mehr bezahlt –
nur weil sie 2 monate gezögert haben.
warten kostet dich geld.
👉 und noch was:
glaubst du wirklich, dass du zu diesem preis ein haus inkl. grundstück bekommst?
nein. bekommst du nicht.
unser angebot betrifft ausschließlich das haus.
grundstücke werden separat erworben.
und nein – das hier ist auch kein fertiges haus, das du morgen besichtigen kannst.
wir bauen neu. auf bestellung. für menschen, die sich entscheiden.
die bilder zeigen echte häuser aus unseren projekten –
aber nicht „dein fertiges haus von der stange“.
wer nur schauen will, ist hier falsch.
wer bauen will, ist hier richtig.
leitmodell 2026
basis dieser aktion ist unser einfamilienhaus mit ca. 133 m² wohnfläche.
funktionaler, familiengerechter grundriss
wirtschaftlich gebaut
individuelle planung möglich
grundrisse dienen als basis – geplant wird individuell.
hammahaus – was das konkret heißt
✅ massiv gebautes baumeister-haus
✅ belagsfertige ausführung mit klar definiertem leistungsumfang
✅ fixpreis bei kaufanbot – was wir sagen, gilt
✅ unabhängige baubegleitung
✅ individuelle einreichplanung möglich
✅ überschaubare projektanzahl – persönliche betreuung statt massenabwicklung
technik & standardausstattung
standardmäßig kalkuliert als flachdach.
technisch setzen wir auf bewährte lösungen:
luftwärmepumpe
fußbodenheizung
elektrische rollläden
großzügige hebeschiebetüren (ca. 3 m)
fenster in kunststoff–alu-ausführung
kein schnickschnack –
sondern das, was im alltag wirklich zählt.
preis & kalkulation
das inserat zeigt den preis für das haus belagsfertig – ohne grundstück.
alle genannten preise sind:
👉 fixpreise
👉 ohne indexanpassung
👉 ohne nachverrechnung
was im kaufanbot steht, gilt.
finanzierung
viele glauben, ein hausbau scheitert am eigenkapital.
tatsächlich sind – je nach persönlicher situation – finanzierungen bereits ab rund 10 % eigenmittel möglich,
teilweise aktuell mit fixzinssätzen unter 3 %.
bei interesse stellen wir gerne den kontakt zu einem unabhängigen finanzierungspartner her.
limitierte baukapazität 2026
maximal 5 belagsfertige einfamilienhäuser
baubeginn verbindlich 2026
preisfixierung bei unterzeichnung des kaufanbots
so geht’s weiter
schick uns kurz die eckdaten zu deinem grundstück –
dann sagen wir dir rasch und verbindlich,
was dein hammahaus kostet.
Infrastruktur / Entfernungen
Gesundheit
Arzt <4.500m
Apotheke <5.000m
Klinik <5.500m
Kinder & Schulen
Schule <500m
Kindergarten <500m
Nahversorgung
Supermarkt <500m
Bäckerei <1.000m
Einkaufszentrum <4.500m
Sonstige
Bank <500m
Geldautomat <500m
Post <5.000m
Polizei <4.500m
Verkehr
Bus <500m
Bahnhof <500m
Autobahnanschluss <9.500m
Angaben Entfernung Luftlinie / Quelle: OpenStreetMap
Objektdaten
Ausstattung
- Barrierefrei
- Gäste-WC
- Bad mit Dusche
- Bad mit Badewanne
- Bad mit Fenster
- Fußbodenheizung
- Luftwärmepumpe
- Flachdach
- Massiv Bauweise
- Ausbauhaus
Zustand
- Zustand
- ERSTBEZUG
- Alter
- NEUBAU
Flächen
- Anzahl der Zimmer
- 5
- Anzahl der Badezimmer
- 2
- Anzahl der sep. WCs
- 2
- Wohnfläche
- 133m²
Kosten
- Kaufpreis Brutto
- € 325.444,00
Grundstücke zum Kaufen im Umkreis von Schwertberg
Grundstücke zum Kaufen im Umkreis von Schwertberg
Grundstücke zum Kaufen in Österreich
Andere Besucher suchen nach...
- Grundstücke kaufen in 3400 Weidlingbach
- Wohnungen kaufen in 4663 Laakirchen
- Häuser in 7471 Rechnitz
- Wohnungen in 2410 Hainburg an der Donau
- Häuser kaufen in 2432 Schwadorf
- Wohnungen kaufen in 3002 Purkersdorf
- Häuser in 3150 Wilhelmsburg
- Wohnungen kaufen in 3470 Engelmannsbrunn
- Grundstücke kaufen im Bezirk Mattersburg
- Grundstücke kaufen im Bezirk Gmunden