Wohnen am Mühlwasser *PROVISIONSFREI*
€ 780.000
€ 5.693 / m²
1220 Wien
-
Erstbezug
-
2025
Beschreibung
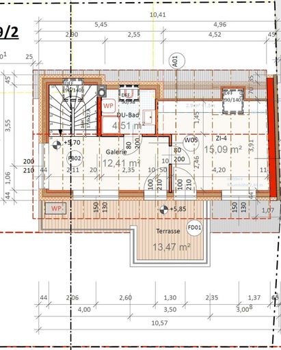
Wohnglück auf drei Ebenen! In unmittelbarer Nähe zum Mühlwasser werden zwei Einfamilienhäuser auf Eigengrund errichtet. Mit dem Bau des ersten Hauses wurde bereits begonnen! Auf Nettowohnflächen zwischen 133-137m², aufgeteilt auf drei Ebenen, 5 Zimmern und durchdachten Grundrissen, finden Sie Ihr neues Wohnglück. Ob Sie im ca. 40m² großen Wohnbereich entspannen, oder lieber auf der Dachterrasse im 2.OG die Aussicht genießen, bleibt ganz Ihnen überlassen. Der Preis versteht sich belagsfertig. Highlights: + ca. 250m zum Mühlwasser + ca. 40m² großer Wohn-Essbereich + ca. 13,50m² große Dachterrasse + Luft-Wasser-Wärmepumpe + Vorbereitung zur Klimaanlage + Fußbodenheizung + Vollkeller + 1 Autoabstellplatz + Eigengrund...
Wohnglück auf drei Ebenen!
In unmittelbarer Nähe zum Mühlwasser werden zwei Einfamilienhäuser auf Eigengrund errichtet.
Mit dem Bau des ersten Hauses wurde bereits begonnen!
Auf Nettowohnflächen zwischen 133-137m², aufgeteilt auf drei Ebenen, 5 Zimmern und durchdachten Grundrissen, finden Sie Ihr neues Wohnglück. Ob Sie im ca. 40m² großen Wohnbereich entspannen, oder lieber auf der Dachterrasse im 2.OG die Aussicht genießen, bleibt ganz Ihnen überlassen.
Der Preis versteht sich belagsfertig.
Highlights:
+ ca. 250m zum Mühlwasser
+ ca. 40m² großer Wohn-Essbereich
+ ca. 13,50m² große Dachterrasse
+ Luft-Wasser-Wärmepumpe
+ Vorbereitung zur Klimaanlage
+ Fußbodenheizung
+ Vollkeller
+ 1 Autoabstellplatz
+ Eigengrund
+ nur 9 Fahrradminuten zu U2 Station Aspernstraße
Kontakt: Mag. Christian Gölles
0699 110 79 565
cg@etera-immobilien.at
Etera Immobilien Consulting - Experience Excellence
In unmittelbarer Nähe zum Mühlwasser werden zwei Einfamilienhäuser auf Eigengrund errichtet.
Mit dem Bau des ersten Hauses wurde bereits begonnen!
Auf Nettowohnflächen zwischen 133-137m², aufgeteilt auf drei Ebenen, 5 Zimmern und durchdachten Grundrissen, finden Sie Ihr neues Wohnglück. Ob Sie im ca. 40m² großen Wohnbereich entspannen, oder lieber auf der Dachterrasse im 2.OG die Aussicht genießen, bleibt ganz Ihnen überlassen.
Der Preis versteht sich belagsfertig.
Highlights:
+ ca. 250m zum Mühlwasser
+ ca. 40m² großer Wohn-Essbereich
+ ca. 13,50m² große Dachterrasse
+ Luft-Wasser-Wärmepumpe
+ Vorbereitung zur Klimaanlage
+ Fußbodenheizung
+ Vollkeller
+ 1 Autoabstellplatz
+ Eigengrund
+ nur 9 Fahrradminuten zu U2 Station Aspernstraße
| Angaben gemäß gesetzlichem Erfordernis: | |||
| Heizwärmebedarf: | 37.2 kWh/(m²a) | ||
| Klasse Heizwärmebedarf: | B | ||
| Faktor Gesamtenergieeffizienz: | 0.7 | ||
| Klasse Faktor Gesamtenergieeffizienz: | A+ | ||
Kontakt: Mag. Christian Gölles
0699 110 79 565
cg@etera-immobilien.at
Etera Immobilien Consulting - Experience Excellence
Objektdaten
Ausstattung
- Unterkellert
- Fußbodenheizung
- Fußbodenheizung
- Grüne Lage
- Villengegend
Zustand
- Zustand
- ERSTBEZUG
- Baujahr
- 2025
Flächen
- Anzahl der Zimmer
- 5.5
- Anzahl der Schlafzimmer
- 4
- Anzahl der Badezimmer
- 2
- Anzahl der sep. WCs
- 3
- Anzahl der Terrassen
- 1
- Wohnfläche
- 137m²
- Grundstücksfläche
- 233m²
- Terrassenfläche
- 1m²
Kosten
- Kaufpreis
- € 780.000,00
Häuser zum Kaufen in Österreich
Häuser zum Kaufen in Österreich
Häuser zum Kaufen in Österreich
Andere Besucher suchen nach...
- Grundstücke kaufen in 3400 Weidlingbach
- Wohnungen kaufen in 4663 Laakirchen
- Häuser in 7471 Rechnitz
- Wohnungen in 2410 Hainburg an der Donau
- Häuser kaufen in 2432 Schwadorf
- Wohnungen kaufen in 3002 Purkersdorf
- Häuser in 3150 Wilhelmsburg
- Wohnungen kaufen in 3470 Engelmannsbrunn
- Grundstücke kaufen im Bezirk Mattersburg
- Grundstücke kaufen im Bezirk Gmunden