Das Geheimnis des Erfolges - Landhaus mit Park
€ 7.499.000
€ 7.978 / m²
1230 Wien
Beschreibung
Das Geheimnis eines Erfolges - Hochwertiges Landhaus mit Park. In Inzersdorf an der Liesing befindet sich das denkmalgeschützte Landhaus mit spätbiedermeierlich-frühhistorichen Formen, welches um ca.1840 bis 1850 errichtet wurde. Der Kern stammt aus der Mitte des 18.Jahrhunderts. Das freistehende, langgestreckte Gebäude liegt innerhalb des Parks. Die komplette Anlage ist in einem sehr guten Zustand, da sie ca.1989 komplett renoviert wurde und danach immer auf sehr hohen Niveau und im besten Zustand erhalten blieb. Objektdaten: Landhaus mit Park / Bürogebäude Nutzfläche: ca.940 m2 Grundstücksfläche: ca.3.500 m2 Baujahr: ca.1840-1850 Zustand: hervorragender Zustand Dieses Objekt bietet beste Verkehrsanbietung, A 23 Sterngasse in ca.3...
Das Geheimnis eines Erfolges - Hochwertiges Landhaus mit Park.
In Inzersdorf an der Liesing befindet sich das denkmalgeschützte Landhaus mit spätbiedermeierlich-frühhistorichen Formen, welches um ca.1840 bis 1850 errichtet wurde. Der Kern stammt aus der Mitte des 18.Jahrhunderts. Das freistehende, langgestreckte Gebäude liegt innerhalb des Parks. Die komplette Anlage ist in einem sehr guten Zustand, da sie ca.1989 komplett renoviert wurde und danach immer auf sehr hohen Niveau und im besten Zustand erhalten blieb.
Objektdaten:
Landhaus mit Park / Bürogebäude
Nutzfläche: ca.940 m2
Grundstücksfläche: ca.3.500 m2
Baujahr: ca.1840-1850
Zustand: hervorragender Zustand
Dieses Objekt bietet beste Verkehrsanbietung, A 23 Sterngasse in ca.3 Minuten, Buslinie 66a in ca.2 Minuten erreichbar.
Das Objekt verfügt über 16 schattige Parkplätze.
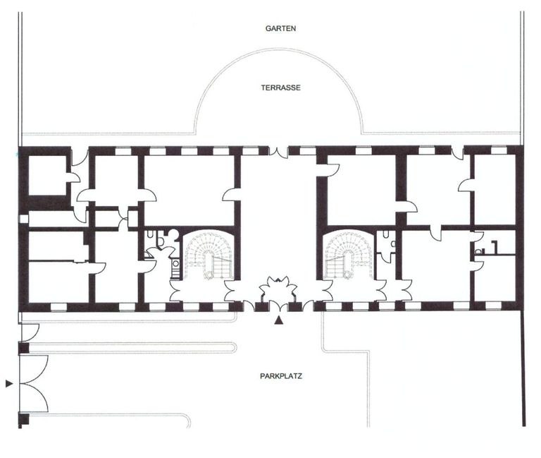
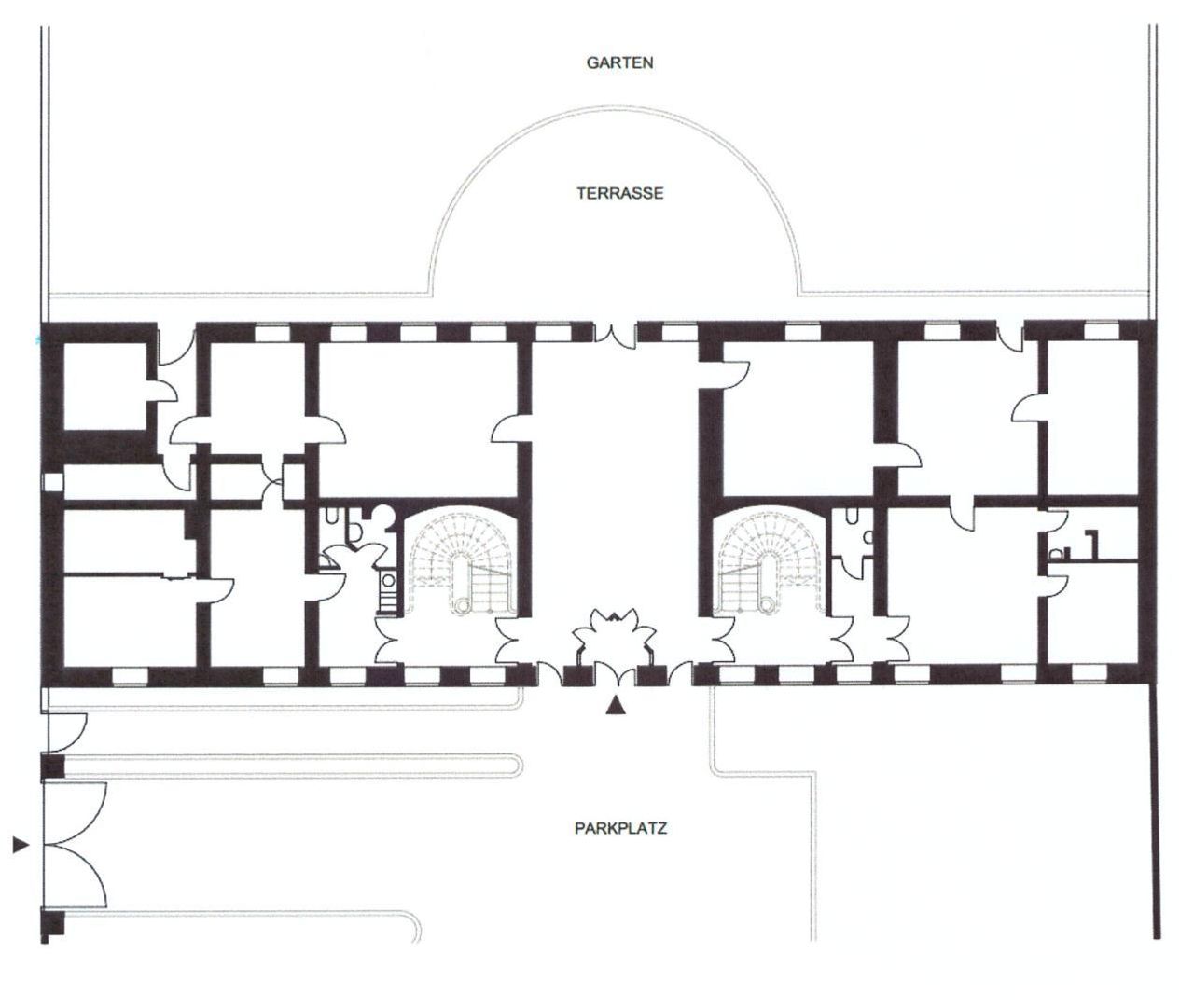
Dieses schlossähnliche Gebäude wird derzeit als Bürogebäude genutz. Es sind diverse Nebenräume, Toiletten, Bäder, Gastronomie sowie der exklusive Empfangsbereich verfügbar. Die Stockwerke sind mit zwei einzigartigen Treppenhäuser verbunden.
Sehr gerne steht Ihnen Herr Martin Wicho für weitere Informationen unter wicho@dimagimmobilien sowie unter 0660/1606000 zur Verfügung. Besichtigungen sind selbstverständlich sehr gerne möglich.
Vielen Dank.
In Inzersdorf an der Liesing befindet sich das denkmalgeschützte Landhaus mit spätbiedermeierlich-frühhistorichen Formen, welches um ca.1840 bis 1850 errichtet wurde. Der Kern stammt aus der Mitte des 18.Jahrhunderts. Das freistehende, langgestreckte Gebäude liegt innerhalb des Parks. Die komplette Anlage ist in einem sehr guten Zustand, da sie ca.1989 komplett renoviert wurde und danach immer auf sehr hohen Niveau und im besten Zustand erhalten blieb.
Objektdaten:
Landhaus mit Park / Bürogebäude
Nutzfläche: ca.940 m2
Grundstücksfläche: ca.3.500 m2
Baujahr: ca.1840-1850
Zustand: hervorragender Zustand
Dieses Objekt bietet beste Verkehrsanbietung, A 23 Sterngasse in ca.3 Minuten, Buslinie 66a in ca.2 Minuten erreichbar.
Das Objekt verfügt über 16 schattige Parkplätze.
Dieses schlossähnliche Gebäude wird derzeit als Bürogebäude genutz. Es sind diverse Nebenräume, Toiletten, Bäder, Gastronomie sowie der exklusive Empfangsbereich verfügbar. Die Stockwerke sind mit zwei einzigartigen Treppenhäuser verbunden.
Sehr gerne steht Ihnen Herr Martin Wicho für weitere Informationen unter wicho@dimagimmobilien sowie unter 0660/1606000 zur Verfügung. Besichtigungen sind selbstverständlich sehr gerne möglich.
Vielen Dank.
| Angaben gemäß gesetzlichem Erfordernis: | |||
| Klasse Heizwärmebedarf: | D | ||
Objektdaten
Ausstattung
- Räume veränderbar
- Klimatisiert
- Gartennutzung
- Teilmöbliert
- Kabel/SAT-TV
- Alarmanlage
- Massiv Bauweise
- Zeigelmassiv
- Bus
- Eisenbahn
- Grüne Lage
- Kabel/SAT-TV
- Räume veränderbar
- Kabel/SAT-TV
- Schnellbahn
- Alarmanlage
- Sicherheitsdienst
- Sonnige Lage
- Stadtrand
- Straßenbahn
- Teilmöbliert
- Villengegend
- Denkmalgeschützt
- Kabel/SAT-TV
- Räume veränderbar
- Kabel/SAT-TV
- Alarmanlage
- Teilmöbliert
Zustand
- Zustand
- GEPFLEGT
- Baujahr
- ca. 1850
- Altlasten
- Keine, lastenfreie Übergabe
- Alter
- ALTBAU
Flächen
- Wohnfläche
- 940m²
- Grundstücksfläche
- 3.500m²
Kosten
- Kaufpreis
- € 7.499.000,00
- Nebenkosten
- € 2.130,00
- Betriebskosten Brutto
- € 2.130,00
Verwaltung
- Verfügbar ab
- nach Vereinbarung
- Denkmalgeschützt
- Ja
Häuser zum Kaufen in Österreich
Häuser zum Kaufen in Österreich
Häuser zum Kaufen in Österreich
Andere Besucher suchen nach...
- Grundstücke kaufen in 3400 Weidlingbach
- Wohnungen kaufen in 4663 Laakirchen
- Häuser in 7471 Rechnitz
- Wohnungen in 2410 Hainburg an der Donau
- Häuser kaufen in 2432 Schwadorf
- Wohnungen kaufen in 3002 Purkersdorf
- Häuser in 3150 Wilhelmsburg
- Wohnungen kaufen in 3470 Engelmannsbrunn
- Grundstücke kaufen im Bezirk Mattersburg
- Grundstücke kaufen im Bezirk Gmunden