Exklusives Einfamilienhaus in Steinabrückl zu verkaufen - * BAUPROJEKT BELAGSFERTIG*
€ 484.900
€ 3.551 / m²
2751 Steinabrückl
Beschreibung
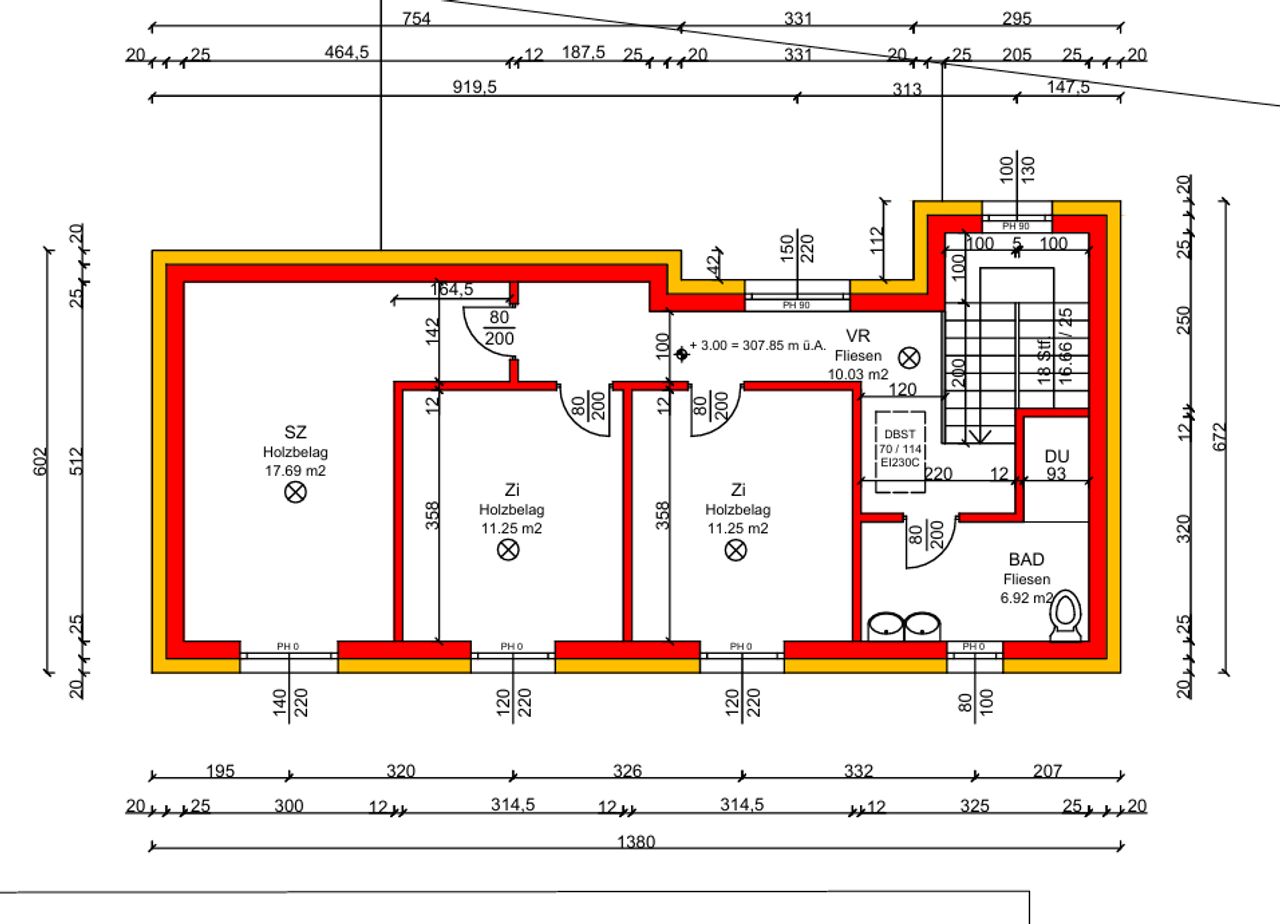
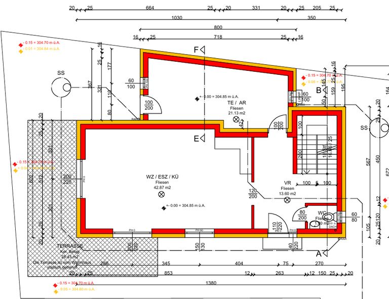
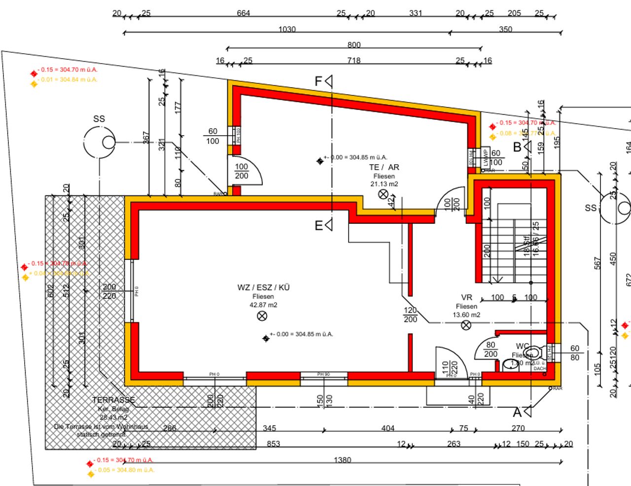
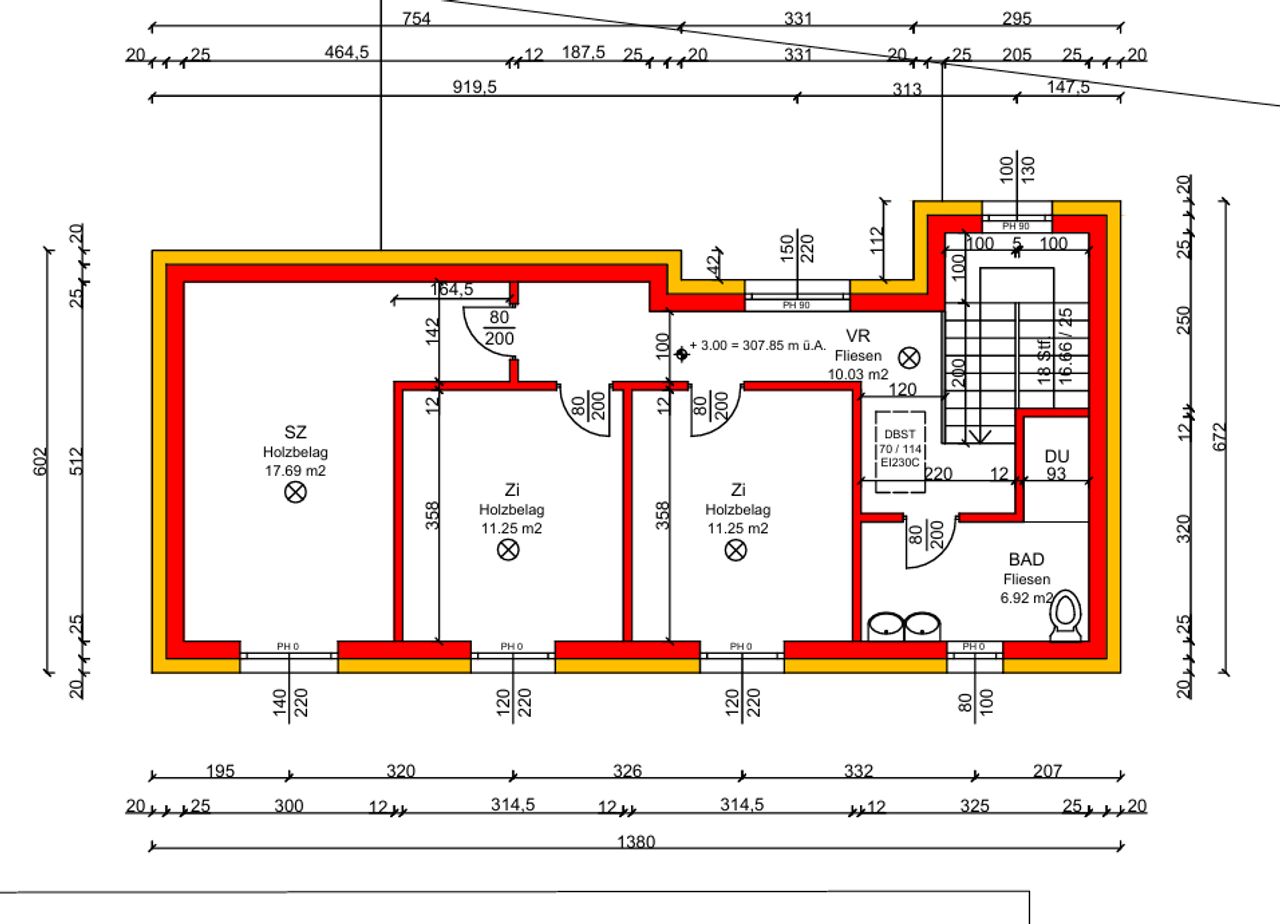
Ihr individuelles Traumhaus in 2751 Steinabrückl – bereits eingereichtes Bauprojekt Durch unsere Zusammenarbeit mit verschiedenen österreichischen Bauträgern können wir ein modernes Einfamilienhaus in 2751 Steinabrückl anbieten, die auf einer Wohnfläche von mindestens 136,54m² und einem Grundstück von ca. 250m² errichtet werden. Das beeindruckendste an unserem Angebot ist, dass wir nicht nur das Grundstück zur Verfügung stellen, sondern auch die Errichtung des Hauses durch unsere Kooperationspartner gewährleisten können. Die Zusammenarbeit mit unseren Kooperationspartnern und den Architekten ermöglicht es Ihnen, individuelle Traumhäuser zu planen, die speziell auf die Wünsche und Bedürfnisse der zukünftigen Hausbesitzer zugeschnitten sind. Und das alles zu einem sensationellen...
Ihr individuelles Traumhaus in 2751 Steinabrückl – bereits eingereichtes Bauprojekt
Durch unsere Zusammenarbeit mit verschiedenen österreichischen Bauträgern können wir ein modernes Einfamilienhaus in 2751 Steinabrückl anbieten, die auf einer Wohnfläche von mindestens 136,54m² und einem Grundstück von ca. 250m² errichtet werden. Das beeindruckendste an unserem Angebot ist, dass wir nicht nur das Grundstück zur Verfügung stellen, sondern auch die Errichtung des Hauses durch unsere Kooperationspartner gewährleisten können.
Die Zusammenarbeit mit unseren Kooperationspartnern und den Architekten ermöglicht es Ihnen, individuelle Traumhäuser zu planen, die speziell auf die Wünsche und Bedürfnisse der zukünftigen Hausbesitzer zugeschnitten sind. Und das alles zu einem sensationellen Preis von 484.900 Euro inkl. Haus + Grundstück, was bei der Wohnfläche und der Größe des Grundstücks wirklich ein gutes Angebot ist.
Die Einfamilienhäuser werden in Massivbauweise errichtet und sind Niedrigenergiehäuser.
Das bedeutet, dass sie energieeffizient sind und dabei helfen, die Umwelt zu schützen.
Normalerweise werden die Häuser belagsfertig übergeben, aber es besteht auch die Möglichkeit, sie schlüsselfertig zu erhalten.
Um sicherzustellen, dass alles während des Bauprozesses reibungslos verläuft, wird jedes Haus unter ständiger Begleitung durch externe Sachverständige errichtet.
Ökologie und Nachhaltigkeit sind Ihnen wichtig, und das zeigt sich in den Merkmalen der Häuser, die unsere Kooperationspartner errichten.
Verwendung:
Luft-Wärmepumpen für energieeffizientes Heizen, die optional auf Kühlung erweitert werden können. Die Fußbodenheizung sorgt für eine angenehme Wärme im ganzen Haus und die großen, hochwertigen Qualitätsfenster mit 3-Scheiben-Isolier-Wärmeschutzverglasung tragen zur Energieeffizienz bei.
Durch die enge Zusammenarbeit mit unseren Kooperationsbanken sind wir in der Lage, Ihnen eine zuverlässige und umfassende Finanzierungslösung anzubieten.
• Baubeginn erst nach Ihrer Freigabe und erteilter Baugenehmigung
Verkaufspreis: 484.900,--
Durch unsere Zusammenarbeit mit verschiedenen österreichischen Bauträgern können wir ein modernes Einfamilienhaus in 2751 Steinabrückl anbieten, die auf einer Wohnfläche von mindestens 136,54m² und einem Grundstück von ca. 250m² errichtet werden. Das beeindruckendste an unserem Angebot ist, dass wir nicht nur das Grundstück zur Verfügung stellen, sondern auch die Errichtung des Hauses durch unsere Kooperationspartner gewährleisten können.
Die Zusammenarbeit mit unseren Kooperationspartnern und den Architekten ermöglicht es Ihnen, individuelle Traumhäuser zu planen, die speziell auf die Wünsche und Bedürfnisse der zukünftigen Hausbesitzer zugeschnitten sind. Und das alles zu einem sensationellen Preis von 484.900 Euro inkl. Haus + Grundstück, was bei der Wohnfläche und der Größe des Grundstücks wirklich ein gutes Angebot ist.
Die Einfamilienhäuser werden in Massivbauweise errichtet und sind Niedrigenergiehäuser.
Das bedeutet, dass sie energieeffizient sind und dabei helfen, die Umwelt zu schützen.
Normalerweise werden die Häuser belagsfertig übergeben, aber es besteht auch die Möglichkeit, sie schlüsselfertig zu erhalten.
Um sicherzustellen, dass alles während des Bauprozesses reibungslos verläuft, wird jedes Haus unter ständiger Begleitung durch externe Sachverständige errichtet.
Ökologie und Nachhaltigkeit sind Ihnen wichtig, und das zeigt sich in den Merkmalen der Häuser, die unsere Kooperationspartner errichten.
Verwendung:
Luft-Wärmepumpen für energieeffizientes Heizen, die optional auf Kühlung erweitert werden können. Die Fußbodenheizung sorgt für eine angenehme Wärme im ganzen Haus und die großen, hochwertigen Qualitätsfenster mit 3-Scheiben-Isolier-Wärmeschutzverglasung tragen zur Energieeffizienz bei.
Durch die enge Zusammenarbeit mit unseren Kooperationsbanken sind wir in der Lage, Ihnen eine zuverlässige und umfassende Finanzierungslösung anzubieten.
• Baubeginn erst nach Ihrer Freigabe und erteilter Baugenehmigung
Verkaufspreis: 484.900,--
Objektdaten
Flächen
- Wohnfläche
- 137m²
- Grundstücksfläche
- 250m²
Kosten
- Kaufpreis
- € 484.900,00
Häuser zum Kaufen in Österreich
Häuser zum Kaufen in Österreich
Häuser zum Kaufen in Österreich
Andere Besucher suchen nach...
- Grundstücke kaufen in 3400 Weidlingbach
- Wohnungen kaufen in 4663 Laakirchen
- Häuser in 7471 Rechnitz
- Wohnungen in 2410 Hainburg an der Donau
- Häuser kaufen in 2432 Schwadorf
- Wohnungen kaufen in 3002 Purkersdorf
- Häuser in 3150 Wilhelmsburg
- Wohnungen kaufen in 3470 Engelmannsbrunn
- Grundstücke kaufen im Bezirk Mattersburg
- Grundstücke kaufen im Bezirk Gmunden