Moderne 3-Zimmer-Gartenwohnung im Neubau – Ihr Rückzugsort im Grünen
-
Erstbezug
-
2025
Beschreibung
LOGENPLATZ IM GRÜNEN
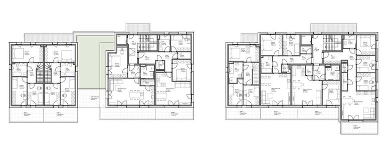
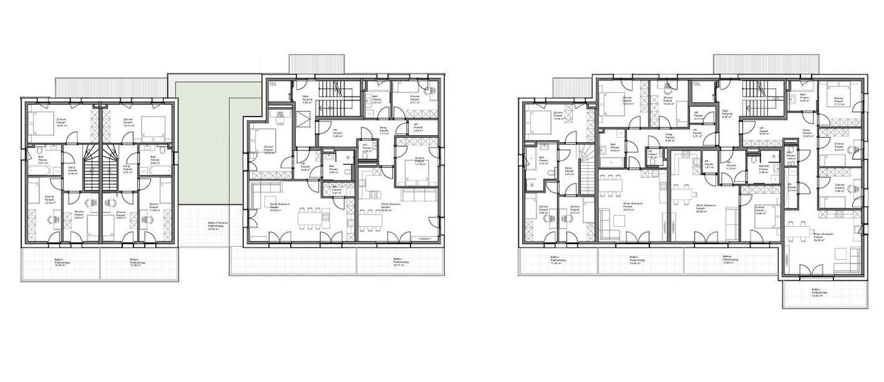
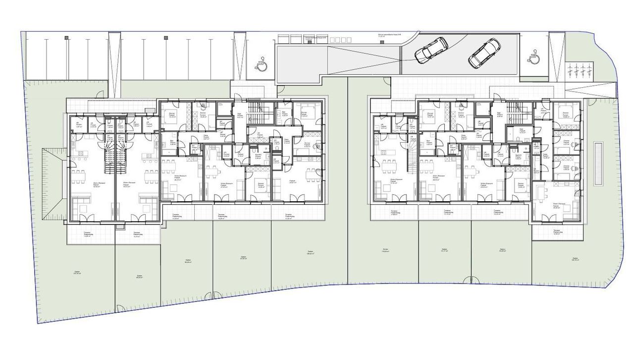
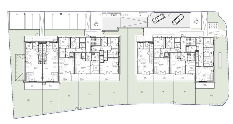
Das Neubauprojekt mit zwei Wohnhäusern und insgesamt siebzehn modernen Wohneinheiten in der Stadtgemeinde Neumarkt am Wallersee bietet hohe Wohnqualität gepaart mit moderner Architektur und attraktiven Außenflächen. Die nachhaltige Bauweise, das durchdachte Raumkonzept, der Fokus auf hohe Wertigkeit und die ruhige Lage im Grünen lassen Wohnträume wahr werden. Willkommen bei Ihrem Logenplatz im Grünen. Der Baubeginn erfolgt 2025.
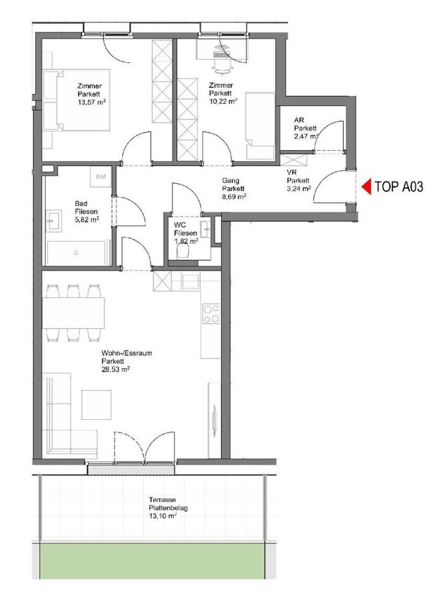
TOP A-03: 3-Zimmer-Gartenwohnung
Diese hochwertig ausgestattete 3-Zimmer-Gartenwohnung vereint stilvolles Wohnen mit naturnahem Lebensgefühl. Der großzügige Privatgarten mit Terrasse bietet viel Raum zur Entspannung im Freien – ideal für Familien, Paare oder anspruchsvolle Singles, die Wert auf Qualität und...
LOGENPLATZ IM GRÜNEN
Das Neubauprojekt mit zwei Wohnhäusern und insgesamt siebzehn modernen Wohneinheiten in der Stadtgemeinde Neumarkt am Wallersee bietet hohe Wohnqualität gepaart mit moderner Architektur und attraktiven Außenflächen. Die nachhaltige Bauweise, das durchdachte Raumkonzept, der Fokus auf hohe Wertigkeit und die ruhige Lage im Grünen lassen Wohnträume wahr werden. Willkommen bei Ihrem Logenplatz im Grünen. Der Baubeginn erfolgt 2025.
TOP A-03: 3-Zimmer-Gartenwohnung
Diese hochwertig ausgestattete 3-Zimmer-Gartenwohnung vereint stilvolles Wohnen mit naturnahem Lebensgefühl. Der großzügige Privatgarten mit Terrasse bietet viel Raum zur Entspannung im Freien – ideal für Familien, Paare oder anspruchsvolle Singles, die Wert auf Qualität und Ruhe legen.
Die offene Raumgestaltung, helle Wohnbereiche und hochwertige Materialien schaffen ein angenehmes Wohnklima mit besonderem Flair.
Jeder Wohnung sind ein oder mehr Tiefgaragenstellplätze zu je € 26.000,- zugeordnet und/oder ein Freistellplatz um € 12.000,-
Ein Projekt von RESIDENCE Wohnbau
Der Vermittler ist als Doppelmakler tätig.
Infrastruktur / Entfernungen
Gesundheit
Arzt <1.000m
Apotheke <1.500m
Kinder & Schulen
Schule <1.500m
Kindergarten <1.500m
Universität <9.500m
Nahversorgung
Supermarkt <1.000m
Bäckerei <1.000m
Sonstige
Geldautomat <1.500m
Bank <1.500m
Post <1.000m
Polizei <1.500m
Verkehr
Bus <500m
Bahnhof <1.000m
Angaben Entfernung Luftlinie / Quelle: OpenStreetMap
Objektdaten
Ausstattung
- Kabel/SAT-TV
- Fahrradraum
- Rolladen
- Bad mit Dusche
- Fliesenboden
- Dielenboden
- Luftwärmepumpe
- Personen Fahrstuhl
- Flachdach
- Neubaustandard
Dokumente / Links
Zustand
- Zustand
- ERSTBEZUG
- Baujahr
- 2025
- Alter
- NEUBAU
Flächen
- Anzahl der Zimmer
- 3
- Anzahl der Badezimmer
- 1
- Anzahl der sep. WCs
- 1
- Anzahl der Terrassen
- 1
- Wohnfläche
- 74m²
- Gartenfläche
- 51m²
- Kellerfläche
- 8m²
- Terrassenfläche
- 1m²
Kosten
- Kaufpreis Brutto
- € 485.000,00
Wohnungen zum Kaufen im Umkreis von Neumarkt am Wallersee
Wohnungen zum Kaufen im Umkreis von Neumarkt am Wallersee
Wohnungen zum Kaufen in Österreich
Andere Besucher suchen nach...
- Grundstücke kaufen in 3400 Weidlingbach
- Wohnungen kaufen in 4663 Laakirchen
- Häuser in 7471 Rechnitz
- Wohnungen in 2410 Hainburg an der Donau
- Häuser kaufen in 2432 Schwadorf
- Wohnungen kaufen in 3002 Purkersdorf
- Häuser in 3150 Wilhelmsburg
- Wohnungen kaufen in 3470 Engelmannsbrunn
- Grundstücke kaufen im Bezirk Mattersburg
- Grundstücke kaufen im Bezirk Gmunden