NEUBAUWOHNUNG NÄHE ERHOLUNGSGEBIET ALTE DONAU / 500 M ZUM STRAND
€ 350.000
€ 4.375 / m²
1210 Wien, Floridsdorf
Beschreibung
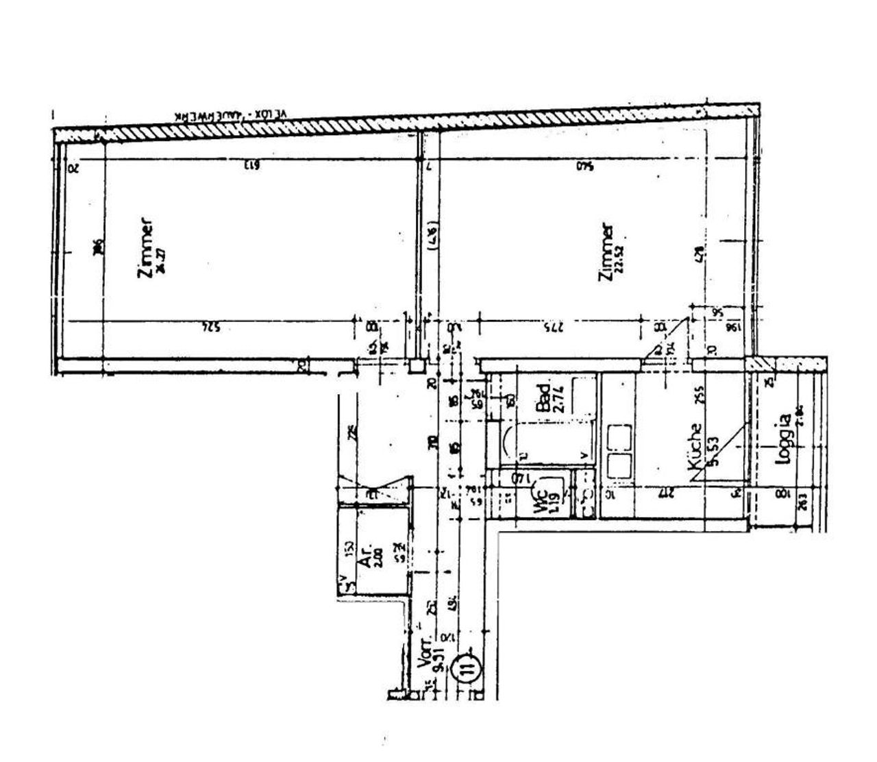
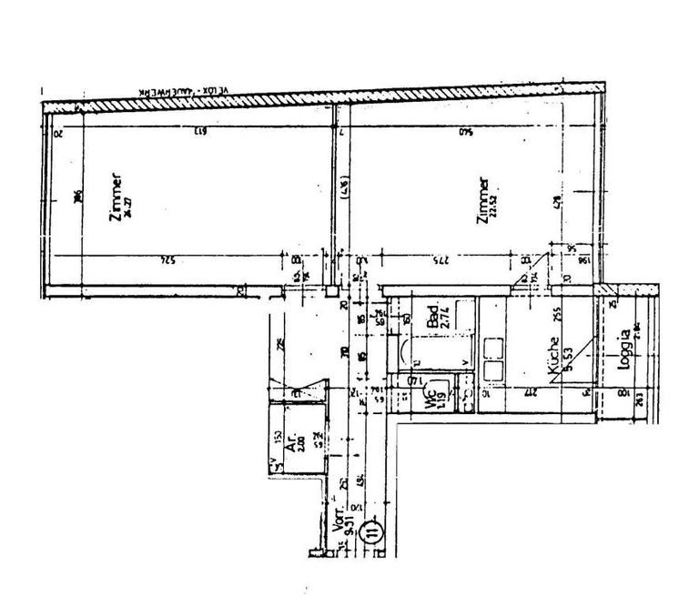
TRAUMLAGE-ERHOLUNGSGEBIET ALTE DONAU 500m ZUM STRAND! 21., SCHEFFELSTRASSE 28 Es handelt sich hierbei um eine Eigentumswohnung mit ca. 76 qm + ca. 4 qm Balkon. Das Haus wurde ca. 1980 gebaut und 2012 wurde die Thewosan Sanierung(Wärmedämmung, neue Fenster, neues Dach bzw. Dachterrassen, neues Stiegenhaus, neue Zentralheizung/Fernwärme und neuen Lift) abgeschlossen. VZI (zentral bis auf Küche, verbaut vom Tischler, schwarz/ahorn), BAD (Badewanne, Waschtisch, Handtuchheizkörper, verfliest, kompl. neu 2012) WC (Hänge-WC, kompl. verfliest) ABSTELLRAUM (Regale) WOHNZIMMER (Wandverbau im Stollensystem schwarz/brombeer, TV, Video, CD, Tuner, Boxen, Wohnlandschaft, Essgruppe 7 tlg. schwarz/brombeer – kann eventuell übernommen werden) – gassenseitig (Fenster gehen in die...
TRAUMLAGE-ERHOLUNGSGEBIET
ALTE DONAU 500m ZUM STRAND!
21., SCHEFFELSTRASSE 28
Es handelt sich hierbei um eine Eigentumswohnung mit ca.
76 qm + ca. 4 qm Balkon. Das Haus wurde ca. 1980 gebaut und 2012 wurde die Thewosan Sanierung(Wärmedämmung, neue Fenster, neues Dach bzw. Dachterrassen, neues Stiegenhaus, neue Zentralheizung/Fernwärme und neuen Lift) abgeschlossen.
VZI (zentral bis auf Küche, verbaut vom Tischler, schwarz/ahorn),
BAD (Badewanne, Waschtisch, Handtuchheizkörper, verfliest, kompl. neu 2012)
WC (Hänge-WC, kompl. verfliest)
ABSTELLRAUM (Regale)
WOHNZIMMER (Wandverbau im Stollensystem schwarz/brombeer, TV, Video, CD, Tuner, Boxen, Wohnlandschaft, Essgruppe 7 tlg. schwarz/brombeer – kann eventuell übernommen werden) – gassenseitig
(Fenster gehen in die Scheffelstraße)
KÜCHE (DAN-Küche kompl. neuwertig! (Tiefkühlkombi, Waschmaschine, Geschirrspüler, Nirosta-Abwasch, Nirosta-Dunstabzug, Cerankochplatte und Heißluftbackhofen, Schieferboden, Ausgang auf ca. 4 qm großen verfliesten Balkon) – Küche und Balkon gehen in die Scheffelstraße
SCHLAFZIMMER (ital. Rundkasten und Eckkasten schwarz/grau, Kommode schwarz/grau, achteckiges Bett) - hofseitig, absolute Grünruhelage – Baumbestand und Wiese
GARAGE (derzeit ist im Nebenhaus ein Garagenplatz vom Wohnungseigentümer angemietet, dieser könnte eventuell auch übernommen werden)
Zentralheizung/Fernwärme (monatl. A-conto Vorrauszahlung, einmal im Jahr erfolgt die Heizkostenabrechnung.)
Betriebskosten (inkl. Lift, Rep.-Rücklage, Heizung und Warmwasser)
ca. 374,30
Heizwärmebedarf 31 kWh/m².a
ACHTUNG:
ANFRAGEN WIE ´´WAS IST LETZTER PREIS?´´ WERDEN NICHT BEANTWORTET!
Nebenkosten:
3,5% Grunderwerbsteuer
1,1% Grundbuchseintragung
Vertragserrichter (Notar des Verkäufers)
Bitte beachten Sie, dass wir aufgrund der Nachweispflicht gegenüber dem Eigentümer nur Anfragen mit vollständiger Angabe der Anschrift und Angaben zur Person (Vor- und Nachname, Wohnadresse, Telefonnummer, E-Mail-Adresse) bearbeiten können.
Es wird darauf hingewiesen, dass die angeführten Daten ausschließlich auf Informationen des Verkäufers oder Dritter (z.B. Behörden) beruhen, so dass für die Richtigkeit keine Gewähr übernommen werden kann!
Wir weisen auf Ihre 14-tägige Rücktrittsfrist (gemäß § 11 FAGG ) hin.
Um Ihre Rechte zu wahren, können nur Anfragen mit vollständigen Kontaktdaten (Name, Adresse, Telefon, Email) beantwortet werden.
Vor Ablauf der 14-tägigen Rücktrittsfrist werden wir gerne für Sie tätig, wenn Sie gesetzeskonform (FAGG) uns ausdrücklich (am einfachsten per E-Mail) dazu auffordern.
Für weitere Informationen stehen wir Ihnen gerne unter 01/512 2000 zur Verfügung!
GERNE BEWERTEN, VERMITTELN, KAUFEN, VERKAUFEN WIR IHRE IMMOBILIE OB WOHNUNG, HAUS, GRUNDSTÜCK ODER BETRIEBSOBJEKT!
ALTE DONAU 500m ZUM STRAND!
21., SCHEFFELSTRASSE 28
Es handelt sich hierbei um eine Eigentumswohnung mit ca.
76 qm + ca. 4 qm Balkon. Das Haus wurde ca. 1980 gebaut und 2012 wurde die Thewosan Sanierung(Wärmedämmung, neue Fenster, neues Dach bzw. Dachterrassen, neues Stiegenhaus, neue Zentralheizung/Fernwärme und neuen Lift) abgeschlossen.
VZI (zentral bis auf Küche, verbaut vom Tischler, schwarz/ahorn),
BAD (Badewanne, Waschtisch, Handtuchheizkörper, verfliest, kompl. neu 2012)
WC (Hänge-WC, kompl. verfliest)
ABSTELLRAUM (Regale)
WOHNZIMMER (Wandverbau im Stollensystem schwarz/brombeer, TV, Video, CD, Tuner, Boxen, Wohnlandschaft, Essgruppe 7 tlg. schwarz/brombeer – kann eventuell übernommen werden) – gassenseitig
(Fenster gehen in die Scheffelstraße)
KÜCHE (DAN-Küche kompl. neuwertig! (Tiefkühlkombi, Waschmaschine, Geschirrspüler, Nirosta-Abwasch, Nirosta-Dunstabzug, Cerankochplatte und Heißluftbackhofen, Schieferboden, Ausgang auf ca. 4 qm großen verfliesten Balkon) – Küche und Balkon gehen in die Scheffelstraße
SCHLAFZIMMER (ital. Rundkasten und Eckkasten schwarz/grau, Kommode schwarz/grau, achteckiges Bett) - hofseitig, absolute Grünruhelage – Baumbestand und Wiese
GARAGE (derzeit ist im Nebenhaus ein Garagenplatz vom Wohnungseigentümer angemietet, dieser könnte eventuell auch übernommen werden)
Zentralheizung/Fernwärme (monatl. A-conto Vorrauszahlung, einmal im Jahr erfolgt die Heizkostenabrechnung.)
Betriebskosten (inkl. Lift, Rep.-Rücklage, Heizung und Warmwasser)
ca. 374,30
Heizwärmebedarf 31 kWh/m².a
ACHTUNG:
ANFRAGEN WIE ´´WAS IST LETZTER PREIS?´´ WERDEN NICHT BEANTWORTET!
Nebenkosten:
3,5% Grunderwerbsteuer
1,1% Grundbuchseintragung
Vertragserrichter (Notar des Verkäufers)
Bitte beachten Sie, dass wir aufgrund der Nachweispflicht gegenüber dem Eigentümer nur Anfragen mit vollständiger Angabe der Anschrift und Angaben zur Person (Vor- und Nachname, Wohnadresse, Telefonnummer, E-Mail-Adresse) bearbeiten können.
Es wird darauf hingewiesen, dass die angeführten Daten ausschließlich auf Informationen des Verkäufers oder Dritter (z.B. Behörden) beruhen, so dass für die Richtigkeit keine Gewähr übernommen werden kann!
Wir weisen auf Ihre 14-tägige Rücktrittsfrist (gemäß § 11 FAGG ) hin.
Um Ihre Rechte zu wahren, können nur Anfragen mit vollständigen Kontaktdaten (Name, Adresse, Telefon, Email) beantwortet werden.
Vor Ablauf der 14-tägigen Rücktrittsfrist werden wir gerne für Sie tätig, wenn Sie gesetzeskonform (FAGG) uns ausdrücklich (am einfachsten per E-Mail) dazu auffordern.
Für weitere Informationen stehen wir Ihnen gerne unter 01/512 2000 zur Verfügung!
GERNE BEWERTEN, VERMITTELN, KAUFEN, VERKAUFEN WIR IHRE IMMOBILIE OB WOHNUNG, HAUS, GRUNDSTÜCK ODER BETRIEBSOBJEKT!
Objektdaten
Ausstattung
- Gartennutzung
- Vollmöbliert
- Kabel/SAT-TV
- Zentralheizung
- Personen Fahrstuhl
- Grüne Lage
- Zentralheizung
- Kabel/SAT-TV
- Vollmöbliert
- Sonstiges
- Stadtrand
Dokumente / Links
Zustand
- Zustand
- GEPFLEGT
- Baujahr
- ca. 1980
- Alter
- NEUBAU
Flächen
- Anzahl der Zimmer
- 2
- Anzahl der Schlafzimmer
- 1
- Anzahl der Badezimmer
- 1
- Anzahl der sep. WCs
- 1
- Wohnfläche
- 80m²
Kosten
- Kaufpreis
- € 350.000,00
- Nebenkosten
- € 374,30
- Betriebskosten Brutto
- € 374,30
Verwaltung
- Verfügbar ab
- nach Vereinbarung
Wohnungen zum Kaufen in Österreich
Wohnungen zum Kaufen in Österreich
Wohnungen zum Kaufen in Österreich
Andere Besucher suchen nach...
- Grundstücke kaufen in 3400 Weidlingbach
- Wohnungen kaufen in 4663 Laakirchen
- Häuser in 7471 Rechnitz
- Wohnungen in 2410 Hainburg an der Donau
- Häuser kaufen in 2432 Schwadorf
- Wohnungen kaufen in 3002 Purkersdorf
- Häuser in 3150 Wilhelmsburg
- Wohnungen kaufen in 3470 Engelmannsbrunn
- Grundstücke kaufen im Bezirk Mattersburg
- Grundstücke kaufen im Bezirk Gmunden