Neuer Preis!!! Luxuriöse Wohnung
€ 1.290.000
€ 17.487 / m²
1010 Wien
-
ca. 2022
Beschreibung
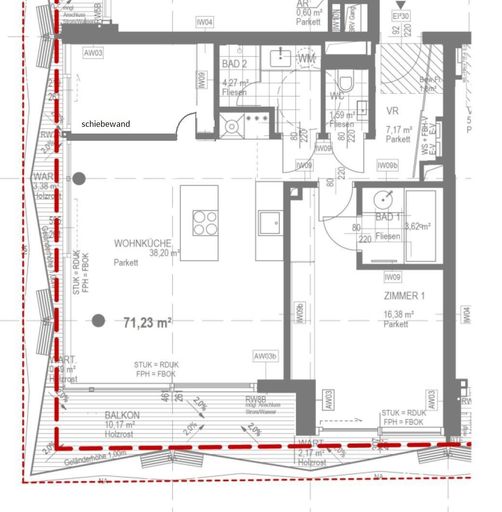
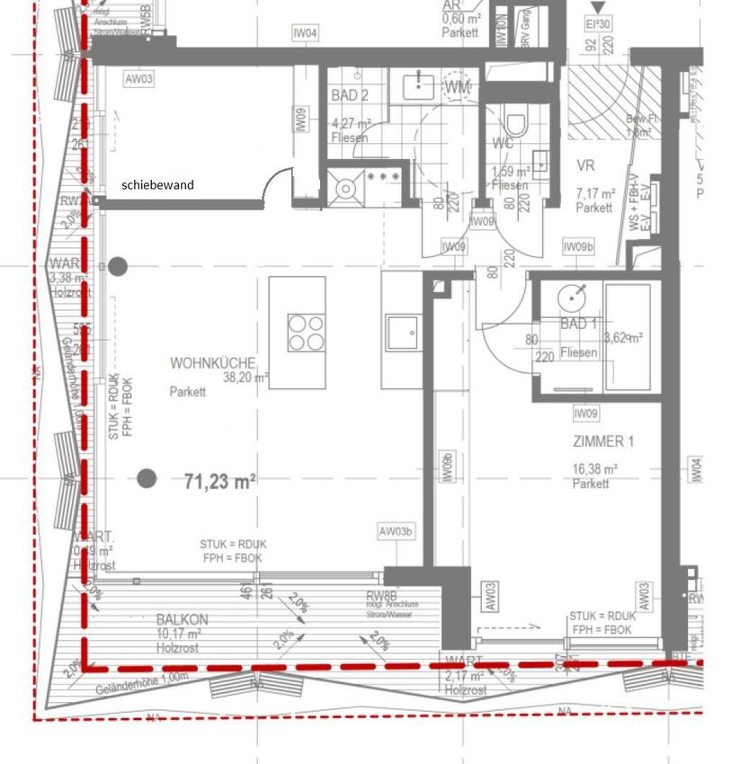
Luxuriöse Wohnung mit Balkon für gehobene Ansprüche . Raumaufteilung: Vorraum, Wohnzimmer mit Küche und Balkon, 2 Schlafzimmer, 2 Badezimmer, WC. Heizen und Kühlen werden über Bauteile wie Fußboden und Decke verlegt. BK, Warmwasser, Heizung, Kühlung inkl. Ust sind € 617,91 Flächenaufstellung: Gewichtete Fläche 73,77 m² Wohnnutzfläche: 71,23 m² zu 100% - Raumhöhe 2,75 m Balkon: 10,17 m² zu 25% Der Garagenparkplatz ist separat zu erwerben. Der Preis dafür beträgt 85 000 Euro. Weitere Details, Pläne und Fotos auf Anfrage. Aufgrund der Nachweispflicht gegenüber dem Eigentümer, ersuche wir Sie um Verständnis, dass wir nur Anfragen mit vollständiger Anschrift und Telefonnummer bearbeiten...
Luxuriöse Wohnung mit Balkon für gehobene Ansprüche .
Raumaufteilung:
Vorraum, Wohnzimmer mit Küche und Balkon, 2 Schlafzimmer, 2 Badezimmer, WC.
Heizen und Kühlen werden über Bauteile wie Fußboden und Decke verlegt.
BK, Warmwasser, Heizung, Kühlung inkl. Ust sind € 617,91
Flächenaufstellung:
Gewichtete Fläche 73,77 m²
Wohnnutzfläche: 71,23 m² zu 100% - Raumhöhe 2,75 m
Balkon: 10,17 m² zu 25%
Der Garagenparkplatz ist separat zu erwerben. Der Preis dafür beträgt 85 000 Euro.
Weitere Details, Pläne und Fotos auf Anfrage.
Aufgrund der Nachweispflicht gegenüber dem Eigentümer, ersuche wir Sie um Verständnis, dass wir nur Anfragen mit vollständiger Anschrift und Telefonnummer bearbeiten können, sowie keine Auskünfte betreffend der genauen Liegenschaftsadresse erteilen können!
Bei weiteren Fragen oder Vereinbarung eines Besichtigungstermins steht Ihnen
Hr. Kulev unter +43 664 4367356 oder vk@mkr-rc.at gerne zur Verfügung.
Raumaufteilung:
Vorraum, Wohnzimmer mit Küche und Balkon, 2 Schlafzimmer, 2 Badezimmer, WC.
Heizen und Kühlen werden über Bauteile wie Fußboden und Decke verlegt.
BK, Warmwasser, Heizung, Kühlung inkl. Ust sind € 617,91
Flächenaufstellung:
Gewichtete Fläche 73,77 m²
Wohnnutzfläche: 71,23 m² zu 100% - Raumhöhe 2,75 m
Balkon: 10,17 m² zu 25%
Der Garagenparkplatz ist separat zu erwerben. Der Preis dafür beträgt 85 000 Euro.
Weitere Details, Pläne und Fotos auf Anfrage.
Aufgrund der Nachweispflicht gegenüber dem Eigentümer, ersuche wir Sie um Verständnis, dass wir nur Anfragen mit vollständiger Anschrift und Telefonnummer bearbeiten können, sowie keine Auskünfte betreffend der genauen Liegenschaftsadresse erteilen können!
Bei weiteren Fragen oder Vereinbarung eines Besichtigungstermins steht Ihnen
Hr. Kulev unter +43 664 4367356 oder vk@mkr-rc.at gerne zur Verfügung.
| Angaben gemäß gesetzlichem Erfordernis: | |||
| Heizwärmebedarf: | 23.49 kWh/(m²a) | ||
| Klasse Heizwärmebedarf: | A | ||
| Faktor Gesamtenergieeffizienz: | 0.71 | ||
| Klasse Faktor Gesamtenergieeffizienz: | A | ||
Objektdaten
Ausstattung
- Klimatisiert
- Unterkellert
- Zentralheizung
- Fern Befeuerung
- Personen Fahrstuhl
- Concierge
- Geschirrspüler
- Küche Möbliert
- Sonstiges
- Ruhe Lage
- Zentralheizung mit Fernwärme
Zustand
- Zustand
- GEPFLEGT
- Baujahr
- ca. 2022
- Alter
- NEUBAU
Flächen
- Anzahl der Zimmer
- 2
- Anzahl der Badezimmer
- 1
- Anzahl der sep. WCs
- 1
- Anzahl der Balkone
- 1
- Stellplätze
- 2
- Wohnfläche
- 74m²
- Kellerfläche
- 2m²
Kosten
- Kaufpreis
- € 1.290.000,00
Verwaltung
- Verfügbar ab
- nach Vereinbarung
Wohnungen zum Kaufen in Österreich
Wohnungen zum Kaufen in Österreich
Wohnungen zum Kaufen in Österreich
Andere Besucher suchen nach...
- Grundstücke kaufen in 3400 Weidlingbach
- Wohnungen kaufen in 4663 Laakirchen
- Häuser in 7471 Rechnitz
- Wohnungen in 2410 Hainburg an der Donau
- Häuser kaufen in 2432 Schwadorf
- Wohnungen kaufen in 3002 Purkersdorf
- Häuser in 3150 Wilhelmsburg
- Wohnungen kaufen in 3470 Engelmannsbrunn
- Grundstücke kaufen im Bezirk Mattersburg
- Grundstücke kaufen im Bezirk Gmunden