Neuwertig mit großer Dachterrasse. - Highlight in Fohnsdorf. - 2 Stellplätze inklusive.
Beschreibung
Diese moderne Dachgeschoss-Wohnung in Fohnsdorf bietet auf 69 m² Wohnfläche und mit einer außergewöhnlich großen Dachterrasse einzigartige Wohnqualität. Die ruhige, naturnahe Lage zentral im Murtal und die hochwertige Ausstattung, inklusive Sauna und Jacuzzi auf der Dachterrasse, machen diese Immobilie zu einem besonderen Zuhause.
DIE VORTEILE DIESER WOHNUNG AUF EINEN BLICK:
- Naturnahe und ruhige Wohnlage in Fohnsdorf, zentral im Murtal.
- 69 m² Wohnfläche verteilt auf 3 Zimmer.
- 2. OG (Dachgeschoss) mit bequemen Liftzugang.
- Neuwertiger Zustand der Wohnung.
- Terrasse und Dachterrasse mit insgesamt 112 m².
- Viele Highlights inklusive Sauna, Jacuzzi und Fernblick.
- Hochwertige Küchen- und Badezimmereinrichtung inklusive.
- Zwei eigene überdachte KFZ-Stellplätze. ...
Diese moderne Dachgeschoss-Wohnung in Fohnsdorf bietet auf 69 m² Wohnfläche und mit einer außergewöhnlich großen Dachterrasse einzigartige Wohnqualität. Die ruhige, naturnahe Lage zentral im Murtal und die hochwertige Ausstattung, inklusive Sauna und Jacuzzi auf der Dachterrasse, machen diese Immobilie zu einem besonderen Zuhause.
DIE VORTEILE DIESER WOHNUNG AUF EINEN BLICK:
- Naturnahe und ruhige Wohnlage in Fohnsdorf, zentral im Murtal.
- 69 m² Wohnfläche verteilt auf 3 Zimmer.
- 2. OG (Dachgeschoss) mit bequemen Liftzugang.
- Neuwertiger Zustand der Wohnung.
- Terrasse und Dachterrasse mit insgesamt 112 m².
- Viele Highlights inklusive Sauna, Jacuzzi und Fernblick.
- Hochwertige Küchen- und Badezimmereinrichtung inklusive.
- Zwei eigene überdachte KFZ-Stellplätze.
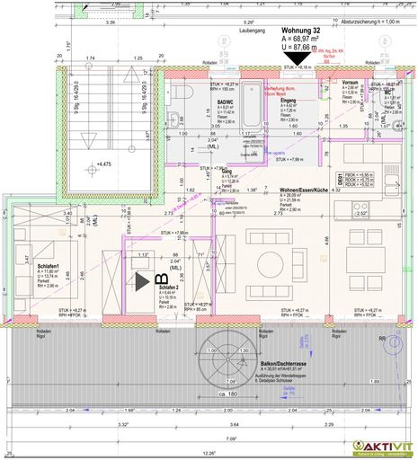
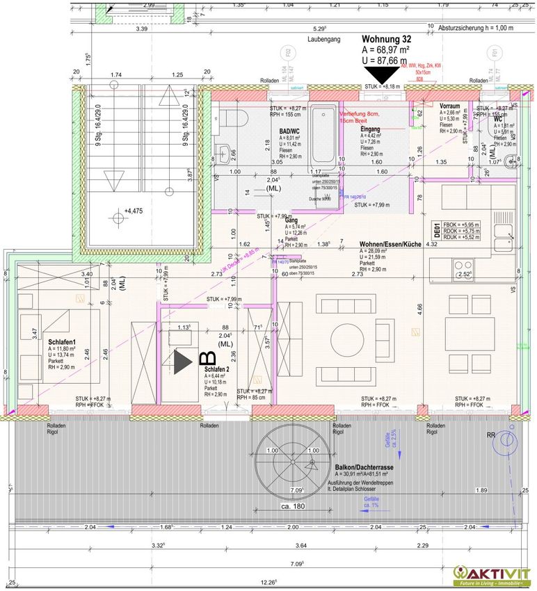
DIE WOHNUNG.
Die Wohnung befindet sich im 2. OG (Dachgeschoss) und ist bequem per Lift erreichbar.
Auf rund 69 m² Wohnfläche verteilen sich ein einladender Vorraum, ein großzügiges Wohn- und Esszimmer mit offener Küche, zwei Schlafzimmer, ein Badezimmer, ein getrenntes WC.
Eine erste Terrasse bietet rund 31 m² Freifläche, während die spektakuläre Dachterrasse mit etwa 81 m² nicht nur Platz zum Entspannen, sondern auch eine Sauna, einen Jacuzzi und einen herrlichen Ausblick bietet.
Ein eigener Keller-Ersatzraum mit ca. 6 m² rundet das Angebot ab.
ZUSTAND UND AUSSTATTUNG.
Das Gebäude wurde 2017 in Massivbauweise errichtet und befindet sich, ebenso wie die Wohnung, in einem neuwertigen Zustand.
Die Böden sind mit Fliesen und Laminat hochwertig ausgestattet. Eine Fußbodenheizung sorgt für angenehme Wärme, die Beheizung erfolgt mittels Gas-Zentralheizung.
Die moderne Ausstattung umfasst unter anderem einen TV-Anschluss und weitere Highlights wie die Ausstattung auf der Dachterrasse.
Die Wohnung wird inklusive der hochwertigen Kücheneinrichtung und Badezimmer-Ausstattung verkauft.
Eine Übernahme weiterer Einrichtungsgegenstände ist nach Vereinbarung möglich.
Zwei eigene überdachte KFZ-Stellplätze sind im Preis inklusive.
DIE BETRIEBSKOSTEN UND KAUFPREIS.
Die Betriebskosten belaufen sich auf ca. € 180,- monatlich ohne Heizung.
Aktuelle Werte werden nachgereicht.
Der Kaufpreis beträgt € 345.600,- inklusive Umsatzsteuer.
Der Netto-Kaufpreis für Anleger beträgt € 288.000,-
Zur Beantwortung weiterer Fragen sowie für Besichtigungstermine stehe ich Ihnen gerne täglich - auch am Wochenende - von 08:00 bis 22:00 Uhr zur Verfügung.
Ich freue mich über Ihre Kontaktaufnahme,
Wilhelm Rossmair
+43 664 54 24 481
w.rossmair@aktivit.org
Der Vermittler ist als Doppelmakler tätig.
Erteilen Sie uns ihren Suchauftrag und profitieren Sie von vielen Vorteilen und exklusiven Angeboten!
Ganz einfach und kostenlos unter: Jetzt Suchauftrag eingeben.
Infrastruktur / Entfernungen
Gesundheit
Arzt <1.500m
Apotheke <1.500m
Krankenhaus <4.000m
Kinder & Schulen
Schule <4.000m
Kindergarten <4.000m
Nahversorgung
Supermarkt <1.500m
Bäckerei <2.000m
Einkaufszentrum <5.000m
Sonstige
Bank <1.500m
Geldautomat <1.500m
Post <1.500m
Polizei <2.000m
Verkehr
Bus <500m
Autobahnanschluss <2.500m
Bahnhof <5.000m
Flughafen <4.000m
Angaben Entfernung Luftlinie / Quelle: OpenStreetMap
Objektdaten
Ausstattung
- Teilmöbliert
- Kabel/SAT-TV
- UMTS Empfang
- Bad mit Dusche
- Bad mit Fenster
- Einbauküche
- Offene Küche
- Fliesenboden
- Laminatboden
- Zentralheizung
- Fußbodenheizung
- Befeuerung mit Gas
- Personen Fahrstuhl
- Ausrichtung Balkon/Terrasse - Süd
- Flachdach
- Massiv Bauweise
- Schlüsselfertig mit Keller
Zustand
- Zustand
- NEUWERTIG
- Baujahr
- 2017
- Alter
- NEUBAU
- HWB
- 33.6 kWh/m² pro Jahr
- Klasse HWB
- B
- fGEE
- 0.45
- Klasse fGEE
- A++
Flächen
- Anzahl der Zimmer
- 3
- Anzahl der Badezimmer
- 1
- Anzahl der sep. WCs
- 1
- Anzahl der Terrassen
- 2
- Stellplätze
- 2
- Wohnfläche
- 69m²
- Nutzfläche
- 69m²
- Gesamtfläche
- 69m²
- Kellerfläche
- 6m²
- Terrassenfläche
- 2m²
Kosten
- Kaufpreis Brutto
- € 287.000,00
- enth. Umsatzsteuer
- € 47.833,33
Wohnungen zum Kaufen im Umkreis von Fohnsdorf
Wohnungen zum Kaufen im Umkreis von Fohnsdorf
Wohnungen zum Kaufen in Österreich
Andere Besucher suchen nach...
- Grundstücke kaufen in 3400 Weidlingbach
- Wohnungen kaufen in 4663 Laakirchen
- Häuser in 7471 Rechnitz
- Wohnungen in 2410 Hainburg an der Donau
- Häuser kaufen in 2432 Schwadorf
- Wohnungen kaufen in 3002 Purkersdorf
- Häuser in 3150 Wilhelmsburg
- Wohnungen kaufen in 3470 Engelmannsbrunn
- Grundstücke kaufen im Bezirk Mattersburg
- Grundstücke kaufen im Bezirk Gmunden