Schlüsselfertig: Sonnige Wohnung mit zwei Balkonen!
-
2024
-
01.07.2025
Beschreibung
Sie sind auf der Suche nach einem Schlüsselfertigen Eigenheim, in einer der begehrtesten Wohngegenden in Graz? Dann sind Sie hier genau richtig.
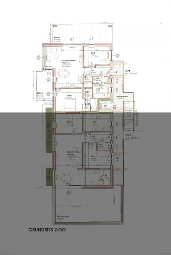
Zum Verkauf gelangt eine traumhafte Wohnung in einem kleinem 7 Parteienhaus mit sonniger Terrasse und einer liebevoll gestalteten allgemein Gartenfläche mit Kinderspielplatz. Highlights: - ca. 81m² Wohnfläche - 2 Schlafzimmer - 2 Badezimmer - Großer offener Wohn- und Essbereich - Zwei sonnige Balkon (ca. 33m²) - Abstellplatz - Kellerabteil Raumaufteilung: Über einen hellen Vorraum gelangen Sie in den offenen Wohn- und Essbereich. Vom Wohnbereich aus gibt es einen fließenden Übergang auf die beiden sonnigen Balkone....
Sie sind auf der Suche nach einem Schlüsselfertigen Eigenheim, in einer der begehrtesten Wohngegenden in Graz? Dann sind Sie hier genau richtig.
Zum Verkauf gelangt eine traumhafte Wohnung in einem kleinem 7 Parteienhaus mit sonniger Terrasse und einer liebevoll gestalteten allgemein Gartenfläche mit Kinderspielplatz.
Highlights:
- ca. 81m² Wohnfläche
- 2 Schlafzimmer
- 2 Badezimmer
- Großer offener Wohn- und Essbereich
- Zwei sonnige Balkon (ca. 33m²)
- Abstellplatz
- Kellerabteil
Raumaufteilung:
Über einen hellen Vorraum gelangen Sie in den offenen Wohn- und Essbereich. Vom Wohnbereich aus gibt es einen fließenden Übergang auf die beiden sonnigen Balkone. Diese Wohnung besitzt außerdem 2 Schlafzimmer, ein Badezimmer, ein getrennt begehbares WC und einen Abstellraum.
Ausstattung: (Schlüsselfertig)
- Dreifach verglaste Fenster
- Elektrische Rollläden
- Fußbodenheizung
Projektübersicht:
- TOP 1 | Gartenwohnung (nicht im Verkauf)
- TOP 2 | Verfügbar
- TOP 3 | Verkauft
- TOP 4 | Verkauft
- TOP 5 | Verfügbar
- TOP 6 | Aktuell im Angebot!
- TOP 7 | Verfügbar
Weitere Details der Ausstattung können gerne persönlich besprochen werden!
Jetzt habe ich Ihr Interesse geweckt? Dann zögern Sie nicht und vereinbaren Sie am besten noch heute Ihren persönlichen Besichtigungstermin unter 0664/1495097.
Ich freue mich auf Ihren Anruf, Dominic Nagele-Stolz, DAHEIM D.A. Immobilien GmbH
Infrastruktur / Entfernungen
Gesundheit
Arzt <1.000m
Apotheke <500m
Klinik <2.500m
Krankenhaus <1.500m
Kinder & Schulen
Schule <500m
Kindergarten <1.000m
Universität <2.500m
Höhere Schule <2.500m
Nahversorgung
Supermarkt <500m
Bäckerei <500m
Einkaufszentrum <2.000m
Sonstige
Geldautomat <1.500m
Bank <1.500m
Post <2.000m
Polizei <1.500m
Verkehr
Bus <500m
Straßenbahn <500m
Autobahnanschluss <2.500m
Bahnhof <1.500m
Flughafen <6.500m
Angaben Entfernung Luftlinie / Quelle: OpenStreetMap
Objektdaten
Ausstattung
- Fußbodenheizung
- Fern Befeuerung
- Personen Fahrstuhl
- Ausrichtung Balkon/Terrasse - Südwest
- Flachdach
- Massiv Bauweise
Zustand
- Zustand
- NEUWERTIG
- Baujahr
- 2024
- Alter
- NEUBAU
- HWB
- 27.7 kWh/m² pro Jahr
- Klasse HWB
- B
- fGEE
- 0.77
- Klasse fGEE
- A
Flächen
- Anzahl der Badezimmer
- 2
- Anzahl der sep. WCs
- 1
- Anzahl der Balkone
- 2
- Stellplätze
- 1
- Wohnfläche
- 81m²
- Kellerfläche
- 4m²
Kosten
- Kaufpreis Brutto
- € 459.000,00
Verwaltung
- Verfügbar ab
- 01.07.2025
Wohnungen zum Kaufen in Österreich
Wohnungen zum Kaufen in Österreich
Andere Besucher suchen nach...
- Grundstücke kaufen in 3400 Weidlingbach
- Wohnungen kaufen in 4663 Laakirchen
- Häuser in 7471 Rechnitz
- Wohnungen in 2410 Hainburg an der Donau
- Häuser kaufen in 2432 Schwadorf
- Wohnungen kaufen in 3002 Purkersdorf
- Häuser in 3150 Wilhelmsburg
- Wohnungen kaufen in 3470 Engelmannsbrunn
- Grundstücke kaufen im Bezirk Mattersburg
- Grundstücke kaufen im Bezirk Gmunden