Einfamilienhaus mit Pool, Garagen großem Zukunftspotenzial in bester Leibnitzer Lage
€ 389.000
€ 2.343 / m²
8430 Leibnitz
-
sofort
Beschreibung
Dieses charmante Einfamilienhaus im Herzen der Südsteiermark verbindet historischen Charakter mit moderner Ausstattung. Mit einer Wohnfläche von ca. 166 m² auf zwei Ebenen und einem Grundstück von rund 590 m² bietet es sowohl Familien als auch Freiberuflern zahlreiche Möglichkeiten – vom gemütlichen Zuhause bis hin zur Kanzlei, Praxis oder Büro. Die im Jahr 1895 errichtete Liegenschaft wurde zuletzt 2011 renoviert und präsentiert sich heute in einem gepflegten Zustand mit viel Raum für individuelle Gestaltung. Raumaufteilung Erdgeschoss: Küche mit Speis, großzügiges Wohnzimmer mit behaglichem Schwedenofen, Badezimmer (älterer Standard), zwei flexibel nutzbare Räume sowie Wc und Abstellraum. Obergeschoss: drei helle Zimmer, ideal...
Dieses charmante Einfamilienhaus im Herzen der Südsteiermark verbindet historischen Charakter mit moderner Ausstattung.
Mit einer Wohnfläche von ca. 166 m² auf zwei Ebenen und einem Grundstück von rund 590 m² bietet es sowohl Familien als auch Freiberuflern zahlreiche Möglichkeiten – vom gemütlichen Zuhause bis hin zur Kanzlei, Praxis oder Büro.
Die im Jahr 1895 errichtete Liegenschaft wurde zuletzt 2011 renoviert und präsentiert sich heute in einem gepflegten Zustand mit viel Raum für individuelle Gestaltung.
Raumaufteilung
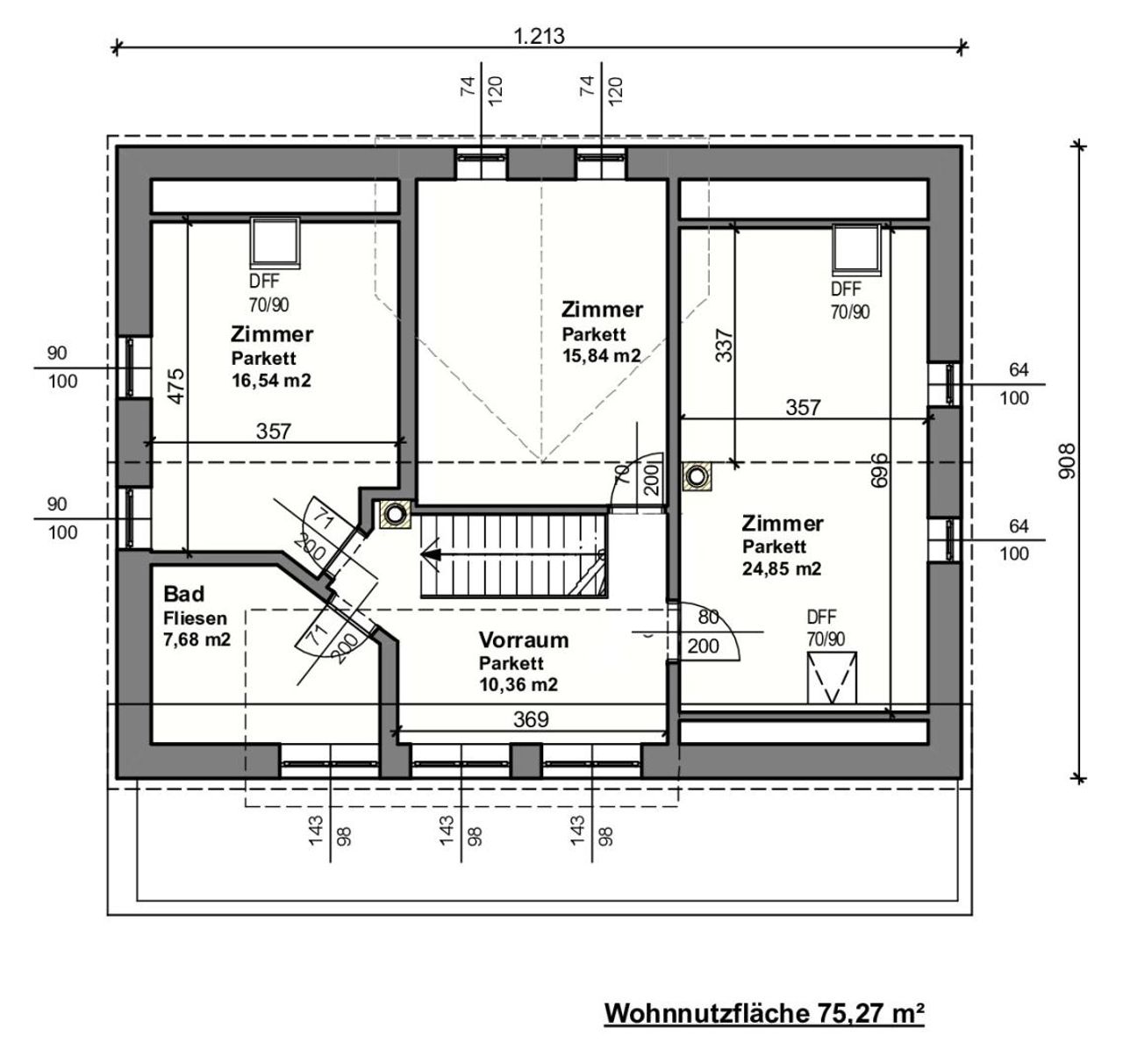
Erdgeschoss: Küche mit Speis, großzügiges Wohnzimmer mit behaglichem Schwedenofen, Badezimmer (älterer Standard), zwei flexibel nutzbare Räume sowie Wc und Abstellraum.
Obergeschoss: drei helle Zimmer, ideal als Schlaf-, Kinder- oder Arbeitsräume, sowie ein modernisiertes Badezimmer mit WC.
Keller: praktischer Abstellraum mit ca. 20 m².
Ausstattung & Highlights
O) Schwedenofen im Wohnzimmer für gemütliche Atmosphäre
O) Sonnenterrasse mit elektrischer Markise
O) Elektrisches Einfahrtstor für komfortables Ankommen
O) Salzwasserpool im Innenhof (Durchmesser 4,5 m) – perfekt für heiße Sommertage
O) Brunnen am Grundstück
O) Doppelcarport
O) Zwei großzügige Garagen mit E-Tor, eine davon mit Werkstattgrube
O) Beheizung über Öl-Zentralheizung
O) Solaranlage am Dach zur Warmwasseraufbereitung
O) Nahwärme und Glasfaser könnten ab Frühjahr 2026 angeschlossen werden
Nutzungsmöglichkeiten
Ob als großzügiges Familienhaus mit viel Platz für Kinder, als repräsentative Kanzlei, Praxis oder Bürogebäude in attraktiver Lage – dieses Objekt lässt sich flexibel an Ihre Wünsche anpassen.
Die gelungene Kombination aus solider Bausubstanz, zeitgemäßer Ausstattung und vielseitigem Nutzungspotenzial macht dieses Haus zu einem besonderen Angebot am Standort Leibnitz.
Alle Immobilien sowie Objektvideos und 360°-Bilder finden Sie auf www.remax.at
Mit einer Wohnfläche von ca. 166 m² auf zwei Ebenen und einem Grundstück von rund 590 m² bietet es sowohl Familien als auch Freiberuflern zahlreiche Möglichkeiten – vom gemütlichen Zuhause bis hin zur Kanzlei, Praxis oder Büro.
Die im Jahr 1895 errichtete Liegenschaft wurde zuletzt 2011 renoviert und präsentiert sich heute in einem gepflegten Zustand mit viel Raum für individuelle Gestaltung.
Raumaufteilung
Erdgeschoss: Küche mit Speis, großzügiges Wohnzimmer mit behaglichem Schwedenofen, Badezimmer (älterer Standard), zwei flexibel nutzbare Räume sowie Wc und Abstellraum.
Obergeschoss: drei helle Zimmer, ideal als Schlaf-, Kinder- oder Arbeitsräume, sowie ein modernisiertes Badezimmer mit WC.
Keller: praktischer Abstellraum mit ca. 20 m².
Ausstattung & Highlights
O) Schwedenofen im Wohnzimmer für gemütliche Atmosphäre
O) Sonnenterrasse mit elektrischer Markise
O) Elektrisches Einfahrtstor für komfortables Ankommen
O) Salzwasserpool im Innenhof (Durchmesser 4,5 m) – perfekt für heiße Sommertage
O) Brunnen am Grundstück
O) Doppelcarport
O) Zwei großzügige Garagen mit E-Tor, eine davon mit Werkstattgrube
O) Beheizung über Öl-Zentralheizung
O) Solaranlage am Dach zur Warmwasseraufbereitung
O) Nahwärme und Glasfaser könnten ab Frühjahr 2026 angeschlossen werden
Nutzungsmöglichkeiten
Ob als großzügiges Familienhaus mit viel Platz für Kinder, als repräsentative Kanzlei, Praxis oder Bürogebäude in attraktiver Lage – dieses Objekt lässt sich flexibel an Ihre Wünsche anpassen.
Die gelungene Kombination aus solider Bausubstanz, zeitgemäßer Ausstattung und vielseitigem Nutzungspotenzial macht dieses Haus zu einem besonderen Angebot am Standort Leibnitz.
| Angaben gemäß gesetzlichem Erfordernis: | |||
| Heizwärmebedarf: | 222.0 kWh/(m²a) | ||
| Klasse Heizwärmebedarf: | F | ||
| Faktor Gesamtenergieeffizienz: | 2.85 | ||
| Klasse Faktor Gesamtenergieeffizienz: | E | ||
Alle Immobilien sowie Objektvideos und 360°-Bilder finden Sie auf www.remax.at
Objektdaten
Ausstattung
- Kabel/SAT-TV
- Teilunterkellert
- Zentralheizung
- Befeuerung mit Öl
- Küche Möbliert
- Kabel/SAT-TV
- Zentralheizung mit Öl
Zustand
- Baujahr
- ca. 1895
Flächen
- Anzahl der Zimmer
- 6
- Anzahl der Schlafzimmer
- 4
- Anzahl der Badezimmer
- 2
- Anzahl der sep. WCs
- 2
- Anzahl der Terrassen
- 1
- Stellplätze
- 4
- Wohnfläche
- 166m²
- Grundstücksfläche
- 592m²
- Kellerfläche
- 21m²
- Terrassenfläche
- 1m²
Kosten
- Kaufpreis
- € 389.000,00
Verwaltung
- Verfügbar ab
- sofort
Häuser zum Kaufen im Umkreis von Leibnitz
Häuser zum Kaufen im Umkreis von Leibnitz
Häuser zum Kaufen in Österreich
Andere Besucher suchen nach...
- Grundstücke kaufen in 3400 Weidlingbach
- Wohnungen kaufen in 4663 Laakirchen
- Häuser in 7471 Rechnitz
- Wohnungen in 2410 Hainburg an der Donau
- Häuser kaufen in 2432 Schwadorf
- Wohnungen kaufen in 3002 Purkersdorf
- Häuser in 3150 Wilhelmsburg
- Wohnungen kaufen in 3470 Engelmannsbrunn
- Grundstücke kaufen im Bezirk Mattersburg
- Grundstücke kaufen im Bezirk Gmunden