Von ALT auf NEU mit kleiner Aussenfläche - gleich beim Belvedere und Schweizergarten
-
Erstbezug
-
sofort
Beschreibung
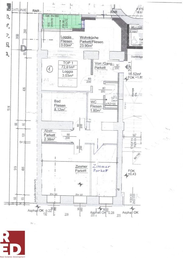
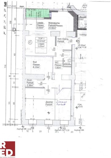
Wenn Sie den Altbauflair lieben, jedoch auf moderne Ausgestaltung wert legen, dann ist das hier genau das Richtige für Sie. Das gesamte Haus unterzog sich eine Sanierung. So wurden die Fassaden gedämmt, sämtliche Steigleitungen instand gesetzt und Lift eingebaut. Nach einem kleinen Vorraum eröffnet sich zum einen die eingerichtete Neue Küche und der Wohnraum mit der Loggia. Zum anderen ist von einem weiteren Vorraum aus das Wc sowie ein Abstellraum, ein Bad mit Wanne und Doppelwaschtisch und die beiden Zimmer zu begehen.
Ein besonderes Highlight ist die kleine Loggia, die bei heißen Sommertagen angenehmere Kühle spendet. Hier läßt es sich...
Wenn Sie den Altbauflair lieben, jedoch auf moderne Ausgestaltung wert legen, dann ist das hier genau das Richtige für Sie. Das gesamte Haus unterzog sich eine Sanierung. So wurden die Fassaden gedämmt, sämtliche Steigleitungen instand gesetzt und Lift eingebaut. Nach einem kleinen Vorraum eröffnet sich zum einen die eingerichtete Neue Küche und der Wohnraum mit der Loggia. Zum anderen ist von einem weiteren Vorraum aus das Wc sowie ein Abstellraum, ein Bad mit Wanne und Doppelwaschtisch und die beiden Zimmer zu begehen.
Ein besonderes Highlight ist die kleine Loggia, die bei heißen Sommertagen angenehmere Kühle spendet. Hier läßt es sich vom Stress des Alltags abschalten und Kraft für den nächsten Tag tanken.
Diese Wohnung ist eine von 15 Wohnungen mit unterschiedlichen Größen , teilweise mit Loggias.
Desweiteren gibt es noch 4 Maisonette Dachgesschoßwohnungen
Wohnungen im Hause mit annähernd gleichen Grundrissen : 70,82m²- 83,71m²
EG Top 1 70,82m² 3 Zimmer Preis € 389.000,- mit Loggia 3,03m² das ist dieses Expose
1. OG Top 5 83,20m² 3 Zimmer Preis € 549.000,- mit Loggia 19,11m²
2. OG Top 9 82,97m² 3 Zimmer Preis € 579.000,- mit Loggia 18,61m²
3.OG Top13 83,71m² 3 Zimmer Preis € 599.000,- mit Loggia 18,85m²
Wohnungen im Hause mit annähernd gleichen Grundrissen : 64,71m² - 65,89m²
2.OG Top10 65,91m² 2,5 Zimmer Preis € 399.000,-
3.OG Top14 65,89m² 2,5 Zimmer Preis € 419.000,-
Wohnungen im Hause mit annähernd gleichen Grundrissen : 63,01m² - 64,46m²
EG Top 3 63,01m² 3 Zimmer Preis € 359.000,- mit Balkon
1.OG Top 7 63,02m² 3 Zimmer Preis € 379.000,- mit Balkon
2.OG Top11 63,02m² 3 Zimmer Preis € 399.000,- mit Balkon
3.OG Top15 64,46m² 3 Zimmer Preis € 429.000,- mit Balkon
Wohnungen im Hause mit annähernd gleichen Grundrissen: 59,64m² - 63,03m²
EG Top 4 59,64m² 2 Zimmer Preis € 379.000,- mit Balkon 6,78m²
1.OG Top 8 61,67m² 2 Zimmer Preis € 399.000,- mit Balkon 6,78m²
DACHGESCHOSS-Maisonette-Wohnungen:
1.DG
Top18 109,53m² 3 Zimmer Preis € 699.000,- mit Terrasse 5,35m²
Top20 95,47m² 2 Zimmer Preis € 649.000,- mit Terrasse 9,91m² + Balkon 6,75m²
Top21 58,72m² 2 Zimmer Preis € 449.000,- mit Balkon 3,64m² + Loggia 4,84m²
Gerne schicke ich Ihnen auch dazu ein Expose , eine Besichtigung ist jederzeit möglich.
Teilweise sind diese Wohnungen mit einer sehr modernen Küche ausgestattet.
Wir weisen darauf hin, dass zwischen dem Vermittler und dem zu vermittelnden Dritten ein familiäres oder wirtschaftliches Naheverhältnis besteht.
Der Vermittler ist als Doppelmakler tätig.
RED Real Estates Development Immobilien und Bauträger GmbH
Sterngasse 3/2/6
1010 Wien
+43 676 5063031
Infrastruktur / Entfernungen
Gesundheit
Arzt <500m
Apotheke <500m
Klinik <1.000m
Krankenhaus <1.000m
Kinder & Schulen
Schule <500m
Kindergarten <500m
Universität <1.000m
Höhere Schule <1.000m
Nahversorgung
Supermarkt <500m
Bäckerei <500m
Einkaufszentrum <1.000m
Sonstige
Geldautomat <500m
Bank <500m
Post <1.000m
Polizei <1.000m
Verkehr
Bus <500m
U-Bahn <1.000m
Straßenbahn <500m
Bahnhof <500m
Autobahnanschluss <2.000m
Angaben Entfernung Luftlinie / Quelle: OpenStreetMap
Objektdaten
Ausstattung
- Fahrradraum
- Seniorengerecht
- Bad mit Badewanne
- Einbauküche
- Fliesenboden
- Parkettboden
- Dielenboden
- Zentralheizung
- Fußbodenheizung
- Befeuerung mit Gas
- Personen Fahrstuhl
- Ausrichtung Balkon/Terrasse - Nord
- Satteldach
- Massiv Bauweise
Zustand
- Zustand
- ERSTBEZUG
- Baujahr
- 1900
- Alter
- ALTBAU
- HWB
- 48.87 kWh/m² pro Jahr
- Klasse HWB
- B
- fGEE
- 0.75
- Klasse fGEE
- A
Flächen
- Anzahl der Zimmer
- 3
- Anzahl der Badezimmer
- 1
- Anzahl der sep. WCs
- 1
- Anzahl der Logia
- 1
- Wohnfläche
- 71m²
Kosten
- Kaufpreis Brutto
- € 389.000,00
Verwaltung
- Verfügbar ab
- sofort
Wohnungen zum Kaufen in Österreich
- Bezirk Gemeindebezirk Landstrasse
- Bezirk Gemeindebezirk Landstrasse
- Bezirk Gemeindebezirk Landstrasse
- Bezirk Gemeindebezirk Innere Stadt
- Bezirk Gemeindebezirk Innere Stadt
- Bezirk Gemeindebezirk Innere Stadt
- Bezirk Gemeindebezirk Leopoldstadt
- Bezirk Gemeindebezirk Leopoldstadt
- Bezirk Gemeindebezirk Leopoldstadt
- Bezirk Gemeindebezirk Wieden
Wohnungen zum Kaufen in Österreich
Andere Besucher suchen nach...
- Immobilien kaufen in 2601 Sollenau
- Immobilien in 4951 Polling im Innkreis, Oberösterreich
- Immobilien in 4742 Pram, Oberösterreich kaufen oder mieten
- Häuser kaufen in 2340 Mödling, Niederösterreich
- Häuser kaufen in 9421 Gemmersdorf, Kärnten
- Wohnungen / Eigentumswohnungen kaufen in 9431 St. Stefan, Kärnten
- Häuser kaufen in Bruck an der Leitha, Niederösterreich
- Immobilien mieten in Krems an der Donau, Niederösterreich
- Häuser zum Kaufen im Bezirk St. Pölten Land, Niederösterreich
- Büro / Praxen mieten in Rohrbach, Oberösterreich