Gewerbegrundstück (gewidmet) Nähe ÖBB-Terminal Wels
€ 1.253.181
4600 Wels
Beschreibung
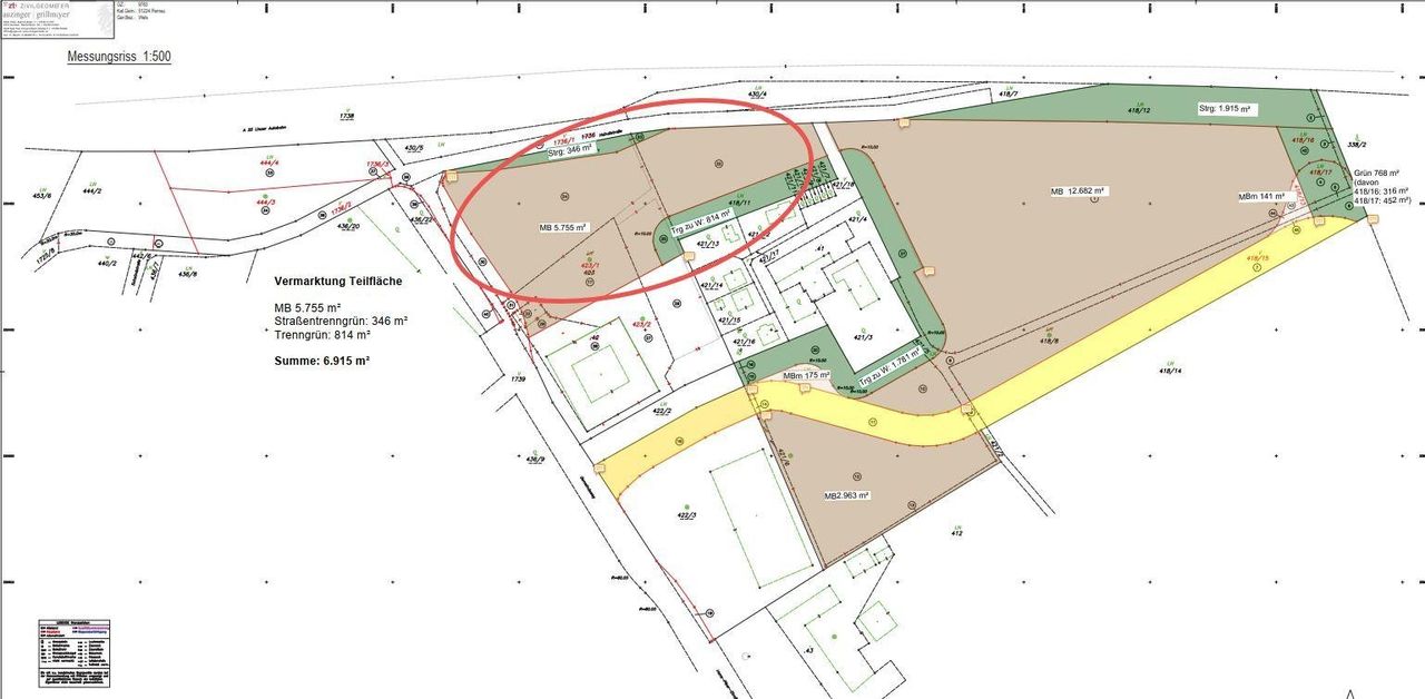
Die ÖBB bauen den Terminal Wels aus ------ dieser ist einer der größten und wichtigsten Terminalstandorte der ÖBB-Infrastruktur! Hier im Nahbereich stehen AB SOFORT gewidmete Gewerbeflächen zur Verfügung! Nützen Sie diesen Standortvorteil und sichern Sie sich ein Gewerbegrundstück in unmittelbarer Nähe! EBEN, BAUREIF UND SOFORT VERFÜGBAR Gewerbegrundstück - Größe 5.755 m² (Bauplatzgröße) Straßenbegleitgrün, Trenngrün Seitens Stadt Wels wurde kein Bebauungsplan verordnet, somit gilt die OÖ Bauordnung. Direkt vom Eigentümer WBA (Wels Betriebsansiedelungs-GmbH) Mischpreis: € 181,23/m² (Preisbasis Dezember 2025) zusätzlich Index ab Dezember 25 bis Vertragsabschluss Lage: Knoten A25 Wels Ost und Knoten ÖBB-Terminal in unmittelbarer Nähe - Linz-Wels (A25) -...
Die ÖBB bauen den Terminal Wels aus ------ dieser ist einer der größten und wichtigsten Terminalstandorte der ÖBB-Infrastruktur!
Hier im Nahbereich stehen AB SOFORT gewidmete Gewerbeflächen zur Verfügung!
Nützen Sie diesen Standortvorteil und sichern Sie sich ein Gewerbegrundstück in unmittelbarer Nähe!
EBEN, BAUREIF UND SOFORT VERFÜGBAR
Gewerbegrundstück - Größe 5.755 m² (Bauplatzgröße)
Straßenbegleitgrün, Trenngrün
Seitens Stadt Wels wurde kein Bebauungsplan verordnet, somit gilt die OÖ Bauordnung.
Direkt vom Eigentümer WBA (Wels Betriebsansiedelungs-GmbH)
Mischpreis: € 181,23/m² (Preisbasis Dezember 2025)
zusätzlich Index ab Dezember 25 bis Vertragsabschluss
Lage:
Knoten A25 Wels Ost und Knoten ÖBB-Terminal in unmittelbarer Nähe - Linz-Wels (A25) - Linz - Passau (A8) bzw. Anbindung an A1 via Knoten Voralpenkreuz (Wien-Salzburg-Graz-Passau)
Sonstiges:
Zu Ihrer Sicherheit sind die städtebaulichen Rahmenbedingungen für die Nutzung des Grundstückes in einem zu übernehmenden Raumordnungsvertrag definiert. Die technischen, sozialen und grünen Infrastrukturbeiträge der Stadt Wels sind bereits entrichtet und im Kaufpreis inkludiert.
Mitarbeiternachweis nach der Inbetriebnahme
Wir weisen darauf hin, dass die von der WBA bereits entrichteten Kanal- und Wasseraufschließungsbeiträge vom Käufer zu übernehmen sind. Bei Errichtung des Kanal- und Wasseranschlusses am Grundstück werden bisher geleistete Aufschließungsbeiträge abgezogen.
Für dieses Grundstück betragen diese Beiträge:
Wasseraufschließungsbeitrag: € 180,00/Jahr
Kanalaufschließungsbeitrag: € 840,23/Jahr
Wir freuen uns über Ihr Interesse und stehen für weitere Informationen, Auskünfte und Termine gerne jederzeit unter der Telefonnummer 07242/67722-0 bzw. per Email unter office@wels.at zur Verfügung.
Hier im Nahbereich stehen AB SOFORT gewidmete Gewerbeflächen zur Verfügung!
Nützen Sie diesen Standortvorteil und sichern Sie sich ein Gewerbegrundstück in unmittelbarer Nähe!
EBEN, BAUREIF UND SOFORT VERFÜGBAR
Gewerbegrundstück - Größe 5.755 m² (Bauplatzgröße)
Straßenbegleitgrün, Trenngrün
Seitens Stadt Wels wurde kein Bebauungsplan verordnet, somit gilt die OÖ Bauordnung.
Direkt vom Eigentümer WBA (Wels Betriebsansiedelungs-GmbH)
Mischpreis: € 181,23/m² (Preisbasis Dezember 2025)
zusätzlich Index ab Dezember 25 bis Vertragsabschluss
Lage:
Knoten A25 Wels Ost und Knoten ÖBB-Terminal in unmittelbarer Nähe - Linz-Wels (A25) - Linz - Passau (A8) bzw. Anbindung an A1 via Knoten Voralpenkreuz (Wien-Salzburg-Graz-Passau)
Sonstiges:
Zu Ihrer Sicherheit sind die städtebaulichen Rahmenbedingungen für die Nutzung des Grundstückes in einem zu übernehmenden Raumordnungsvertrag definiert. Die technischen, sozialen und grünen Infrastrukturbeiträge der Stadt Wels sind bereits entrichtet und im Kaufpreis inkludiert.
Mitarbeiternachweis nach der Inbetriebnahme
Wir weisen darauf hin, dass die von der WBA bereits entrichteten Kanal- und Wasseraufschließungsbeiträge vom Käufer zu übernehmen sind. Bei Errichtung des Kanal- und Wasseranschlusses am Grundstück werden bisher geleistete Aufschließungsbeiträge abgezogen.
Für dieses Grundstück betragen diese Beiträge:
Wasseraufschließungsbeitrag: € 180,00/Jahr
Kanalaufschließungsbeitrag: € 840,23/Jahr
Wir freuen uns über Ihr Interesse und stehen für weitere Informationen, Auskünfte und Termine gerne jederzeit unter der Telefonnummer 07242/67722-0 bzw. per Email unter office@wels.at zur Verfügung.
Objektdaten
Ausstattung
- Bus
- Eisenbahn
- Stadtrand
Dokumente / Links
- Terminal_Teilungsplan 17112022
- Darstellung Anliegerleistungen je Grundstück
- Merkblatt Aufschließungsbeiträge Stadt Wels
- Projekt Terminal
Flächen
- Grundstücksfläche
- 6.915m²
Kosten
- Kaufpreis
- € 1.253.181,00
Grundstücke zum Kaufen in Österreich
Grundstücke zum Kaufen in Österreich
Grundstücke zum Kaufen in Österreich
Andere Besucher suchen nach...
- Grundstücke kaufen in 3400 Weidlingbach
- Wohnungen kaufen in 4663 Laakirchen
- Häuser in 7471 Rechnitz
- Wohnungen in 2410 Hainburg an der Donau
- Häuser kaufen in 2432 Schwadorf
- Wohnungen kaufen in 3002 Purkersdorf
- Häuser in 3150 Wilhelmsburg
- Wohnungen kaufen in 3470 Engelmannsbrunn
- Grundstücke kaufen im Bezirk Mattersburg
- Grundstücke kaufen im Bezirk Gmunden