Eigentumswohnung
€ 280.000
€ 3.146 / m²
5233 Pischelsdorf am Engelbach
-
2021
-
4 Monate nach KV
Beschreibung
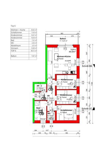
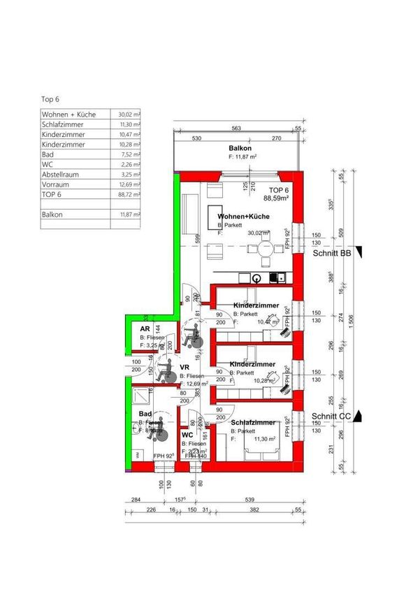
4 Zimmer - Eigentumswohnungen in ländlicher Gegend am Waldrand Nach Süd-Westen ausgerichtete Eigentumswohnung im großem Balkon im 1. Obergeschoss. Lift auch in den Keller vorhanden. Die Wohnung besteht aus einer großen Wohnküche, 3 Schlafzimmern, Bad, WC, Abstellraum und Diele. Ebenso inkludiert sind ein Kellerabteil ind zwei Stellplätze. Glasfaser ist vorhanden. Eine Bushaltestelle befindet sich unmittelbar vor der Wohnanlage. Nach Mattighofen sind es ca. 9 km, Braunau ca. 12 km. Kindergarten, Schule und sämtliche öffentlichen Einrichtungen befinden sich in ca. 2 km Entfernung in Pischelsdorf. Wir weisen auf Ihre 14-tägige Rücktrittsfrist (nach § 11 FAGG ) hin. Damit Ihre Rechte gewahrt...
4 Zimmer - Eigentumswohnungen in ländlicher Gegend am Waldrand
Nach Süd-Westen ausgerichtete Eigentumswohnung im großem Balkon im 1. Obergeschoss.
Lift auch in den Keller vorhanden.
Die Wohnung besteht aus einer großen Wohnküche,
3 Schlafzimmern, Bad, WC, Abstellraum und Diele.
Ebenso inkludiert sind ein Kellerabteil ind zwei Stellplätze.
Glasfaser ist vorhanden.
Eine Bushaltestelle befindet sich unmittelbar vor der Wohnanlage.
Nach Mattighofen sind es ca. 9 km, Braunau ca. 12 km.
Kindergarten, Schule und sämtliche öffentlichen Einrichtungen befinden sich in ca. 2 km Entfernung in Pischelsdorf.
Wir weisen auf Ihre 14-tägige Rücktrittsfrist (nach § 11 FAGG ) hin. Damit Ihre Rechte gewahrt werden, beantworten wir nur Anfragen mit vollständigen Kontaktdaten (Name, Adresse, Handy, E-Mail). Wir werden gerne vor Ablauf der 14-tägigen Rücktrittsfrist für Sie tätig, wenn Sie uns gesetzeskonform (FAGG) und ausdrücklich (am besten per E-Mail) auffordern. Wenn Kaufvertrag/ Mietvertrag nicht zustande kommen, ist unsere Tätigkeit für Sie völlig kostenfrei. Wir möchten an dieser Stelle auf unsere Doppelmaklertätigkeit hinweisen.
Nur auf www.remax.at finden Sie neue RE/MAX Immobilien früher und vollständig.
Neuer Job, neue Perspektiven: Jetzt als Immobilienmakler/in durchstarten!
Werden Sie Teil unseres Teams – jetzt bewerben unter karriere@remax-innova.at.
Weitere Infos in unseren News: https://www.remax.at/de/ib/remax-innova-braunau-inn/news/wir-suchen-sie-16641
Nach Süd-Westen ausgerichtete Eigentumswohnung im großem Balkon im 1. Obergeschoss.
Lift auch in den Keller vorhanden.
Die Wohnung besteht aus einer großen Wohnküche,
3 Schlafzimmern, Bad, WC, Abstellraum und Diele.
Ebenso inkludiert sind ein Kellerabteil ind zwei Stellplätze.
Glasfaser ist vorhanden.
Eine Bushaltestelle befindet sich unmittelbar vor der Wohnanlage.
Nach Mattighofen sind es ca. 9 km, Braunau ca. 12 km.
Kindergarten, Schule und sämtliche öffentlichen Einrichtungen befinden sich in ca. 2 km Entfernung in Pischelsdorf.
Wir weisen auf Ihre 14-tägige Rücktrittsfrist (nach § 11 FAGG ) hin. Damit Ihre Rechte gewahrt werden, beantworten wir nur Anfragen mit vollständigen Kontaktdaten (Name, Adresse, Handy, E-Mail). Wir werden gerne vor Ablauf der 14-tägigen Rücktrittsfrist für Sie tätig, wenn Sie uns gesetzeskonform (FAGG) und ausdrücklich (am besten per E-Mail) auffordern. Wenn Kaufvertrag/ Mietvertrag nicht zustande kommen, ist unsere Tätigkeit für Sie völlig kostenfrei. Wir möchten an dieser Stelle auf unsere Doppelmaklertätigkeit hinweisen.
Nur auf www.remax.at finden Sie neue RE/MAX Immobilien früher und vollständig.
Neuer Job, neue Perspektiven: Jetzt als Immobilienmakler/in durchstarten!
Werden Sie Teil unseres Teams – jetzt bewerben unter karriere@remax-innova.at.
Weitere Infos in unseren News: https://www.remax.at/de/ib/remax-innova-braunau-inn/news/wir-suchen-sie-16641
Der Vermittler ist als Doppelmakler tätig.
Infrastruktur / Entfernungen
Gesundheit
Arzt <3.000m
Apotheke <5.500m
Kinder & Schulen
Schule <1.500m
Kindergarten <3.000m
Nahversorgung
Supermarkt <2.500m
Bäckerei <1.500m
Einkaufszentrum <5.500m
Sonstige
Bank <1.500m
Geldautomat <1.500m
Post <3.000m
Polizei <5.500m
Verkehr
Bus <1.500m
Bahnhof <3.500m
Angaben Entfernung Luftlinie / Quelle: OpenStreetMap
Objektdaten
Ausstattung
- Teilmöbliert
- Fußbodenheizung
- Personen Fahrstuhl
Dokumente / Links
Zustand
- Baujahr
- 2021
- HWB
- 29 kWh/m² pro Jahr
- Klasse HWB
- B
- fGEE
- 0.8
- Klasse fGEE
- A
Flächen
- Anzahl der Zimmer
- 4
- Anzahl der Badezimmer
- 1
- Anzahl der sep. WCs
- 1
- Stellplätze
- 2
- Wohnfläche
- 89m²
- Kellerfläche
- 4m²
Kosten
- Kaufpreis Brutto
- € 280.000,00
Verwaltung
- Verfügbar ab
- 4 Monate nach KV
Wohnungen zum Kaufen im Umkreis von Pischelsdorf am Engelbach
Wohnungen zum Kaufen im Umkreis von Pischelsdorf am Engelbach
Wohnungen zum Kaufen in Österreich
Andere Besucher suchen nach...
- Grundstücke kaufen in 3400 Weidlingbach
- Wohnungen kaufen in 4663 Laakirchen
- Häuser in 7471 Rechnitz
- Wohnungen in 2410 Hainburg an der Donau
- Häuser kaufen in 2432 Schwadorf
- Wohnungen kaufen in 3002 Purkersdorf
- Häuser in 3150 Wilhelmsburg
- Wohnungen kaufen in 3470 Engelmannsbrunn
- Grundstücke kaufen im Bezirk Mattersburg
- Grundstücke kaufen im Bezirk Gmunden