Eigentumswohnung
-
sofort
Beschreibung
Gepflegte 3-Zimmer Eigentumswohnung mit guter Aussicht in Braunau/Neustadt
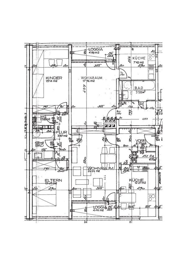
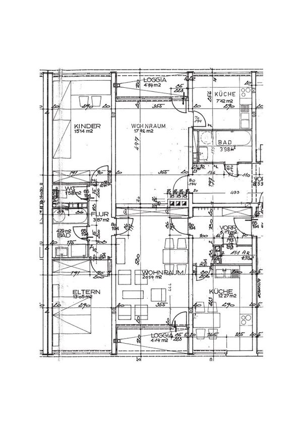
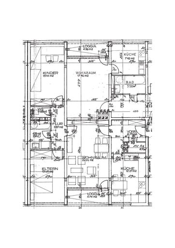
Die im 4.Stock eines siebenstöckigen (mit Lift) Mehrparteienhauses befindliche 3 Zimmer Wohnung, besticht durch ihre gute Raumaufteilung und ihre zentrale Lage. Die Wohnung besteht aus 2 Schlafzimmern, einem Wohnzimmer, Bad, WC, der Essküche, einer Speis, Vorraum und Loggia.
Ideal für die kleine Familie. Zur Wohnung gehört auch noch ein Kellerabteil und genügend Parkplätze vor dem Haus. Sämtliche Dinge des täglichen Lebens sind in direkter Umgebung. Nahversorger, Ärzte, Schulen, Sport, Bushaltestelle, etc.
Braunau ist die Bezirkshauptstadt und liegt direkt an der Grenze zu Bayern mit der Nachbarstadt Simbach. Jeweils ca. eine...
Gepflegte 3-Zimmer Eigentumswohnung mit guter Aussicht in Braunau/Neustadt
Die im 4.Stock eines siebenstöckigen (mit Lift) Mehrparteienhauses befindliche 3 Zimmer Wohnung, besticht durch ihre gute Raumaufteilung und ihre zentrale Lage.
Die Wohnung besteht aus 2 Schlafzimmern, einem Wohnzimmer, Bad, WC, der Essküche, einer Speis, Vorraum und Loggia.
Ideal für die kleine Familie.
Zur Wohnung gehört auch noch ein Kellerabteil und genügend Parkplätze vor dem Haus.
Sämtliche Dinge des täglichen Lebens sind in direkter Umgebung.
Nahversorger, Ärzte, Schulen, Sport, Bushaltestelle, etc.
Braunau ist die Bezirkshauptstadt und liegt direkt an der Grenze zu Bayern mit der Nachbarstadt Simbach.
Jeweils ca. eine Stunde Fahrzeit zu den Städten Salzburg, Linz und München.
Die Lage des Hauses ist nahe dem Freizeitzentrum Braunau.
Zu Fuß aber auch nur ca. 10 Minuten auf den Stadtplatz und wenige Minuten mehr zum Bahnhof und zur Bezirkshauptmannschaft.
Sämtliche Dinge des täglichen Lebens befinden sich in unmittelbarer Nähe und sind in wenigen Minuten zu Fuß erreichbar.
Zu den großen Arbeitgebern der Umgebung (AMAG, B&R, KTM und Wacker) sind es jeweils maximal ca. 20 Kilometer.
Wir weisen auf Ihre 14-tägige Rücktrittsfrist (nach § 11 FAGG ) hin. Damit Ihre Rechte gewahrt werden, beantworten wir nur Anfragen mit vollständigen Kontaktdaten (Name, Adresse, Handy, E-Mail). Wir werden gerne vor Ablauf der 14-tägigen Rücktrittsfrist für Sie tätig, wenn Sie uns gesetzeskonform (FAGG) und ausdrücklich (am besten per E-Mail) auffordern. Wenn Kaufvertrag/ Mietvertrag nicht zustande kommen, ist unsere Tätigkeit für Sie völlig kostenfrei. Wir möchten an dieser Stelle auf unsere Doppelmaklertätigkeit hinweisen.
Neuer Job, neue Perspektiven: Jetzt als Immobilienmakler/in durchstarten!
Werden Sie Teil unseres Teams – jetzt bewerben unter karriere@remax-innova.at.
Weitere Infos in unseren News: https://www.remax.at/de/ib/remax-innova-braunau-inn/news/wir-suchen-sie-16641
Der Vermittler ist als Doppelmakler tätig.
Objektdaten
Ausstattung
- Teilmöbliert
- Zentralheizung
- Fernwärme Heizung
- Personen Fahrstuhl
Dokumente / Links
Zustand
- Zustand
- GEPFLEGT
- Baujahr
- 1972
- HWB
- 38 kWh/m² pro Jahr
- Klasse HWB
- B
- fGEE
- 1.07
- Klasse fGEE
- C
Flächen
- Anzahl der Zimmer
- 3
- Anzahl der Badezimmer
- 1
- Anzahl der sep. WCs
- 1
- Anzahl der Logia
- 1
- Wohnfläche
- 83m²
- Kellerfläche
- 5m²
Kosten
- Kaufpreis Brutto
- € 190.000,00
Verwaltung
- Verfügbar ab
- sofort
Wohnungen zum Kaufen im Umkreis von Braunau am Inn
Wohnungen zum Kaufen im Umkreis von Braunau am Inn
Wohnungen zum Kaufen in Österreich
Andere Besucher suchen nach...
- Grundstücke kaufen in 3400 Weidlingbach
- Wohnungen kaufen in 4663 Laakirchen
- Häuser in 7471 Rechnitz
- Wohnungen in 2410 Hainburg an der Donau
- Häuser kaufen in 2432 Schwadorf
- Wohnungen kaufen in 3002 Purkersdorf
- Häuser in 3150 Wilhelmsburg
- Wohnungen kaufen in 3470 Engelmannsbrunn
- Grundstücke kaufen im Bezirk Mattersburg
- Grundstücke kaufen im Bezirk Gmunden