Historischer Blick, modernes Wohnen – Maisonette an der Oberstadt
Beschreibung
Kmenta & Partner Immobilienmakler GmbH in Kooperation mit Perfekt Immo GmbH
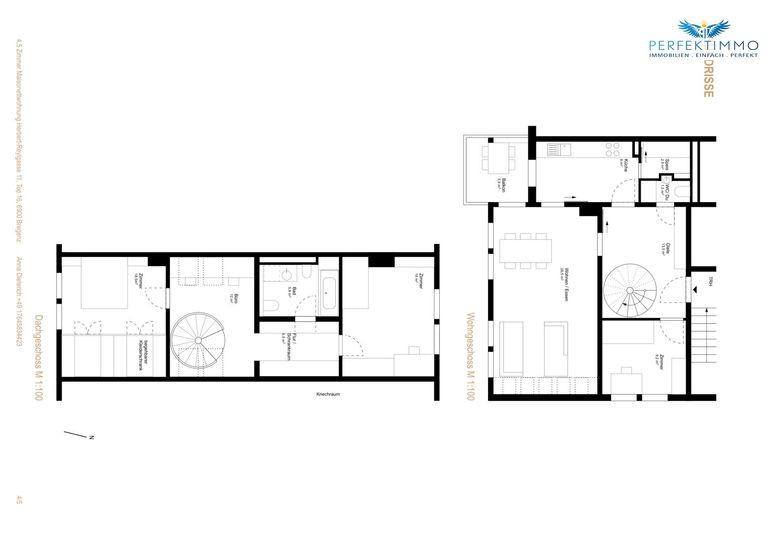
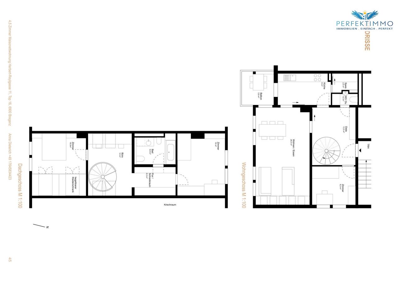
Die Wohnung erstreckt sich über zwei Ebenen und überzeugt durch ihre großzügige, helle Raumstruktur sowie einmalige Lage. Im unteren Geschoss befinden sich der einladende Eingangsbereich, ein Gästezimmer, ein Badezimmer mit Dusche, die Schreinerküche samt Speis sowie das weitläufige Wohn- und Esszimmer mit Zugang zum Balkon. Über eine elegante Holz-Spindeltreppe gelangt man ins Obergeschoss, wo ein lichtdurchfluteter Lese- und Arbeitsbereich, zwei weitere Schlafzimmer – eines davon mit begehbarem Kleiderschrank – sowie ein Badezimmer mit Badewanne und zusätzlicher Stauraum liegen.
Durch den Erwerb beider Einheiten...
Kmenta & Partner Immobilienmakler GmbH in Kooperation mit Perfekt Immo GmbH
Die Wohnung erstreckt sich über zwei Ebenen und überzeugt durch ihre großzügige, helle Raumstruktur sowie einmalige Lage. Im unteren Geschoss befinden sich der einladende Eingangsbereich, ein Gästezimmer, ein Badezimmer mit Dusche, die Schreinerküche samt Speis sowie das weitläufige Wohn- und Esszimmer mit Zugang zum Balkon. Über eine elegante Holz-Spindeltreppe gelangt man ins Obergeschoss, wo ein lichtdurchfluteter Lese- und Arbeitsbereich, zwei weitere Schlafzimmer – eines davon mit begehbarem Kleiderschrank – sowie ein Badezimmer mit Badewanne und zusätzlicher Stauraum liegen.
Durch den Erwerb beider Einheiten wäre es möglich, über 128,13 m² Wohnfläche exklusiv zu bewohnen – verteilt über zwei komplette Geschosse. Damit eröffnet sich ein außergewöhnliches Potenzial: entweder die Zusammenlegung zu einer großzügigen Gesamtwohnung, die Nutzung als getrennte Wohn- und Arbeitsbereiche oder eine flexible Zweitwohnlösung für Gäste oder Familienmitglieder. Eine solche Konstellation ist in dieser Lage eine absolute Seltenheit und macht das Angebot besonders wertvoll.
- Fußgängerzone, Martinsturm, Kornmarkt, Rathaus – alles in < 3 Minuten erreichbar
- Bodensee, Festspielhaus, Pfänderbahn & Bahnhof – ca. 8-10 Gehminuten
- Perfekte Infrastruktur (Nahversorger, Cafés, Schulen, Kindergarten)
- Durch die Innenhoflage äußerst ruhig und grün
- Über die Kirchstraße gelangt man bequem in die hauseigene Tiefgarage
Der Vermittler ist als Doppelmakler tätig.
Infrastruktur / Entfernungen
Gesundheit
Arzt <500m
Apotheke <500m
Krankenhaus <1.000m
Klinik <500m
Kinder & Schulen
Schule <500m
Kindergarten <1.000m
Höhere Schule <4.000m
Universität <500m
Nahversorgung
Supermarkt <500m
Bäckerei <500m
Einkaufszentrum <500m
Sonstige
Bank <500m
Geldautomat <500m
Post <500m
Polizei <1.000m
Verkehr
Bus <500m
Autobahnanschluss <2.000m
Bahnhof <1.000m
Angaben Entfernung Luftlinie / Quelle: OpenStreetMap
Objektdaten
Zustand
- Zustand
- GEPFLEGT
- Baujahr
- 1984
- HWB
- 114 kWh/m² pro Jahr
- Klasse HWB
- D
- fGEE
- 2.13
- Klasse fGEE
- D
Flächen
- Anzahl der Zimmer
- 4
- Anzahl der Balkone
- 1
- Stellplätze
- 1
- Wohnfläche
- 128m²
Kosten
- Betriebskosten
- € 156,03
- Heizkosten
- € 156,68
- Sonstige Kosten
- € 143,51
Wohnungen zum Kaufen im Umkreis von Bregenz
Wohnungen zum Kaufen im Umkreis von Bregenz
Wohnungen zum Kaufen in Österreich
Andere Besucher suchen nach...
- Grundstücke kaufen in 3400 Weidlingbach
- Wohnungen kaufen in 4663 Laakirchen
- Häuser in 7471 Rechnitz
- Wohnungen in 2410 Hainburg an der Donau
- Häuser kaufen in 2432 Schwadorf
- Wohnungen kaufen in 3002 Purkersdorf
- Häuser in 3150 Wilhelmsburg
- Wohnungen kaufen in 3470 Engelmannsbrunn
- Grundstücke kaufen im Bezirk Mattersburg
- Grundstücke kaufen im Bezirk Gmunden