2-Zimmerwohnung mit wunderschöner 22m²-Sonnenterrasse
€ 170.000
€ 3.400 / m²
2320 Schwechat
-
sofort
Beschreibung
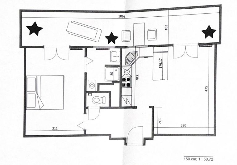
Zu kaufen ist diese renovierte 2-Zimmerwohnung mit großer Sonnenterrasse. Im 4. Stockwerk mit Lift befindet sich diese Wohnung mit ca. 50m². Vom Vorraum gelangt man in die Wohn-Küche, in das Schlafzimmer mit angrenzendem Badezimmer mit Dusche und in das getrennte WC. Sowohl vom Wohnzimmer als auch vom Schlafzimmer gelangt man auf die 22m² große westseitige Terrasse. Die komplette Wohnung wurde in den letzten Jahren renoviert: Bad, WC, Bodenbeläge, Fenster, Insektenschutzgitter, elektrische Außenjalousien (zusätzlich mit App-Steuerung), Gastherme, Terrassenbelag, Küche, Fassade und Dämmung, ... Zur Wohnung gehört ein ca. 4m² großes Kellerabteil. Eine Waschküche mit Trockenraum und PKW-Stellplätze stehen allen Bewohnern des...
Zu kaufen ist diese renovierte 2-Zimmerwohnung mit großer Sonnenterrasse.
Im 4. Stockwerk mit Lift befindet sich diese Wohnung mit ca. 50m².
Vom Vorraum gelangt man in die Wohn-Küche, in das Schlafzimmer mit angrenzendem Badezimmer mit Dusche und in das getrennte WC.
Sowohl vom Wohnzimmer als auch vom Schlafzimmer gelangt man auf die 22m² große westseitige Terrasse.
Die komplette Wohnung wurde in den letzten Jahren renoviert: Bad, WC, Bodenbeläge, Fenster, Insektenschutzgitter, elektrische Außenjalousien (zusätzlich mit App-Steuerung), Gastherme, Terrassenbelag, Küche, Fassade und Dämmung, ...
Zur Wohnung gehört ein ca. 4m² großes Kellerabteil. Eine Waschküche mit Trockenraum und PKW-Stellplätze stehen allen Bewohnern des Hauses nach Verfügbarkeit zur Verfügung.
DAVE-Startpreis: 170.000€
Nachdem Sie die Immobilie besichtigt haben, bekommen Sie den Link zum DAVE-Bieterverfahren, wo alle Unterlagen hinterlegt sind. Wenn die Finanzierung gesichert ist, können Sie bis voraussichtlich 23.05.2026 mitbieten.
Wir empfehlen die Finanzierung, unabhängig davon welche Immobilie Sie kaufen, bereits vorab zu klären, damit Sie, wenn die passende Immobilie kommt, rasch zuschlagen können.
Interesse am Maklerberuf?
Informationen beim MAKLERFRÜHSTÜCK
am Samstag, Termin nach Vereinbarung um 10.00 Uhr im RE/MAX Büro Schwechat.
Info: office@remax-vital.at oder 01/70 70 900.
Im 4. Stockwerk mit Lift befindet sich diese Wohnung mit ca. 50m².
Vom Vorraum gelangt man in die Wohn-Küche, in das Schlafzimmer mit angrenzendem Badezimmer mit Dusche und in das getrennte WC.
Sowohl vom Wohnzimmer als auch vom Schlafzimmer gelangt man auf die 22m² große westseitige Terrasse.
Die komplette Wohnung wurde in den letzten Jahren renoviert: Bad, WC, Bodenbeläge, Fenster, Insektenschutzgitter, elektrische Außenjalousien (zusätzlich mit App-Steuerung), Gastherme, Terrassenbelag, Küche, Fassade und Dämmung, ...
Zur Wohnung gehört ein ca. 4m² großes Kellerabteil. Eine Waschküche mit Trockenraum und PKW-Stellplätze stehen allen Bewohnern des Hauses nach Verfügbarkeit zur Verfügung.
DAVE-Startpreis: 170.000€
Nachdem Sie die Immobilie besichtigt haben, bekommen Sie den Link zum DAVE-Bieterverfahren, wo alle Unterlagen hinterlegt sind. Wenn die Finanzierung gesichert ist, können Sie bis voraussichtlich 23.05.2026 mitbieten.
Wir empfehlen die Finanzierung, unabhängig davon welche Immobilie Sie kaufen, bereits vorab zu klären, damit Sie, wenn die passende Immobilie kommt, rasch zuschlagen können.
Interesse am Maklerberuf?
Informationen beim MAKLERFRÜHSTÜCK
am Samstag, Termin nach Vereinbarung um 10.00 Uhr im RE/MAX Büro Schwechat.
Info: office@remax-vital.at oder 01/70 70 900.
Objektdaten
Ausstattung
- Vollmöbliert
- Unterkellert
- Etage Heizung
- Befeuerung mit Gas
- Personen Fahrstuhl
- Gasetagenheizung
- Vollmöbliert
- Sonstiges
- Sonnenschutz
Zustand
- Baujahr
- 1967
- Alter
- NEUBAU
Flächen
- Anzahl der Zimmer
- 2
- Anzahl der Badezimmer
- 1
- Anzahl der sep. WCs
- 1
- Anzahl der Terrassen
- 1
- Wohnfläche
- 50m²
- Kellerfläche
- 4m²
- Terrassenfläche
- 1m²
Kosten
- Kaufpreis
- € 170.000,00
- Nebenkosten
- € 204,00
- Betriebskosten Brutto
- € 204,00
Verwaltung
- Verfügbar ab
- sofort
Wohnungen zum Kaufen im Umkreis von Schwechat
- Bezirk Gemeindebezirk Simmering
- Bezirk Gemeindebezirk Simmering
- Bezirk Gemeindebezirk Simmering
- Bezirk Gemeindebezirk Donaustadt
- Bezirk Gemeindebezirk Donaustadt
- Bezirk Gemeindebezirk Donaustadt
- Bezirk Gemeindebezirk Favoriten
- Bezirk Gemeindebezirk Favoriten
- Bezirk Gemeindebezirk Favoriten
- Bezirk Gemeindebezirk Landstrasse
Wohnungen zum Kaufen im Umkreis von Schwechat
Wohnungen zum Kaufen in Österreich
Andere Besucher suchen nach...
- Grundstücke kaufen in 3400 Weidlingbach
- Wohnungen kaufen in 4663 Laakirchen
- Häuser in 7471 Rechnitz
- Wohnungen in 2410 Hainburg an der Donau
- Häuser kaufen in 2432 Schwadorf
- Wohnungen kaufen in 3002 Purkersdorf
- Häuser in 3150 Wilhelmsburg
- Wohnungen kaufen in 3470 Engelmannsbrunn
- Grundstücke kaufen im Bezirk Mattersburg
- Grundstücke kaufen im Bezirk Gmunden