*** Top-Investment im Zentrum von Kapfenberg: 3 Wohnungen – 272 m² Potenzial zum Spitzenpreis! ***
-
April 26
Beschreibung
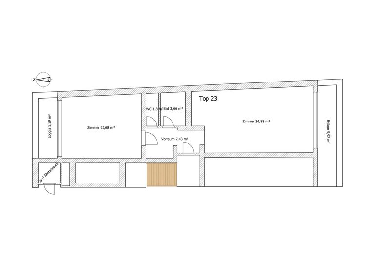
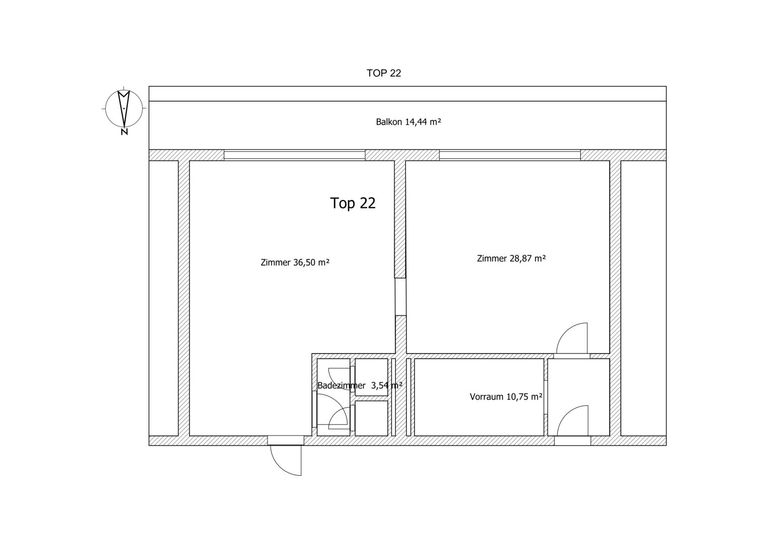
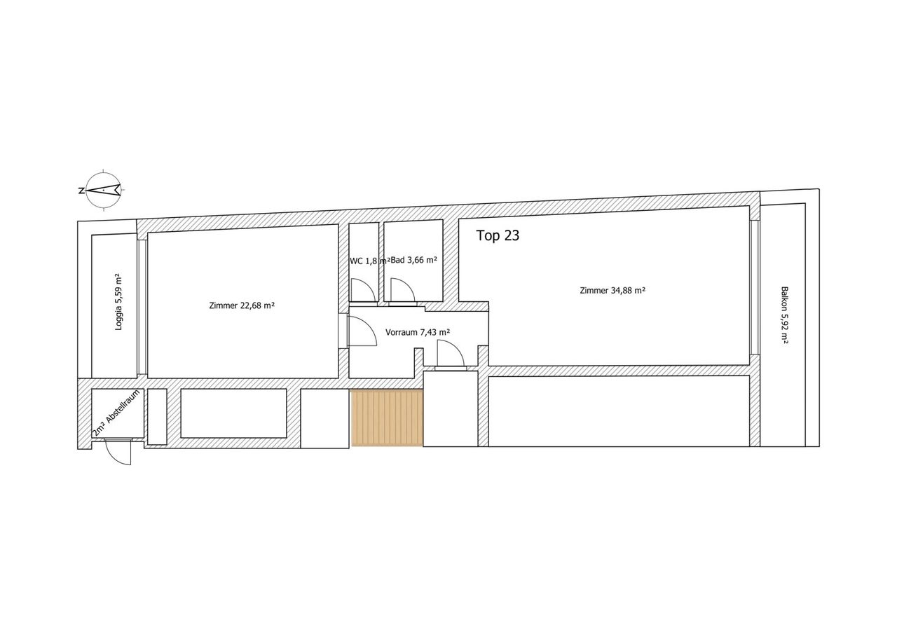
Objektbeschreibung Inmitten des aufstrebenden Kapfenbergs bietet sich Ihnen eine seltene Gelegenheit: Im 5. Obergeschoss eines gepflegten Gebäudes in der Wiener Straße 46 wartet diese ca. 272 m² große Einheit auf ihre Neubelebung. Einst als renommierte Ordination genutzt, vereint das Objekt solide Bausubstanz, flexible Grundstruktur und zentrale Lage zu einem echten Investment-Highlight. Großzügige, lichtdurchflutete Räume, ein barrierefreier Zugang per Lift sowie ein weiter Blick über die Dächer der Stadt bieten ideale Voraussetzungen – ob für die Weiterführung einer gewerblichen Nutzung oder die Umwandlung in bis zu drei hochwertige Wohneinheiten. Die Parzellierung ist baulich realisierbar und bietet Potenzial für lukrative Mieteinnahmen oder...
Objektbeschreibung
Inmitten des aufstrebenden Kapfenbergs bietet sich Ihnen eine seltene Gelegenheit: Im 5. Obergeschoss eines
gepflegten Gebäudes in der Wiener Straße 46 wartet diese ca. 272 m² große Einheit auf ihre Neubelebung. Einst als
renommierte Ordination genutzt, vereint das Objekt solide Bausubstanz, flexible Grundstruktur und zentrale Lage
zu einem echten Investment-Highlight.
Großzügige, lichtdurchflutete Räume, ein barrierefreier Zugang per Lift sowie ein weiter Blick über die Dächer der
Stadt bieten ideale Voraussetzungen – ob für die Weiterführung einer gewerblichen Nutzung oder die Umwandlung
in bis zu drei hochwertige Wohneinheiten. Die Parzellierung ist baulich realisierbar und bietet Potenzial für lukrative
Mieteinnahmen oder Weiterverkauf.
Lage & Infrastruktur
Die Immobilie punktet mit einer Top-Mikrolage direkt im Zentrum Kapfenbergs. Nur wenige Gehminuten entfernt
befindet sich der Bahnhof Kapfenberg, ein bedeutender Verkehrsknotenpunkt der Region – ideal für Pendler,
Dienstleister und Bewohner.
Die fußläufig erreichbare Umgebung bietet alles, was modernes Leben und Arbeiten benötigt:
Einkaufsmöglichkeiten (Supermärkte, Nahversorger)
Bildungseinrichtungen (Kindergärten, Schulen, HTL)
Ärzte & Apotheken
Sport- & Freizeitangebote (Kapfenberger Sportzentrum, Eishalle, Schwimmbad)
Optimale Verkehrsanbindung an Bruck/Mur, Leoben und die S6/S35
Überdachter Garagenabstellplatz
Zusätzlicher Hochfrequenzschutz auf der Westseite der Wohneinheit – ideal zum Schutz vor Mobilfunkstrahlung
(z. B. durch Handymasten).
Die zentrale Lage ist nicht nur bei Mieter:innen und Gewerbetreibenden gefragt – sie ist auch ein zukunftssicherer
Faktor für nachhaltige Wertsteigerung.
Highlights auf einen Blick
✅ Ca. 272 m² Nutzfläche – ideal teilbar in 3 Wohneinheiten
✅ 5. Obergeschoss mit Lift – barrierefreier Zugang und Ausblick inklusive
✅ Ehemalige Ordination – solide Substanz mit vielseitiger Nutzungsmöglichkeit
✅ Perfekte Infrastruktur – alles für den Alltag fußläufig erreichbar
✅ Attraktives Investmentobjekt – ideal für Bauträger, Anleger oder Eigennutzer
Fazit
Diese Immobilie ist mehr als nur Quadratmeter – sie ist eine Leinwand für Ihr Investment-Vorhaben. Ob modernes
Wohnkonzept, innovative Praxisgemeinschaft oder Co-Working-Fläche – hier sind Ihrer Kreativität kaum Grenzengesetzt.
Profitieren Sie von der zentralen Lage, dem soliden Bestand und der wandelbaren Struktur dieses Rendite-
Juwels in Kapfenberg.
Jetzt Besichtigung sichern und Chancen erkennen – bevor es andere tun.
Der Vermittler ist als Doppelmakler tätig.
Infrastruktur / Entfernungen
Gesundheit
Arzt <500m
Apotheke <1.500m
Krankenhaus <3.000m
Kinder & Schulen
Schule <500m
Kindergarten <1.000m
Universität <500m
Nahversorgung
Supermarkt <500m
Bäckerei <500m
Einkaufszentrum <500m
Sonstige
Bank <500m
Geldautomat <500m
Post <500m
Polizei <500m
Verkehr
Bus <500m
Autobahnanschluss <2.500m
Bahnhof <500m
Flughafen <3.500m
Angaben Entfernung Luftlinie / Quelle: OpenStreetMap
Objektdaten
Ausstattung
- Teilmöbliert
- Bad mit Dusche
- Fliesenboden
- Steinboden
- Zentralheizung
- Befeuerung mit Gas
- Personen Fahrstuhl
- Ausrichtung Balkon/Terrasse - Nord
- Ausrichtung Balkon/Terrasse - Süd
- Flachdach
- Massiv Bauweise
Dokumente / Links
Zustand
- Zustand
- TEIL_VOLLRENOVIERUNGSBED
- Baujahr
- 1973
- Alter
- NEUBAU
- HWB
- 137.7 kWh/m² pro Jahr
- Klasse HWB
- D
- fGEE
- 1.98
- Klasse fGEE
- D
Flächen
- Anzahl der Zimmer
- 10.5
- Anzahl der Badezimmer
- 3
- Anzahl der sep. WCs
- 3
- Anzahl der Balkone
- 4
- Wohnfläche
- 273m²
- Grundstücksfläche
- 1.139m²
- Kellerfläche
- 13m²
Kosten
- Kaufpreis Brutto
- € 250.000,00
- Betriebskosten
- € 534,00
- Heizkosten
- € 972,00
- Sonstige Kosten
- € 244,34
Verwaltung
- Verfügbar ab
- April 26
Wohnungen zum Kaufen im Umkreis von Kapfenberg
Wohnungen zum Kaufen im Umkreis von Kapfenberg
Wohnungen zum Kaufen in Österreich
Andere Besucher suchen nach...
- Grundstücke kaufen in 3400 Weidlingbach
- Wohnungen kaufen in 4663 Laakirchen
- Häuser in 7471 Rechnitz
- Wohnungen in 2410 Hainburg an der Donau
- Häuser kaufen in 2432 Schwadorf
- Wohnungen kaufen in 3002 Purkersdorf
- Häuser in 3150 Wilhelmsburg
- Wohnungen kaufen in 3470 Engelmannsbrunn
- Grundstücke kaufen im Bezirk Mattersburg
- Grundstücke kaufen im Bezirk Gmunden