84 m² Wohnkomfort - Erdgeschosswohnung mit Gartenanteil und Balkon
-
1.Quartal 2027
Beschreibung
Eigentumswohnung mit Gartenanteil in ruhiger Lage von Langenwang
Kaufpreis: € 149.000,- Wohnfläche: ca. 84 m² Zimmer: 3 Baujahr: 1986 Lage: Langenwang
Objektbeschreibung
Zum Verkauf gelangt eine gepflegte Eigentumswohnung in attraktiver und besonders ruhiger Wohnlage von Langenwang. Die Immobilie befindet sich im Erdgeschoss eines im Jahr 1986 errichteten Wohnhauses in einer Sackgasse mit ausschließlich Anrainerverkehr – Durchzugsverkehr ist somit nicht vorhanden.
Die von der Straße abgewandte Ausrichtung sowie die sehr sonnige Lage sorgen für eine helle, freundliche Wohnatmosphäre und ein hohes Maß an Lebensqualität.
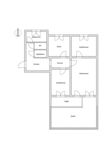
Objektdetails & Raumaufteilung
Die Wohnung verfügt über eine Wohnfläche von ca. 84 m²...
Eigentumswohnung mit Gartenanteil in ruhiger Lage von Langenwang
Kaufpreis: € 149.000,-
Wohnfläche: ca. 84 m²
Zimmer: 3
Baujahr: 1986
Lage: Langenwang
Objektbeschreibung
Zum Verkauf gelangt eine gepflegte Eigentumswohnung in attraktiver und besonders ruhiger Wohnlage von Langenwang. Die Immobilie befindet sich im Erdgeschoss eines im Jahr 1986 errichteten Wohnhauses in einer Sackgasse mit ausschließlich Anrainerverkehr – Durchzugsverkehr ist somit nicht vorhanden.
Die von der Straße abgewandte Ausrichtung sowie die sehr sonnige Lage sorgen für eine helle, freundliche Wohnatmosphäre und ein hohes Maß an Lebensqualität.
Objektdetails & Raumaufteilung
Die Wohnung verfügt über eine Wohnfläche von ca. 84 m² und überzeugt durch eine durchdachte Raumaufteilung mit drei Zimmern. Dadurch eignet sie sich ideal für Paare, kleine Familien oder auch als Anlageobjekt.
Ausstattung im Detail:
- Badezimmer mit Badewanne, Fenster (Milchglas) und Waschmaschinenanschluss
- Separates WC
- Praktischer Abstellraum innerhalb der Wohnung
- Moderne Einbauküche (neu 2024) mit integriertem Essbereich für vier Personen
Die Wohnung befindet sich in einem gepflegten Zustand. Geringfügige Adaptierungen sind je nach individuellem Anspruch möglich und bieten Raum zur persönlichen Gestaltung.
Außenbereich & Besonderheiten
Ein besonderes Highlight dieser Immobilie ist der direkte Zugang vom Balkon zum eigenen Gartenanteil.
Der Garten bietet:
- Privaten Grünbereich
- Angenehme Privatsphäre durch bestehende Thujenhecke
- Vielfältige Nutzungsmöglichkeiten (Erholung, Garten, Spielbereich)
Dieser Außenbereich hebt die Wohnung deutlich von vergleichbaren Objekten ab und stellt einen wesentlichen Mehrwert dar.
Zusatzflächen & Allgemeinbereiche
Zur Wohnung gehören:
- Kellerabteil
- Garage (im Kaufpreis inkludiert)
Gemeinschaftlich steht zur Verfügung:
- Gartengeräteraum
Vor dem Wohnhaus befinden sich zudem drei Besucherparkplätze, welche den Empfang von Gästen komfortabel und unkompliziert gestalten.
Zustand & Gebäude
Das Gebäude wurde im Jahr 1986 errichtet und laufend durch die Reparaturrücklage instand gehalten und verbessert.
Die Wohnung selbst befindet sich in gutem und gepflegtem Zustand und bietet eine solide Basis für langfristige Nutzung.
Ausstattung im Überblick
- Fernwärme-Zentralheizung (Radiatoren)
- Warmwasserspeicher (120 Liter, erneuert 2021)
- Fenster mit Jalousien
- Briefkasten im Stiegenhaus
- Sehr sonnige Ausrichtung
- Ruhige, familienfreundliche Wohnlage
Lage & Infrastruktur
Die Wohnung befindet sich in einer besonders ruhigen Wohngegend mit gleichzeitig sehr guter infrastruktureller Anbindung.
Direkt angrenzend:
- Kindergarten
- Spielplatz und Grünflächen
In wenigen Minuten erreichbar:
- Bahnhof Langenwang: ca. 8–10 Minuten
- Supermarkt: ca. 5 Minuten
- Apotheke: ca. 3 Minuten
- Zentrum Langenwang: ca. 3 Minuten
Diese Kombination aus Ruhe und guter Erreichbarkeit macht die Lage besonders attraktiv.
Kostenübersicht (monatlich, netto)
- Betriebskosten: € 142,35
- Verwaltungskosten: € 31,76
- Reparaturrücklage: € 92,94
- Heizkosten (Fernwärme): € 119,93
Hinweis zu den Bildern
Die in diesem Exposé dargestellten Fotos wurden teilweise digital überarbeitet.
Insbesondere wurde eine virtuelle Anpassung der Bepflanzung vorgenommen, um die tatsächliche Größe und Nutzbarkeit des Gartenanteils besser veranschaulichen zu können.
Darüber hinaus wurden die Räumlichkeiten hinsichtlich persönlicher Gegenstände und Produktplatzierungen mit Hilfe von KI retuschiert sowie teilweise aufgehellt, um die Raumwirkung und Größenverhältnisse besser darzustellen.
Die dargestellten Visualisierungen dienen der besseren Orientierung und ersetzen keine persönliche Besichtigung vor Ort.
Fazit
Diese Immobilie überzeugt durch ihre ruhige Sackgassenlage, die sonnige Ausrichtung sowie den privaten Gartenanteil. Die Kombination aus gepflegtem Zustand, moderner Küche und inkludierter Garage macht dieses Objekt zu einer attraktiven Gelegenheit.
Ideal für alle, die eine solide Eigentumswohnung mit Grünfläche in angenehmer Wohnlage suchen.
Rechtlicher Hinweis
Der Vermittler ist als Doppelmakler tätig.
Der Vermittler ist als Doppelmakler tätig.
Infrastruktur / Entfernungen
Gesundheit
Arzt <500m
Apotheke <500m
Krankenhaus <5.500m
Kinder & Schulen
Schule <500m
Kindergarten <500m
Nahversorgung
Supermarkt <500m
Bäckerei <500m
Einkaufszentrum <4.000m
Sonstige
Bank <500m
Geldautomat <500m
Post <500m
Polizei <500m
Verkehr
Bus <500m
Autobahnanschluss <1.000m
Bahnhof <1.000m
Angaben Entfernung Luftlinie / Quelle: OpenStreetMap
Objektdaten
Ausstattung
- Räume veränderbar
- Gartennutzung
- Teilmöbliert
- Kabel/SAT-TV
- Fahrradraum
- Kabelkanäle
- Bad mit Badewanne
- Bad mit Fenster
- Einbauküche
- Fliesenboden
- Parkettboden
- Laminatboden
- Zentralheizung
- Fern Befeuerung
- Satteldach
- Massiv Bauweise
Zustand
- Zustand
- GEPFLEGT
- Baujahr
- 1987
- Alter
- NEUBAU
- HWB
- 89.5 kWh/m² pro Jahr
- Klasse HWB
- C
- fGEE
- 1.11
- Klasse fGEE
- C
Flächen
- Anzahl der Zimmer
- 3
- Anzahl der Badezimmer
- 1
- Anzahl der sep. WCs
- 1
- Anzahl der Balkone
- 1
- Wohnfläche
- 84m²
- Gartenfläche
- 55m²
- Kellerfläche
- 13m²
Kosten
- Kaufpreis Brutto
- € 149.000,00
- Betriebskosten
- € 142,35
- Heizkosten
- € 119,93
- Sonstige Kosten
- € 124,70
Verwaltung
- Verfügbar ab
- 1.Quartal 2027
Wohnungen zum Kaufen im Umkreis von Langenwang
Wohnungen zum Kaufen im Umkreis von Langenwang
Wohnungen zum Kaufen in Österreich
Andere Besucher suchen nach...
- Grundstücke kaufen in 3400 Weidlingbach
- Wohnungen kaufen in 4663 Laakirchen
- Häuser in 7471 Rechnitz
- Wohnungen in 2410 Hainburg an der Donau
- Häuser kaufen in 2432 Schwadorf
- Wohnungen kaufen in 3002 Purkersdorf
- Häuser in 3150 Wilhelmsburg
- Wohnungen kaufen in 3470 Engelmannsbrunn
- Grundstücke kaufen im Bezirk Mattersburg
- Grundstücke kaufen im Bezirk Gmunden