*** Stadtnah & absolut ruhig: 102,5 m² im 2. OG mit 4 Zimmern, Carport und Entwicklungspotenzial für deine Visionen ***
-
sofort
Beschreibung
Wohnen mit Ruhe. Leben mit Nähe. Gestalten mit Vision.
In angenehmer, absolut ruhiger Wohnlage von Mürzzuschlag erwartet dich diese großzügige 4-Zimmer-Wohnung mit 102,5 m² Wohnfläche im 2. Obergeschoss.
Hier kombinierst du stadtnahes Leben mit entspannter Wohnqualität – ideal für Familien, Paare mit Platzbedarf oder Käufer mit dem Wunsch, ihre eigenen Wohnideen zu verwirklichen.
Die Wohnung präsentiert sich in gepflegtem Zustand mit leichtem Sanierungsbedarf – perfekt für alle, die nicht einfach nur einziehen, sondern ihr Zuhause individuell gestalten möchten.
Die Highlights auf einen Blick
✔ 102,5 m² Wohnfläche ✔ 4 gut geschnittene Zimmer ✔ 2. Obergeschoss ✔ Absolute Ruhelage...
Wohnen mit Ruhe. Leben mit Nähe. Gestalten mit Vision.
In angenehmer, absolut ruhiger Wohnlage von Mürzzuschlag erwartet dich diese großzügige 4-Zimmer-Wohnung mit 102,5 m² Wohnfläche im 2. Obergeschoss.
Hier kombinierst du stadtnahes Leben mit entspannter Wohnqualität – ideal für Familien, Paare mit Platzbedarf oder Käufer mit dem Wunsch, ihre eigenen Wohnideen zu verwirklichen.
Die Wohnung präsentiert sich in gepflegtem Zustand mit leichtem Sanierungsbedarf – perfekt für alle, die nicht einfach nur einziehen, sondern ihr Zuhause individuell gestalten möchten.
Die Highlights auf einen Blick
✔ 102,5 m² Wohnfläche
✔ 4 gut geschnittene Zimmer
✔ 2. Obergeschoss
✔ Absolute Ruhelage
✔ Stadtnähe – wenige Minuten ins Zentrum
✔ Carport-Abstellplatz inklusive
✔ Großzügiges Kellerabteil / Werkstätte mit Strom & Licht
✔ Entwicklungspotenzial mit Wertsteigerungschance
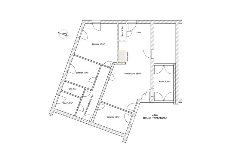
Raumaufteilung mit Potenzial
Die durchdachte Grundrissgestaltung bietet:
Großzügiges Wohnzimmer mit viel Tageslicht
Drei flexibel nutzbare Zimmer (Schlafzimmer, Büro, 2 Kinderzimmer)
Separate Küche mit Gestaltungsmöglichkeiten
Badezimmer und WC getrennt
Praktischer Stauraum
Besonders attraktiv:
Das geräumige Kellerabteil mit Strom- und Lichtanschluss eignet sich ideal als Werkstatt, Hobbyraum oder kreativer Rückzugsort.
Infrastruktur – Alles in deiner Nähe
Die Lage in der Nansenstraße überzeugt durch kurze Wege und hohe Lebensqualität:
Nahversorgung & Einkauf
Supermärkte in wenigen Minuten erreichbar
Bäckerei & Nahversorger im Umfeld
Stadtzentrum von Mürzzuschlag schnell erreichbar
Bildung & Betreuung
Kindergarten
Volksschule
Mittelschule
Höhere Schulen im Stadtgebiet
Verkehrsanbindung
Bahnhof Mürzzuschlag mit guter Anbindung Richtung Graz & Wien
Schnelle Erreichbarkeit der S6 Semmering Schnellstraße
Gute regionale Busverbindungen
Freizeit & Natur
Zahlreiche Wander- und Radwege
Nähe zum Semmeringgebiet
Sport- und Freizeiteinrichtungen im Stadtgebiet
Warum diese Immobilie besonders interessant ist
Diese Wohnung ist keine „perfekt renovierte Standardimmobilie“.
Sie ist eine Gelegenheit.
✔ Für Eigennutzer mit Gestaltungswillen
✔ Für Handwerker
✔ Für kreative Köpfe
✔ Für Anleger mit Blick auf Wertentwicklung
Die Kombination aus ruhiger Lage, Stadtnähe, großzügiger Wohnfläche und zusätzlicher Werkstattfläche ist in dieser Form selten.
Fazit
Wenn du eine großzügige Wohnung suchst, die du nach deinen Vorstellungen entwickeln kannst – und dabei nicht auf Ruhe, Infrastruktur und Parkplatz verzichten willst – dann solltest du dir diese Immobilie unbedingt ansehen.
Jetzt Besichtigung vereinbaren und Potenzial erkennen.
Der Vermittler ist als Doppelmakler tätig.
Infrastruktur / Entfernungen
Gesundheit
Arzt <1.000m
Apotheke <1.000m
Krankenhaus <1.000m
Kinder & Schulen
Schule <1.000m
Kindergarten <1.000m
Nahversorgung
Supermarkt <1.000m
Bäckerei <1.000m
Einkaufszentrum <2.000m
Sonstige
Bank <1.000m
Geldautomat <1.000m
Post <1.000m
Polizei <1.000m
Verkehr
Bus <1.000m
Autobahnanschluss <1.500m
Bahnhof <1.000m
Angaben Entfernung Luftlinie / Quelle: OpenStreetMap
Objektdaten
Ausstattung
- Räume veränderbar
- Teilmöbliert
- Fahrradraum
- Bad mit Fenster
- Einbauküche
- Fliesenboden
- Fertigparkettboden
- Ofen
- Zentralheizung
- Befeuerung mit Gas
- Satteldach
Zustand
- Zustand
- TEIL_VOLLRENOVIERUNGSBED
- Baujahr
- 1994
- Alter
- NEUBAU
- HWB
- 110 kWh/m² pro Jahr
- Klasse HWB
- D
- fGEE
- 2.2
- Klasse fGEE
- E
Flächen
- Anzahl der Zimmer
- 5.5
- Anzahl der Badezimmer
- 1
- Anzahl der sep. WCs
- 1
- Wohnfläche
- 103m²
- Kellerfläche
- 16m²
Kosten
- Kaufpreis Brutto
- € 110.000,00
- Betriebskosten
- € 114,10
- Heizkosten
- € 271,37
- Sonstige Kosten
- € 506,43
Verwaltung
- Verfügbar ab
- sofort
Wohnungen zum Kaufen im Umkreis von Mürzzuschlag
Wohnungen zum Kaufen im Umkreis von Mürzzuschlag
Wohnungen zum Kaufen in Österreich
Andere Besucher suchen nach...
- Grundstücke kaufen in 3400 Weidlingbach
- Wohnungen kaufen in 4663 Laakirchen
- Häuser in 7471 Rechnitz
- Wohnungen in 2410 Hainburg an der Donau
- Häuser kaufen in 2432 Schwadorf
- Wohnungen kaufen in 3002 Purkersdorf
- Häuser in 3150 Wilhelmsburg
- Wohnungen kaufen in 3470 Engelmannsbrunn
- Grundstücke kaufen im Bezirk Mattersburg
- Grundstücke kaufen im Bezirk Gmunden