Naturnahe Ruheoase mit 4 Zimmern und Balkon – Eigentumswohnung in Altenberg.
Beschreibung
Diese großzügige Eigentumswohnung befindet sich in Altenberg bei Neuberg an der Mürz – einer ruhigen und naturnahen Wohnlage mit hohem Erholungswert. Die Wohnung umfasst rund 90 m² Wohnfläche, verteilt auf vier Zimmer. Zu den besonderen Vorzügen zählen ein Balkon mit Grünblick, ein Carportstellplatz und die durchdachte Raumaufteilung mit zentralem Vorraum.
DIE VORTEILE DIESER WOHNUNG AUF EINEN BLICK:
-
Ruhige Lage mit hohem Freizeitwert in Altenberg bei Neuberg an der Mürz
-
Nur ca. 11 km bis zur Stadt Mürzzuschlag mit Krankenhaus, Schulen und Kulturangebot
-
4 Zimmer auf rund 90 m² Wohnfläche
-
Nordseitiger...
Diese großzügige Eigentumswohnung befindet sich in Altenberg bei Neuberg an der Mürz – einer ruhigen und naturnahen Wohnlage mit hohem Erholungswert. Die Wohnung umfasst rund 90 m² Wohnfläche, verteilt auf vier Zimmer. Zu den besonderen Vorzügen zählen ein Balkon mit Grünblick, ein Carportstellplatz und die durchdachte Raumaufteilung mit zentralem Vorraum.
DIE VORTEILE DIESER WOHNUNG AUF EINEN BLICK:
Ruhige Lage mit hohem Freizeitwert in Altenberg bei Neuberg an der Mürz
Nur ca. 11 km bis zur Stadt Mürzzuschlag mit Krankenhaus, Schulen und Kulturangebot
4 Zimmer auf rund 90 m² Wohnfläche
Nordseitiger Balkon mit Grün- und Bergblick
Praktischer Grundriss: alle Räume zentral vom Vorraum begehbar
Separates WC und Badezimmer mit Badewanne
Küche mit angrenzender Speisekammer
Inklusive Carport-Stellplatz
Massive Bauweise, Parkett- und Fliesenböden
Fernwärmeheizung
Kellerabteil vorhanden
DIE WOHNUNG
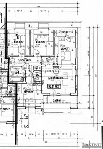
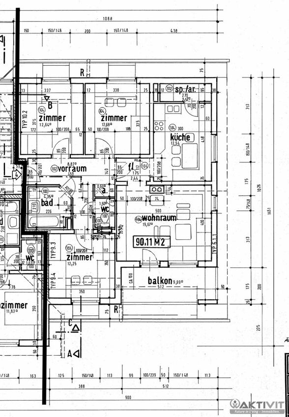
Die Wohnung befindet sich im ersten Obergeschoss eines im Jahr 1989 errichteten Mehrparteienhauses. Auf rund 90 m² bietet sie vier gut geschnittene Zimmer: Vom zentralen Vorraum aus sind sämtliche Räume direkt zugänglich – eine optimale Raumaufteilung ohne Durchgangszimmer. Auf der rechten Seite befinden sich zwei Schlafzimmer, geradeaus gelangt man in die Küche mit Speisekammer sowie das Wohnzimmer mit Zugang zum Balkon. Auf der linken Seite des Vorraums befinden sich ein weiteres Schlafzimmer, das Badezimmer mit Badewanne sowie ein separates WC.
Ein Nordbalkon mit herrlichem Blick ins Grüne ergänzt die Wohnfläche ideal. Zusätzlich steht ein zugewiesenes Kellerabteil zur Verfügung.
ZUSTAND UND AUSSTATTUNG
Das Gebäude wurde 1989 in massiver Bauweise errichtet. Die Wohnung befindet sich in einem gepflegten Zustand. Die Böden bestehen aus Parkett sowie Fliesen. Die Beheizung erfolgt über eine zentrale Fernwärmeanlage. Die Küche ist mit einer Einbauküche ausgestattet, im Badezimmer ist eine Badewanne vorhanden. Die Fenster verfügen über Rollläden. Ein Carport-Stellplatz gehört zur Wohnung und ist im Kaufpreis inkludiert. Laut aktuellem Informationsblatt der Hausverwaltung sind keine Sanierungen geplant oder beschlossen. Auch gibt es keine bekannten behördlichen Auflagen oder Verwaltungsverfahren.
DIE BETRIEBSKOSTEN
Die monatlichen Vorschreibungen betragen derzeit 532,44 € brutto (Stand: Juli 2025)
Zur Beantwortung weiterer Fragen sowie für Besichtigungstermine stehe ich Ihnen gerne täglich - auch am Wochenende - von 08:00 bis 22:00 Uhr zur Verfügung.
Ich freue mich über Ihre Kontaktaufnahme,
Wilhelm Rossmair
+43 664 54 24 481
w.rossmair@aktivit.org
Der Vermittler ist als Doppelmakler tätig.
Erteilen Sie uns ihren Suchauftrag und profitieren Sie von vielen Vorteilen und exklusiven Angeboten!
Ganz einfach und kostenlos unter: Jetzt Suchauftrag eingeben.
Infrastruktur / Entfernungen
Gesundheit
Arzt <5.000m
Apotheke <8.500m
Krankenhaus <9.000m
Kinder & Schulen
Schule <5.000m
Kindergarten <4.000m
Nahversorgung
Supermarkt <5.500m
Bäckerei <8.500m
Einkaufszentrum <10.000m
Sonstige
Bank <5.500m
Geldautomat <5.500m
Polizei <5.500m
Post <5.500m
Verkehr
Bus <500m
Autobahnanschluss <10.000m
Bahnhof <8.500m
Angaben Entfernung Luftlinie / Quelle: OpenStreetMap
Objektdaten
Ausstattung
- Rolladen
- Gäste-WC
- Bad mit Badewanne
- Einbauküche
- Fliesenboden
- Parkettboden
- Zentralheizung
- Fern Befeuerung
- Ausrichtung Balkon/Terrasse - Nord
- Satteldach
- Massiv Bauweise
Zustand
- Zustand
- GEPFLEGT
- Baujahr
- 1989
- Alter
- ALTBAU
- HWB
- 111 kWh/m² pro Jahr
- Klasse HWB
- D
- fGEE
- 1.22
- Klasse fGEE
- C
Flächen
- Anzahl der Zimmer
- 4
- Anzahl der Badezimmer
- 1
- Anzahl der sep. WCs
- 1
- Anzahl der Balkone
- 1
- Stellplätze
- 1
- Wohnfläche
- 90m²
Kosten
- Kaufpreis Brutto
- € 159.000,00
Wohnungen zum Kaufen im Umkreis von Neuberg an der Mürz
Wohnungen zum Kaufen im Umkreis von Neuberg an der Mürz
Wohnungen zum Kaufen in Österreich
Andere Besucher suchen nach...
- Grundstücke kaufen in 3400 Weidlingbach
- Wohnungen kaufen in 4663 Laakirchen
- Häuser in 7471 Rechnitz
- Wohnungen in 2410 Hainburg an der Donau
- Häuser kaufen in 2432 Schwadorf
- Wohnungen kaufen in 3002 Purkersdorf
- Häuser in 3150 Wilhelmsburg
- Wohnungen kaufen in 3470 Engelmannsbrunn
- Grundstücke kaufen im Bezirk Mattersburg
- Grundstücke kaufen im Bezirk Gmunden