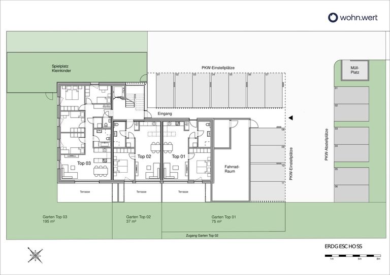
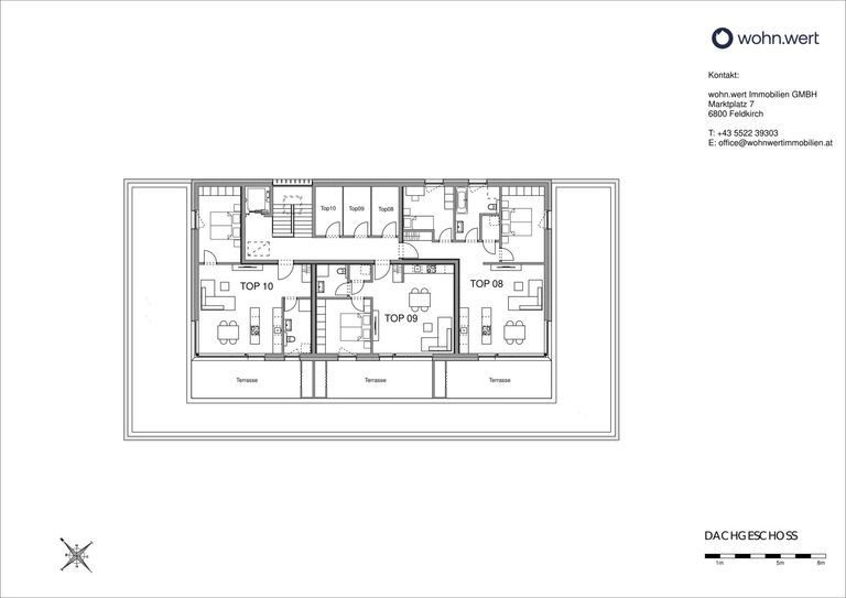
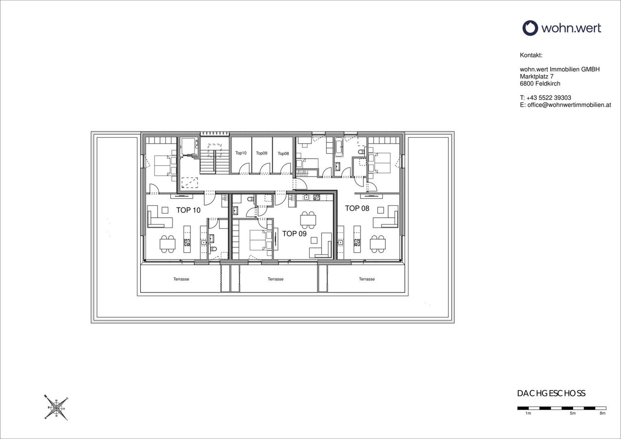
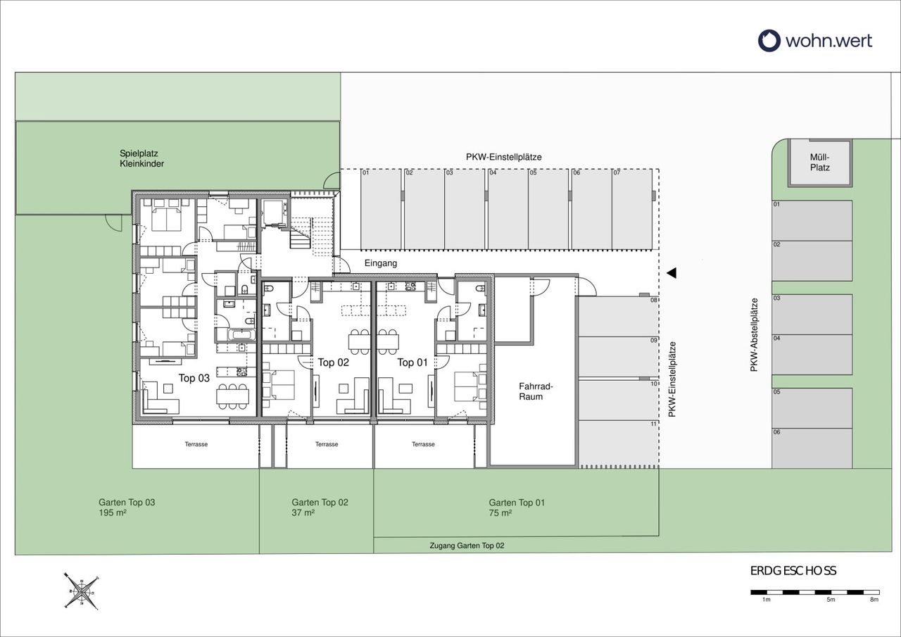
Wohnanlage "Glattenstein" - Geräumige 2-Zimmer-Dachgeschosswohnung - Top 9
-
Erstbezug
-
2026
-
voraussichtlich Februar 2027
Beschreibung
Wohnbauförderung möglich!
In Götzis entsteht eine moderne Kleinwohnanlage mit insgesamt nur zehn Wohneinheiten – ideal für all jene, die ein hochwertiges, ruhiges und zugleich nachhaltiges Zuhause suchen.
Die gut geschnittenen 2- bis 5-Zimmer-Wohnungen überzeugen durch funktionale Grundrisse, eine hochwertige Ausstattung sowie helle, einladende Wohnräume. Die Lage verbindet angenehme Wohnruhe mit einer schnellen Anbindung an das Zentrum – perfekt für alle, die Wert auf Komfort und Alltagstauglichkeit legen.
Besondere Highlights:
🏡 Attraktive 2- bis 5-Zimmer-Wohnungen – passend für Paare, Singles und Familien
🚗 11 überdachte KFZ-Abstellplätze und 2 Aussenabstellplätze direkt bei der Wohnanlage
🚗 4...
Wohnbauförderung möglich!
In Götzis entsteht eine moderne Kleinwohnanlage mit insgesamt nur zehn Wohneinheiten – ideal für all jene, die ein hochwertiges, ruhiges und zugleich nachhaltiges Zuhause suchen.
Die gut geschnittenen 2- bis 5-Zimmer-Wohnungen überzeugen durch funktionale Grundrisse, eine hochwertige Ausstattung sowie helle, einladende Wohnräume. Die Lage verbindet angenehme Wohnruhe mit einer schnellen Anbindung an das Zentrum – perfekt für alle, die Wert auf Komfort und Alltagstauglichkeit legen.
Besondere Highlights:
🏡 Attraktive 2- bis 5-Zimmer-Wohnungen – passend für Paare, Singles und Familien
🚗 11 überdachte KFZ-Abstellplätze und 2 Aussenabstellplätze direkt bei der Wohnanlage
🚗 4 Besucherparkplätze für Ihre Gäste
📦 Praktische Terrassenboxen für zusätzlichen Stauraum
🌱 Effiziente Luftwärmepumpe und Photovoltaikanlage für nachhaltiges Wohnen
🔥 Behagliche Fußbodenheizung für ein angenehmes Wohnklima
🌐 Glasfaseranschluss – ideal für Homeoffice, Arbeiten und Streaming
Dieses Projekt vereint moderne Architektur, umweltbewusste Technik und eine wohldurchdachte Wohnqualität – ein langlebiges Zuhause zum Wohlfühlen und Ankommen.
Sonderwünsche noch leicht umsetzbar.
In dieser Phase haben Sie die seltene Gelegenheit, aktiv an der Gestaltung Ihres künftigen Zuhauses teilzunehmen. Gemeinsam mit dem erfahrenen Team von der wohn.wert Immobilien GmbH können Sie Sonderwünsche und Anpassungen einbringen, um sicherzustellen, dass Ihr neues Zuhause Ihren ganz persönlichen Lebensstil widerspiegelt.
Fazit:
Dieses Neubauprojekt verbindet klare Architektur, Wohnkomfort und nachhaltige Bauweise zu einem stimmigen Gesamtkonzept. Durchdachte Grundrisse, moderne Technik und eine ruhige Lage mit guter Erreichbarkeit schaffen ein Wohnumfeld, das gleichermaßen Entspannung wie Alltagstauglichkeit bietet.
Insgesamt entstehen zehn hochwertige Eigentumswohnungen, die ein anspruchsvolles Zuhause für unterschiedliche Lebenssituationen bieten.
Jetzt melden – und schon bald Ihr neues Zuhause in Götzis entdecken!
Unsere Angaben beziehen sich auf die Auskünfte des Eigentümers. Irrtum und Änderungen vorbehalten.
Noch nichts gefunden? Wir informieren Sie über geeignete Immobilienangebote noch vor allen anderen.
Legen Sie jetzt kostenlos Ihren individuellen Suchagenten unter folgendem Link an. Wir schicken Ihnen passende Immobilien exklusiv vorab zu.
Suchagent anlegen
Wir weisen darauf hin, dass zwischen dem Vermittler und dem zu vermittelnden Dritten ein familiäres oder wirtschaftliches Naheverhältnis besteht.
Infrastruktur / Entfernungen
Gesundheit
Arzt <850m
Apotheke <700m
Krankenhaus <5.000m
Kinder & Schulen
Schule <825m
Kindergarten <625m
Höhere Schule <1.075m
Nahversorgung
Supermarkt <300m
Bäckerei <400m
Einkaufszentrum <5.825m
Sonstige
Bank <550m
Geldautomat <550m
Post <1.025m
Polizei <1.025m
Verkehr
Bus <350m
Bahnhof <1.025m
Autobahnanschluss <950m
Flughafen <7.750m
Angaben Entfernung Luftlinie / Quelle: OpenStreetMap
Objektdaten
Ausstattung
- Kabel/SAT-TV
- Barrierefrei
- Fahrradraum
- Seniorengerecht
- Bad mit Dusche
- Offene Küche
- Fliesenboden
- Parkettboden
- Fußbodenheizung
- Luftwärmepumpe
- Personen Fahrstuhl
- Ausrichtung Balkon/Terrasse - Südwest
- Flachdach
- Massiv Bauweise
- Schlüsselfertig mit Keller
- Neubaustandard
Dokumente / Links
Zustand
- Zustand
- ERSTBEZUG
- Baujahr
- 2026
- Alter
- NEUBAU
- HWB
- 31.16 kWh/m² pro Jahr
- Klasse HWB
- B
- fGEE
- 0.63
- Klasse fGEE
- A+
Flächen
- Anzahl der Zimmer
- 2
- Anzahl der Badezimmer
- 1
- Anzahl der sep. WCs
- 1
- Anzahl der Terrassen
- 1
- Stellplätze
- 1
- Wohnfläche
- 52m²
- Kellerfläche
- 6m²
- Terrassenfläche
- 1m²
Kosten
- Kaufpreis Brutto
- € 375.000,00
Verwaltung
- Verfügbar ab
- voraussichtlich Februar 2027
Wohnungen zum Kaufen im Umkreis von Götzis
Wohnungen zum Kaufen im Umkreis von Götzis
Wohnungen zum Kaufen in Österreich
Andere Besucher suchen nach...
- Grundstücke kaufen in 3400 Weidlingbach
- Wohnungen kaufen in 4663 Laakirchen
- Häuser in 7471 Rechnitz
- Wohnungen in 2410 Hainburg an der Donau
- Häuser kaufen in 2432 Schwadorf
- Wohnungen kaufen in 3002 Purkersdorf
- Häuser in 3150 Wilhelmsburg
- Wohnungen kaufen in 3470 Engelmannsbrunn
- Grundstücke kaufen im Bezirk Mattersburg
- Grundstücke kaufen im Bezirk Gmunden