Anlegertipp Neubauwohnung (Angerweg 2 - Top 7)
€ 347.328
€ 4.571 / m²
4694 Ohlsdorf
-
Erstbezug
-
ca. 2025
-
Frühjahr 2027
Beschreibung
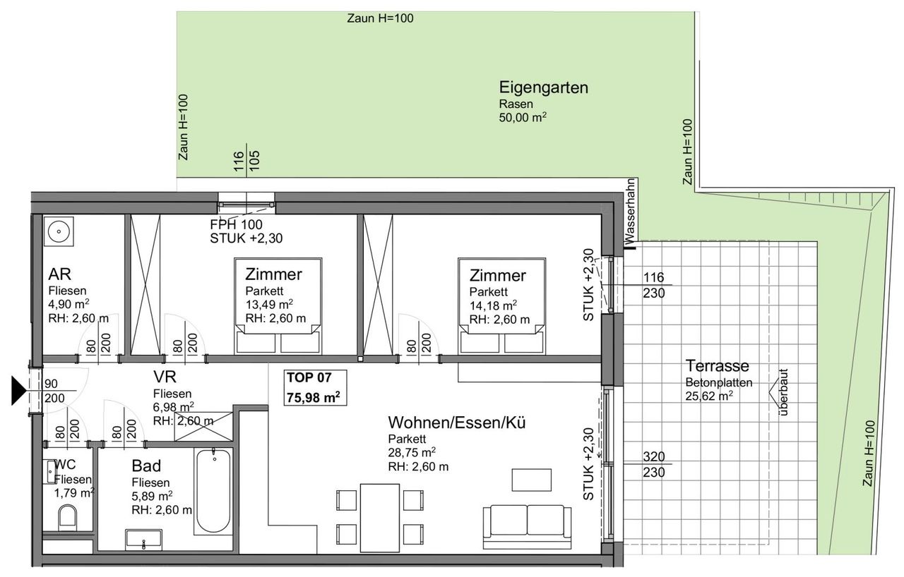
Zentral. Zeitgemäß. Zuhause. – 13 Neubauwohnungen in Ohlsdorf, Angerweg 2 Top 7 ist eine attraktive 3-Zimmer-Wohnung im Erdgeschoss mit einer überdachten Terrasse und einem eigenen Garten, ideal für entspannte Stunden im Freien. Der offene Wohnbereich schafft eine moderne und einladende Atmosphäre. Die Wohnung verfügt über zwei Schlafzimmer und ein Badezimmer, das wahlweise mit Dusche oder Badewanne ausgestattet werden kann. Ein geräumiger Abstellraum mit Waschmaschinenanschluss bietet zusätzlichen Stauraum und praktischen Komfort. Kaufpreis netto: € 347.328,23 zuzüglich 20 % Ust = € 416.793,88 Kaufpreis für Eigennutzer: € 399.150,00 Attraktive Anlegerwohnungen in Ohlsdorf – Ihr Investment mit kostenloser Erstvermietung Sichern Sie sich eine...
Zentral. Zeitgemäß. Zuhause. – 13 Neubauwohnungen in Ohlsdorf, Angerweg 2
Top 7 ist eine attraktive 3-Zimmer-Wohnung im Erdgeschoss mit einer überdachten Terrasse und einem eigenen Garten, ideal für entspannte Stunden im Freien. Der offene Wohnbereich schafft eine moderne und einladende Atmosphäre. Die Wohnung verfügt über zwei Schlafzimmer und ein Badezimmer, das wahlweise mit Dusche oder Badewanne ausgestattet werden kann. Ein geräumiger Abstellraum mit Waschmaschinenanschluss bietet zusätzlichen Stauraum und praktischen Komfort.
Kaufpreis netto: € 347.328,23
zuzüglich 20 % Ust = € 416.793,88
Kaufpreis für Eigennutzer: € 399.150,00
Attraktive Anlegerwohnungen in Ohlsdorf – Ihr Investment mit kostenloser Erstvermietung
Sichern Sie sich eine von 13 Anlegerwohnungen in bester Lage von Ohlsdorf am Angerweg! Diese hochwertigen Wohneinheiten mit Wohnflächen von 42 m² bis 110 m² bieten nicht nur erstklassige Ausstattung, sondern auch eine perfekte Investitionsmöglichkeit.
Ihr Investment-Vorteil:
🔹 Kostenlose Erstvermietung auf Wunsch – sorgenfreier Start für Anleger
🔹 Nettopreise zzgl. 20 % USt. – ideal für umsatzsteuerpflichtige Käufer
🔹 Hohe Wohn- und Vermietungsqualität – durchdachte Raumaufteilung und moderne Ausstattung
Attraktive Features für Mieter & Kapitalanleger:
✔ Großzügige Terrassen oder Eigengärten für höchsten Wohnkomfort
✔ Energieeffiziente Luftwärmepumpe & Fußbodenheizung für geringe Betriebskosten
✔ Barrierefreier Zugang mit Lift für nachhaltige Vermietbarkeit
✔ Tiefgaragenplätze für stressfreies Parken
✔ Schöne Parkettböden & stilvolle Fliesen – wertige Materialien für langfristige Qualität
✔ Individuelle Planung noch möglich – gestalten Sie nach Ihren Anforderungen
Perfekte Lage für stabile Mieteinnahmen:
📍 Zentrale & ruhige Wohnsiedlung – wenige Gehminuten ins Ortszentrum
🛍 Top-Infrastruktur – Nahversorger, Einkaufsmöglichkeiten & Schulen in direkter Umgebung
🌿 Freizeitparadies – Nähe zu Traunsee, Traunstein & zahlreichen Erholungsgebieten
🚗 Beste Verkehrsanbindung – schnelle Erreichbarkeit durch Autobahnnähe
🔑 Jetzt provisionsfrei direkt vom Bauträger investieren!
Nutzen Sie diese Gelegenheit für ein sicheres & wertbeständiges Immobilieninvestment. Kontaktieren Sie uns für weitere Informationen oder einen Beratungstermin.
Besuchen Sie unsere Projektseite und erfahren Sie mehr: www.angerweg-zwei.at
Für weitere Fragen oder eine gemeinsame Besichtigung steht Ihnen Herr Christian Sammer unter der Nummer 0650 31 71 003 gerne zur Verfügung.
Top 7 ist eine attraktive 3-Zimmer-Wohnung im Erdgeschoss mit einer überdachten Terrasse und einem eigenen Garten, ideal für entspannte Stunden im Freien. Der offene Wohnbereich schafft eine moderne und einladende Atmosphäre. Die Wohnung verfügt über zwei Schlafzimmer und ein Badezimmer, das wahlweise mit Dusche oder Badewanne ausgestattet werden kann. Ein geräumiger Abstellraum mit Waschmaschinenanschluss bietet zusätzlichen Stauraum und praktischen Komfort.
Kaufpreis netto: € 347.328,23
zuzüglich 20 % Ust = € 416.793,88
Kaufpreis für Eigennutzer: € 399.150,00
Attraktive Anlegerwohnungen in Ohlsdorf – Ihr Investment mit kostenloser Erstvermietung
Sichern Sie sich eine von 13 Anlegerwohnungen in bester Lage von Ohlsdorf am Angerweg! Diese hochwertigen Wohneinheiten mit Wohnflächen von 42 m² bis 110 m² bieten nicht nur erstklassige Ausstattung, sondern auch eine perfekte Investitionsmöglichkeit.
Ihr Investment-Vorteil:
🔹 Kostenlose Erstvermietung auf Wunsch – sorgenfreier Start für Anleger
🔹 Nettopreise zzgl. 20 % USt. – ideal für umsatzsteuerpflichtige Käufer
🔹 Hohe Wohn- und Vermietungsqualität – durchdachte Raumaufteilung und moderne Ausstattung
Attraktive Features für Mieter & Kapitalanleger:
✔ Großzügige Terrassen oder Eigengärten für höchsten Wohnkomfort
✔ Energieeffiziente Luftwärmepumpe & Fußbodenheizung für geringe Betriebskosten
✔ Barrierefreier Zugang mit Lift für nachhaltige Vermietbarkeit
✔ Tiefgaragenplätze für stressfreies Parken
✔ Schöne Parkettböden & stilvolle Fliesen – wertige Materialien für langfristige Qualität
✔ Individuelle Planung noch möglich – gestalten Sie nach Ihren Anforderungen
Perfekte Lage für stabile Mieteinnahmen:
📍 Zentrale & ruhige Wohnsiedlung – wenige Gehminuten ins Ortszentrum
🛍 Top-Infrastruktur – Nahversorger, Einkaufsmöglichkeiten & Schulen in direkter Umgebung
🌿 Freizeitparadies – Nähe zu Traunsee, Traunstein & zahlreichen Erholungsgebieten
🚗 Beste Verkehrsanbindung – schnelle Erreichbarkeit durch Autobahnnähe
🔑 Jetzt provisionsfrei direkt vom Bauträger investieren!
Nutzen Sie diese Gelegenheit für ein sicheres & wertbeständiges Immobilieninvestment. Kontaktieren Sie uns für weitere Informationen oder einen Beratungstermin.
Besuchen Sie unsere Projektseite und erfahren Sie mehr: www.angerweg-zwei.at
| Angaben gemäß gesetzlichem Erfordernis: | |||
| Heizwärmebedarf: | 40.0 kWh/(m²a) | ||
Für weitere Fragen oder eine gemeinsame Besichtigung steht Ihnen Herr Christian Sammer unter der Nummer 0650 31 71 003 gerne zur Verfügung.
Objektdaten
Ausstattung
- Barrierefrei
- Unterkellert
- Etage Heizung
- Personen Fahrstuhl
- Massiv Bauweise
- Barrierefrei
- Zeigelmassiv
- Bus
- Dorfzentrum
- Ruhe Lage
- Sonnige Lage
- Barrierefrei
- Warmluftheizung
- Barrierefrei
- Barrierefrei
Dokumente / Links
Zustand
- Zustand
- ERSTBEZUG
- Baujahr
- ca. 2025
Flächen
- Anzahl der Zimmer
- 3
- Anzahl der Schlafzimmer
- 2
- Anzahl der Badezimmer
- 1
- Anzahl der sep. WCs
- 1
- Anzahl der Terrassen
- 1
- Wohnfläche
- 76m²
- Gartenfläche
- 50m²
- Kellerfläche
- 4m²
- Terrassenfläche
- 1m²
Kosten
- Kaufpreis
- € 347.328,23
Verwaltung
- Verfügbar ab
- Frühjahr 2027
Wohnungen zum Kaufen im Umkreis von Ohlsdorf
Wohnungen zum Kaufen im Umkreis von Ohlsdorf
Wohnungen zum Kaufen in Österreich
Andere Besucher suchen nach...
- Grundstücke kaufen in 3400 Weidlingbach
- Wohnungen kaufen in 4663 Laakirchen
- Häuser in 7471 Rechnitz
- Wohnungen in 2410 Hainburg an der Donau
- Häuser kaufen in 2432 Schwadorf
- Wohnungen kaufen in 3002 Purkersdorf
- Häuser in 3150 Wilhelmsburg
- Wohnungen kaufen in 3470 Engelmannsbrunn
- Grundstücke kaufen im Bezirk Mattersburg
- Grundstücke kaufen im Bezirk Gmunden