Paket - Angebot A05: Provisionsfreie 75m² Neubauwohnung im 1. OG mit 9m² Balkon und 2 TG-Plätze in Holzhäuseln!
-
Erstbezug
-
2025
-
Juni
Beschreibung
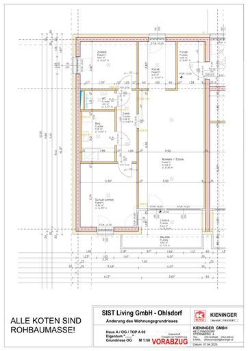
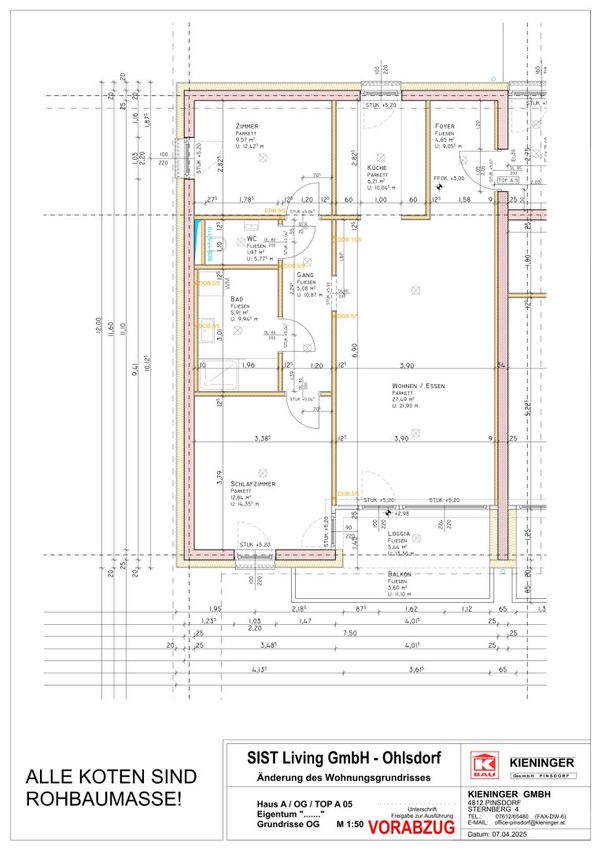
Das Neubauprojekt in Holzhäuseln, Gemeinde Ohlsdorf, Nähe Gmunden, befindet sich in einer idyllischen Waldrandlage. Es besteht aus vier zweigeschossigen Baukörpern mit jeweils nur 6 bis 8 Parteien und bietet ausreichend Grünflächen. Aktuell sind noch Wohnungen mit einer Größe von ca. 75 m² verfügbar. Die hier im Paket angebotene Wohnung A05 befindet sich im Obergeschoss und verfügt über einen Balkon bzw. Loggia mit ca. 9m². Zu diesem Paket gehören neben dem Kellerfach noch 2 Parkplätze in der Tiefgarage. Die 3-Zimmer Wohnung ist ideal für eine kleine Familie oder ein Pärchen. Der Vorraum bietet genug Platz für eine Garderobe, unmittelbar im Anschluss...
Das Neubauprojekt in Holzhäuseln, Gemeinde Ohlsdorf, Nähe Gmunden, befindet sich in einer idyllischen Waldrandlage. Es besteht aus vier zweigeschossigen Baukörpern mit jeweils nur 6 bis 8 Parteien und bietet ausreichend Grünflächen. Aktuell sind noch Wohnungen mit einer Größe von ca. 75 m² verfügbar.
Die hier im Paket angebotene Wohnung A05 befindet sich im Obergeschoss und verfügt über einen Balkon bzw. Loggia mit ca. 9m².
Zu diesem Paket gehören neben dem Kellerfach noch 2 Parkplätze in der Tiefgarage.
Die 3-Zimmer Wohnung ist ideal für eine kleine Familie oder ein Pärchen. Der Vorraum bietet genug Platz für eine Garderobe, unmittelbar im Anschluss erstreckt sich der Wohn- und Essbereich.
Das separate WC und das Badezimmer sind großzügig gehalten. Jetzt kann noch zwischen einer Badewanne oder einer Dusche gewählt werden. Die Trennwand zwischen Bad und WC kann bei Bedarf entfernt werden.
Die Küche bietet ausreichend Platz für 2 Küchenzeilen und kann auf Wunsch offen zum Wohnraum hin ausgeführt werden. Der Bereich dafür ist mit Feinsteinzeug oder Parkett ausgestattet.
Im Wohnbereich wird ein Klebeparkett in Eiche verlegt. Zur Terrasse hin befindet sich ein bodentiefes, fix verglastes Fenster und eine Balkondrehtüre.
Vom Schlafzimmer kann man auf die Terrasse gehen.
Die zwei Schlafzimmer sind, neben dem Wohnzimmer, mit einem TV sowie Internetanschluss ausgestattet.
Sofern Änderungen gewünscht werden, können diese, natürlich abhängig vom Baufortschritt und technischer Möglichkeit unkompliziert behandelt werden. Das gesamte Team ist äußerst flexibel.
Die Wohnung ist mit dreifach verglasten Fenstern ausgestattet. Für zusätzlichen Komfort sorgt die Fußbodenheizung, die durch eine Wärmepumpe betrieben wird sowie ein Aufzug, mit dem man die Wohnung bequem von der Tiefgarage aus erreichen kann.
Die Baukörper bestehen aus Ziegel und Stahlbeton und sind mit einer 18 cm dicken Dämmung isoliert, was zu einem sehr niedrigen Wärmeenergiebedarf führt.
Energietechnisch ist das Haus absolut top. Mit einem HWB von 22kWh/m²a befindet es sich sogar in der "Niedrigstenergiebauweise" (fast ein Passivhaus)
Eine zentrale Photovoltaikanlage ergänzt die nachhaltige Energieversorgung.
Die Lage des Projekts ist besonders attraktiv: In wenigen Gehminuten erreicht man die Traun mit herrlichen Bade- sowie Spaziermöglichkeiten und sowohl Gmunden sowie das Ortszentrum von Ohlsdorf sind in wenigen Autominuten erreichbar.
Wir weisen darauf hin, dass zwischen dem Vermittler und dem zu vermittelnden Dritten ein familiäres oder wirtschaftliches Naheverhältnis besteht.
Infrastruktur / Entfernungen
Gesundheit
Arzt <2.000m
Apotheke <3.000m
Krankenhaus <4.000m
Klinik <4.500m
Kinder & Schulen
Schule <2.500m
Kindergarten <2.500m
Nahversorgung
Supermarkt <2.000m
Bäckerei <1.000m
Einkaufszentrum <3.000m
Sonstige
Bank <1.500m
Geldautomat <1.500m
Post <2.000m
Polizei <3.500m
Verkehr
Bus <500m
Straßenbahn <3.000m
Bahnhof <3.000m
Autobahnanschluss <6.000m
Flughafen <5.000m
Angaben Entfernung Luftlinie / Quelle: OpenStreetMap
Objektdaten
Ausstattung
- Barrierefrei
- Seniorengerecht
- Zentralheizung
- Luftwärmepumpe
- Personen Fahrstuhl
- Massiv Bauweise
Dokumente / Links
Zustand
- Zustand
- ERSTBEZUG
- Baujahr
- 2025
- Alter
- NEUBAU
- HWB
- 22 kWh/m² pro Jahr
- fGEE
- 0.43
Flächen
- Anzahl der Zimmer
- 3
- Anzahl der Badezimmer
- 1
- Anzahl der sep. WCs
- 1
- Anzahl der Balkone
- 1
- Wohnfläche
- 75m²
Kosten
- Kaufpreis Brutto
- € 336.775,00
Verwaltung
- Verfügbar ab
- Juni
- Ferienimmobilie
- Ja
Wohnungen zum Kaufen im Umkreis von Ohlsdorf
Wohnungen zum Kaufen im Umkreis von Ohlsdorf
Wohnungen zum Kaufen in Österreich
Andere Besucher suchen nach...
- Grundstücke kaufen in 3400 Weidlingbach
- Wohnungen kaufen in 4663 Laakirchen
- Häuser in 7471 Rechnitz
- Wohnungen in 2410 Hainburg an der Donau
- Häuser kaufen in 2432 Schwadorf
- Wohnungen kaufen in 3002 Purkersdorf
- Häuser in 3150 Wilhelmsburg
- Wohnungen kaufen in 3470 Engelmannsbrunn
- Grundstücke kaufen im Bezirk Mattersburg
- Grundstücke kaufen im Bezirk Gmunden