Zentral. Zeitgemäß. Zuhause. (Angerweg 2 - Top 1)
€ 481.500
€ 5.427 / m²
4694 Ohlsdorf
-
Erstbezug
-
2025
Beschreibung
Zentral. Zeitgemäß. Zuhause. – 13 Neubauwohnungen in Ohlsdorf, Angerweg 2 Wer das Zentrale liebt und auf moderne Wohnqualität nicht verzichten möchte, findet am Angerweg in Ohlsdorf sein neues Zuhause. Nur wenige Schritte vom Ortszentrum entfernt entstehen 13 hochwertige Eigentumswohnungen mit durchdachten Grundrissen und zeitgemäßer Ausstattung – ideal für alle, die urbane Nähe mit ruhiger Wohnlage verbinden möchten. Was Sie erwartet: • Zentrale Lage: In wenigen Gehminuten mitten im Ortskern – Einkauf, Schule, Nahversorger direkt ums Eck • Moderne Ausstattung: Edle Parkettböden, stilvolle Fliesen, Fußbodenheizung & energieeffiziente Luftwärmepumpe • Wohnkomfort für jeden Anspruch: Von 42 m² bis 110 m² – ideal...
Zentral. Zeitgemäß. Zuhause. – 13 Neubauwohnungen in Ohlsdorf, Angerweg 2
Wer das Zentrale liebt und auf moderne Wohnqualität nicht verzichten möchte, findet am Angerweg in Ohlsdorf sein neues Zuhause. Nur wenige Schritte vom Ortszentrum entfernt entstehen 13 hochwertige Eigentumswohnungen mit durchdachten Grundrissen und zeitgemäßer Ausstattung – ideal für alle, die urbane Nähe mit ruhiger Wohnlage verbinden möchten.
Was Sie erwartet:
• Zentrale Lage: In wenigen Gehminuten mitten im Ortskern – Einkauf, Schule, Nahversorger direkt ums Eck
• Moderne Ausstattung: Edle Parkettböden, stilvolle Fliesen, Fußbodenheizung & energieeffiziente Luftwärmepumpe
• Wohnkomfort für jeden Anspruch: Von 42 m² bis 110 m² – ideal für Singles, Paare oder Familien
• Draußen zuhause: Großzügige Terrassen oder Eigengärten für entspannte Stunden im Grünen
• Komfortabel & barrierefrei: Lift in alle Etagen, Tiefgarage für stressfreies Parken
• Gestaltungsfreiraum: Jetzt noch mitplanen und Ihre Wünsche einbringen
Aktueller Verkaufsstand:
✔ Bereits 5 Wohnungen vergeben – nur noch 8 verfügbar!
✔ Baustart bei 50 % Verkaufsquote – jetzt vor Baustart sichern und noch mitgestalten!
Lebenswert wohnen – mitten in Ohlsdorf
Wohnen Sie naturnah und dennoch bestens angebunden: Die Autobahn erreichen Sie in wenigen Minuten, Erholung bieten Traunsee, Traunstein und zahlreiche Freizeitangebote der Region.
Direkt vom Bauträger – provisionsfrei für Käufer
Jetzt informieren und Wohntraum sichern:
📞 Persönlich berät Sie Sabine Wenzel (0676 300 40 62) und Christian Sammer (0650 31 71 003)
🌐 Alle Details unter: www.angerweg-zwei.at
Zuhause ankommen. Im Herzen von Ohlsdorf.
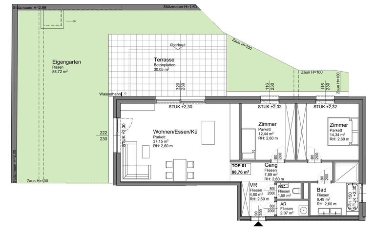
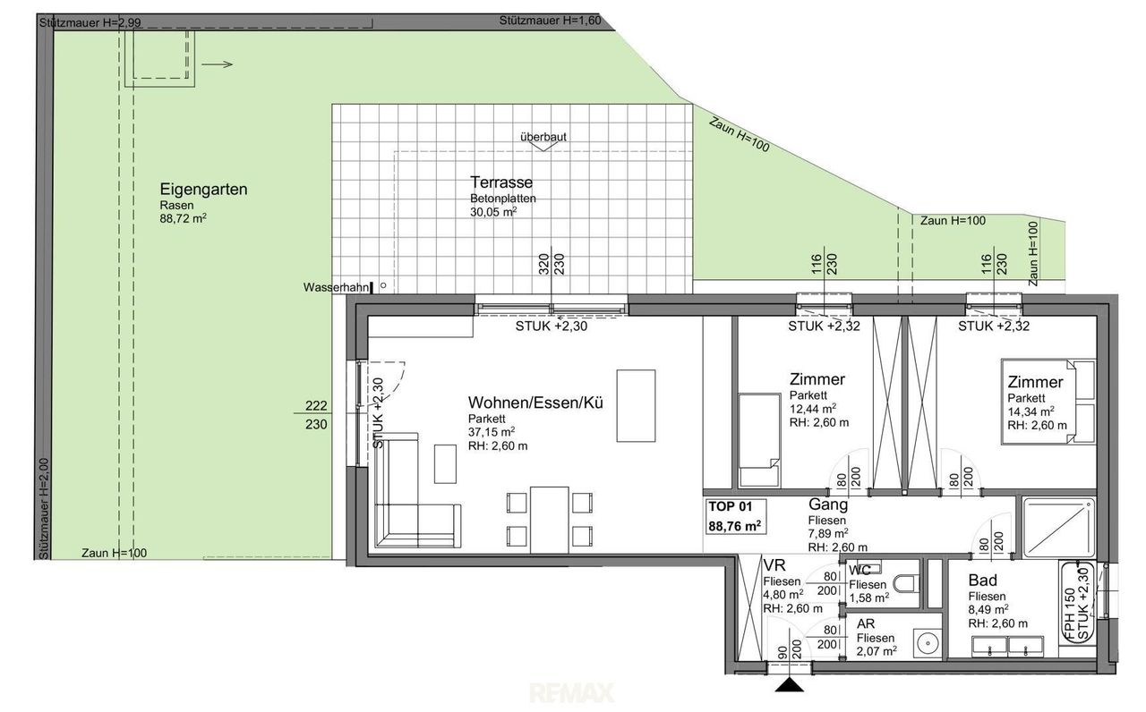
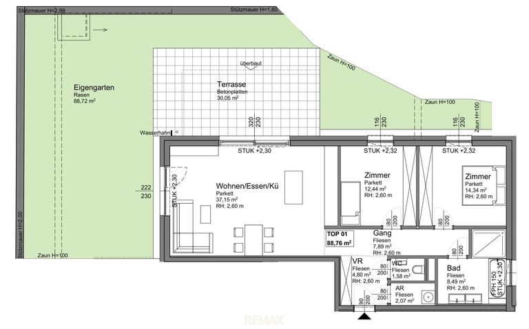
Top 1 überzeugt mit durchdachter Raumaufteilung und einem großzügigen Eigengarten. Die lichtdurchflutete Wohnküche bietet direkten Zugang zur Terrasse und schafft ein offenes, einladendes Wohngefühl. Das Badezimmer kann individuell mit Dusche oder Badewanne gestaltet werden. Ein zusätzlicher Abstellraum mit Waschmaschinenanschluss sorgt für praktischen Stauraum. Zwei Tiefgaragenplätze sind separat zu erwerben.
Wer das Zentrale liebt und auf moderne Wohnqualität nicht verzichten möchte, findet am Angerweg in Ohlsdorf sein neues Zuhause. Nur wenige Schritte vom Ortszentrum entfernt entstehen 13 hochwertige Eigentumswohnungen mit durchdachten Grundrissen und zeitgemäßer Ausstattung – ideal für alle, die urbane Nähe mit ruhiger Wohnlage verbinden möchten.
Was Sie erwartet:
• Zentrale Lage: In wenigen Gehminuten mitten im Ortskern – Einkauf, Schule, Nahversorger direkt ums Eck
• Moderne Ausstattung: Edle Parkettböden, stilvolle Fliesen, Fußbodenheizung & energieeffiziente Luftwärmepumpe
• Wohnkomfort für jeden Anspruch: Von 42 m² bis 110 m² – ideal für Singles, Paare oder Familien
• Draußen zuhause: Großzügige Terrassen oder Eigengärten für entspannte Stunden im Grünen
• Komfortabel & barrierefrei: Lift in alle Etagen, Tiefgarage für stressfreies Parken
• Gestaltungsfreiraum: Jetzt noch mitplanen und Ihre Wünsche einbringen
Aktueller Verkaufsstand:
✔ Bereits 5 Wohnungen vergeben – nur noch 8 verfügbar!
✔ Baustart bei 50 % Verkaufsquote – jetzt vor Baustart sichern und noch mitgestalten!
Lebenswert wohnen – mitten in Ohlsdorf
Wohnen Sie naturnah und dennoch bestens angebunden: Die Autobahn erreichen Sie in wenigen Minuten, Erholung bieten Traunsee, Traunstein und zahlreiche Freizeitangebote der Region.
Direkt vom Bauträger – provisionsfrei für Käufer
Jetzt informieren und Wohntraum sichern:
📞 Persönlich berät Sie Sabine Wenzel (0676 300 40 62) und Christian Sammer (0650 31 71 003)
🌐 Alle Details unter: www.angerweg-zwei.at
Zuhause ankommen. Im Herzen von Ohlsdorf.
Top 1 überzeugt mit durchdachter Raumaufteilung und einem großzügigen Eigengarten. Die lichtdurchflutete Wohnküche bietet direkten Zugang zur Terrasse und schafft ein offenes, einladendes Wohngefühl. Das Badezimmer kann individuell mit Dusche oder Badewanne gestaltet werden. Ein zusätzlicher Abstellraum mit Waschmaschinenanschluss sorgt für praktischen Stauraum. Zwei Tiefgaragenplätze sind separat zu erwerben.
Infrastruktur / Entfernungen
Gesundheit
Arzt <500m
Apotheke <2.500m
Krankenhaus <5.500m
Klinik <3.000m
Kinder & Schulen
Schule <500m
Kindergarten <500m
Nahversorgung
Supermarkt <500m
Bäckerei <500m
Einkaufszentrum <4.500m
Sonstige
Bank <500m
Geldautomat <500m
Post <500m
Polizei <3.000m
Verkehr
Bus <500m
Straßenbahn <4.500m
Bahnhof <4.000m
Autobahnanschluss <4.000m
Flughafen <5.500m
Angaben Entfernung Luftlinie / Quelle: OpenStreetMap
Objektdaten
Ausstattung
- Erdwärme
- Personen Fahrstuhl
Dokumente / Links
Zustand
- Zustand
- ERSTBEZUG
- Baujahr
- 2025
- HWB
- 40 kWh/m² pro Jahr
Flächen
- Anzahl der Zimmer
- 3
- Anzahl der Badezimmer
- 1
- Anzahl der sep. WCs
- 1
- Anzahl der Terrassen
- 1
- Wohnfläche
- 89m²
- Gartenfläche
- 89m²
- Kellerfläche
- 4m²
- Terrassenfläche
- 1m²
Kosten
- Kaufpreis Brutto
- € 481.500,00
Wohnungen zum Kaufen im Umkreis von Ohlsdorf
Wohnungen zum Kaufen im Umkreis von Ohlsdorf
Wohnungen zum Kaufen in Österreich
Andere Besucher suchen nach...
- Grundstücke kaufen in 3400 Weidlingbach
- Wohnungen kaufen in 4663 Laakirchen
- Häuser in 7471 Rechnitz
- Wohnungen in 2410 Hainburg an der Donau
- Häuser kaufen in 2432 Schwadorf
- Wohnungen kaufen in 3002 Purkersdorf
- Häuser in 3150 Wilhelmsburg
- Wohnungen kaufen in 3470 Engelmannsbrunn
- Grundstücke kaufen im Bezirk Mattersburg
- Grundstücke kaufen im Bezirk Gmunden