Sonnige Terrassenwohnung im Grünen – Süd-Westlage lichtdurchflutet
€ 329.000
€ 4.565 / m²
4812 Pinsdorf
-
Erstbezug
Beschreibung
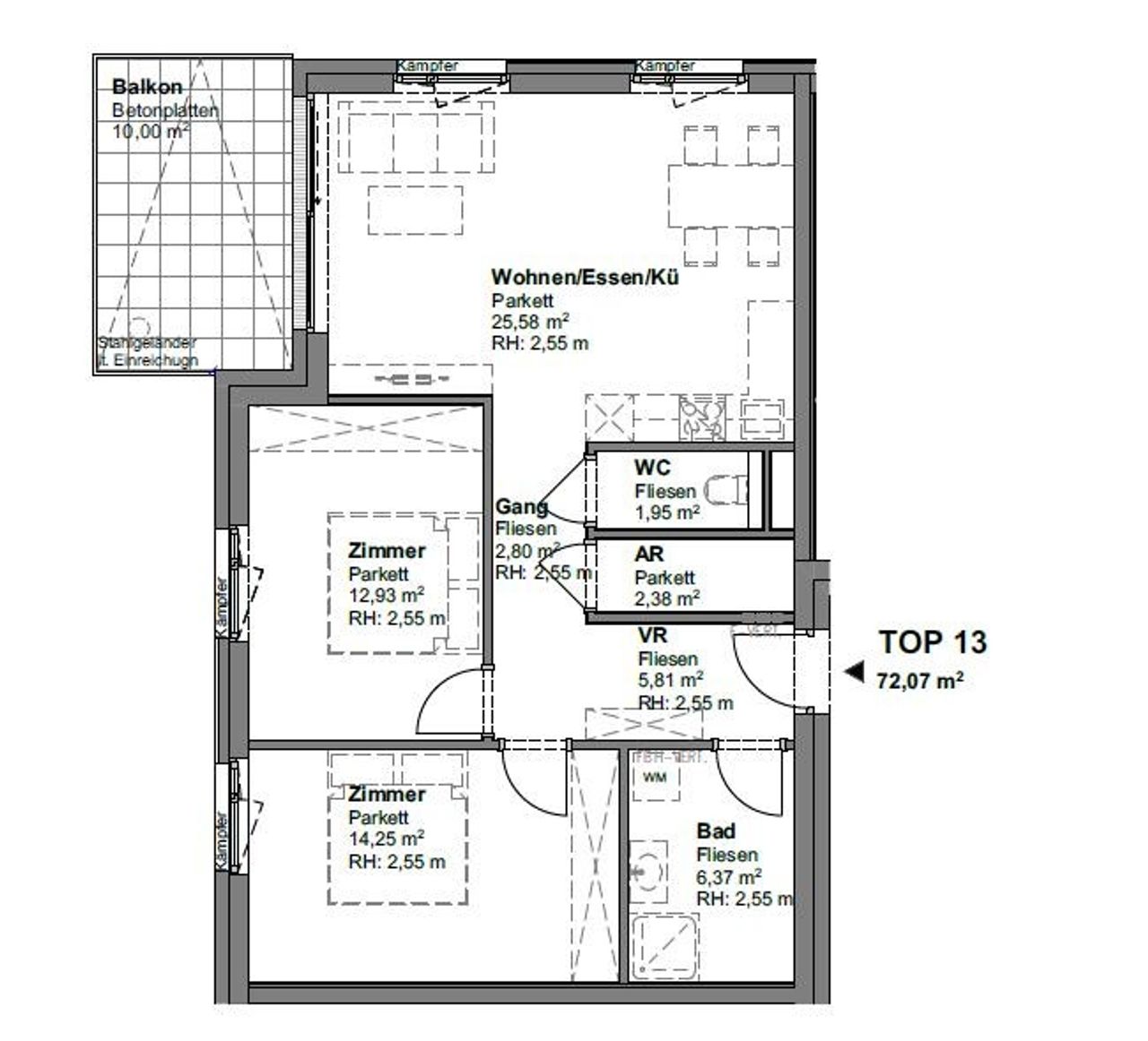
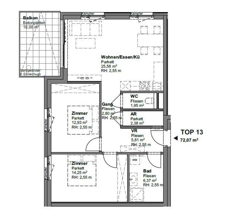
Diese moderne Eigentumswohnung im 1. Obergeschoss in ruhiger, dennoch verkehrsgünstiger Lage von Pinsdorf bietet auf ca. 72,07 m² Wohnfläche ein ideales Zuhause für Eigennutzer oder eine attraktive Gelegenheit für Anleger. Über den einladenden Innenhof gelangen Sie bequem in das Wohnhaus. Die Wohnung überzeugt durch eine durchdachte Raumaufteilung: Vom Vorraum aus erreichen Sie das Badezimmer sowie ein separates WC und einen praktischen Abstellraum. Die beiden großzügigen Schlafzimmer bieten viel Platz und sind als vollwertige Schlafräume ideal nutzbar – perfekt für Paare, kleine Familien oder Home-Office. Highlight ist der lichtdurchflutete Wohn- und Essbereich, der ein modernes und offenes Wohngefühl vermittelt. Von hier...
Diese moderne Eigentumswohnung im 1. Obergeschoss in ruhiger, dennoch verkehrsgünstiger Lage von Pinsdorf bietet auf ca. 72,07 m² Wohnfläche ein ideales Zuhause für Eigennutzer oder eine attraktive Gelegenheit für Anleger.
Über den einladenden Innenhof gelangen Sie bequem in das Wohnhaus. Die Wohnung überzeugt durch eine durchdachte Raumaufteilung: Vom Vorraum aus erreichen Sie das Badezimmer sowie ein separates WC und einen praktischen Abstellraum.
Die beiden großzügigen Schlafzimmer bieten viel Platz und sind als vollwertige Schlafräume ideal nutzbar – perfekt für Paare, kleine Familien oder Home-Office.
Highlight ist der lichtdurchflutete Wohn- und Essbereich, der ein modernes und offenes Wohngefühl vermittelt. Von hier aus gelangen Sie direkt auf die sonnige Terrasse/Balkon mit optimaler Süd-West-Ausrichtung, ideal für entspannte Nachmittage und Abende.
Die Einbauküche sowie ein Tiefgaragenstellplatz sind bereits im Kaufpreis inkludiert – ein großer Vorteil für Anleger, da die Wohnung dadurch sofort bezugs- bzw. vermietbar ist.
Hiermit möchten wir schriftlich lt. §6 Abs 4 MaklerG darauf hinweisen, dass ein wirtschaftliches Naheverhältnis zum Verkäufer, Grund dauerhafte Geschäftsbeziehung, vorliegt.
Über den einladenden Innenhof gelangen Sie bequem in das Wohnhaus. Die Wohnung überzeugt durch eine durchdachte Raumaufteilung: Vom Vorraum aus erreichen Sie das Badezimmer sowie ein separates WC und einen praktischen Abstellraum.
Die beiden großzügigen Schlafzimmer bieten viel Platz und sind als vollwertige Schlafräume ideal nutzbar – perfekt für Paare, kleine Familien oder Home-Office.
Highlight ist der lichtdurchflutete Wohn- und Essbereich, der ein modernes und offenes Wohngefühl vermittelt. Von hier aus gelangen Sie direkt auf die sonnige Terrasse/Balkon mit optimaler Süd-West-Ausrichtung, ideal für entspannte Nachmittage und Abende.
Die Einbauküche sowie ein Tiefgaragenstellplatz sind bereits im Kaufpreis inkludiert – ein großer Vorteil für Anleger, da die Wohnung dadurch sofort bezugs- bzw. vermietbar ist.
Hiermit möchten wir schriftlich lt. §6 Abs 4 MaklerG darauf hinweisen, dass ein wirtschaftliches Naheverhältnis zum Verkäufer, Grund dauerhafte Geschäftsbeziehung, vorliegt.
| Angaben gemäß gesetzlichem Erfordernis: | |||
| Heizwärmebedarf: | 46.0 kWh/(m²a) | ||
| Klasse Heizwärmebedarf: | B | ||
Objektdaten
Ausstattung
- Unterkellert
- Zentralheizung
- Erdwärme
- Personen Fahrstuhl
- Küche Möbliert
- Zentralheizung mit Wärmepumpe
Zustand
- Zustand
- ERSTBEZUG
Flächen
- Anzahl der Zimmer
- 3
- Anzahl der Badezimmer
- 1
- Anzahl der sep. WCs
- 1
- Anzahl der Balkone
- 1
- Anzahl der Terrassen
- 1
- Stellplätze
- 1
- Wohnfläche
- 72m²
- Kellerfläche
- 4m²
- Terrassenfläche
- 1m²
Kosten
- Kaufpreis
- € 329.000,00
- Nebenkosten
- € 272,06
- Betriebskosten Brutto
- € 272,06
Wohnungen zum Kaufen im Umkreis von Pinsdorf
Wohnungen zum Kaufen im Umkreis von Pinsdorf
Wohnungen zum Kaufen in Österreich
Andere Besucher suchen nach...
- Grundstücke kaufen in 3400 Weidlingbach
- Wohnungen kaufen in 4663 Laakirchen
- Häuser in 7471 Rechnitz
- Wohnungen in 2410 Hainburg an der Donau
- Häuser kaufen in 2432 Schwadorf
- Wohnungen kaufen in 3002 Purkersdorf
- Häuser in 3150 Wilhelmsburg
- Wohnungen kaufen in 3470 Engelmannsbrunn
- Grundstücke kaufen im Bezirk Mattersburg
- Grundstücke kaufen im Bezirk Gmunden