Anleger aufgepasst! 2-Zimmererstbezugswohnung
€ 327.082
€ 5.911 / m²
4813 Altmünster
-
Erstbezug
-
ca. 2023
-
sofort
Beschreibung
Diese schöne Erstbezugsgartenwohnung ist bereits fertig gestellt und befindet sich in bester Lage Altmünsters. Der schöne Traunsee als auch das Zentrum mit seiner guten Infrastruktur sind im Nu fußläufig erreicht. Sie setzt sich aus Vorraum, Badezimmer mit Toilette, Schlafzimmer und Koch-Wohn-Essbereich zusammen. Von diesem gelangt man auf die Terrasse und den netten, kleinen Eigengarten. Durch die effiziente Bauweise und den Einsatz energiesparender Technologien kann der Standard eines Niedrig-Energiehauses erzielt werden. Durch die schöne Außenfläche wird eine gute Verbindung zur Natur geschaffen und eine helle, freundliche Wohnung gestaltet. Zum Kaufpreis sind die Kosten des Tiefgaragenplatzes hinzu zu rechnen. Bei Möglichkeit zum...
Diese schöne Erstbezugsgartenwohnung ist bereits fertig gestellt und befindet sich in bester Lage Altmünsters. Der schöne Traunsee als auch das Zentrum mit seiner guten Infrastruktur sind im Nu fußläufig erreicht.
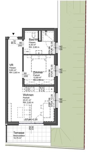
Sie setzt sich aus Vorraum, Badezimmer mit Toilette, Schlafzimmer und Koch-Wohn-Essbereich zusammen. Von diesem gelangt man auf die Terrasse und den netten, kleinen Eigengarten.
Durch die effiziente Bauweise und den Einsatz energiesparender Technologien kann der Standard eines Niedrig-Energiehauses erzielt werden. Durch die schöne Außenfläche wird eine gute Verbindung zur Natur geschaffen und eine helle, freundliche Wohnung gestaltet.
Zum Kaufpreis sind die Kosten des Tiefgaragenplatzes hinzu zu rechnen.
Bei Möglichkeit zum Vorsteuerabzug gestaltet sich der Preis folgendermaßen:
Kaufpreis Wohnung € 327.081,75 + USt + Kaufpreis 1 Tiefgaragenplatz € 26.341,67 + USt
Kaufpreis insgesamt: € 353.423,42 + USt
Seit 01. Jänner 2021 gilt die Marktgemeinde Altmünster als Vorbehaltsgebietsgemeinde, aus diesem Grund ist die Begründung eines Freizeitwohnsitzes ausschließlich nach grundverkehrsbehördlicher Prüfung und Genehmigung möglich. Die Wohnung kann ausschließlich an Mieter vermietet werden, die in dieser Wohnung Ihren Hauptwohnsitz begründen.
Auf das wirtschaftliche Naheverhältnis zum Bauträger wird ausdrücklich verwiesen.
Projektwebseite: https://www.remax.at/pr-seevillen2
Sie setzt sich aus Vorraum, Badezimmer mit Toilette, Schlafzimmer und Koch-Wohn-Essbereich zusammen. Von diesem gelangt man auf die Terrasse und den netten, kleinen Eigengarten.
Durch die effiziente Bauweise und den Einsatz energiesparender Technologien kann der Standard eines Niedrig-Energiehauses erzielt werden. Durch die schöne Außenfläche wird eine gute Verbindung zur Natur geschaffen und eine helle, freundliche Wohnung gestaltet.
Zum Kaufpreis sind die Kosten des Tiefgaragenplatzes hinzu zu rechnen.
Bei Möglichkeit zum Vorsteuerabzug gestaltet sich der Preis folgendermaßen:
Kaufpreis Wohnung € 327.081,75 + USt + Kaufpreis 1 Tiefgaragenplatz € 26.341,67 + USt
Kaufpreis insgesamt: € 353.423,42 + USt
Seit 01. Jänner 2021 gilt die Marktgemeinde Altmünster als Vorbehaltsgebietsgemeinde, aus diesem Grund ist die Begründung eines Freizeitwohnsitzes ausschließlich nach grundverkehrsbehördlicher Prüfung und Genehmigung möglich. Die Wohnung kann ausschließlich an Mieter vermietet werden, die in dieser Wohnung Ihren Hauptwohnsitz begründen.
Auf das wirtschaftliche Naheverhältnis zum Bauträger wird ausdrücklich verwiesen.
Projektwebseite: https://www.remax.at/pr-seevillen2
| Angaben gemäß gesetzlichem Erfordernis: | |||
| Heizwärmebedarf: | 40.0 kWh/(m²a) | ||
| Klasse Heizwärmebedarf: | B | ||
| Faktor Gesamtenergieeffizienz: | 0.77 | ||
Objektdaten
Ausstattung
- Gartennutzung
- Unterkellert
- Zentralheizung
- Erdwärme
- Personen Fahrstuhl
- Massiv Bauweise
- Neubaustandard
- Zeigelmassiv
- Bus
- Gegensprechanlage
- Grüne Lage
- Sonstiges
- Sonnige Lage
- Stadtzentrum
- Villengegend
- Zentralheizung mit Wärmepumpe
Dokumente / Links
Zustand
- Zustand
- ERSTBEZUG
- Baujahr
- ca. 2023
- Alter
- NEUBAU
Flächen
- Anzahl der Zimmer
- 2
- Anzahl der Badezimmer
- 1
- Anzahl der sep. WCs
- 1
- Stellplätze
- 1
- Wohnfläche
- 55m²
- Gartenfläche
- 60m²
- Kellerfläche
- 6m²
Kosten
- Kaufpreis
- € 327.081,75
Verwaltung
- Verfügbar ab
- sofort
Wohnungen zum Kaufen im Umkreis von Altmünster
Wohnungen zum Kaufen im Umkreis von Altmünster
Wohnungen zum Kaufen in Österreich
Andere Besucher suchen nach...
- Grundstücke kaufen in 3400 Weidlingbach
- Wohnungen kaufen in 4663 Laakirchen
- Häuser in 7471 Rechnitz
- Wohnungen in 2410 Hainburg an der Donau
- Häuser kaufen in 2432 Schwadorf
- Wohnungen kaufen in 3002 Purkersdorf
- Häuser in 3150 Wilhelmsburg
- Wohnungen kaufen in 3470 Engelmannsbrunn
- Grundstücke kaufen im Bezirk Mattersburg
- Grundstücke kaufen im Bezirk Gmunden