Exklusive 3-Zi.-DG-Wohnung mit Gebirgsblick in ruhiger Lage
-
sofort
Beschreibung
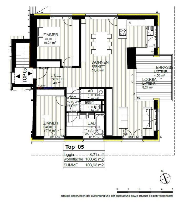
In herrlich ruhiger Lage mit traumhaftem Blick auf die umliegende Bergwelt sowie etwas Seeblick präsentiert sich diese großzügige Eigentumswohnung im 1. Obergeschoss eines kleinen, sehr gepflegten Wohnhauses. Die Wohnung verfügt über ca. 100,2 m² Wohnfläche sowie eine 12,7 m² große, geschützte Loggia/Terrasse, die zum entspannten Verweilen im Freien einlädt. Besonders hervorzuheben sind die außergewöhnlich hohen Räume, die ein großzügiges Raumgefühl schaffen und der Wohnung eine besondere Wohnatmosphäre verleihen. Das Herzstück der Wohnung bildet der offen gestaltete Wohn-, Ess- und Kochbereich mit moderner Einbauküche. Ein freistehender amerikanischer Kühlschrank ergänzt das Ensemble und überzeugt sowohl funktional als auch optisch. Hochwertig gefertigte Einbaukästen...
In herrlich ruhiger Lage mit traumhaftem Blick auf die umliegende Bergwelt sowie etwas Seeblick präsentiert sich diese großzügige Eigentumswohnung im 1. Obergeschoss eines kleinen, sehr gepflegten Wohnhauses.
Die Wohnung verfügt über ca. 100,2 m² Wohnfläche sowie eine 12,7 m² große, geschützte Loggia/Terrasse, die zum entspannten Verweilen im Freien einlädt. Besonders hervorzuheben sind die außergewöhnlich hohen Räume, die ein großzügiges Raumgefühl schaffen und der Wohnung eine besondere Wohnatmosphäre verleihen.
Das Herzstück der Wohnung bildet der offen gestaltete Wohn-, Ess- und Kochbereich mit moderner Einbauküche. Ein freistehender amerikanischer Kühlschrank ergänzt das Ensemble und überzeugt sowohl funktional als auch optisch.
Hochwertig gefertigte Einbaukästen im Schlafzimmer sowie im Vorraum bieten großzügigen Stauraum und unterstreichen die durchdachte Raumaufteilung.
Derzeit als 3-Zimmer-Wohnung genutzt, lässt sich mit geringem Aufwand ein viertes Zimmer realisieren – ideal für Familien, ein Homeoffice oder Gäste.
Die Übergabe erfolgt teilmöbliert und ist kurzfristig möglich.
Zum Angebot gehören außerdem:
• 1 Carport-Stellplatz mit E-Ladestation
• 1 zusätzlicher Außenstellplatz
• 1 Kellerabteil
Das Wohnhaus wurde 2019 umfassend saniert und durch Zu- und Ausbau erweitert. Dabei entstanden sechs hochwertige Wohneinheiten, die über ein zentrales Stiegenhaus erschlossen werden. Der Hauseingang liegt südseitig und ist über eine private Zufahrtsstraße erreichbar, auf der den Bewohnern ein Geh- und Fahrtrecht eingeräumt ist.
Die Beheizung erfolgt über eine zentrale Gasheizung (Bodenheizung). Das Gebäude ist an das öffentliche Kanal- und Wassernetz angeschlossen.
Der Vermittler ist als Doppelmakler tätig.
Infrastruktur / Entfernungen
Gesundheit
Arzt <2.500m
Apotheke <3.500m
Krankenhaus <5.500m
Klinik <5.000m
Kinder & Schulen
Schule <1.500m
Kindergarten <2.500m
Nahversorgung
Supermarkt <2.500m
Bäckerei <2.500m
Einkaufszentrum <6.500m
Sonstige
Bank <2.500m
Geldautomat <2.500m
Post <3.500m
Polizei <5.500m
Verkehr
Bus <1.000m
Straßenbahn <5.500m
Bahnhof <2.500m
Autobahnanschluss <10.000m
Angaben Entfernung Luftlinie / Quelle: OpenStreetMap
Objektdaten
Ausstattung
- Teilmöbliert
Zustand
- Baujahr
- 1979
- HWB
- 46.5 kWh/m² pro Jahr
Flächen
- Anzahl der Zimmer
- 3
- Anzahl der Badezimmer
- 1
- Anzahl der sep. WCs
- 1
- Anzahl der Logia
- 1
- Wohnfläche
- 100m²
Kosten
- Kaufpreis Brutto
- € 549.000,00
- Betriebskosten
- € 263,24
- Heizkosten
- € 104,17
- Sonstige Kosten
- € 126,81
Verwaltung
- Verfügbar ab
- sofort
Wohnungen zum Kaufen im Umkreis von Altmünster
Wohnungen zum Kaufen im Umkreis von Altmünster
Wohnungen zum Kaufen in Österreich
Andere Besucher suchen nach...
- Grundstücke kaufen in 3400 Weidlingbach
- Wohnungen kaufen in 4663 Laakirchen
- Häuser in 7471 Rechnitz
- Wohnungen in 2410 Hainburg an der Donau
- Häuser kaufen in 2432 Schwadorf
- Wohnungen kaufen in 3002 Purkersdorf
- Häuser in 3150 Wilhelmsburg
- Wohnungen kaufen in 3470 Engelmannsbrunn
- Grundstücke kaufen im Bezirk Mattersburg
- Grundstücke kaufen im Bezirk Gmunden