Generalsanierte wunderschöne 3-Zimmer Wohnung in Graz/Jakomini
€ 283.000
€ 3.329 / m²
8010 Graz
-
Sofort
Beschreibung
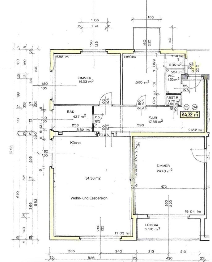
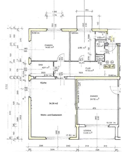
Die generalsanierte Wohnung liegt in einer zentralen und sehr guten Lage im Bezirk Graz/Jakomini. Durch die optimale Raumaufteilung eignet sich die Wohnung sehr gut sowohl für Studenten als auch für Paare und Familien. Sie betreten die Wohnung über einen großzügigen Flur der bestens für einen Garderobenbereich geeignet ist. Von dort aus gelangen sie dann in alle weiteren Räume der Wohnung, welche da wären: - Küchen-Wohn-Essbereich (ca. 34m2) - 1 Schlafzimmern (ca. 15m2) - 1 Schlafzimmer (ca. 11m2) mit Balkon - Badezimmer mit Badewanne und Fenster - getrenntes WC - Abstellraum mit Anschluss für Waschmaschine und Trockner Ein Kellerabteil ist der...
Die generalsanierte Wohnung liegt in einer zentralen und sehr guten Lage im Bezirk Graz/Jakomini.
Durch die optimale Raumaufteilung eignet sich die Wohnung sehr gut sowohl für Studenten als auch für Paare und Familien.
Sie betreten die Wohnung über einen großzügigen Flur der bestens für einen Garderobenbereich geeignet ist.
Von dort aus gelangen sie dann in alle weiteren Räume der Wohnung, welche da wären:
- Küchen-Wohn-Essbereich (ca. 34m2)
- 1 Schlafzimmern (ca. 15m2)
- 1 Schlafzimmer (ca. 11m2) mit Balkon
- Badezimmer mit Badewanne und Fenster
- getrenntes WC
- Abstellraum mit Anschluss für Waschmaschine und Trockner
Ein Kellerabteil ist der Wohnung zugehörig und bietet zusätzlichen Stauraum.
Die Wohnung wurde von Grund auf komplett neu saniert - Elektroarbeiten, Fliesen, Parkettboden,
Malerei, neue Innentüren usw.
Wir weisen hiermit auch auf das wirtschaftliche Naheverhältnis zum Verkäufer hin (§ 6 Abs 4 MaklerG iVm § 30b KSchG).
Durch die optimale Raumaufteilung eignet sich die Wohnung sehr gut sowohl für Studenten als auch für Paare und Familien.
Sie betreten die Wohnung über einen großzügigen Flur der bestens für einen Garderobenbereich geeignet ist.
Von dort aus gelangen sie dann in alle weiteren Räume der Wohnung, welche da wären:
- Küchen-Wohn-Essbereich (ca. 34m2)
- 1 Schlafzimmern (ca. 15m2)
- 1 Schlafzimmer (ca. 11m2) mit Balkon
- Badezimmer mit Badewanne und Fenster
- getrenntes WC
- Abstellraum mit Anschluss für Waschmaschine und Trockner
Ein Kellerabteil ist der Wohnung zugehörig und bietet zusätzlichen Stauraum.
Die Wohnung wurde von Grund auf komplett neu saniert - Elektroarbeiten, Fliesen, Parkettboden,
Malerei, neue Innentüren usw.
Wir weisen hiermit auch auf das wirtschaftliche Naheverhältnis zum Verkäufer hin (§ 6 Abs 4 MaklerG iVm § 30b KSchG).
| Angaben gemäß gesetzlichem Erfordernis: | |||
| Heizwärmebedarf: | 44.6 kWh/(m²a) | ||
| Klasse Heizwärmebedarf: | B | ||
| Faktor Gesamtenergieeffizienz: | 0.99 | ||
| Klasse Faktor Gesamtenergieeffizienz: | B | ||
Objektdaten
Ausstattung
- Unterkellert
- Zentralheizung
- Fern Befeuerung
- Personen Fahrstuhl
- Aussichtslage
- Aussichtslage Unverbaubar
- Bus
- Eisenbahn
- Schnellbahn
- Sonnenschutz
- Stadtzentrum
- Straßenbahn
- Zentralheizung mit Fernwärme
Zustand
- Zustand
- GEPFLEGT
Flächen
- Anzahl der Zimmer
- 3
- Anzahl der Schlafzimmer
- 2
- Anzahl der Badezimmer
- 1
- Anzahl der sep. WCs
- 1
- Anzahl der Balkone
- 1
- Wohnfläche
- 85m²
Kosten
- Kaufpreis
- € 283.000,00
- Nebenkosten
- € 281,69
- Betriebskosten Brutto
- € 169,00
Verwaltung
- Verfügbar ab
- Sofort
Wohnungen zum Kaufen in Österreich
Wohnungen zum Kaufen in Österreich
Andere Besucher suchen nach...
- Grundstücke kaufen in 3400 Weidlingbach
- Wohnungen kaufen in 4663 Laakirchen
- Häuser in 7471 Rechnitz
- Wohnungen in 2410 Hainburg an der Donau
- Häuser kaufen in 2432 Schwadorf
- Wohnungen kaufen in 3002 Purkersdorf
- Häuser in 3150 Wilhelmsburg
- Wohnungen kaufen in 3470 Engelmannsbrunn
- Grundstücke kaufen im Bezirk Mattersburg
- Grundstücke kaufen im Bezirk Gmunden