Stilvolle 60 m² Wohnung mit offenem Grundriss in Top Lage
€ 230.000
€ 3.833 / m²
8010 Graz
Beschreibung
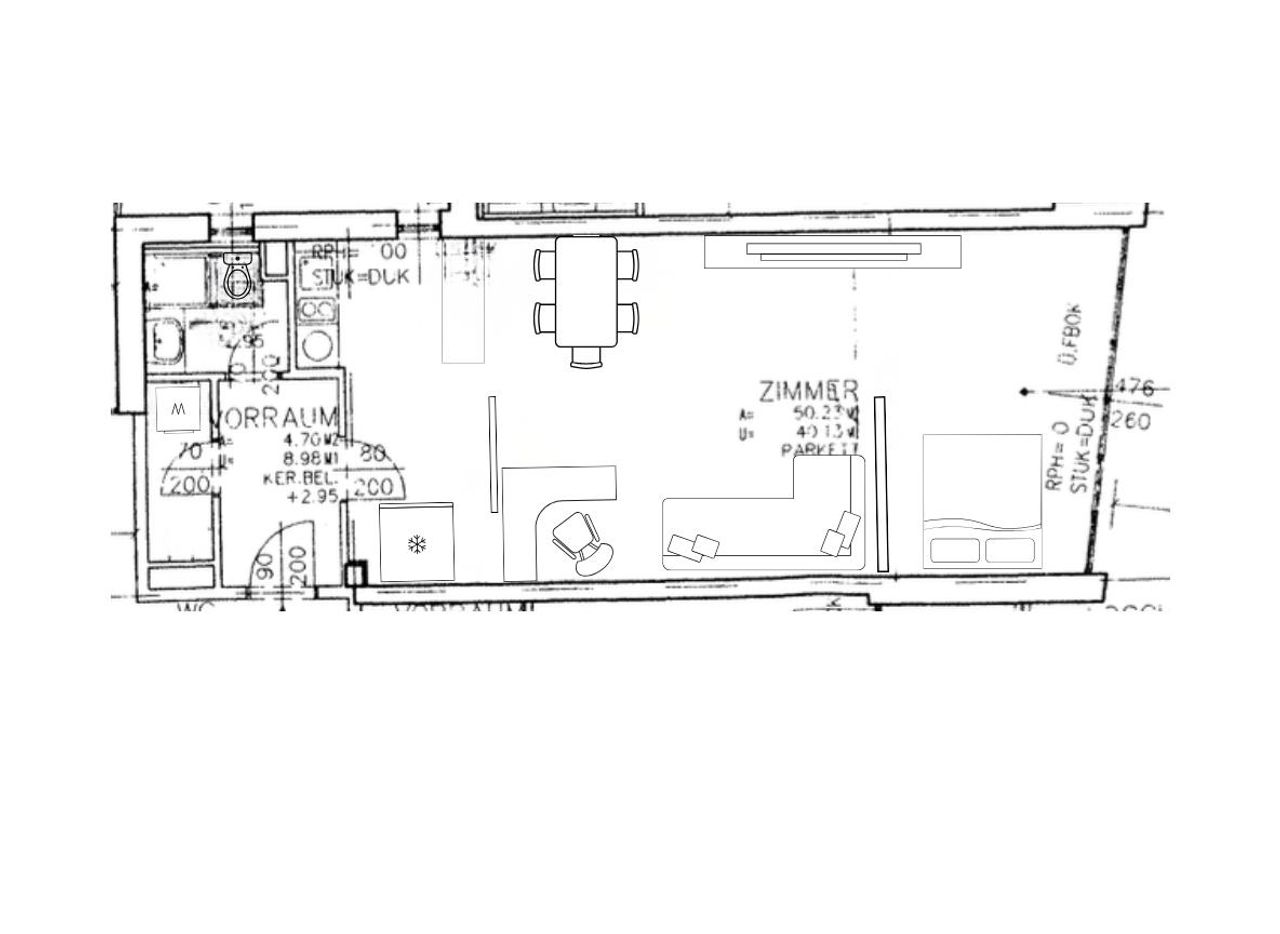
Diese großzügige und moderne 1-Zimmer-Wohnung mit ca. 60 m² Wohnfläche überzeugt durch ihr offenes Raumkonzept und ihre flexible Nutzungsmöglichkeit. Sie befindet sich im 1. Obergeschoss eines gepflegten Hauses mit Lift in der Körösistraße 40–42. Der offene Wohnbereich bietet ein besonders angenehmes Raumgefühl und viel Platz zur individuellen Gestaltung. Die Wohnung verfügt über: - einen Vorraum - eine Küche - ein Badezimmer mit Dusche und WC - einen praktischen Abstellraum mit Waschmaschinenanschluss Beheizt wird die Wohnung mittels Fernwärme. Ein Kellerabteil sorgt für zusätzlichen Stauraum. Ein Tiefgaragenstellplatz kann optional um ca. € 90,- monatlich angemietet werden. Lage & Infrastruktur: Die Wohnung punktet...
Diese großzügige und moderne 1-Zimmer-Wohnung mit ca. 60 m² Wohnfläche überzeugt durch ihr offenes Raumkonzept und ihre flexible Nutzungsmöglichkeit. Sie befindet sich im 1. Obergeschoss eines gepflegten Hauses mit Lift in der Körösistraße 40–42.
Der offene Wohnbereich bietet ein besonders angenehmes Raumgefühl und viel Platz zur individuellen Gestaltung.
Die Wohnung verfügt über:
- einen Vorraum
- eine Küche
- ein Badezimmer mit Dusche und WC
- einen praktischen Abstellraum mit Waschmaschinenanschluss
Beheizt wird die Wohnung mittels Fernwärme.
Ein Kellerabteil sorgt für zusätzlichen Stauraum.
Ein Tiefgaragenstellplatz kann optional um ca. € 90,- monatlich angemietet werden.
Lage & Infrastruktur:
Die Wohnung punktet mit einer ausgezeichneten Anbindung an den öffentlichen Verkehr. Die Straßenbahn befindet sich in unmittelbarer Nähe und ermöglichen eine schnelle Erreichbarkeit der Innenstadt. Alle wichtigen Einrichtungen des täglichen Bedarfs sind fußläufig erreichbar.
Highlights:
- 60 m² Wohnfläche
- Offenes, modernes Wohnkonzept
- Lift im Haus (1. OG)
- Fernwärme
- Abstellraum & Kellerabteil
- Tiefgarage optional zur Miete
- Sehr gute Öffi-Anbindung
Besichtigungen sind ab sofort möglich!
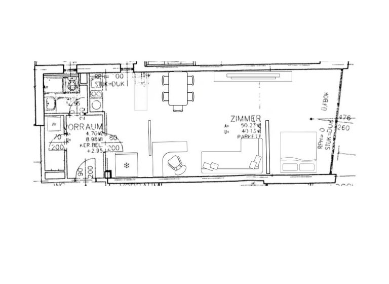
Der offene Wohnbereich bietet ein besonders angenehmes Raumgefühl und viel Platz zur individuellen Gestaltung.
Die Wohnung verfügt über:
- einen Vorraum
- eine Küche
- ein Badezimmer mit Dusche und WC
- einen praktischen Abstellraum mit Waschmaschinenanschluss
Beheizt wird die Wohnung mittels Fernwärme.
Ein Kellerabteil sorgt für zusätzlichen Stauraum.
Ein Tiefgaragenstellplatz kann optional um ca. € 90,- monatlich angemietet werden.
Lage & Infrastruktur:
Die Wohnung punktet mit einer ausgezeichneten Anbindung an den öffentlichen Verkehr. Die Straßenbahn befindet sich in unmittelbarer Nähe und ermöglichen eine schnelle Erreichbarkeit der Innenstadt. Alle wichtigen Einrichtungen des täglichen Bedarfs sind fußläufig erreichbar.
Highlights:
- 60 m² Wohnfläche
- Offenes, modernes Wohnkonzept
- Lift im Haus (1. OG)
- Fernwärme
- Abstellraum & Kellerabteil
- Tiefgarage optional zur Miete
- Sehr gute Öffi-Anbindung
Besichtigungen sind ab sofort möglich!
| Angaben gemäß gesetzlichem Erfordernis: | |||
| Heizwärmebedarf: | 70.9 kWh/(m²a) | ||
| Klasse Heizwärmebedarf: | C | ||
| Faktor Gesamtenergieeffizienz: | 1.26 | ||
| Klasse Faktor Gesamtenergieeffizienz: | C | ||
Objektdaten
Ausstattung
- Räume veränderbar
- Barrierefrei
- Unterkellert
- Zentralheizung
- Fern Befeuerung
- Personen Fahrstuhl
- Neubaustandard
- Barrierefrei
- Bus
- Gegensprechanlage
- Geschirrspüler
- Küche Möbliert
- Sonstiges
- Räume veränderbar
- Stadtzentrum
- Straßenbahn
- Zentralheizung mit Fernwärme
Dokumente / Links
Zustand
- Zustand
- GEPFLEGT
- Baujahr
- ca. 1995
- Alter
- NEUBAU
Flächen
- Anzahl der Zimmer
- 1
- Anzahl der Badezimmer
- 1
- Anzahl der sep. WCs
- 1
- Stellplätze
- 1
- Wohnfläche
- 60m²
Kosten
- Kaufpreis
- € 230.000,00
- Nebenkosten
- € 343,00
- Betriebskosten Brutto
- € 343,00
Verwaltung
- Verfügbar ab
- nach Vereinbarung
Wohnungen zum Kaufen in Österreich
Wohnungen zum Kaufen in Österreich
Wohnungen zum Kaufen in Österreich
Andere Besucher suchen nach...
- Grundstücke kaufen in 3400 Weidlingbach
- Wohnungen kaufen in 4663 Laakirchen
- Häuser in 7471 Rechnitz
- Wohnungen in 2410 Hainburg an der Donau
- Häuser kaufen in 2432 Schwadorf
- Wohnungen kaufen in 3002 Purkersdorf
- Häuser in 3150 Wilhelmsburg
- Wohnungen kaufen in 3470 Engelmannsbrunn
- Grundstücke kaufen im Bezirk Mattersburg
- Grundstücke kaufen im Bezirk Gmunden