Altbau-Zinshaus mit Ausbaupotenzial – im Paket oder wohnungsweise zu kaufen
Beschreibung
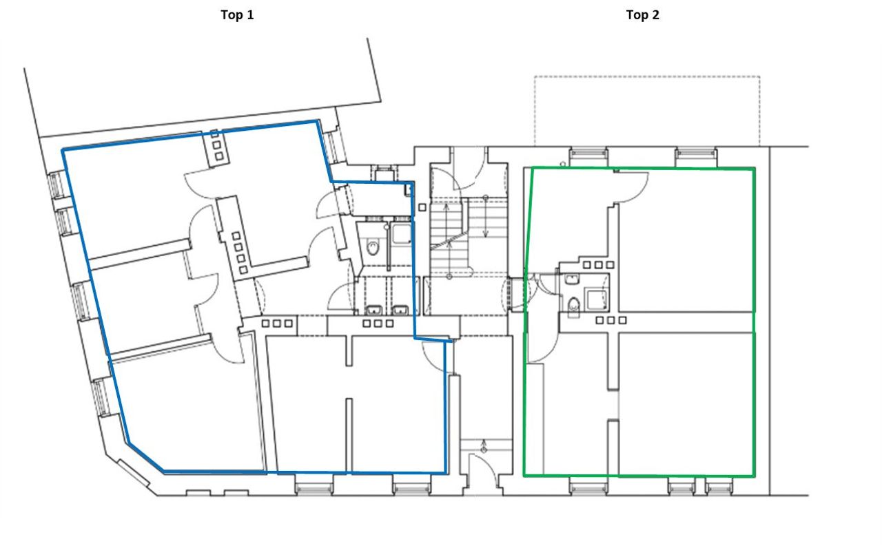
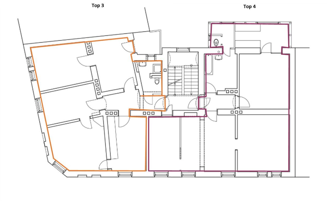
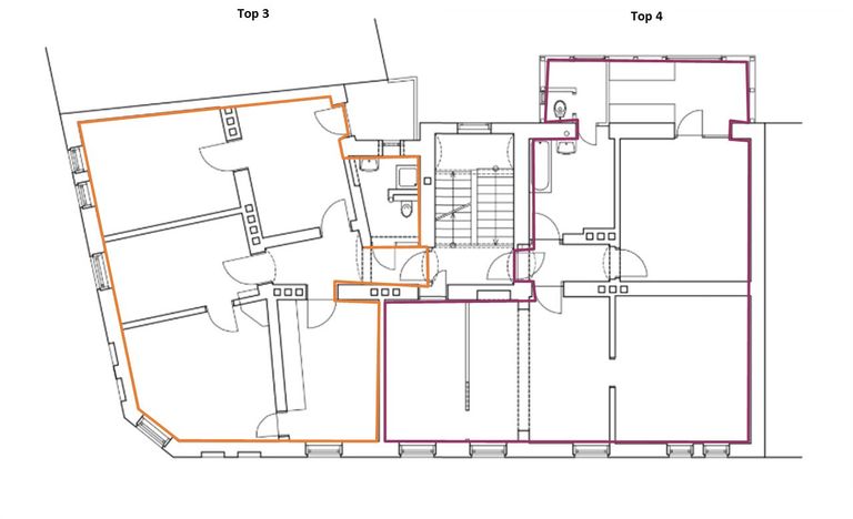
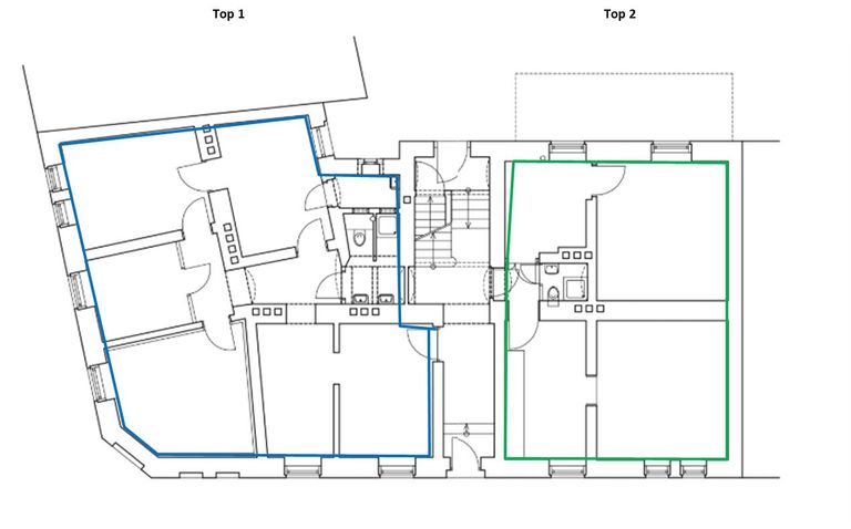
Zum Verkauf steht ein klassisches Eckzinshaus aus dem Jahr 1912 in attraktiver Lage von Graz-Eggenberg, Gaswerkstraße 62. Das gepflegte Altbauhaus umfasst insgesamt sieben Einheiten: eine seit 2014 vermietete Ordination im Erdgeschoss sowie sechs Wohnungen mit Wohnflächen von rund 57 m² bis ca. 105 m². Die Beheizung der Einheiten erfolgt derzeit mittels Gas. Ein besonderes Plus: Die Einheiten können sowohl im Paket als ganzes Zinshaus als auch einzeln erworben werden.
Die Nutzung ist gemischt aus langfristig vermieteten und freiwerdenden Einheiten: Mehrere Wohnungen sind seit vielen Jahren unbefristet vermietet und sorgen für laufende, gut kalkulierbare Mieteinnahmen. Zwei großzügige Altbauwohnungen im 1. Obergeschoss...
Zum Verkauf steht ein klassisches Eckzinshaus aus dem Jahr 1912 in attraktiver Lage von Graz-Eggenberg, Gaswerkstraße 62. Das gepflegte Altbauhaus umfasst insgesamt sieben Einheiten: eine seit 2014 vermietete Ordination im Erdgeschoss sowie sechs Wohnungen mit Wohnflächen von rund 57 m² bis ca. 105 m². Die Beheizung der Einheiten erfolgt derzeit mittels Gas. Ein besonderes Plus: Die Einheiten können sowohl im Paket als ganzes Zinshaus als auch einzeln erworben werden.
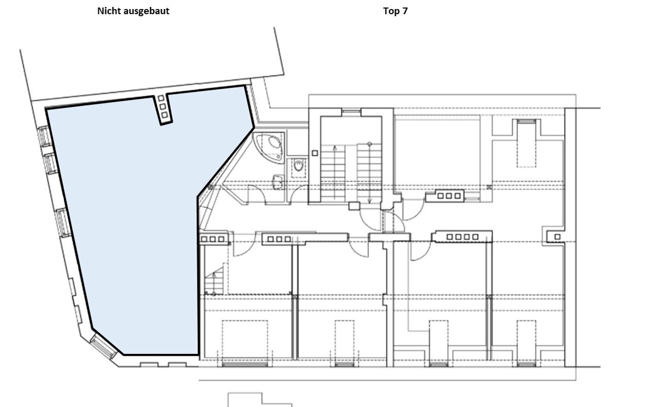
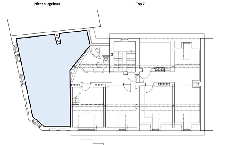
Die Nutzung ist gemischt aus langfristig vermieteten und freiwerdenden Einheiten: Mehrere Wohnungen sind seit vielen Jahren unbefristet vermietet und sorgen für laufende, gut kalkulierbare Mieteinnahmen. Zwei großzügige Altbauwohnungen im 1. Obergeschoss sind bereits bestandsfrei und eignen sich ideal für Eigennutzung, Neuvermietung oder Mietoptimierung. Die Dachgeschosswohnung Top 7 wird mit Jänner 2026 frei und bietet – neben der Möglichkeit zur Eigennutzung oder Neuvermietung – ein besonderes Entwicklungspotenzial: Direkt angrenzend liegt der Rohdachboden, der bei entsprechendem Ausbau eine deutliche Wohnflächenerweiterung dieser Einheit ermöglichen kann.
Typische Altbauattribute wie hohe Räume, Fischgrätparkett, große Fensterflächen und teilweise modernisierte Bäder und Küchen unterstreichen den Charme der Liegenschaft. Insgesamt präsentiert sich das Zinshaus in einem dem Alter entsprechenden, gepflegten Zustand mit interessantem Wertsteigerungs- und Entwicklungspotenzial.
Die Lage im Westen von Graz punktet mit sehr guter Anbindung: Nähe FH Joanneum, UKH Graz, Straßenbahn, Auster, Nahversorger und diverse Freizeitangebote sorgen für eine dauerhaft gefragte Wohn- und Ordinationslage.
Highlights im Überblick:
Klassisches Eckzinshaus aus 1912 in attraktiver Lage Eggenberg
Gemischte Nutzung: Ordination + Wohnungen
Großteils langfristig vermietet, laufende Mieteinnahmen
Mehrere bestandsfreie bzw. freiwerdende Einheiten (inkl. Top 7 ab Jänner 2026)
Ausbaupotenzial durch angrenzenden Rohdachboden neben Top 7
Charmante Altbaumerkmale (hohe Räume, Parkett, große Fenster)
Gute Infrastruktur und öffentliche Anbindung, Nähe FH und UKH Graz
Gesamtkaufpreis: € 1.380.500,-
| TOP | Kaufpreis | Größe | m²-Preis | Miete p.m. | vermietet |
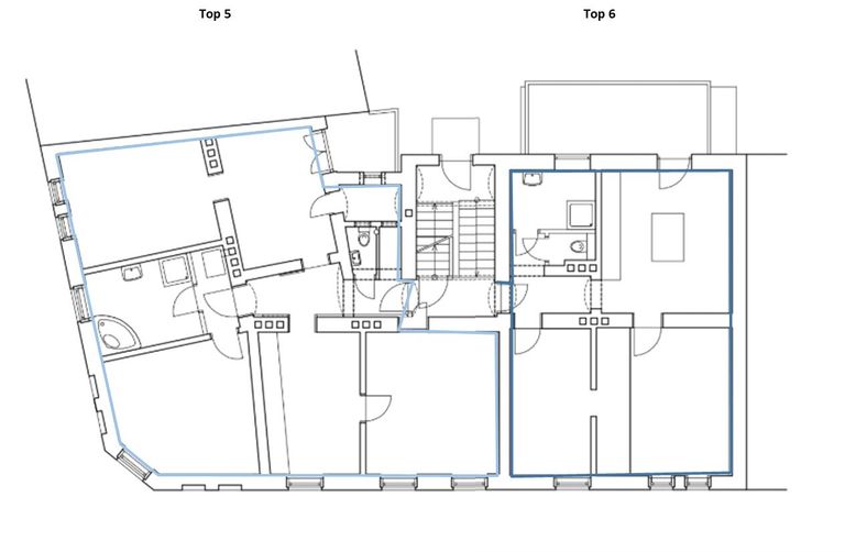
1 | 249.800 € | 84,40 m² | 2.960 € | 1.111 € | ja |
| 2 | 131.465 € | 57,66 m² | 2.280 € | 154 € | ja |
| 3 | 189.605 € | 80,08 m² | 2.310 € | 698 € | nein |
| 4 | 229.165 € | 93,92 m² | 2.440 € | 798 € | nein |
| 5 | 210.021 € | 100,01 m² | 2.100 € | 262 € | ja |
| 6 | 136.595 € | 59,91 m² | 2.280 € | 248 € | ja |
| 7 | 233.882 € | 104,88 m² | 2.230 € | 944 € | nein |
Der Vermittler ist als Doppelmakler tätig.
Objektdaten
Ausstattung
- Befeuerung mit Gas
- Massiv Bauweise
Zustand
- Baujahr
- 1912
- HWB
- 123.39 kWh/m² pro Jahr
- Klasse HWB
- D
- Klasse fGEE
- D
Kosten
- Kaufpreis Brutto
- € 1.380.500,00
Wohnungen zum Kaufen in Österreich
Wohnungen zum Kaufen in Österreich
Andere Besucher suchen nach...
- Grundstücke kaufen in 3400 Weidlingbach
- Wohnungen kaufen in 4663 Laakirchen
- Häuser in 7471 Rechnitz
- Wohnungen in 2410 Hainburg an der Donau
- Häuser kaufen in 2432 Schwadorf
- Wohnungen kaufen in 3002 Purkersdorf
- Häuser in 3150 Wilhelmsburg
- Wohnungen kaufen in 3470 Engelmannsbrunn
- Grundstücke kaufen im Bezirk Mattersburg
- Grundstücke kaufen im Bezirk Gmunden