| CHARMANTE 3 ZIMMER-MAISONETTE-DACHGESCHOSSWOHNUNG MIT GALERIE | SONNIGER BALKON | CA. 80 m² | 3. OG | TEILWEISE SANIERUNGSBEDÜRFTIG | RUHIGER INNENHOF | IDEALE LAGE
Beschreibung
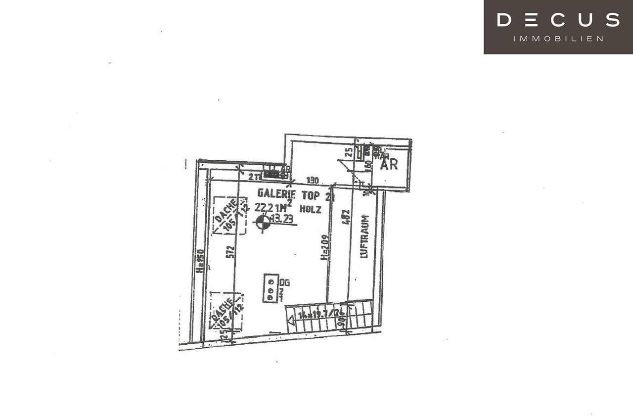
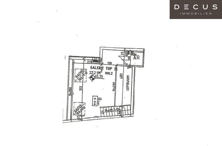
Zum Verkauf steht diese charmante 3-Zimmer-Maisonette-Dachgeschosswohnung mit Galerie und sonnigem Balkon, hell und gemütlich – ca. 80 m² im 3.OG (ohne Lift).
Highlights:
- Helle und freundliche Raumgestaltung
- Gemütliches Ambiente mit sonnigem Balkon
- Kellerabteil für zusätzlichen Stauraum
- Sehr gute Anbindung
- Air BnB Vermietung möglich
Ausstattung:
- Vorraum
- 1 Wohnraum
- 2 Schlaf-/Zimmer
- Küche
- Flur
- Bad mit Dusche
- WC
- Galerie (ca. 20,25 m²)
- 2 Abstellräume
- Kellerabteil
- Balkon (ca. 6,30 m²)
Die Wohnung ist sanierungsbedürftig (Parkettboden, Küche, Bodenfliesen im Bad & Dachfenster).
Hinweis: Die Bilder wurden KI-generiert, um anschauliche Eindrücke zu vermitteln.
Lage:
Diese helle Dachgeschoß-Wohnung besticht durch...
Zum Verkauf steht diese charmante 3-Zimmer-Maisonette-Dachgeschosswohnung mit Galerie und sonnigem Balkon, hell und gemütlich – ca. 80 m² im 3.OG (ohne Lift).
Highlights:
- Helle und freundliche Raumgestaltung
- Gemütliches Ambiente mit sonnigem Balkon
- Kellerabteil für zusätzlichen Stauraum
- Sehr gute Anbindung
- Air BnB Vermietung möglich
Ausstattung:
- Vorraum
- 1 Wohnraum
- 2 Schlaf-/Zimmer
- Küche
- Flur
- Bad mit Dusche
- WC
- Galerie (ca. 20,25 m²)
- 2 Abstellräume
- Kellerabteil
- Balkon (ca. 6,30 m²)
Die Wohnung ist sanierungsbedürftig (Parkettboden, Küche, Bodenfliesen im Bad & Dachfenster).
Hinweis: Die Bilder wurden KI-generiert, um anschauliche Eindrücke zu vermitteln.
Lage:
Diese helle Dachgeschoß-Wohnung besticht durch ihre ideale Lage. Mit Ost-/West-Ausrichtung genießen Sie viel Tageslicht und Sonne sowie einen herrlichen Blick in den grünen Innenhof. In unmittelbarer Nähe finden Sie alles für den täglichen Bedarf: Arzt, Apotheke, Schulen und Kindergärten. Einkaufsmöglichkeiten und öffentliche Verkehrsanbindungen sind nur wenige Schritte entfernt.
Für weitere Informationen oder eine Besichtigung stehe ich Ihnen gerne zur Verfügung!
Wir weisen darauf hin, dass zwischen dem Vermittler und dem zu vermittelnden Dritten ein familiäres oder wirtschaftliches Naheverhältnis besteht.
Der Vermittler ist als Doppelmakler tätig.
DECUS Immobilien GmbH – Wir beleben Räume
Für weitere Informationen und Besichtigungen steht Ihnen gerne Frau Katharina Hammerl unter der Mobilnummer +43 660 688 33 43 und per E-Mail unter hammerl@decus.at persönlich zur Verfügung.
www.decus.at | office@decus.at
Wichtige Informationen
Bitte beachten Sie, dass per 13.06.2014 eine neue Richtlinie für Fernabsatz- und Auswärtsgeschäfte in Kraft getreten ist.
Ab 1.4.2024 entfallen die Grundbuchs- und Pfandrechtseintragungsgebühren vorübergehend für Eigenheime bis zu einer Bemessungsgrundlage von EUR 500.000,-. Voraussetzung ist das dringende Wohnbedürfnis, ausgenommen davon sind vererbte oder geschenkte Immobilien. Die Befreiung ist jedoch für den Einzelfall zu prüfen, DECUS Immobilien übernimmt hierzu keine Haftung.
Ab 01.07.2023 gilt das Erstauftraggeber-Prinzip bei Wohnungsmietverträgen, ausgenommen davon sind Dienst-/Natural-/Werkswohnungen. Wir dürfen gem. § 17 Maklergesetz darauf hinweisen, dass wir auf die Doppelmaklertätigkeit gem. § 5 Maklergesetz bei Wohnungsmietverträgen verzichten und nur noch einseitig tätig sind (bei den restlichen Vermittlungsarten nicht) und ein wirtschaftliches Naheverhältnis zu unseren Auftraggebern besteht.
Im Falle eines Abschlusses mit Ihnen oder einem von Ihnen namhaft gemachten Dritten bzw. bei beidseitiger Willensübereinstimmung beträgt unser Honorar (lt. Honorarverordnung für Immobilienmakler) 2 Bruttomonatsmieten (BMM) bei Dienst-/Natural-/Werkwohnungen sowie Suchaufträgen, 3 BMM bei Gewerbe-, PKW-, Keller- und Lagermietverträgen sowie bei Kaufobjekten 3 % des Kaufpreises, zuzüglich der gesetzlichen Umsatzsteuer.
Dieses Objekt wird Ihnen unverbindlich und freibleibend angeboten. Oben angeführte Angaben basieren auf Informationen und Unterlagen des Eigentümers und sind unsererseits ohne Gewähr.
Nähere Informationen sowie unsere AGBs und die Nebenkostenübersichtsblatt finden Sie auf unserer Homepage www.decus.at unter "Service" - "Rechtliches zum FAGG" sowie im Anhang der zugesendeten Objekt-Exposés!
Infrastruktur / Entfernungen
Gesundheit
Arzt <250m
Apotheke <250m
Klinik <250m
Krankenhaus <750m
Kinder & Schulen
Schule <500m
Kindergarten <250m
Universität <1.000m
Höhere Schule <1.250m
Nahversorgung
Supermarkt <250m
Bäckerei <250m
Einkaufszentrum <750m
Sonstige
Geldautomat <500m
Bank <750m
Post <750m
Polizei <250m
Verkehr
Bus <250m
Straßenbahn <750m
Autobahnanschluss <4.000m
Bahnhof <1.250m
Flughafen <8.750m
Angaben Entfernung Luftlinie / Quelle: OpenStreetMap
Objektdaten
Ausstattung
- Bad mit Dusche
- Einbauküche
- Fliesenboden
- Parkettboden
- Fernwärme Heizung
- Ausrichtung Balkon/Terrasse - Ost
Zustand
- HWB
- 69.5 kWh/m² pro Jahr
- Klasse HWB
- C
- fGEE
- 1.55
- Klasse fGEE
- C
Flächen
- Anzahl der Zimmer
- 3
- Anzahl der Badezimmer
- 1
- Anzahl der sep. WCs
- 1
- Anzahl der Balkone
- 1
- Wohnfläche
- 80m²
Kosten
- Kaufpreis Brutto
- € 169.000,00
- Betriebskosten
- € 203,42
- Sonstige Kosten
- € 113,60
Wohnungen zum Kaufen in Österreich
Wohnungen zum Kaufen in Österreich
Andere Besucher suchen nach...
- Grundstücke kaufen in 3400 Weidlingbach
- Wohnungen kaufen in 4663 Laakirchen
- Häuser in 7471 Rechnitz
- Wohnungen in 2410 Hainburg an der Donau
- Häuser kaufen in 2432 Schwadorf
- Wohnungen kaufen in 3002 Purkersdorf
- Häuser in 3150 Wilhelmsburg
- Wohnungen kaufen in 3470 Engelmannsbrunn
- Grundstücke kaufen im Bezirk Mattersburg
- Grundstücke kaufen im Bezirk Gmunden