Dachgeschoss-Altbau mit Terrasse und Rohdachboden
Beschreibung
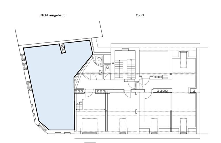
Diese 3-Zimmer-Wohnung im Dachgeschoss eines gepflegten Altbaus in Graz-Eggenberg verbindet Charme, Alltagstauglichkeit und Ausbaupotenzial. Sie betreten die Wohnung über einen Vorraum, gelangen in den gemütlichen Wohn-/Essbereich und auf die überdachte Terrasse – ideal für Frühstück im Freien oder entspannte Abende.
Die Ausstattung im Überblick:
-
3 Zimmer – ideal für Paare, Homeoffice oder kleine Familie
-
Separate Küche
-
Bad mit Eckbadewanne und Dusche
-
Separates WC
-
Überdachte Terrasse
-
Rohdachboden mit zusätzlichem Ausbaupotenzial
Die bestehenden Möbel sind im Kaufpreis inkludiert – Sie können sofort einziehen oder die Wohnung auf Wunsch...
Diese 3-Zimmer-Wohnung im Dachgeschoss eines gepflegten Altbaus in Graz-Eggenberg verbindet Charme, Alltagstauglichkeit und Ausbaupotenzial. Sie betreten die Wohnung über einen Vorraum, gelangen in den gemütlichen Wohn-/Essbereich und auf die überdachte Terrasse – ideal für Frühstück im Freien oder entspannte Abende.
Die Ausstattung im Überblick:
3 Zimmer – ideal für Paare, Homeoffice oder kleine Familie
Separate Küche
Bad mit Eckbadewanne und Dusche
Separates WC
Überdachte Terrasse
Rohdachboden mit zusätzlichem Ausbaupotenzial
Die bestehenden Möbel sind im Kaufpreis inkludiert – Sie können sofort einziehen oder die Wohnung auf Wunsch komplett leer übernehmen. Perfekt für Eigennutzer, die ein Dachgeschoss mit Charakter suchen und sich gleichzeitig die Option für mehr Wohnraum in Zukunft offenhalten möchten.
Die gezeigten Bilder sind Echtaufnahmen kombiniert mit KI generierten Einrichtungsvorschlägen.
Der Vermittler ist als Doppelmakler tätig.
Objektdaten
Ausstattung
- Befeuerung mit Gas
Zustand
- Baujahr
- 1912
- HWB
- 123.39 kWh/m² pro Jahr
- Klasse HWB
- D
- Klasse fGEE
- D
Flächen
- Anzahl der Zimmer
- 4
- Wohnfläche
- 105m²
Kosten
- Kaufpreis Brutto
- € 233.882,00
- Betriebskosten
- € 294,11
- Sonstige Kosten
- € 111,17
Wohnungen zum Kaufen in Österreich
Wohnungen zum Kaufen in Österreich
Andere Besucher suchen nach...
- Grundstücke kaufen in 3400 Weidlingbach
- Wohnungen kaufen in 4663 Laakirchen
- Häuser in 7471 Rechnitz
- Wohnungen in 2410 Hainburg an der Donau
- Häuser kaufen in 2432 Schwadorf
- Wohnungen kaufen in 3002 Purkersdorf
- Häuser in 3150 Wilhelmsburg
- Wohnungen kaufen in 3470 Engelmannsbrunn
- Grundstücke kaufen im Bezirk Mattersburg
- Grundstücke kaufen im Bezirk Gmunden