Graz-Wetzelsdorf: Modernisierte 3-Zimmer-Wohnung mit Balkon im 7.Stock mit Lift
Beschreibung
Modernisierte Eigentumswohnung in Graz-Wetzelsdorf
Allgemeine Informationen
Adresse: Grottenhofstraße 90, 8053 Graz Bezirk: 15. Bezirk Wetzelsdorf Vermarktungsart: Kauf Nutzungsart: Wohnen Eigentumsform: Wohnungseigentum Baujahr: 1963 Stockwerk: 7. Obergeschoss mit Lift
Die Wohnung befindet sich in einem gepflegten Mehrparteienhaus und wurde in den letzten Jahren großzügig und laufend renoviert. Dadurch präsentiert sie sich in einem sehr guten und zeitgemäßen Zustand.
Sanierungen und Ausstattungsdetails
- 2015 wurden neue dreifach verglaste Fenster inklusive Rollläden eingebaut. - 2018 erfolgte die Erneuerung der Einbauküche mit neuen Elektrogeräten sowie neuen Fronten. - 2021 wurden die Sanitäranlagen komplett erneuert, das Badezimmer neu verfliest und mit modernen Badmöbeln ausgestattet sowie...
Modernisierte Eigentumswohnung in Graz-Wetzelsdorf
Allgemeine Informationen
Adresse: Grottenhofstraße 90, 8053 Graz
Bezirk: 15. Bezirk Wetzelsdorf
Vermarktungsart: Kauf
Nutzungsart: Wohnen
Eigentumsform: Wohnungseigentum
Baujahr: 1963
Stockwerk: 7. Obergeschoss mit Lift
Die Wohnung befindet sich in einem gepflegten Mehrparteienhaus und wurde in den letzten Jahren großzügig und laufend renoviert. Dadurch präsentiert sie sich in einem sehr guten und zeitgemäßen Zustand.
Sanierungen und Ausstattungsdetails
- 2015 wurden neue dreifach verglaste Fenster inklusive Rollläden eingebaut.
- 2018 erfolgte die Erneuerung der Einbauküche mit neuen Elektrogeräten sowie neuen Fronten.
- 2021 wurden die Sanitäranlagen komplett erneuert, das Badezimmer neu verfliest und mit modernen Badmöbeln ausgestattet sowie ein neuer Boiler installiert. Zusätzlich wurden in der Wohnung teilweise neue Bodenbeläge verlegt und die Fassade mit einem Vollwärmeschutz versehen
Die Beheizung erfolgt mittels Fernwärme.
Flächen und Preis
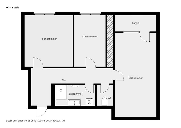
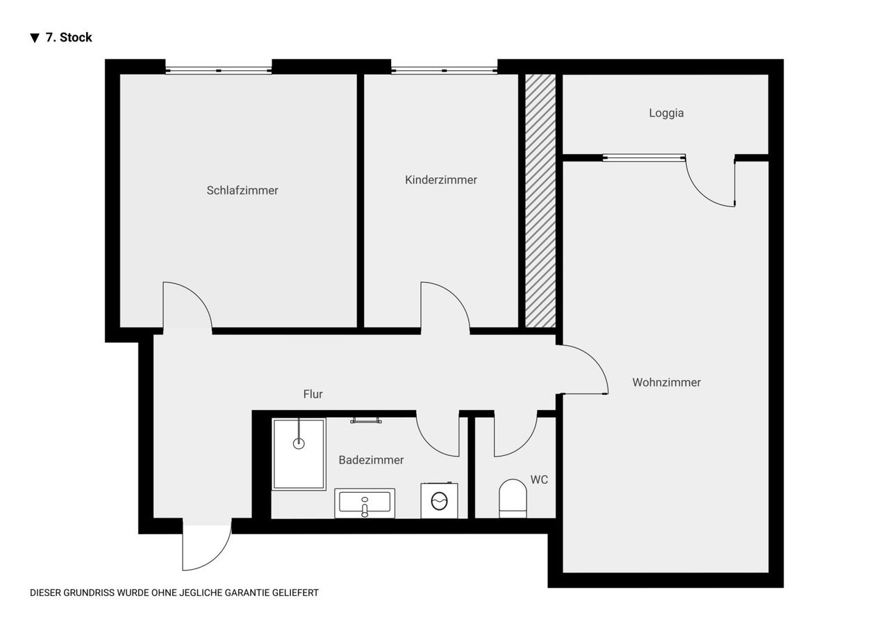
Wohnfläche: ca. 74 m²
Betriebskosten inkl Heizung: Brutto € 412,94
Darlehen: € 7.445,94 (per 30.11.2024), wird über die Betriebskosten rückbezahlt.
Der Wohnung ist ein Kellerabteil zugeordnet. Parkmöglichkeiten stehen im Innenhof zur Verfügung, sind jedoch nicht fix zugewiesen.
Objektbeschreibung
Diese gepflegte und helle Eigentumswohnung befindet sich in einer sehr gut angebundenen Wohnlage im Grazer Stadtteil Wetzelsdorf. Die rund 74 m² große Wohnfläche überzeugt durch einen funktionalen und gut nutzbaren Grundriss.
Die Wohnung verfügt über zwei separat begehbare Schlafzimmer und eignet sich dadurch ideal für Paare, kleine Familien oder auch als Wohngemeinschaft. Der großzügige Wohnbereich schafft eine angenehme Wohnatmosphäre und bietet Zugang zum Balkon, der zum Entspannen einlädt.
Die moderne Einbauküche ist praktisch gestaltet und fügt sich harmonisch in das Gesamtbild der Wohnung ein. Das Badezimmer mit begehbaret Dusche sowie das separate WC sorgen für zusätzlichen Wohnkomfort. Rollläden in allen Räumen bieten optimalen Sicht und Sonnenschutz.
Durch die Lage im siebenten Stockwerk genießt man eine gute Belichtung sowie einen schönen Ausblick. Die Beheizung erfolgt mittels Fernwärme.
Lage und Infrastruktur
Die Wohnung befindet sich im Grazer Stadtteil Wetzelsdorf in der Grottenhofstraße, einer gut etablierten Wohnlage im Westen der Stadt mit überwiegend wohnlicher Bebauung und sehr guter Infrastruktur.
Einkaufsmöglichkeiten des täglichen Bedarfs, Apotheken, Ärzte sowie Schulen und Kindergärten sind in kurzer Distanz erreichbar. Direkt vor dem Wohnhaus befindet sich eine Bushaltestelle der Linien 31, 31E, 62, 65 und 66, welche eine rasche und direkte Anbindung an die Grazer Innenstadt, den Hauptbahnhof sowie weitere Stadtteile gewährleisten. Auch die Anbindung an das überregionale Straßennetz ist sehr gut.
Insgesamt überzeugt die Lage durch eine gelungene Kombination aus angenehmen Wohnen und optimaler Erreichbarkeit.
Fazit
Eine attraktive und modernisierte Eigentumswohnung mit zwei Schlafzimmern in gefragter Grazer Wohnlage. Der durchdachte Grundriss macht die Wohnung sowohl als Eigenheim als auch als WG taugliche und wertstabile Investition besonders interessant.
Hinweis gemäß Energieausweisvorlagegesetz: Ein Energieausweis wurde vom Eigentümer bzw. Verkäufer, nach unserer Aufklärung über die generell geltende Vorlagepflicht, sowie Aufforderung zu seiner Erstellung noch nicht vorgelegt. Daher gilt zumindest eine dem Alter und der Art des Gebäudes entsprechende Gesamtenergieeffizienz als vereinbart. Wir übernehmen keinerlei Gewähr oder Haftung für die tatsächliche Energieeffizienz der angebotenen Immobilie.
Der Vermittler ist als Doppelmakler tätig.
Infrastruktur / Entfernungen
Gesundheit
Arzt <250m
Apotheke <500m
Klinik <2.250m
Krankenhaus <750m
Kinder & Schulen
Schule <500m
Kindergarten <750m
Universität <2.750m
Höhere Schule <2.750m
Nahversorgung
Supermarkt <250m
Bäckerei <500m
Einkaufszentrum <2.250m
Sonstige
Geldautomat <250m
Bank <250m
Post <1.500m
Polizei <250m
Verkehr
Bus <250m
Straßenbahn <1.750m
Autobahnanschluss <2.000m
Bahnhof <750m
Flughafen <7.500m
Angaben Entfernung Luftlinie / Quelle: OpenStreetMap
Objektdaten
Ausstattung
- Rolladen
- Bad mit Dusche
- Einbauküche
- Fliesenboden
- Estrichboden
- Fernwärme Heizung
- Fern Befeuerung
Zustand
- Baujahr
- 1963
Flächen
- Anzahl der Logia
- 1
- Wohnfläche
- 74m²
Kosten
- Kaufpreis Brutto
- € 192.000,00
- Betriebskosten
- € 211,16
- Heizkosten
- € 50,00
- Sonstige Kosten
- € 120,66
Wohnungen zum Kaufen in Österreich
Wohnungen zum Kaufen in Österreich
Andere Besucher suchen nach...
- Grundstücke kaufen in 3400 Weidlingbach
- Wohnungen kaufen in 4663 Laakirchen
- Häuser in 7471 Rechnitz
- Wohnungen in 2410 Hainburg an der Donau
- Häuser kaufen in 2432 Schwadorf
- Wohnungen kaufen in 3002 Purkersdorf
- Häuser in 3150 Wilhelmsburg
- Wohnungen kaufen in 3470 Engelmannsbrunn
- Grundstücke kaufen im Bezirk Mattersburg
- Grundstücke kaufen im Bezirk Gmunden