Ruhige Gartenwohnung ideal für Pärchen!
Beschreibung
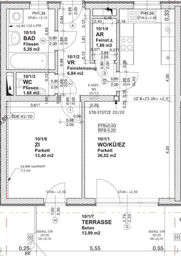
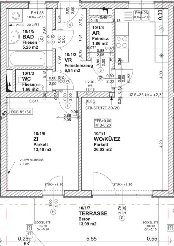
Diese schöne Gartenwohnung überzeugt durch eine gelungene Kombination aus Komfort, Stil und Alltagstauglichkeit. Mit einer Wohnfläche von ca. 55 m² bietet sie ideale Voraussetzungen für modernes und gemütliches Wohnen.
Der durchdachte Grundriss überzeugt mit einer großzügigen Wohnküche samt offener Einbauküche, die zum gemeinsamen Kochen und Verweilen einlädt. Hochwertige Fliesen und elegantes Parkett schaffen ein stilvolles Wohnambiente mit Wohlfühlcharakter. Das Badezimmer ist mit einer modernen Dusche ausgestattet und wirkt durch das Fenster besonders hell und freundlich. Das Badezimmer wurde im Jahr 2021 vollständig saniert.
Ein besonderes Highlight ist der eigene Garten mit Terrasse. Hier genießen Sie entspannte Stunden...
Diese schöne Gartenwohnung überzeugt durch eine gelungene Kombination aus Komfort, Stil und Alltagstauglichkeit. Mit einer Wohnfläche von ca. 55 m² bietet sie ideale Voraussetzungen für modernes und gemütliches Wohnen.
Der durchdachte Grundriss überzeugt mit einer großzügigen Wohnküche samt offener Einbauküche, die zum gemeinsamen Kochen und Verweilen einlädt. Hochwertige Fliesen und elegantes Parkett schaffen ein stilvolles Wohnambiente mit Wohlfühlcharakter. Das Badezimmer ist mit einer modernen Dusche ausgestattet und wirkt durch das Fenster besonders hell und freundlich. Das Badezimmer wurde im Jahr 2021 vollständig saniert.
Ein besonderes Highlight ist der eigene Garten mit Terrasse. Hier genießen Sie entspannte Stunden im Freien, ob beim Sonnen, bei geselligen Grillabenden oder als geschützter Spielbereich für Kinder.
Beheizt wird die Immobilie mittels Fernwärme, die für angenehme Temperaturen sorgt und gleichzeitig energieeffizient ist. Eine Solaranlage unterstützt zusätzlich die Warmwasseraufbereitung und trägt zu einer nachhaltigen Energieversorgung bei.
Ein praktisches Kellerabteil mit rund 8 m² und ein Abstellraum in der Wohnung runden das Angebot ideal ab.
Ein Tiefgaragenstellplatz kann optional für € 15.000.- erworben werden.
Habe ich Ihr Interesse geweckt? Dann vereinbaren Sie noch heute Ihren persönlichen Besichtigungstermin unter 0676 792 4717 und überzeugen Sie sich von diesem einzigartigen Angebot. Ich freue mich auf Ihren Anruf, Daniel Egyed, Kompagnon Immobilien Steiermark
Obige Angaben basieren auf Informationen des Eigentümers und sind ohne Gewähr. Irrtum und Änderungen vorbehalten.
Wir weisen darauf hin, dass zwischen dem Vermittler und dem zu vermittelnden Dritten ein familiäres oder wirtschaftliches Naheverhältnis besteht.
Der Vermittler ist als Doppelmakler tätig.
Objektdaten
Ausstattung
- Gartennutzung
- Rollstuhlgerecht
- Kabel/SAT-TV
- Barrierefrei
- Wasch-/Trockenraum
- Rolladen
- Bad mit Dusche
- Bad mit Fenster
- Einbauküche
- Offene Küche
- Fliesenboden
- Parkettboden
- Fernwärme Heizung
- Solar
- Fern Befeuerung
- Personen Fahrstuhl
- Ausrichtung Balkon/Terrasse - Südwest
Zustand
- Zustand
- NEUWERTIG
- Baujahr
- 2006
- Alter
- NEUBAU
- HWB
- 50.89 kWh/m² pro Jahr
- Klasse HWB
- C
- fGEE
- 0.79
- Klasse fGEE
- A
Flächen
- Anzahl der Zimmer
- 2
- Anzahl der Badezimmer
- 1
- Anzahl der sep. WCs
- 1
- Anzahl der Terrassen
- 1
- Wohnfläche
- 55m²
- Gartenfläche
- 36m²
- Kellerfläche
- 8m²
- Terrassenfläche
- 1m²
Kosten
- Kaufpreis Brutto
- € 175.000,00
- Betriebskosten
- € 330,00
Wohnungen zum Kaufen im Umkreis von Gratkorn
Wohnungen zum Kaufen im Umkreis von Gratkorn
Wohnungen zum Kaufen in Österreich
Andere Besucher suchen nach...
- Grundstücke kaufen in 3400 Weidlingbach
- Wohnungen kaufen in 4663 Laakirchen
- Häuser in 7471 Rechnitz
- Wohnungen in 2410 Hainburg an der Donau
- Häuser kaufen in 2432 Schwadorf
- Wohnungen kaufen in 3002 Purkersdorf
- Häuser in 3150 Wilhelmsburg
- Wohnungen kaufen in 3470 Engelmannsbrunn
- Grundstücke kaufen im Bezirk Mattersburg
- Grundstücke kaufen im Bezirk Gmunden