Moderne Jungfamilienwohnung mit sonnigem Balkon!
-
2022
Beschreibung
Entdecken Sie diese traumhafte, lichtdurchflutete Wohnung in einer der begehrtesten Gemeinden rund um Graz! Modernes Design, durchdachte Raumaufteilung und neuwertige Ausstattung sorgen für höchsten Wohnkomfort in der ersten Etage.
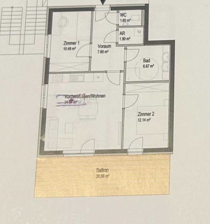
Auf 65 m² Wohnfläche erwarten Sie drei helle Zimmer, die Singles, Paare oder kleine Familien gleichermaßen begeistern. Der klug geplante Grundriss schafft ein harmonisches Wohngefühl, während die offene Wohnküche das Herzstück der Wohnung bildet. Die hochwertige Einbauküche überzeugt sowohl funktional als auch optisch. Der nach Süden ausgerichtete Balkon lädt zum Entspannen ein und bietet sonnige Stunden.
Das Badezimmer ist mit einer Badewanne ausgestattet und ist vom WC getrennt. Der...
Entdecken Sie diese traumhafte, lichtdurchflutete Wohnung in einer der begehrtesten Gemeinden rund um Graz! Modernes Design, durchdachte Raumaufteilung und neuwertige Ausstattung sorgen für höchsten Wohnkomfort in der ersten Etage.
Auf 65 m² Wohnfläche erwarten Sie drei helle Zimmer, die Singles, Paare oder kleine Familien gleichermaßen begeistern. Der klug geplante Grundriss schafft ein harmonisches Wohngefühl, während die offene Wohnküche das Herzstück der Wohnung bildet.
Die hochwertige Einbauküche überzeugt sowohl funktional als auch optisch. Der nach Süden ausgerichtete Balkon lädt zum Entspannen ein und bietet sonnige Stunden.
Das Badezimmer ist mit einer Badewanne ausgestattet und ist vom WC getrennt. Der praktische Abstellraum erleichtert den Alltag erheblich.
Moderne Fliesen und Parkett verleihen den Räumen eine elegante Note, während Fußbodenheizung und eine zentrale Gasheizung auch in der kalten Jahreszeit für wohlige Wärme sorgen. Zusätzlich sorgt eine Klimaanlage für angenehme Temperaturen auch an heißen Sommertagen.
Ein weiterer Pluspunkt: Ein fixer Carportplatz und ein praktisches Kellerabteil gehören ebenfalls zur Wohnung.
Die gemeinschaftlichen Betriebskosten sind zudem sehr günstig, was die Wohnung besonders attraktiv macht.
Habe ich Ihr Interesse geweckt? Dann vereinbaren Sie noch heute Ihren persönlichen Besichtigungstermin unter 0676 792 4717 und überzeugen Sie sich von diesem einzigartigen Angebot. Ich freue mich auf Ihren Anruf, Daniel Egyed, Kompagnon Immobilien Steiermark
Obige Angaben basieren auf Informationen des Eigentümers und sind ohne Gewähr. Irrtum und Änderungen vorbehalten.
Hinweis gemäß Energieausweisvorlagegesetz: Ein Energieausweis wurde vom Eigentümer bzw. Verkäufer, nach unserer Aufklärung über die generell geltende Vorlagepflicht, sowie Aufforderung zu seiner Erstellung noch nicht vorgelegt. Daher gilt zumindest eine dem Alter und der Art des Gebäudes entsprechende Gesamtenergieeffizienz als vereinbart. Wir übernehmen keinerlei Gewähr oder Haftung für die tatsächliche Energieeffizienz der angebotenen Immobilie.
Der Vermittler ist als Doppelmakler tätig.
Objektdaten
Ausstattung
- Klimatisiert
- Kabel/SAT-TV
- Rolladen
- Bad mit Badewanne
- Einbauküche
- Offene Küche
- Fliesenboden
- Parkettboden
- Zentralheizung
- Fußbodenheizung
- Befeuerung mit Gas
- Ausrichtung Balkon/Terrasse - Süd
- Satteldach
- Massiv Bauweise
Zustand
- Zustand
- NEUWERTIG
- Baujahr
- 2022
- Alter
- NEUBAU
Flächen
- Anzahl der Zimmer
- 3
- Anzahl der Badezimmer
- 1
- Anzahl der sep. WCs
- 1
- Anzahl der Balkone
- 1
- Stellplätze
- 1
- Wohnfläche
- 65m²
- Kellerfläche
- 4m²
Kosten
- Kaufpreis Brutto
- € 299.000,00
- Betriebskosten
- € 160,00
Wohnungen zum Kaufen im Umkreis von Gratwein-Straßengel
Wohnungen zum Kaufen im Umkreis von Gratwein-Straßengel
Wohnungen zum Kaufen in Österreich
Andere Besucher suchen nach...
- Grundstücke kaufen in 3400 Weidlingbach
- Wohnungen kaufen in 4663 Laakirchen
- Häuser in 7471 Rechnitz
- Wohnungen in 2410 Hainburg an der Donau
- Häuser kaufen in 2432 Schwadorf
- Wohnungen kaufen in 3002 Purkersdorf
- Häuser in 3150 Wilhelmsburg
- Wohnungen kaufen in 3470 Engelmannsbrunn
- Grundstücke kaufen im Bezirk Mattersburg
- Grundstücke kaufen im Bezirk Gmunden