„Wohnen mit Aussicht auf die Geierwand“ - Neubauwohnung W 16
-
2026
Beschreibung
Modernes Wohnen trifft auf alpinen Charme – in zentraler Lage von Haiming entsteht ein hochwertiges Wohnprojekt mit durchdachter Architektur, nachhaltiger Bauweise und schönem Bergblick.
Highlights auf einen Blick:
-
17 moderne Wohnungen auf drei Etagen mit großzügigen Freiflächen (Balkone, Terrassen, Gärten)
-
Tiefgarage mit 23 Stellplätzen + 3 Außenabstellplätze (inkl. barrierefreiem Besucherparkplatz)
-
Massive Bauweise mit Wärmedämmung, Luftwärmepumpe & Photovoltaikanlage | HWB Ref, SK: 43,8 kWh/m²a [Klasse B], fGEE, SK: 0,71 [Klasse A]
-
Individuell gestaltbare Grundrisse – erste Planänderung kostenlos
-
Hochwertige Ausstattung: Eichenholzparkett, Feinsteinzeug, 3-fach verglaste Fenster
-
Zentraler Zugang mit...
Modernes Wohnen trifft auf alpinen Charme – in zentraler Lage von Haiming entsteht ein hochwertiges Wohnprojekt mit durchdachter Architektur, nachhaltiger Bauweise und schönem Bergblick.
Highlights auf einen Blick:
17 moderne Wohnungen auf drei Etagen mit großzügigen Freiflächen (Balkone, Terrassen, Gärten)
Tiefgarage mit 23 Stellplätzen + 3 Außenabstellplätze (inkl. barrierefreiem Besucherparkplatz)
Massive Bauweise mit Wärmedämmung, Luftwärmepumpe & Photovoltaikanlage | HWB Ref, SK: 43,8 kWh/m²a [Klasse B], fGEE, SK: 0,71 [Klasse A]
Individuell gestaltbare Grundrisse – erste Planänderung kostenlos
Hochwertige Ausstattung: Eichenholzparkett, Feinsteinzeug, 3-fach verglaste Fenster
Zentraler Zugang mit Aufzug und offenen Laubengängen
Ideale Lage in ruhiger Umgebung, gute Erreichbarkeit über Alte Bundesstraße
Traumhafte Aussicht auf die Tiroler Bergwelt
Ein Projekt für Menschen mit Anspruch an Qualität, Komfort und Nachhaltigkeit – perfekt für Paare und Familien.
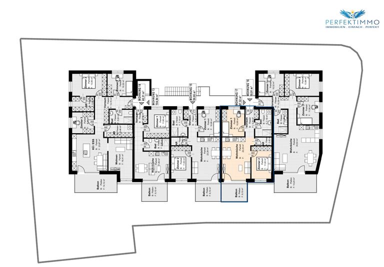
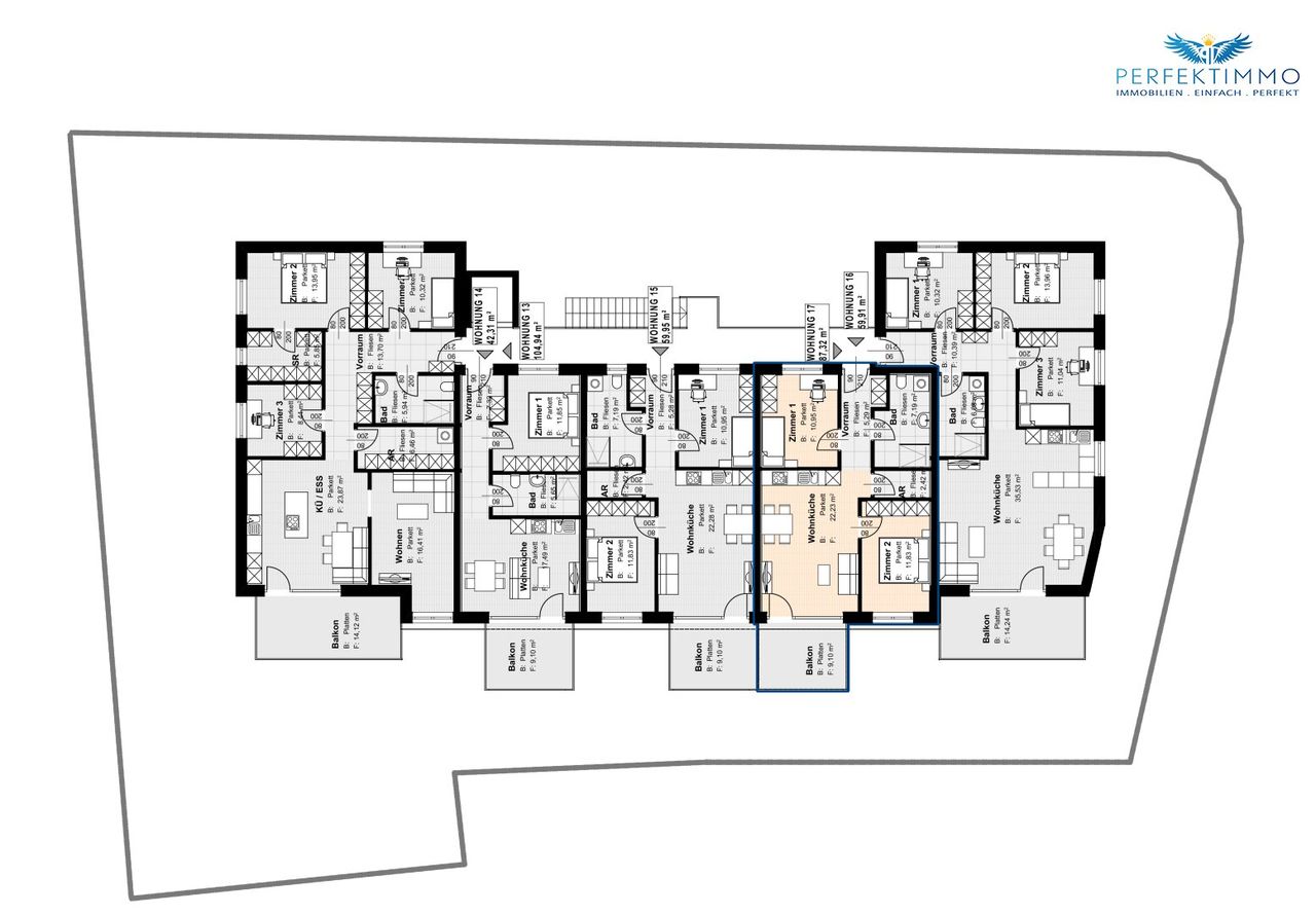
WOHNUNG W 16: 3-Zimmer-Wohnung mit Balkon
ECKDATEN:
Stockwerk: Dachgeschoß
Zimmer: 3
Wohnfläche: 59,91 m²
Balkonfläche: 9,10 m²
Lager: 1 inkl.
TG-Platz: optional
RAUMAUFTEILUNG:
Vorraum: 5,29 m²
Zimmer 1: 10,95 m²
Zimmer 2: 11,83 m²
Wohnküche: 22,23 m²
Abstellraum: 2,42 m²
Bad/WC: 7,19 m²
KAUFPREIS:
Wohnung: € 350.000,00
TG-Platz: € 29.500,00
Haben wir Ihr Interesse geweckt? Dann zögern Sie nicht und vereinbaren Sie noch heute einen Besichtigungstermin. Lassen Sie sich von der außergewöhnlichen Qualität dieses Neubaus überzeugen und finden Sie Ihr neues Zuhause in Haiming!
IHRE ANSPRECHPARTNERIN:
Frau Barbara Lechleitner
geprüfte Immobilienmaklerin
Mobil: +43 650 9805332
E-Mail: b.lechleitner@perfektimmo.at
www.perfektimmo.at
NEBENKOSTEN:
Maklerhonorar: 3,6 % inkl. USt
Vertragserrichtungskosten: ca. 2 % netto zzgl. USt zzgl. Barauslagen
Grunderwerbsteuer: 3,5 %
Grundbuchseintragung: 1,1 % - Unter Umständen könnte hier eine Befreiung gemäß dem Beschluss der Österreichischen Bundesregierung für die Eintragung des Eigentumsrechts sowie die Eintragung einer eventuellen Pfandurkunde möglich sein.
Alle Angaben nach bestem Wissen. Irrtum und Zwischenverkauf vorbehalten. Dieses Exposé ist eine Vorinformation, als Rechtsgrundlage gilt alleine der abgeschlossene Kaufvertrag. §15 der Maklerverordnung gilt als vereinbart.
Weitere tolle Angebote finden Sie unter: https://www.perfektimmo.at/angebote
Wir weisen darauf hin, dass zwischen dem Vermittler und dem zu vermittelnden Dritten ein familiäres oder wirtschaftliches Naheverhältnis besteht.
Der Vermittler ist als Doppelmakler tätig.
Infrastruktur / Entfernungen
Gesundheit
Arzt <500m
Apotheke <500m
Kinder & Schulen
Schule <500m
Kindergarten <500m
Höhere Schule <8.500m
Nahversorgung
Supermarkt <500m
Bäckerei <500m
Sonstige
Bank <500m
Geldautomat <4.000m
Post <500m
Polizei <4.000m
Verkehr
Bus <500m
Bahnhof <1.000m
Autobahnanschluss <1.500m
Angaben Entfernung Luftlinie / Quelle: OpenStreetMap
Objektdaten
Ausstattung
- Bad mit Dusche
- Fliesenboden
- Parkettboden
- Fußbodenheizung
- Luftwärmepumpe
- Personen Fahrstuhl
- Ausrichtung Balkon/Terrasse - West
- Flachdach
- Massiv Bauweise
- Niedrigenergie
Zustand
- Zustand
- PROJEKTIERT
- Baujahr
- 2026
- Alter
- NEUBAU
- HWB
- 43.8 kWh/m² pro Jahr
- Klasse HWB
- B
- fGEE
- 0.71
- Klasse fGEE
- A
Flächen
- Anzahl der Zimmer
- 3
- Anzahl der Badezimmer
- 1
- Anzahl der sep. WCs
- 1
- Anzahl der Balkone
- 1
- Wohnfläche
- 60m²
Kosten
- Kaufpreis Brutto
- € 350.000,00
Verwaltung
- Verfügbar ab
- nach Vereinbarung
Wohnungen zum Kaufen im Umkreis von Haiming
Wohnungen zum Kaufen im Umkreis von Haiming
Wohnungen zum Kaufen in Österreich
Andere Besucher suchen nach...
- Grundstücke kaufen in 3400 Weidlingbach
- Wohnungen kaufen in 4663 Laakirchen
- Häuser in 7471 Rechnitz
- Wohnungen in 2410 Hainburg an der Donau
- Häuser kaufen in 2432 Schwadorf
- Wohnungen kaufen in 3002 Purkersdorf
- Häuser in 3150 Wilhelmsburg
- Wohnungen kaufen in 3470 Engelmannsbrunn
- Grundstücke kaufen im Bezirk Mattersburg
- Grundstücke kaufen im Bezirk Gmunden